Drengsrudveien 72
9 000 000 kr
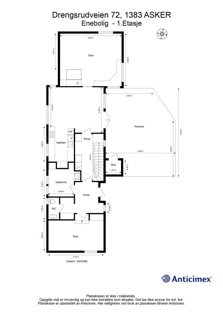
224 m²
4 soverom
Solgt

Presenteres av
Terje TveitDRENGSRUD
Innholdsrik enebolig med 4 soverom. Flott beliggende i blindvei. Solrike uteplasser, garasje og gangavstand til sentrum.
Prisantydning
9 000 000 krOmkostninger
245 990 krTotalpris
9 245 990 kr
Pris
Bruksareal
248 m²BRA-I (internt bruksareal)
224 m²BRA-E (eksternt bruksareal)
24 m²TBA (terrasse-balkongareal)
54 m²
Areal
Etasje
2Byggeår
1983Soverom
4 soveromBad
1 badTomteareal
771 m² (eiet)Type
Enebolig - FrittliggendeEierform
EietFasiliteter
Garasje/P-plass og Balkong/TerrasseEnergimerke
Rød G
Nøkkelinfo
Unngå doble boligrenter
Vi tilbyr gunstig forsikring.
Vurderer du utleie?
Få et tilbud fra Utleie KrogsveenHva koster lånet?
Sjekk estimert lånekostnadBeskrivelse
Kort om eiendommen
Velkommen til Drengsrudveien 72, presentert av Terje Tveit i Krogsveen.
Her får du en innholdsrik enebolig over 2 plan + kjeller. Boligen inneholder 4 soverom, bad, WC, vaskerom, kjøkken, spisestue, 2 stuer, entré og en flott hage med gode solforhold. Boligen har en frittstående garasje. Her bor man sentralt og tilgjengelig til med noen få minutters kjøring til Asker sentrum, samtidig er det noen få minutters gange til skogssti opp i marka.
Kort fortalt:
Frittstående garasje
Nærhet til buss
Beliggende i blindvei
Solrike uteplasser og hage
4 soverom
Lys og hyggelig stue m koselig peis
Kjøkken m god plass til stort spisebord
Rolige omgivelser
Umiddelbar nærhet til marka
Gangavstand til Asker Sentrum
Velkommen til visning!
Område
Legg til steder som er viktige for deg
På flyttefot? Tenk kjøp og salg samtidig.
Få din egen rådgiver gjennom hele kjøps- og salgsprosessen. Det starter med en verdivurdering.
Unngå doble boligrenter
Vi tilbyr gunstig forsikring.
Vurderer du utleie?
Få et tilbud fra Utleie KrogsveenHva koster lånet?
Sjekk estimert lånekostnadVil du varsles om lignende boliger?
Ved å lagre ditt boligsøk hos oss får du beskjed når vi har en bolig som ligner denne, før den legges ut på markedet!
På flyttefot? Slik gjør vi det enklere for deg
Skreddersydd flyttepakke
Vi fikser håndverkere, vask, pakking, lagring og transport, og legger ut for utgiftene underveis.
Hjelp med både kjøp og salg
Hos oss har du din egen rådgiver gjennom hele kjøps- og salgsprosessen.
Hjelp til finansiering
Vårt samarbeid med BN Bank sikrer deg rask og løsningsorientert hjelp, til konkurransedyktige betingelser.

