Thereses gate 35B
4 975 000 kr
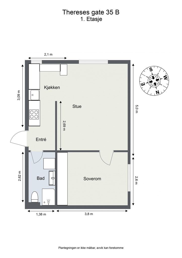
42 m²
1 soverom
Solgt

Bislett/Adamstuen
Lys og lekker 2-roms med skjermet beliggenhet mot parken - Bad 2020 - Fyring, vv og internett inkl. - 2,74m takøyde
Prisantydning
4 975 000 krOmkostninger
24 643 krTotalpris
4 999 643 kr
Pris
Bruksareal
47 m²BRA-I (internt bruksareal)
42 m²BRA-E (eksternt bruksareal)
5 m²
Areal
Etasje
1Byggeår
1923Soverom
1 soveromBad
1 badType
AksjeleilighetEierform
AksjeFasiliteter
HeisFellesutgifter
2 737 krEnergimerke
Grønn G
Nøkkelinfo
Unngå doble boligrenter
Vi tilbyr gunstig forsikring.
Vurderer du utleie?
Få et tilbud fra Utleie KrogsveenHva koster lånet?
Sjekk estimert lånekostnadBeskrivelse
Kort om eiendommen
Velkommen til denne stilige og velholdte leiligheten på Bislett, presentert av Marius Dyngeland Iversen. Med en ettertraktet beliggenhet får du enkel adgang til bylivet, med kollektivtransport og vakre Stensparken like i nærheten. Leiligheten ligger i høy 1.etg, vendt mot en stensparken, som gir et skjermet og rolig bomiljø.
Boligen har en gjennomgående god standard og moderne bad fra 2020. Den smarte planløsningen byr på en lys og åpen stue-/kjøkkenløsning, et romslig soverom, moderne bad og en hyggelig entré.
Kort fortalt:
- Varmtvann, fyring, og bredbånd inkl. i felleskostnadene
- God takhøyde på opp til 2,74
- Lave felleskostnader
- Ingen dokumentavgift
- 13 felles balkonger
- Parkeringsleie etter venteliste
- To loftsboder
Område
Legg til steder som er viktige for deg
På flyttefot? Tenk kjøp og salg samtidig.
Få din egen rådgiver gjennom hele kjøps- og salgsprosessen. Det starter med en verdivurdering.
Unngå doble boligrenter
Vi tilbyr gunstig forsikring.
Vurderer du utleie?
Få et tilbud fra Utleie KrogsveenHva koster lånet?
Sjekk estimert lånekostnadVil du varsles om lignende boliger?
Ved å lagre ditt boligsøk hos oss får du beskjed når vi har en bolig som ligner denne, før den legges ut på markedet!

