Ullavegen 278
1 650 000 kr
209 m²
5 soverom
Solgt

Haramsøy
Frittliggende enebolig på utsiktstomt | 5 soverom | Garasje
Prisantydning
1 650 000 krOmkostninger
62 240 krTotalpris
1 712 240 kr
Pris
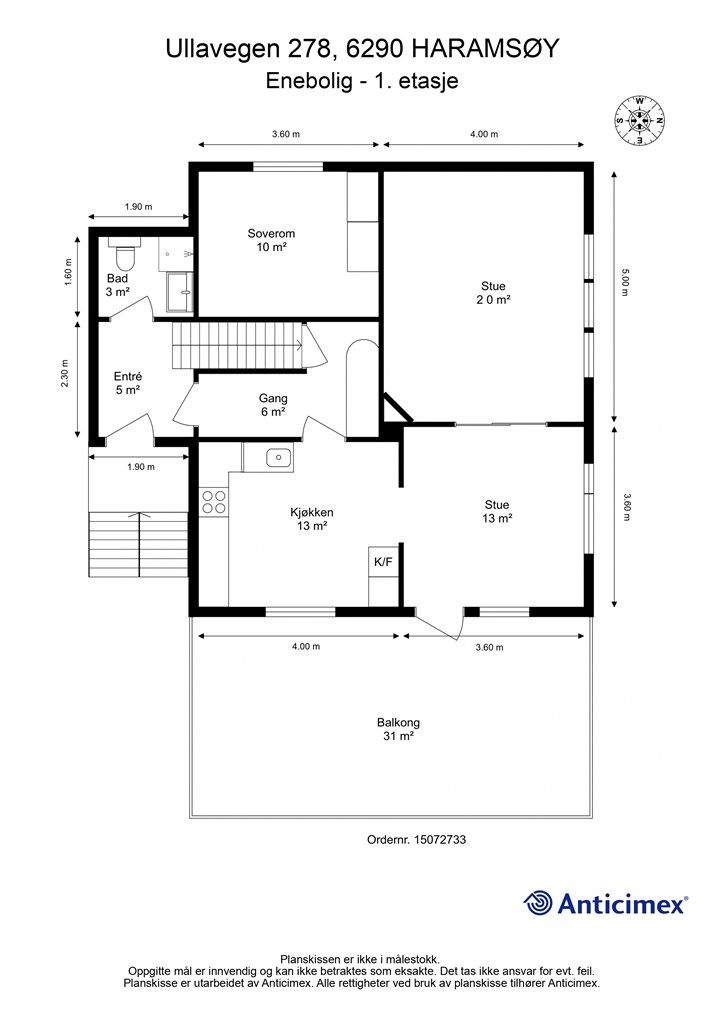
Bruksareal
229 m²BRA-I (internt bruksareal)
209 m²BRA-E (eksternt bruksareal)
20 m²TBA (terrasse-balkongareal)
31 m²
Areal
Etasje
3Byggeår
1958Soverom
5 soveromBad
1 badTomteareal
1 000 m² (eiet)Type
Enebolig - FrittliggendeEierform
EietFasiliteter
Garasje/P-plass og Balkong/TerrasseEnergimerke
Oransje G
Nøkkelinfo
Unngå doble boligrenter
Vi tilbyr gunstig forsikring.
Vurderer du utleie?
Få et tilbud fra Utleie KrogsveenHva koster lånet?
Sjekk estimert lånekostnadBeskrivelse
Kort om eiendommen
Eiendomsmegler Christian Nogva Aarseth har gleden av å presentere Ullavegen 278. Boligen går over 3 plan med god takhøyde. God beliggenhet på Haramsøya i et rolig område. Flott utsikt. Boligen inneholder blant annet 5 luftige soverom og 2 stuer. Uinnredet kjeller. Tilbygget garasje. Stor solrik veranda med utg. fra stue og herlig sjøutsikt. Flott opparbeidet hage.
Eiendommen Solstad 2 km vest for Austnes i område med spredt bebyggelse. Eiendommen grenser mot Ullavegen og har flat adkomst fra denne. Kort vei til barnehage, skole og Nordøyhallen. Idrettsanlegg med grasbane og aktivitetsområde i skoleområdet. Flott turterreng på fjellet like ved, med merkede turstier. Småbåthavn på Austnes med gode muligheter for båtliv. Kort vei til dagligvare og cafè. Offentlig transport rett ved huset.
Område
Legg til steder som er viktige for deg
På flyttefot? Tenk kjøp og salg samtidig.
Få din egen rådgiver gjennom hele kjøps- og salgsprosessen. Det starter med en verdivurdering.
Unngå doble boligrenter
Vi tilbyr gunstig forsikring.
Vurderer du utleie?
Få et tilbud fra Utleie KrogsveenHva koster lånet?
Sjekk estimert lånekostnadVil du varsles om lignende boliger?
Ved å lagre ditt boligsøk hos oss får du beskjed når vi har en bolig som ligner denne, før den legges ut på markedet!


































