Bærumsveien 209B
8 200 000 kr
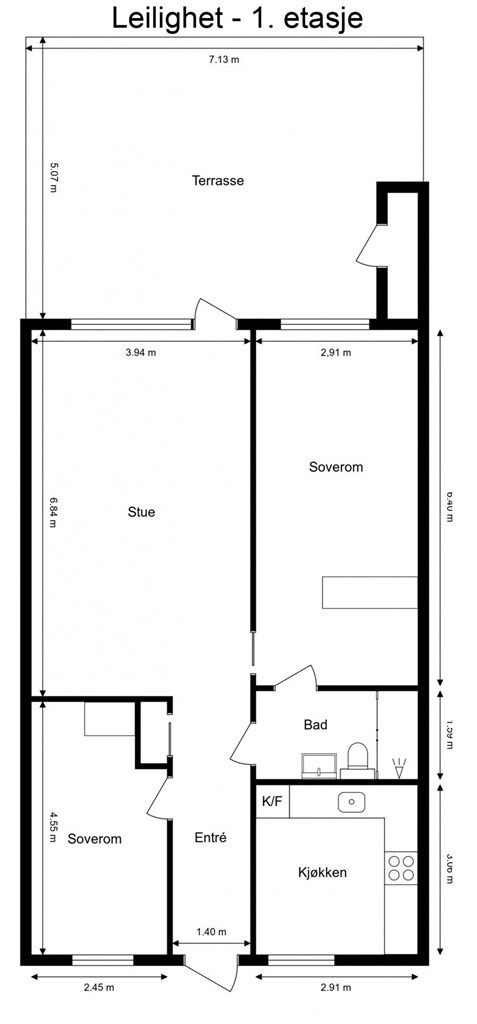
80 m²
2 soverom
Solgt

Presenteres av
Glenn SalomonsenBekkestua
Pen 3 roms selveier oppusset i 2024/2025 med trappefri adkomst. Solrik markterrasse. Heis og garasje
Prisantydning
8 200 000 krOmkostninger
216 040 krTotalpris
8 416 040 kr
Pris
Bruksareal
87 m²BRA-I (internt bruksareal)
80 m²BRA-E (eksternt bruksareal)
7 m²TBA (terrasse-balkongareal)
35 m²
Areal
Etasje
1Byggeår
1997Soverom
2 soveromBad
1 badType
EierleilighetEierform
EierseksjonFasiliteter
Garasje/P-plass og Balkong/TerrasseFellesutgifter
3 783 krEnergimerke
D
Nøkkelinfo
Unngå doble boligrenter
Vi tilbyr gunstig forsikring.
Vurderer du utleie?
Få et tilbud fra Utleie KrogsveenHva koster lånet?
Sjekk estimert lånekostnadBeskrivelse
Kort om eiendommen
Velkommen til Bærumsveien 209B!
Innbydende 3-roms pusset opp i 2024/2025. Leiligheten har en gjennomgående og fin planløsning med gode vindusflater som slipper inn naturlig lys til rommene. Det er enkel trappefri adkomst til leiligheten med egen utvendig inngang. Her vil du bo sentralt, men likevel rolig og tilbaketrukket med alle Bekkestuas servicetilbud rett utenfor døra.
- Modernisert baderom m. flis på flis og ny innredning høst 2024
- IKEA kjøkken m. hvitevarer og varmtvannsbereder høst 2024
- Nytt laminatgulv og nymalte vegger og tak
- Solrik terrasse på 35 kvm
- Mitsubishi varmepumpe fra 2025
- Garasjeplass m. lademulighet
- Utebod på terrassen 3 kvm + Bod i kjeller 4 kvm
- 5 minutters gange til t-bane,buss og Bekkestua senter
- Rolig, sentralt og kort vei til turterreng
Område
Legg til steder som er viktige for deg
På flyttefot? Tenk kjøp og salg samtidig.
Få din egen rådgiver gjennom hele kjøps- og salgsprosessen. Det starter med en verdivurdering.
Unngå doble boligrenter
Vi tilbyr gunstig forsikring.
Vurderer du utleie?
Få et tilbud fra Utleie KrogsveenHva koster lånet?
Sjekk estimert lånekostnadVil du varsles om lignende boliger?
Ved å lagre ditt boligsøk hos oss får du beskjed når vi har en bolig som ligner denne, før den legges ut på markedet!
På flyttefot? Slik gjør vi det enklere for deg
Skreddersydd flyttepakke
Vi fikser håndverkere, vask, pakking, lagring og transport, og legger ut for utgiftene underveis.
Hjelp med både kjøp og salg
Hos oss har du din egen rådgiver gjennom hele kjøps- og salgsprosessen.
Hjelp til finansiering
Vårt samarbeid med BN Bank sikrer deg rask og løsningsorientert hjelp, til konkurransedyktige betingelser.










































