Trudvangveien 6B
14 500 000 kr
200 m²
4 soverom
Solgt

Majorstuen/Fagerborg
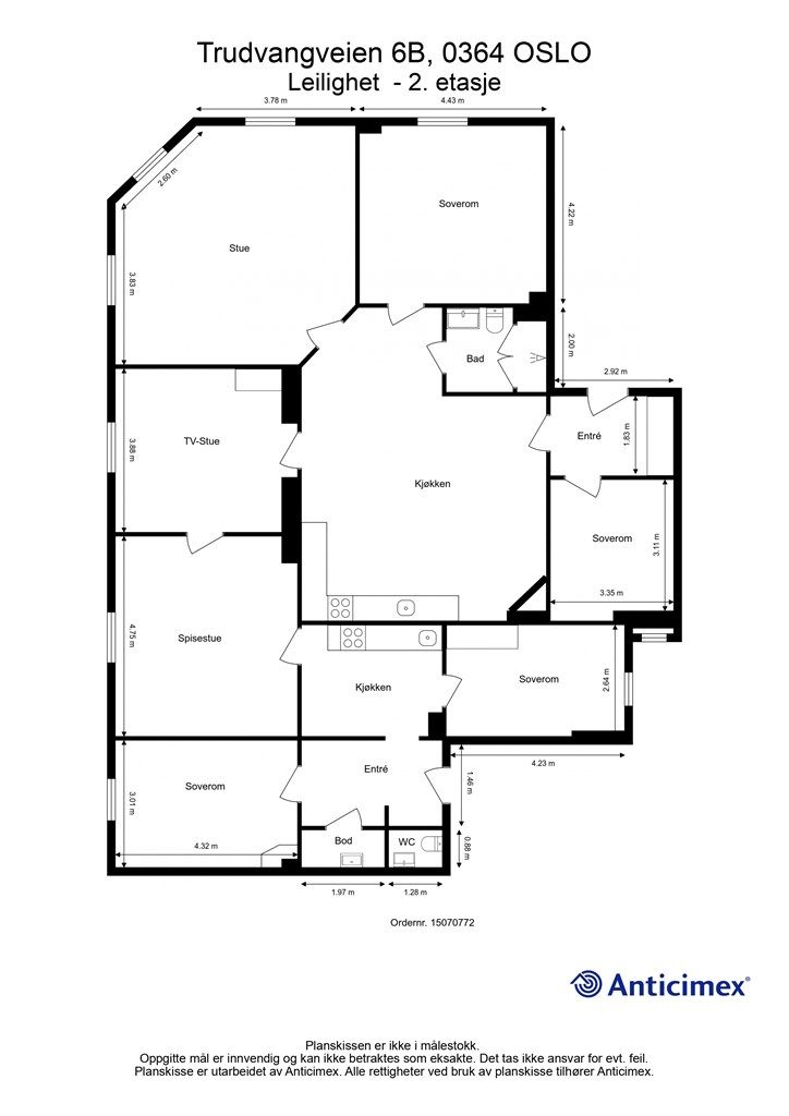
Stor 7-roms hjørneleilighet med masse potensiale, 208 m², 4 soverom, 3 stuer, 2 kjøkken og 2 bad, midt på Majorstuen!
Prisantydning
14 500 000 krOmkostninger
373 540 krTotalpris
14 873 540 kr
Pris
Bruksareal
208 m²BRA-I (internt bruksareal)
200 m²BRA-E (eksternt bruksareal)
8 m²
Areal
Etasje
2Byggeår
1925Soverom
4 soveromBad
2 badType
EierleilighetEierform
EierseksjonFellesutgifter
8 467 krEnergimerke
Grønn G
Nøkkelinfo
Unngå doble boligrenter
Vi tilbyr gunstig forsikring.
Vurderer du utleie?
Få et tilbud fra Utleie KrogsveenHva koster lånet?
Sjekk estimert lånekostnadBeskrivelse
Kort om eiendommen
Velkommen til Trudvangveien 6B - En stor selveierleilighet med ettertraktet beliggenhet; høyt, fritt, midt på Majorstuen. Hjørneleiligheten har innholdsrik planløsning og består av to entréer, tre stuer, to kjøkken, to bad og fire soverom. Leiligheten har behov for oppussing grunnet slitasjegrad.
Leiligheten har tidligere vært utleid og benyttet som to leiligheter med hhv 3 og 4 soverom, adskilt med branndør mellom de to delene.
Sameiet har stor bakgård til glede for beboerne og en trygg lekeplass for barna. Mulighet for parkeringsleie.
Trudvangveien er en svært hyggelig del av Majorstuen med idylliske gater og ærverdig bebyggelse med kort vei til tur- og grøntområder, servicetilbud samt offentlig kommunikasjon.
Fyring, varmtvann, kabel-tv og internett er inkl. i felleskostnadene
Område
Legg til steder som er viktige for deg
På flyttefot? Tenk kjøp og salg samtidig.
Få din egen rådgiver gjennom hele kjøps- og salgsprosessen. Det starter med en verdivurdering.
Unngå doble boligrenter
Vi tilbyr gunstig forsikring.
Vurderer du utleie?
Få et tilbud fra Utleie KrogsveenHva koster lånet?
Sjekk estimert lånekostnadVil du varsles om lignende boliger?
Ved å lagre ditt boligsøk hos oss får du beskjed når vi har en bolig som ligner denne, før den legges ut på markedet!

