Hønsisletta 5
3 850 000 kr
66 m²
2 soverom
Solgt

Ask
Ny 3-roms leilighet beliggende sentralt på Ask | Vannbåren varme | Parkering i garasjeanlegg
Prisantydning
3 850 000 krOmkostninger
107 290 krTotalpris
3 957 290 kr
Pris
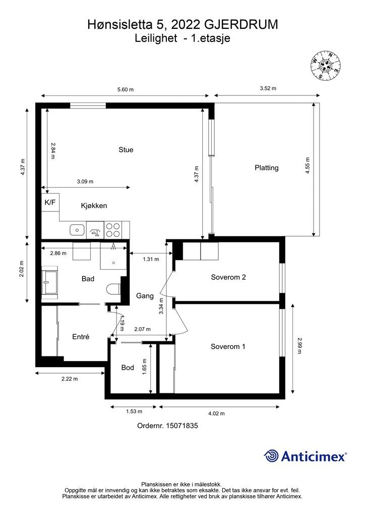
Bruksareal
71 m²BRA-I (internt bruksareal)
66 m²BRA-E (eksternt bruksareal)
5 m²TBA (terrasse-balkongareal)
16 m²
Areal
Etasje
1Byggeår
2020Soverom
2 soveromBad
1 badType
EierleilighetEierform
EierseksjonFellesutgifter
3 879 krEnergimerke
Grønn B
Nøkkelinfo
Unngå doble boligrenter
Vi tilbyr gunstig forsikring.
Vurderer du utleie?
Få et tilbud fra Utleie KrogsveenHva koster lånet?
Sjekk estimert lånekostnadBeskrivelse
Kort om eiendommen
Velkommen til Hønsisletta 5! – en stilren og moderne eierleilighet med gjennomtenkt planløsning. Leiligheten ligger tilbaketrukket, men sentralt, med store vindusflater som gir en lys og luftig atmosfære.
Bygget er oppført i 2020 og holder en gjennomgående god standard, med blant annet vannbåren gulvvarme, balansert ventilasjon og heis til alle plan. I tillegg medfølger parkeringsplass i oppvarmet garasje. Leiligheten ligger i første etasje og har en romslig markterrasse på ca. 16 kvm. med gode solforhold og en flott utsikt.
Høydepunkter:
-Leilighet i 1.etg med markterrasse
-Heis til alle plan
-God planløsning
-2 soverom
-Kjøkken og stue i åpen løsning
-Nærhet til kollektiv transport
-Garasjeplass
Velkommen til Visning!
Område
Legg til steder som er viktige for deg
På flyttefot? Tenk kjøp og salg samtidig.
Få din egen rådgiver gjennom hele kjøps- og salgsprosessen. Det starter med en verdivurdering.
Unngå doble boligrenter
Vi tilbyr gunstig forsikring.
Vurderer du utleie?
Få et tilbud fra Utleie KrogsveenHva koster lånet?
Sjekk estimert lånekostnadVil du varsles om lignende boliger?
Ved å lagre ditt boligsøk hos oss får du beskjed når vi har en bolig som ligner denne, før den legges ut på markedet!

