Løypevegen 9
4 950 000 kr
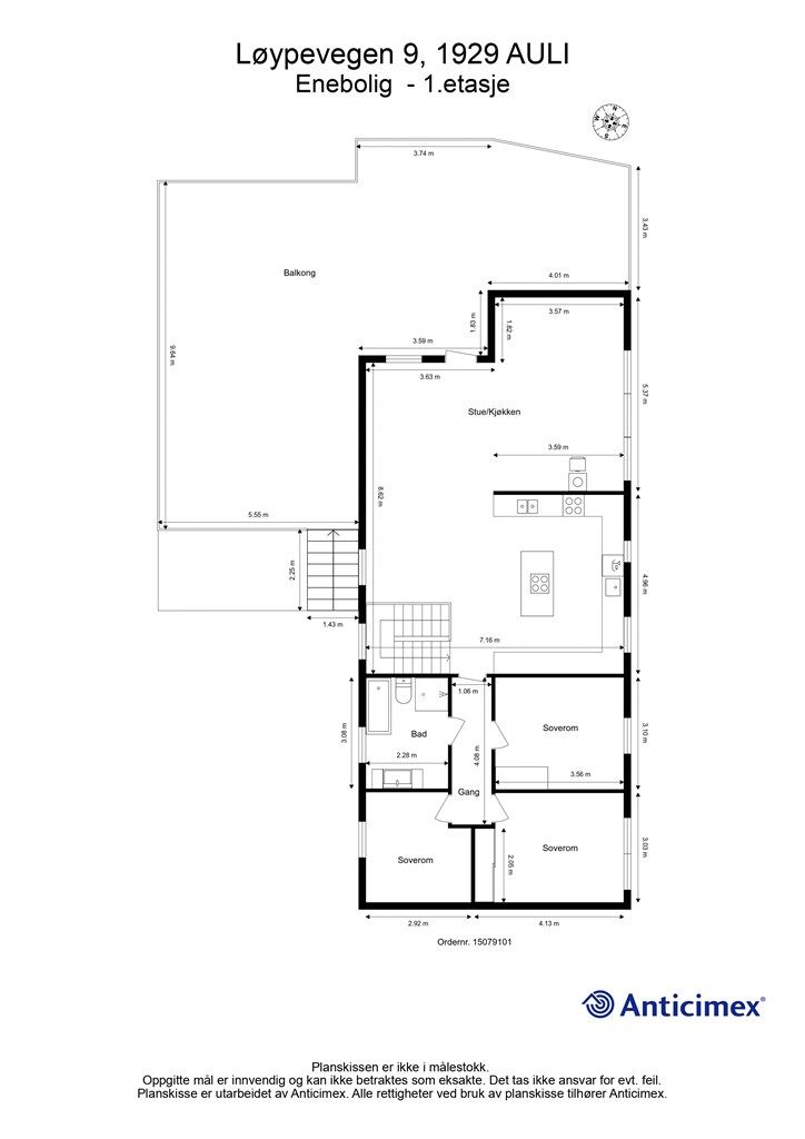
221 m²
4 soverom
Solgt

Presenteres av
Elias KarlsenAulifeltet
Flott enebolig o/2plan i barnevennlig område | Oppgradert m/ kjøkken fra 2019 og 4 sov | Dobbel garasje og stor terrasse
Prisantydning
4 950 000 krOmkostninger
144 740 krTotalpris
5 094 740 kr
Pris
Bruksareal
252 m²BRA-I (internt bruksareal)
221 m²BRA-E (eksternt bruksareal)
31 m²TBA (terrasse-balkongareal)
88 m²
Areal
Byggeår
1984Soverom
4 soveromBad
2 badTomteareal
793 m² (eiet)Type
Enebolig - FrittliggendeEierform
EietFasiliteter
Garasje/P-plass og Balkong/TerrasseEnergimerke
Nøkkelinfo
Unngå doble boligrenter
Vi tilbyr gunstig forsikring.
Vurderer du utleie?
Få et tilbud fra Utleie KrogsveenHva koster lånet?
Sjekk estimert lånekostnadBeskrivelse
Kort om eiendommen
Velkommen til Løypevegen 9!
En innholdsrik enebolig med gode solforhold og utsikt, beliggende i et etablert boligområde på Auli.
Eiendommen ligger i et rolig og barnevennlig nabolag, med kort vei til skole, barnehager og togstasjon. Boligen er en selveier og går over to plan med en familievennlig planløsning og med mangle bruksmuligheter. Tomten er opparbeidet med pene plenarealer, og det er en dobbelgarasje på 31 m².
Høydepunkter:
Kjøkken fra 2019 med integrerte hvitevarer i åpen løsning
Stor balkong på 88 m² med utgang fra stue/kjøkken
Peis i stuen i 1. etasje og peisovn i stuen i underetasjen
Dobbelgarasje på 31 kvm
Vinduer og balkongdør fra 2018
Luft-til-luft-varmepumpe fra 2019
Velkommen til visning!
Område
Legg til steder som er viktige for deg
På flyttefot? Tenk kjøp og salg samtidig.
Få din egen rådgiver gjennom hele kjøps- og salgsprosessen. Det starter med en verdivurdering.
Unngå doble boligrenter
Vi tilbyr gunstig forsikring.
Vurderer du utleie?
Få et tilbud fra Utleie KrogsveenHva koster lånet?
Sjekk estimert lånekostnadVil du varsles om lignende boliger?
Ved å lagre ditt boligsøk hos oss får du beskjed når vi har en bolig som ligner denne, før den legges ut på markedet!
På flyttefot? Slik gjør vi det enklere for deg
Skreddersydd flyttepakke
Vi fikser håndverkere, vask, pakking, lagring og transport, og legger ut for utgiftene underveis.
Hjelp med både kjøp og salg
Hos oss har du din egen rådgiver gjennom hele kjøps- og salgsprosessen.
Hjelp til finansiering
Vårt samarbeid med BN Bank sikrer deg rask og løsningsorientert hjelp, til konkurransedyktige betingelser.




















































