Kirkekleiva 20
2 850 000 kr
127 m²
4 soverom
Komplett salgsoppgave

Tvedestrand sentrum
Sørlandshus i Tvedestrand sentrum - Gangavstand til sjøen og byens fasiliteter - Solrik veranda (kveldssol)
Prisantydning
2 850 000 krOmkostninger
92 240 krTotalpris
2 942 240 kr
Pris
Bruksareal
129 m²BRA-I (internt bruksareal)
127 m²BRA-E (eksternt bruksareal)
2 m²TBA (terrasse-balkongareal)
10 m²
Areal
Etasje
3Byggeår
1900Soverom
4 soveromBad
1 badTomteareal
75 m² (eiet)Type
Enebolig - FrittliggendeEierform
EietFasiliteter
Balkong/Terrasse
Nøkkelinfo
Unngå doble boligrenter
Vi tilbyr gunstig forsikring.
Vurderer du utleie?
Få et tilbud fra Utleie KrogsveenHva koster lånet?
Sjekk estimert lånekostnadBeskrivelse
Kort om eiendommen
Innhold og byggemåte
Innhold og byggemåte
Eiendommen
Kirkekleiva 20, 4900 TVEDESTRAND
Kommunenummer 4213, gårdsnummer 74, bruksnummer 82, ideell andel 1/1
Innhold
Totalt bruksareal BRA: 129 kvm
BRA-i:
Enebolig:
1. etasje 54 kvm: Entré, bad, vaskerom og to soverom.
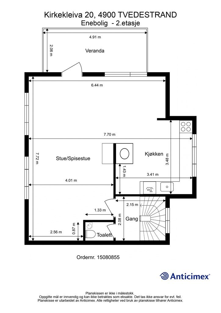
2. etasje 54 kvm: Gang, toalettrom, stue/spisestue og kjøkken.
Loftsetasje 19 kvm: Gang og to soverom.
BRA-e:
1. etasje 2 kvm: Bod (inngang fra utsiden).
Åpent areal:
2. etasje 10 kvm: Veranda.
Loftsetasjen har et totalt gulvareal (GUA) på 40 kvm, men grunnet skråtak/lav takhøyde er kun 19 kvm av arealet måleverdig som bruksareal. De delene av arealene som har lav himlingshøyde (ALH) utgjør 21 kvm. Det er tre knekott på loftet.
Det finnes kun tegning av 2. etasje i følge kommunen. Se pkt. ferdigattest for nærmere informasjon.
Vedlagte plantegninger er ikke målbare. De oppgitte arealer er hentet fra rapport med befaringsdato 09.04.2026 utført av Anticimex AS v/Halvard Grina. Arealene er beregnet og rom er definert etter dagens faktiske bruk, uavhengig av hva som er godkjent av bygningsmyndighetene.
Byggemåte
Selger har innhentet en tilstandsrapport av boligen. Dersom det er registrert avvik, er disse klassifisert med tilstandsgrader (TGIU, TG2 og/eller TG3). Kjøper overtar ansvaret for de opplysninger som fremkommer av salgsdokumentasjonen, og kan ikke gjøre gjeldende som mangel noe som burde vært kjent eller som ikke kan anses å ha betydning for avtalen.
Bygningen er iht. tilstandsrapport en enebolig oppført i ca. 1900. Grunnmuren er av naturstein, og deler av boligens bakside er understøttet av stålbjelker og søyler. Bygget er oppført med krypkjeller. Yttervegger er av trekonstruksjoner kledd med stående trekledning, og det er ikke etablert luftespalte bak kledningen. Etasjeskillere er av trekonstruksjoner. Bygningen har et saltak i trekonstruksjon, tekket med takstein av ukjent årstall. Renner, nedløp og pipebeslag er i metall. Vinduene har karmer av tre, hovedsakelig med to-lags glass, hvorav noen er fra 2006/2007. Ytterdør og terrassedør er også i tre, og terrassedøren er fra 2006/2007. Det er en veranda på 10 m² i trekonstruksjon med utgang fra stuen. Boligen har en teglsteinspipe fra byggeår med ildsteder i 2. etasje og loftsetasjen. Deler av VVS-anlegget ble oppgradert i 2006/2007.
Inntil boligen er det oppført en bod med yttervegger i trekonstruksjon kledd med stående trekledning. Taket er et pulttak tekket med profilerte stålplater.
Det elektriske anlegget har sikringsskap plassert i trappeoppgangen mellom 1. og 2. etasje, med automatsikringer. Store deler av anlegget er fra 2006/2007. Det er gjennomført el-tilsyn, og rapport datert 07.07.2025 viste ingen feil eller mangler.
Boligen har godkjent slukkeutstyr og tilstrekkelig med røykvarslere.
Vesentlige forhold som må tas hensyn til (TG 3 – strakstiltak anbefales):
Krypkjeller (innvendig inspeksjon): TG 3. Påvist kritisk høyt fuktnivå (>20 % i treverk), råteskader i opplektet gulv, fukt fra grunnen, salt/kalkutslag på grunnmur, manglende ventilasjon og damp sperre. Symptomer på borebiller. Fuktproblematikken påvirker også etasjeskiller og våtrom i 1. etasje. Anbefales ytterligere kartlegging og utbedring.
Drenering: TG 3. Funksjonssvikt pga. alder (fra byggeår). Fuktgjennomslag i grunnmur og krypkjeller. Anbefales utbedring/utskifting.
Bod (inngang fra utsiden): TG 3. Råteskader i fasade og ytterdør. Anbefales utbedring/utskifting av skadede materialer.
Sjablongmessige prisanslag (TG 3):
Krypkjeller: kr 0–10 000 (videre undersøkelser)
Drenering: kr 100 000–300 000
Bod: kr 0–10 000
Andre vesentlige avvik (TG 2) som bør noteres:
Alder på vannrør, avløpsrør og varmtvannsbereder ? usikker fremtidig funksjon.
Utilstrekkelig ventilasjon i flere rom (inkl. stue, soverom og loft).
Eldre taktekking og takkonstruksjon med usikker ventilasjon og slitasje.
Skjevheter i etasjeskiller og yttervegger.
Fallforhold på bad/vaskerom, manglende lekkasjesikring og eldre tettesjikt.
Mindre avstand mellom kledning og terreng, manglende gnagersikring og lufting bak kledning.
HMS-merknader og øvrig:
Eldre el-anlegg (siste tilsyn 2025 – ingen avvik registrert i tilsynsrapporten). Pipe og ildsteder med mindre skader. Veranda har rekkverkshøyde under dagens krav. Ingen byggetegninger eller ferdigattest ble fremlagt.
Viktig:
Denne oppsummeringen er forkortet og ikke uttømmende. Tilstandsrapporten er inntatt i salgsoppgaven. Rapporten inneholder informasjon om eventuelle avvik og konsekvensen av disse. Dersom det er registrert avvik med TG3, har den bygningssakkyndige i tillegg gitt et anslag på hva det vil koste å utbedre disse. Ettersom kjøper regnes å være kjent med forhold som tydelig fremgår av tilstandsrapporten, oppfordres du til å sette deg grundig inn i rapporten i sin helhet.
Selger beskriver også i egenerklæringsskjema:
Selger opplyser at det er observert vann i kjellergulvet og noe mugg/råte på yttervegg i kjeller. Det ble utført arbeid på bad i 2006 av faglærte (rørlegger og maler), inkludert våtromsplater, membran og fliser. Samme år ble det utført arbeid på det elektriske anlegget av faglærte, med nytt inntak, sikringsskap og diverse installasjoner. Også rør på bad og avløp til kloakk ble fornyet av faglærte i 2006. Det er utført malerarbeider av ufaglærte i 2025. Selger har dokumentasjon på arbeidene fra 2006.
Moderniseringer og påkostninger
Følgende moderniseringer er foretatt de senere år:
2022:
- Installert luft-til-luft varmepumpe i 1. etasje.
2016:
- Installert luft-til-luft varmepumpe i 2. etasje.
2007:
- Bad i 1. etasje oppgradert (våtromsplater, membran, fliser), utført av Malefirma Hansen og Far AS og Brd. Vatne AS. Samsvarserklæring foreligger.
- Vaskerom i 1. etasje oppgradert (våtromsplater, membran, fliser), utført av Malefirma Hansen og Far AS og Brd. Vatne AS. Samsvarserklæring foreligger.
- Toalettrom i 2. etasje oppgradert (våtromsplater, membran, fliser), utført av Malefirma Hansen og Far AS og Brd. Vatne AS. Samsvarserklæring foreligger.
- Deler av vannrøranlegget oppgradert/fornyet, inkludert nye rør på bad, utført av Brd. Vatne AS.
- Deler av avløpsrøranlegget oppgradert/fornyet, inkludert avløp kloakk, utført av Brd. Vatne AS.
- Store deler av det elektriske anlegget oppgradert (nytt inntak, sikringsskap, diverse installasjon), utført av Tvedestrand Elektro AS. Samsvarserklæring foreligger.
2025:
- Malerarbeider på fasade.
2026:
- Det er bestilt en sjekk fra Anticimex på om borebiller er aktive og omfang rundt dette. De skal befare eiendommen 27.04.26, teksten oppdateres ved tilbakemelding.
Eier opplyser i tillegg om at stuen ble pusset opp for 6-7 år siden. Det er også skiftet gulv på soverommet i loftsetasjen. Sørveggen ble ny i 2018 inkludert etterisolering, ny kledning og nye vinduer. Veranda ble bygget i 2003.
Det understrekes at enkelte oppgraderingers år er basert på hukommelse og kan avvike noe. Det tas spesifikt forbehold om at det kan være avvik på noe.
Standard
Enebolig oppført ca. 1900. Deler av det elektriske anlegget og røropplegget ble fornyet i 2006/2007, i samme periode som bad, vaskerom og toalettrom ble oppgradert. Det er påvist betydelige avvik i bygningskonstruksjonen. Dreneringen er fra byggeår og har funksjonssvikt. Det er registrert fukt- og råteskader samt spor av borebiller i krypkjelleren. Yttertak, fasade og vinduer har et generelt vedlikeholds- og oppgraderingsbehov. Loftsetasjen mangler godkjente rømningsveier. Det er ikke fremlagt ferdigattest for boligen.
KJØKKEN:
Innredning fra 1988 med profilerte fronter og benkeplate i laminat. Integrert stekeovn, platetopp og oppvaskmaskin. Ventilator i overskap. Kjøkkenet har et moderniseringsbehov.
BAD 1. ETASJE:
Rommet ble oppgradert i 2006/2007. Innredning fra Solfjeld Møbler AS med vegghengt servantinnredning og speilskap. Vegghengt toalett, dusjnisje med glassdører og badekar. Mekanisk avtrekksvifte. Det er påvist fukt og råte i underliggende konstruksjoner (krypkjeller), og rommet har et oppgraderingsbehov.
VASKEROM 1. ETASJE:
Rommet ble oppgradert i 2006/2007. Vegghengt utslagsvask og opplegg for vaskemaskin. Mekanisk avtrekksvifte. Det er påvist fukt og råte i underliggende konstruksjoner (krypkjeller), og rommet har et oppgraderingsbehov.
TOALETTROM 2. ETASJE:
Rommet ble oppgradert i 2006/2007. Innredet med vegghengt servant og gulvstående toalett. Mekanisk avtrekksvifte.
Overflater:
Gulv: Parkett, fliser, gulvbelegg, teppe, laminat og heltre gulvbord.
Vegger: Malte panelplater, malt panel, tapet, papp og fliser.
Himling: Malt panel, malte flater, takplater, papp og fliser.
Lagring:
Boligen har en utvendig bod på 2 m² med inngang fra utsiden. I tillegg er det lagringsplass i knekott i loftsetasjen og i kjeller. I kjeller står en nyere varmtvannsbereder på ca. 250 liter.
Annet: Det er sentralstøvsuger i huset som dekker alle tre etasjer.
For fullstendig teknisk informasjon om boligen, se punktet Byggemåte i salgsoppgaven.
Løsøre og tilbehør
Følgende hvitevarer medfølger i handelen: Oppvaskmaskin, komfyr og koketopp.
Løsøre som ikke medfølger salget: Sonos-anlegg.
Vi viser ellers til liste fra Norges Eiendomsmeglerforbund som gjelder fra 01.01.2020 angående løsøre og tilbehør.
Oppvarming
Oppvarming via elektrisk og vedfyring. Det er installert luft-til-luft-varmepumpe fra 2022 i 1. etasje og en fra 2016 i 2. etasje. Videre er det gulvvarme på bad i 1. etasje og i entré i 1. etasje. Boligen har peisovn plassert i stue/spisestue i 2. etasje og på største soverom i loftsetasje.
Dersom beboelsesrom ikke har vegg- eller fastmonterte varmekilder ved visning, følger dette heller ikke med.
Ferdigattest/brukstillatelse
Eiendommen er oppført ca. 1900 (antatt, men med stor usikkerhet). Det foreligger ikke midlertidig brukstillatelse eller ferdigattest i kommunens arkiv. Boligen er bygget på (tilbygg med kjøkken og bad), ukjent årstall.
Dette er før bygningsloven trådte i kraft for hele landet i 1965. Det er ikke uvanlig at det i mange kommuner er mangelfulle arkiv for tiden før 1965.
Det gjøres oppmerksom på at det ikke lenger utstedes ferdigattest på tiltak det er søkt om før 1998 jf. plan- og bygningsloven § 21-10. Kommunen vil ikke kreve ferdigattest for disse tiltakene og vil avvise eventuelle søknader. Bestemmelsen innebærer ikke at tiltak med manglende søknad blir lovlige, men at man ikke trenger å avslutte gamle byggesaker. Normalt sett kreves ferdigattest for alle søknadspliktige tiltak som gjøres etter plan- og bygningsloven.
Det foreligger en byggetillatelse datert 28.09.1967 for installasjon av W.C. i 2. etasje. Tillatelsen ble gitt på vilkår om at helserådet ikke hadde noe å bemerke, et vilkår som ble oppfylt ved vedtak fra Tvedestrand helseråd datert 01.12.1967.
Det foreligger godkjente byggetegninger for eiendommens 2. etasje hvor hele etasjen er definert som oppholdsrom, fremlagt for Tvedestrand Bygningsråd 19.09.1967. Det foreligger ikke tegninger for 1. etasje eller loftsetasjen. Tegningen som foreligger kan mottas ved henvendelse.
Det er noen avvik mellom godkjente byggetegning og dagens planløsning. I tillegg er det utført endringer og oppført bod som ikke er dokumentert i kommunens arkiver.
- Åpen løsning mellom stue og kjøkken: Veggen mellom stue og kjøkken i 2. etasje er fjernet. Endring av bærende konstruksjoner er søknadspliktig, det er ikke kjent om det var en bærevegg.
- Veranda: Det er oppført en veranda på 10 m² med utgang fra stuen i 2. etasje. Eier opplyser at denne er søkt om og godkjent av kommunen i 2003. Megler har etterspurt dokumentasjon fra kommunen.
- Utvendig bod: Det er oppført en utvendig bod på 2 m² på bakkeplan. Det foreligger ikke dokumentasjon på at denne er byggemeldt.
- Innredning av 1. etasje og loft: Boligen er innredet med soverom i 1. etasje og på loftet. Det foreligger ikke tegninger som viser hva disse etasjene opprinnelig var godkjent som. Bruksendring fra tilleggsdel (f.eks. bod/loft) til hoveddel (soverom) er søknadspliktig. Takhøyden på soverom i 1. etasje og på loftet er målt til henholdsvis 1,98 meter og 1,97 meter. Det er lavere enn dagens krav (2 meter).
- Matrikkelen er ufullstendig (normalt på eldre hus).
Kjøper overtar alt ansvar, kostnad og risiko for dette videre.
Tinglyste heftelser og rettigheter
Eiendommen overdras fri for pengeheftelser.
Kommunen har legalpant i eiendommen for forfalte krav på eiendomsskatt og kommunale avgifter/gebyrer.
1965/158-2/35 01.02.1965 LIVSVARIG BORETT
Kommentar: Rettighetshaver har gått bort, og er derfor sendt til sletting hos kartverket da den er personlig og ikke lenger anvendelig.
Kjøpers bank vil få prioritet etter ovennevnte heftelser og servitutter.
Eventuell adgang til utleie
Eiendommen har ikke separat utleieenhet. Det vil normalt være anledning til utleie av hele eiendommen eller enkeltrom, såfremt utleiearealet er bygningsmessig godkjent for varig opphold og har forsvarlige radonnivåer.
Diverse
Byggeår er ukjent. I følge historisk foto ser det ut som at huset er tegnet inn i kart/tegning fra 1890, men selger har tidligere blitt fortalt at huset er fra rundt år 1900. Det tas forbehold om faktisk byggeår, da det ikke er funnet dokumentasjon som kan bekrefte noe mer nøyaktig enn dette.
Energimerking
Denne boligen er energimerket. På en skala fra A til G, der A er best, har denne boligen oppnådd G (en normalbolig vil gjerne ligge i området C-F). Kopi av energiattest ligger vedlagt i salgsoppgaven eller kan fås ved henvendelse til megler.
Beliggenhet og tomteforhold
Beliggenhet og tomteforhold
Beliggenhet
Her i Kirkekleiva bor du midt i den historiske, hvite trehusbebyggelsen som gir Tvedestrand sin idylliske sørlandssjarm. Fra eiendommen er det kun et par minutters gange ned til Hovedgata og torvet, med sine nisjebutikker, apotek, matbutikk og vinmonopol blant annet. De daglige innkjøpene gjør du enkelt hos Joker, eller Coop Xtra som ligger like i nærheten. Til Bergsmyr tar det knapt fem minutter i bil fra eiendommen. Der finnes det storsenter, matbutikker, Europris, Felleskjøpet, Montér og mye mer.
Hverdagen er praktisk med gangavstand til det meste. Lyngmyr ungdomsskole og Tvedestrand videregående skole er innenfor en 10-15-minutters spasertur, og det er flere barnehager i nærområdet, som Lyngbakken og Bronsbu. Busstoppet på Øvre torv gir gode forbindelser i regionen, og for lengre reiser ligger Grenstøl bussterminal fem minutters kjøretur unna. Fra Grenstøl er det få meter til E18.
Området byr på et aktivt liv for alle aldre. Tvedestrand skole, Aktivitetshuset og ballbinge ligger i nabolaget, og treningssenteret SKY Fitness er også innen rekkevidde. Den korte veien ned til havnen åpner for båtliv og bading om sommeren. Det er også badepark i Tjenna med sandstrand og mye aktivitet i sommersesong. Det er mulighet for leie av båtplass i sentrumshavna. Tvedestrand byr på magiske perler som Lyngør, Sandøya og Borøy blant annet. Det er svaberg, sjø og idyll i sommersesong, men også mange aktiviteter i vintersesong i nærområdet.
Til Arendal sentrum tar det ca. 20 minutter fra eiendommen. Til Risør ca. 30 minutter.
Adkomst
Se kart eller kontakt megler for veibeskrivelse.
Beskrivelse av tomt
Eiertomt på 75,1 kvm. Tomten er opparbeidet med asfalt og bruddskifer. Oppgitt tomteareal er hentet fra angitt areal i matrikkel/Statens Kartverk. Oppgitt/anslått areal kan avvike fra nøyaktig areal. I følge grunnkart ser det ut som en større del av eiendommen er utenfor tomtegrensen. Det understrekes at eldre bebyggelse generelt i området har eldre oppmåling og derav, ofte, større avvik/bygningsmasse utenfor tomtegrense. Grunnkart er vedlagt salgsoppgaven og viser til middels nøyaktig eiendomsgrense.
Parkering
Det tilhører ingen parkering på egen tomt. Det er betalt inn kr. 20.000,- i depositum for en stk. parkeringsplass ved Middelskolen (ca. 100 meter fra huset). Selger opplyser at depositum sikrer rettighet til å kjøpe p-plass til totalt kr. 200.000,-. Kjøper overtar selgers depositum til denne rettigheten (opsjon), slik at kjøper kan innfri parkeringsplassen etter nærmere avklaringer med selger av den.
Det skal ifølge selger opparbeides dreneringsgrøfter og tilrettelegges med strøm til parkering, samt asfalteres på sikt. Forespeilet tidspunkt for asfaltering er angitt til 2028. I mellomtiden ved kjøpt p-plass vil det kunne parkeres på tomten og retten skal ved endelig handel kunne tinglyses. Det opplyses om at det pr. i dag (16.04.26) er mulighet for kjøp av flere p-plasser til angitt pris, dette må videre avklares direkte med eier av Middelskolen. Det understrekes: Kirkekleiva 20 selges med rettighet til å kjøpe/opsjon på parkeringsplass, men kjøper må selv innløse denne etter nærmere avklaringer (kontrakt/rettsvern) med selger av p-plass til angitt pris kr. 180.000,- (totalt 200.000,- inkl. depositum).
Vei, vann og avløp
Eiendommen har adkomst via privat vei. Eiendommen er tilknyttet kommunalt ledningsnett via private stikkledninger. Eier er selv ansvarlig for private stikkledninger til boligen.
Regulerings-og arealplaner
Eiendommen er regulert til spesialområde for bevaring i henhold til reguleringsplan VERNEPLAN TVEDESTRAND (ID: 048), datert 16.06.1992, med tilhørende reguleringsbestemmelser.
Eiendommen omfattes av Kommuneplan 2017 - 2029 (ID: 143), vedtatt 07.02.2017. I kommuneplanen er 64 m² av eiendommen avsatt til boligbebyggelse (nåværende) og 12 m² er avsatt til sentrumsformål (nåværende).
Eiendommen er SEFRAK-registrert. SEFRAK (Sekretariatet for registrering av faste kulturminner) er et landsomfattende register over eldre bygninger og andre kulturminner. Registreringen innebærer ikke automatisk vern, men kommunen skal vurdere kulturhistorisk verdi før eventuelle riveløyver gis. Endringer på bygningens eksteriør kan kreve godkjenning.
Eiendommen berøres av følgende hensynssone:
- Hensynssone H570: Bevaring kulturmiljø
Den antikvariske verdifulle bebyggelsen skal søkes bevart, og områdets særpregede miljø videreføres. Ved reparasjon og annen istandsetting bør så lite som mulig av de gamle materialene skiftes ut. Bygningenes karakter m.h.t former, materialer, målestokk, proporsjoner, vindusinndeling, detaljer og annet, bør opprettholdes eller tilbakeføres til det opprinnelige. Yttervegger, tak, vinduer, dører og andre detaljer bør være tilsvarende eller tilpasses de originale. Det skal benyttes tradisjonelle materialer og byggeteknikker på byggverk av betydning for kulturmiljøet. Ny bebyggelse i området skal i størrelse og proporsjoner tilpasses den bevaringsverdige bebyggelsen i området. Nye uthus og garasjer skal ha en utforming og materialbruk som underordner seg hovedbebyggelsen. Terrengformasjoner, hagemurer og terrasser av betydning for kulturmiljøet skal bevares. Offentlige eller alminnelig brukte gangstier, trappeløp, snarveier, plasser m.v. skal bevares. Forhåndsuttalelse fra Aust-Agder fylkeskommune v/kulturminnevernsseksjonen skal innhentes før det gjøres vedtak om nye tiltak. Ny bebyggelse skal miljøtilpasses etter faglige kriterier.
Det er per d.d. ingen kjente plan- eller byggesaker med direkte innvirkning på eiendommen. Det nevnes likevel at Middelskolen er under ombygging til leiligheter, og arbeid der vil kunne foregå over en periode. Middelskolen ligger ca. 100 meter fra eiendommen.
Utsnitt av plan med tilhørende bestemmelser kan fås ved henvendelse til megler.
Økonomi
Økonomi
Kommunale utgifter
Kommunale avgifter er estimert til kr. 25.248,- for 2026. I dette inngår gebyr for vann, avløp, eiendomsskatt, renovasjon og feiing.
Andre kostnader:
Nåværende eier har et strømforbruk som tilsvarer ca. kr. 20.000,- pr. år / 25.000 kWh. pr. år. Norgespris følger eiendommen, se info nederst.
Nåværende eier har forsikring i IF som koster ca. kr. 7.500,- pr. år.
Boligen er tilknyttet Telenor (500/500) som leverandør av fiber og koster ca. kr 1.100,- pr. mnd. Det er usikkert om TV-tuner/dekoder følger med salget da dette må avklares med leverandøren.
Utgiftene er basert på nåværende eiers forbruk og avtaler.
Selger har avtalt Norgespris på strøm på eiendommen ut 2026, og denne er pt på kr 50 øre inkl mva. Nettleie, avgifter og påslag fra kraftleverandøren kommer i tillegg. Denne avtalen vil følge eiendommen i den avtalte perioden. Les mer om Norgespris her: https://www.regjeringen.no/no/aktuelt/legg-fram-lov-om-norgespris-pa-straum-og-fjernvarme/id3102642/
Formuesverdi
Formuesverdi for 2024 var kr 695 085,- ifølge skatteetaten. Beløpet forutsetter at eier bor fast i boligen (primærbolig).
Ved eventuell øvrig bruk av eiendommen (f.eks. fritidsbolig, pendlerbolig, utleieobjekt) var formuesverdien for 2024 kr 2 780 339,-.
Fra 2026 har Stortinget vedtatt en oppdatert modell for beregning av formuesverdi for primærbolig, så avvik kan forekomme.
For mer informasjon se skatteetaten.no
Omkostninger
2 850 000,00 Prisantydning
Omkostninger
71 250,00 Dokumentavgift til staten (2,5% av kjøpesum)
19 900,00 Gjensidige Boligkjøperpakke* (valgfritt)
545,00 Tinglysing panterettsdokument
545,00 Tinglysing skjøte
--------------------------------------------------------
72 340,00 (Omkostninger totalt (uten Gjensidige Boligkjøperpakke))
92 240,00 Omkostninger totalt (med Gjensidige Boligkjøperpakke))
--------------------------------------------------------
2 922 340,00 Totalpris inkl. omkostninger
2 942 240,00 Totalpris inkl. omkostninger (med Gjensidige Boligkjøperpakke)
--------------------------------------------------------
Totalpris inkl. omkostninger forutsetter kjøp til prisantydning.
Det tas forbehold om endringer i avgifter og gebyrer.
Tilbud om lånefinansiering
Megler formidler gjerne kontakt med rådgiver hos vår samarbeidspartner BN Bank. De har konkurransedyktige betingelser samt rask og løsningsorientert behandling av din lånesøknad. Krogsveen mottar et honorar dersom lån opprettes.
Betalingsbetingelser
Kjøpesum inkludert omkostninger, samt pantedokument tilknyttet eventuelt lån, skal være disponibelt hos megler 2 virkedager før overtagelsen.
Annen viktig informasjon
Annen viktig informasjon
Eier
Inge Johan Hanch
Overtakelse
Etter nærmere avtale.
Boligselgerforsikring
Selger har i forbindelse med salget tegnet boligselgerforsikring levert av Gjensidige.
Boligselgerforsikringen dekker selgers ansvar etter avhendingsloven begrenset oppad til kr 14 millioner. Dersom kjøper oppdager forhold ved eiendommen som hen mener utgjør en mangel ved eiendommen, vil Gjensidige behandle reklamasjonen på vegne av selger. Forsikringsvilkår kan fås ved henvendelse til megler.
Vedlagt salgsoppgaven følger selgers egenerklæringsskjema og tilstandsrapport. Interessenter må sette seg inn i dokumentene før bud inngis.
Boligkjøperforsikring
Innen kontraktsmøtet må kjøper ta stilling til om det ønskes å bestille Boligkjøperpakken gjennom Gjensidige. I denne gunstige pakken er boligen ferdig forsikret og inkluderer rettshjelpsforsikring, også kalt Boligkjøperforsikring. Rettshjelpsforsikring gir trygghet og tilgang på profesjonell juridisk hjelp dersom det oppdages uventede feil eller mangler det første året etter overtagelse. Forsikringsselskapet behandler i så fall ethvert mangelskrav kjøper måtte ha overfor selger.
Boligkjøperpakken inkluderer bygningsforsikring for hus og hytte, innboforsikring, flytteforsikring og dobbel rentedekning - i situasjoner hvor kjøper ikke får solgt nåværende primærbolig.
Kjøper mottar ingen særskilt faktura for Boligkjøperpakken da kostnaden det første året legges til kjøpesummen for boligen. Det gjøres oppmerksom på Krogsveen mottar et honorar for denne formidlingen.
Produktark for Boligkjøperpakken ligger vedlagt i salgsoppgaven.
Dersom ikke boligkjøperpakke ønskes kan kun rettshjelpsforsikring, også kalt boligkjøperforsikring, tegnes særskilt via megler. Rettshjelpsforsikringen varer i 5 år fra overtagelse og leveres gjennom Gjensidige. Ta kontakt med megler for ytterligere informasjon.
Selskap og privatpersoner som driver med kjøp/salg/utvikling som ledd i egen næringsvirksomhet kan ikke tegne boligkjøperpakke eller rettshjelpsforsikring.
Budgivning
Forbrukerinformasjon om budgivning er vedlagt denne salgsoppgaven og er også på vår hjemmeside Krogsveen.no. Alle bud og budforhøyelser må inngis skriftlig. I tillegg må legitimasjon være fremlagt sammen med signatur fra budgiver.
Vi oppfordrer til å gi bud elektronisk via GI BUD-knappen på eiendommens hjemmeside på Krogsveen.no. Da vil samtlige vilkår bli oppfylt.
Eventuelle forhøyelser eller endringer av budet kan bekreftes pr SMS eller på e-post. Vi oppfordrer alltid til å kontakte megler pr. telefon i tillegg da forsinkelser i SMS og e-post kan forekomme.
For at budene skal kunne bli behandlet og videreformidlet skriftlig til alle involverte parter, må alle bud ha en tilstrekkelig lang akseptfrist, jf. eiendomsmeglingsforskriften § 6-3.
Selger må også skriftlig akseptere budet før aksept kan formidles til budgiver. Akseptfrist bør derfor være på minimum 30 minutter, og budforhøyelser må derfor skje i god tid før fristens utløp.
Bud i forbrukerforhold kan uansett ikke settes med kortere frist enn kl. 12.00 første virkedag etter siste annonserte visning. I tillegg kan ikke budet ha forbehold om at det skal holdes hemmelig ovenfor øvrige interessenter. Megler har iht lov om eiendomsmegling ikke anledning til å videreformidle disse budene, og de vil dermed heller ikke bli journalført.
Etter at eiendommen er solgt vil kjøper og selger få tilsendt budjournal. Øvrige budgivere kan få utlevert kopi av budjournalen i anonymisert form.
Hvitvaskingsreglene
I henhold til lov om hvitvasking og terrorfinansiering har megler plikt til å gjennomføre kontrolltiltak overfor kunder, herunder fullmektiger. Dette innebærer bl.a. å bekrefte kunders og reelle rettighetshaveres identitet på bakgrunn av fremvist gyldig legitimasjon eller på annen godkjent måte, samt å innhente opplysninger om kundeforholdets formål og tilsiktede art.
Dersom slike kundetiltak ikke kan gjennomføres, kan megler ikke etablere kundeforholdet eller utføre transaksjonen.
Hvis kjøper ikke bidrar til gjennomføring av kundekontrollen og dette fører til at transaksjonen blir forsinket eller ikke kan gjennomføres, vil dette ansees som mislighold av avtalen og gi selger rettigheter etter avhendingslova kapittel 5. I tilfeller der selger ikke bidrar til gjennomføring av løpende kundekontroll underveis i oppdraget, er det selger som misligholder sine forpliktelser etter avtalen og gi kjøper rettigheter etter avhendingslovens kapittel 4. Partene er selv ansvarlige for eventuelle kostnader og ansvar dette kan medføre. Eiendomsmegleren eller eiendomsmeglingsforetaket kan ikke holdes ansvarlig for de konsekvenser dette vil kunne få for partene eller andre som har interesser i eiendomshandelen.
Kjøper oppfordres til å innbetale kjøpesummen som ikke kommer fra låneinstitusjon i én samlet innbetaling fra egen konto i norsk bank. Megler har plikt til å melde fra til Økokrim om eiendomshandler som fremstår som mistenkelige. Melding sendes Økokrim uten at partene varsles.
Personopplysningsloven
I henhold til personopplysningsloven gjør vi oppmerksom på at interessenter kan bli registrert for videre oppfølging.
Lovanvendelse
Generelle bestemmelser
Salgsoppgaven er basert på de opplysningene selger har gitt til megler, den bygningssakyndiges tilstandsrapport, samt opplysninger innhentet fra kommunen, Kartverket og andre tilgjengelige kilder. Det er viktig at kjøper setter seg grundig inn i alle salgsdokumentene, herunder salgsoppgave, tilstandsrapport og selgers egenerklæring. Kjøper anses kjent med forhold som er tydelig beskrevet i salgsdokumentene, og slike forhold kan ikke påberopes som mangler. Dette gjelder uavhengig av om kjøper har lest dokumentene. Alle interessenter oppfordres til å undersøke eiendommen nøye, gjerne sammen med fagkyndig før bud inngis. Kjøper som velger å kjøpe usett kan ikke gjøre gjeldende som mangel noe han burde blitt kjent med ved undersøkelsen.
Dersom det er behov for avklaringer, anbefaler vi at interessenter rådfører seg med eiendomsmegler eller egne rådgivere før det legges inn bud.
En bolig som har blitt brukt i en viss tid, har vanligvis blitt utsatt for slitasje og skader kan ha oppstått. Slik bruksslitasje må kjøper regne med, og det kan avdekkes enkelte forhold etter overtakelse som nødvendiggjør utbedringer. Normal slitasje og skader som nødvendiggjør utbedring, er innenfor hva kjøper må forvente og vil ikke utgjøre en mangel.
Kjøper og selgers rettigheter og plikter reguleres av avtalen mellom partene, samt informasjonen som har vært tilgjengelig for kjøperen i forbindelse med handelen. Avtalen utfylles av avhendingsloven, og det gjelder ulike avtalevilkår avhengig av om kjøper er forbrukerkjøper eller ikke. Dette er nærmere beskrevet nedenfor.
På grunn av ulike avtalevilkår kan selger vurdere bud fra en som ikke er forbruker, ulikt fra en forbrukers bud. Dersom kjøper ikke er forbruker, er selger sitt mulige mangelsansvar begrenset fordi eiendommen selges "som den er". Selger kan ikke ta «som den er»- forbehold overfor en forbrukerkjøper. Selv et lavere bud fra en som ikke er forbruker kan foretrekkes fordi begrensningen i mulig mangelsansvar kan ha egenverdi for selger. Selger står fritt til å forkaste eller akseptere ethvert bud, og er for eksempel ikke forpliktet til å akseptere høyeste bud.
Budgiver skal i budskjema avgi egenerklæring om budgiver er forbruker eller næringsdrivende/ person som hovedsakelig handler som ledd i næringsvirksomhet. Budgivere får informasjon dersom andre bud er inngitt av en som ikke er forbruker.
Forbrukerkjøp - definisjon
Med forbrukerkjøp menes kjøp av eiendom når kjøperen er en fysisk person som ikke hovedsakelig handler som ledd i næringsvirksomhet.
Forbruker – avtalevilkår
Eiendommen har en mangel dersom den ikke er i samsvar med kravene som følger av avtalen, eller det foreligger brudd på bestemmelsene i avhendingsloven §§ 3-2 til 3-8. Hvis eiendommen ikke er i samsvar med det kjøperen må kunne forvente ut ifra alder, type og synlig tilstand, kan det være grunnlag for mangelskrav. Det samme gjelder hvis det er holdt tilbake eller gitt uriktige opplysninger om eiendommen. Dette gjelder likevel bare dersom man kan gå ut ifra at det virket inn på avtalen at opplysningen ikke ble gitt eller at mangelskravet ikke blir rettet i tide på en tydelig måte.
Boligen kan ha en mangel etter avhendingsloven § 3-3 andre ledd, dersom det er avvik mellom opplyst og faktisk innvendig areal, forutsatt at avviket er på 2% eller mer og minimum 1 kvm.
Ved beregning av et eventuelt prisavslag eller erstatning må kjøper selv dekke tap/kostnader opptil et beløp på kr 10 000 (egenandel).
Ikke-forbruker (næringsdrivende) – definisjon
Hvis kjøper er en juridisk person, eller en fysisk person som hovedsakelig handler som ledd i næringsvirksomhet, vil kjøpet ikke anses som et forbrukerkjøp.
Ikke-forbruker – avtalevilkår
Eiendommen har en mangel dersom den ikke er i samsvar med kravene som følger av avtalen.
Eiendommen selges «som den er», og selgers ansvar utover det konkret avtalte er da begrenset etter avhendingsloven § 3-9, første ledd andre setning.
Avhendingsloven § 3-3 andre ledd fravikes, og hvorvidt boligens arealsvikt utgjør en mangel vurderes etter avhendingsloven § 3-8.
Informasjon om kjøpers undersøkelsesplikt, herunder oppfordringen om å undersøke eiendommen nøye, gjelder også for kjøpere som ikke anses som forbrukere.
Det forutsettes at hjemmel overføres til kjøper. Hvis kjøper ikke ønsker hjemmelsoverføring av eiendommen, må det tas forbehold om dette i budet.
Meglers vederlag
Meglers vederlag betales av selger og er avtalt til:
Vederlag: 1,90 % av salgssummen inkl. eventuell fellesgjeld. Minimumsprovisjon er kr 50 000,00
Vederlag:
Kontroll av hjemmel og heftelser kr 4 500,00
Markedsføringspakke kr 28 900,00
Oppgjør kr 8 900,00
Tilrettelegging kr 9 300,00
Visninger pr stk / Overtagelse kr 500,00
Utlegg:
Tinglysing sikring kr 545,00
Andre utgifter:
Foto inkl. dronebilder kr 6 000,00
Vi er opptatt av verdiskapning, og har knyttet til oss samarbeidspartnere som skal sikre våre kunder de beste produkter og tjenester;
• I forbindelse med forberedelse av salget, innhenter vi informasjon om eiendommen hovedsakelig fra vår samarbeidspartner Amibita.
• Gjensidige leverer boligselgerforsikring og tilbyr bygningsforsikring
• Boligkjøperforsikring leveres av Hiscox og med Sedgwick som skadebehandler, og er formidlet gjennom Gjensidige.
• BN bank tilbyr finansieringsløsninger
• Vår avdeling Krogsveen Pluss tilbyr flyttetjenester som utvask, visningsvask, lager, tømming og transport av flyttelass, i tillegg til å formidle kontakt med Flip for overflateoppussing.
• I forbindelse med overtagelse av eiendommen tilbyr Overo avtale om strøm, alarm og bredbånd.
• Krogsveen er, sammen med øvrige bransjeaktører, medeier i Bomega AS som tilbyr den digitale annonseringsplattformen Hjem.
Opplysninger om oppdraget
Oppdragsnummer 47-0029/26
Eiendomsmegler Krogsveen AS, avd. Arendal
Kystveien 14, 4841, ARENDAL
950 007 613
Oppdragets KR-kode KR47.2629
Dato
Sist oppdatert: 17. april 2026 kl. 12:48
Dokumenter
Dokumenter
PDF – 917 KB
PDF – 6 MB
PDF – 170 KB
PDF – 2 MB
PDF – 312 KB
PDF – 29 KB
PDF – 127 KB
PDF – 392 KB
Område
Legg til steder som er viktige for deg
Visning
For å delta på visning, ber vi om at du melder deg på. Da sikrer vi at du får nødvendig informasjon og at det er satt av tilstrekkelig med tid. Kontakt megler dersom annet tidspunkt ønskes. Husk å lese salgsoppgaven før visningen, så du stiller forberedt. NB. Visning utgår dersom det ikke er noen påmeldte. Ønsker du kun å bli holdt orientert, kan du fra eiendommens hjemmeside få varsel om solgtpris, eller kontakte megler.
Lurer du på noe?
Unngå doble boligrenter
Vi tilbyr gunstig forsikring.
Vurderer du utleie?
Få et tilbud fra Utleie KrogsveenHva koster lånet?
Sjekk estimert lånekostnadVil du varsles om lignende boliger?
Ved å lagre ditt boligsøk hos oss får du beskjed når vi har en bolig som ligner denne, før den legges ut på markedet!






































