Lofotgata 4A
3 650 000 kr
49 m²
1 soverom
Solgt

Presenteres av
Emilie LieIdylliske Iladalen
Unik 2-roms sokkelleilighet i populært og idyllisk område! Privat inngang og sentral beliggenhet i rolige omgivelser.
Prisantydning
3 650 000 krAndel fellesgjeld
307 643 krOmkostninger
11 040 krTotalpris
3 968 683 kr
Pris
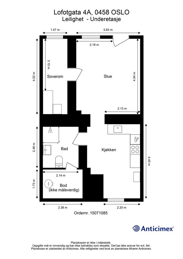
Bruksareal
53 m²BRA-I (internt bruksareal)
49 m²BRA-E (eksternt bruksareal)
4 m²
Areal
Etasje
1Byggeår
1901Soverom
1 soveromBad
1 badType
AndelsleilighetEierform
AndelFellesutgifter
4 274 krEnergimerke
Rød G
Nøkkelinfo
Unngå doble boligrenter
Vi tilbyr gunstig forsikring.
Vurderer du utleie?
Få et tilbud fra Utleie KrogsveenHva koster lånet?
Sjekk estimert lånekostnadDette liker selger best ved boligen
Leiligheten vår ligger perfekt til i en stille og rolig gate rett ved Alexander Kiellands plass – et område fullt av liv, hyggelige kafeer og mange fine steder å nyte sola. Vi har virkelig kost oss her, ikke minst med all naturen som er rett i nærheten. Det er noe helt eget å kunne ta en tur langs Akerselva på ettermiddagen, eller bare slappe av med grilling i Ila-parken en varm sommerkveld!
Beskrivelse
Kort om eiendommen
Velkommen til Lofotgata 4A!
Dette er en sjarmerende 2-roms sokkelleilighet med sentral beliggenhet i hjertet av Iladalen. Fra boligen kan du enkelt ta deg rundt i området, langs Akerselva, Alexander Kiellands plass med et mangfold av butikker og restauranter, samt idyllisk park like utenfor døren. Dette er beliggenheten for deg som liker en urban livsstil, og som ønsker kort vei til byens mange fasiliteter!
Noen høydepunkter:
56 kvm gulvareal
Lekkert bad oppgradert i 2015
Sentral beliggenhet med nærhet til "alt", og buss/trikk
Kjellerbod samt intern oppbevaring
Fibernett inkl. i fellesutgiftene
Nye vinduer 2023/2024 mot gaten
Idyllisk park rett ved
Balansert ventilasjon
Ingen forkjøpsrett
Hyggelig bakgård
Velkommen til visning!
Område
Legg til steder som er viktige for deg
På flyttefot? Tenk kjøp og salg samtidig.
Få din egen rådgiver gjennom hele kjøps- og salgsprosessen. Det starter med en verdivurdering.
Unngå doble boligrenter
Vi tilbyr gunstig forsikring.
Vurderer du utleie?
Få et tilbud fra Utleie KrogsveenHva koster lånet?
Sjekk estimert lånekostnadVil du varsles om lignende boliger?
Ved å lagre ditt boligsøk hos oss får du beskjed når vi har en bolig som ligner denne, før den legges ut på markedet!
På flyttefot? Slik gjør vi det enklere for deg
Skreddersydd flyttepakke
Vi fikser håndverkere, vask, pakking, lagring og transport, og legger ut for utgiftene underveis.
Hjelp med både kjøp og salg
Hos oss har du din egen rådgiver gjennom hele kjøps- og salgsprosessen.
Hjelp til finansiering
Vårt samarbeid med BN Bank sikrer deg rask og løsningsorientert hjelp, til konkurransedyktige betingelser.

