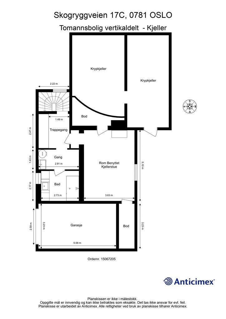
Skogryggveien 17C
14 200 000 kr
169 m²
3 soverom
Solgt

Vettakollen
Skjermet familieidyll. Stor, solrik hage. Rammetillatelse tilbygg m/takterrasse. 5 min til T-bane, marka og skoler.
Prisantydning
14 200 000 krOmkostninger
375 990 krTotalpris
14 575 990 kr
Pris
Bruksareal
189 m²BRA-I (internt bruksareal)
169 m²BRA-E (eksternt bruksareal)
20 m²TBA (terrasse-balkongareal)
51 m²
Areal
Etasje
2Byggeår
1968Soverom
3 soveromBad
2 badTomteareal
803 m² (eiet)Type
Halvpart vertikaldelt boligEierform
EietFasiliteter
Garasje/P-plass og Balkong/TerrasseEnergimerke
Oransje G
Nøkkelinfo
Unngå doble boligrenter
Vi tilbyr gunstig forsikring.
Vurderer du utleie?
Få et tilbud fra Utleie KrogsveenHva koster lånet?
Sjekk estimert lånekostnadBeskrivelse
Kort om eiendommen
Velkommen til Skogryggveien 17 C!
En flott vertikaldelt tomannsbolig i et attraktivt og veletablert villaområde med gode kollektivmuligheter og umiddelbar nærhet til marka.
- Eneboligfølelse da enhetene er adskilt med hekk og trevegg mellom hagene
- Stor, solrik, skjermet og opparbeidet hage
- Foreligger rammetillatelse på tilbygg med takterrasse. Mulighet for hybel med egen inngang.
- Mulighet for 4 soverom
- Barnevennlig område
- Garasje og biloppstillingsplass
- Umiddelbar nærhet til marka
- Slemdal senter og Heming kun en spasertur unna
- Kort skolevei, Svendstuen barneskole, Midtstuen ungdomsskole, Oslo Montessori Skole, Nothern Light mfl.
- Kun 5 minutters gange til t-banen
Område
Legg til steder som er viktige for deg
På flyttefot? Tenk kjøp og salg samtidig.
Få din egen rådgiver gjennom hele kjøps- og salgsprosessen. Det starter med en verdivurdering.
Unngå doble boligrenter
Vi tilbyr gunstig forsikring.
Vurderer du utleie?
Få et tilbud fra Utleie KrogsveenHva koster lånet?
Sjekk estimert lånekostnadVil du varsles om lignende boliger?
Ved å lagre ditt boligsøk hos oss får du beskjed når vi har en bolig som ligner denne, før den legges ut på markedet!

