Einerveien 131
4 850 000 kr
117 m²
3 soverom
Solgt

Langhus/Bøleråsen
Flott rekkehus over tre plan i svært barnevennlig område | Vestvendt usjenert terrasse/hage | Stor loftstue | Garasje.
Prisantydning
4 850 000 krOmkostninger
143 740 krTotalpris
4 993 740 kr
Pris
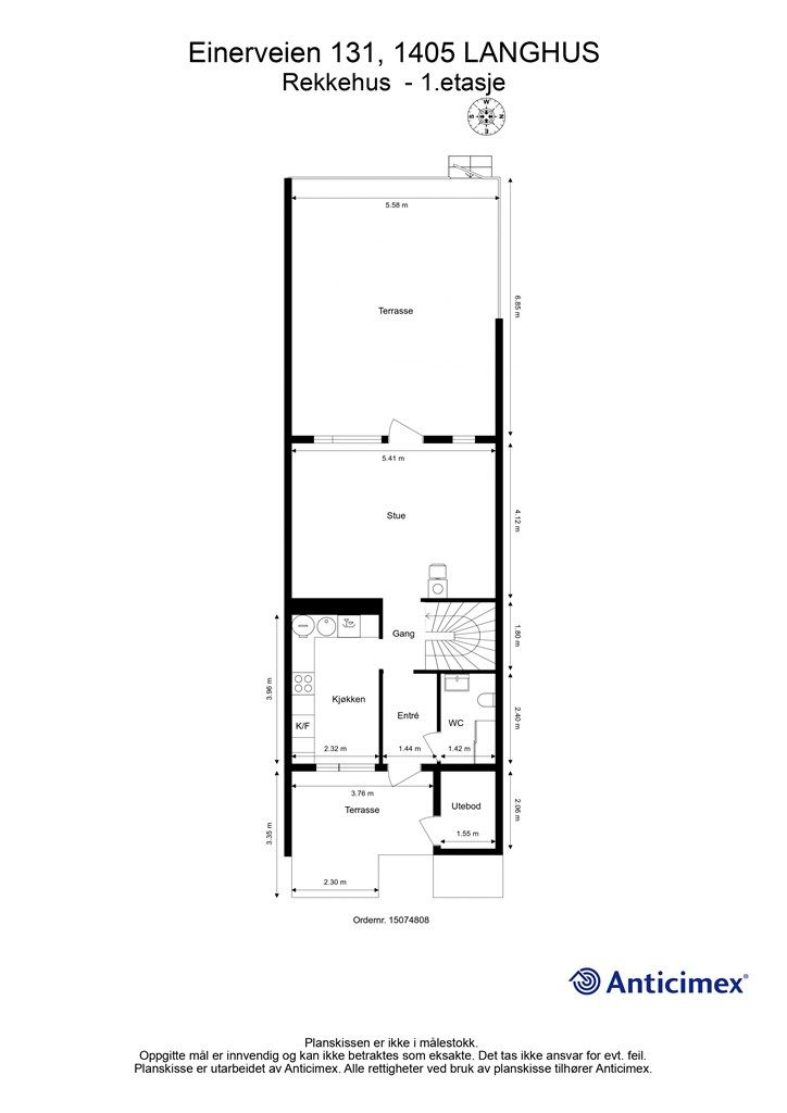
Bruksareal
134 m²BRA-I (internt bruksareal)
117 m²BRA-E (eksternt bruksareal)
17 m²TBA (terrasse-balkongareal)
49 m²
Areal
Byggeår
1984Soverom
3 soveromBad
1 badTomteareal
116 m² (eiet)Type
RekkehusEierform
EietFasiliteter
Garasje/P-plass og Balkong/Terrasse
Nøkkelinfo
Unngå doble boligrenter
Vi tilbyr gunstig forsikring.
Vurderer du utleie?
Få et tilbud fra Utleie KrogsveenHva koster lånet?
Sjekk estimert lånekostnadBeskrivelse
Kort om eiendommen
Perfekt rekkehus for en barnefamilie som ønsker trygge omgivelser og et fellesskap å trives i. Her bor du i et rekkehus med eiet tomt, omgitt av grøntarealer, lekeplasser og hyggelige naboer. Planløsningen er romslig og praktisk fordelt over to etasjer pluss loft, med flere soverom, loftstue og gode oppholdsrom. Fra stuen er det utgang til en solrik terrasse, perfekt for grillkvelder og lek.
Kort fortalt:
Rekkehus over 2 etasjer + loft
Solrik terrasse med utebod
3 soverom + loftsrom (sover.) og loftstue
Toalett i begge etasjer + bad med gulvvarme
Garasje i felles rekke
Oppvarming med vedfyring og elektrisitet
Barnevennlig grendelag med lekeplass, grøntarealer og gode fellesløsninger
Her får du et hjem med nærhet til skoler, barnehager, natur og alt familien trenger i hverdagen.
Område
Legg til steder som er viktige for deg
Megler

Hans Petter Søvik
Eiendomsmegler MNEF / Partner
På flyttefot? Tenk kjøp og salg samtidig.
Få din egen rådgiver gjennom hele kjøps- og salgsprosessen. Det starter med en verdivurdering.
Unngå doble boligrenter
Vi tilbyr gunstig forsikring.
Vurderer du utleie?
Få et tilbud fra Utleie KrogsveenHva koster lånet?
Sjekk estimert lånekostnadVil du varsles om lignende boliger?
Ved å lagre ditt boligsøk hos oss får du beskjed når vi har en bolig som ligner denne, før den legges ut på markedet!
