Mokleiva 50
15 300 000 kr
291 m²
4 soverom
Komplett salgsoppgave

Nesoddtangen/Granholt
Sjelden mulighet! Modernistisk enebolig med fjordutsikt, utleiedel, dobbelgarasje, takterrasse og eget badehus!
Prisantydning
15 300 000 krOmkostninger
403 490 krTotalpris
15 703 490 kr
Pris
Bruksareal
310 m²BRA-I (internt bruksareal)
291 m²BRA-E (eksternt bruksareal)
19 m²TBA (terrasse-balkongareal)
181 m²
Areal
Byggeår
2012Soverom
4 soveromBad
3 badTomteareal
994 m² (eiet)Type
Enebolig - FrittliggendeEierform
EietFasiliteter
Garasje/P-plass og Balkong/TerrasseEnergimerke
Nøkkelinfo
Unngå doble boligrenter
Vi tilbyr gunstig forsikring.
Vurderer du utleie?
Få et tilbud fra Utleie KrogsveenHva koster lånet?
Sjekk estimert lånekostnadDette liker selger best ved boligen
Kort vei til buss/båt, senteret og strand. Arkitekttegnet, gunstig innredet/romfordeling, vannbåren varme, romslig utleiedel, stor uteplass/takterrasse, badehus på Oksval, dobbel garasje.
Beskrivelse
Kort om eiendommen
Nyere, modernistisk enebolig med fjordutsikt, godkjent utleiedel, dobbelgarasje og badehus – beliggende i et av Nesoddens mest attraktive områder. Boligen har flere flotte oppholdsrom, inkludert en egen stue i toppetasjen med utgang til rundtgående takterrasse med flott fjordutsikt. Store vindusflater og solrike uteplasser skaper et hjem med lys, luft og god atmosfære året rundt. Den inngjerdede hagen byr på grillhytte, gressplen og flere terrasser som legger til rette for både rolige øyeblikk og hyggelige samlinger. Med gangavstand til skoler, barnehager, butikker, servicetilbud og Nesoddbåten får du en sjelden kombinasjon av komfort, nærhet og hverdagsluksus.
Innhold og byggemåte
Innhold og byggemåte
Eiendommen
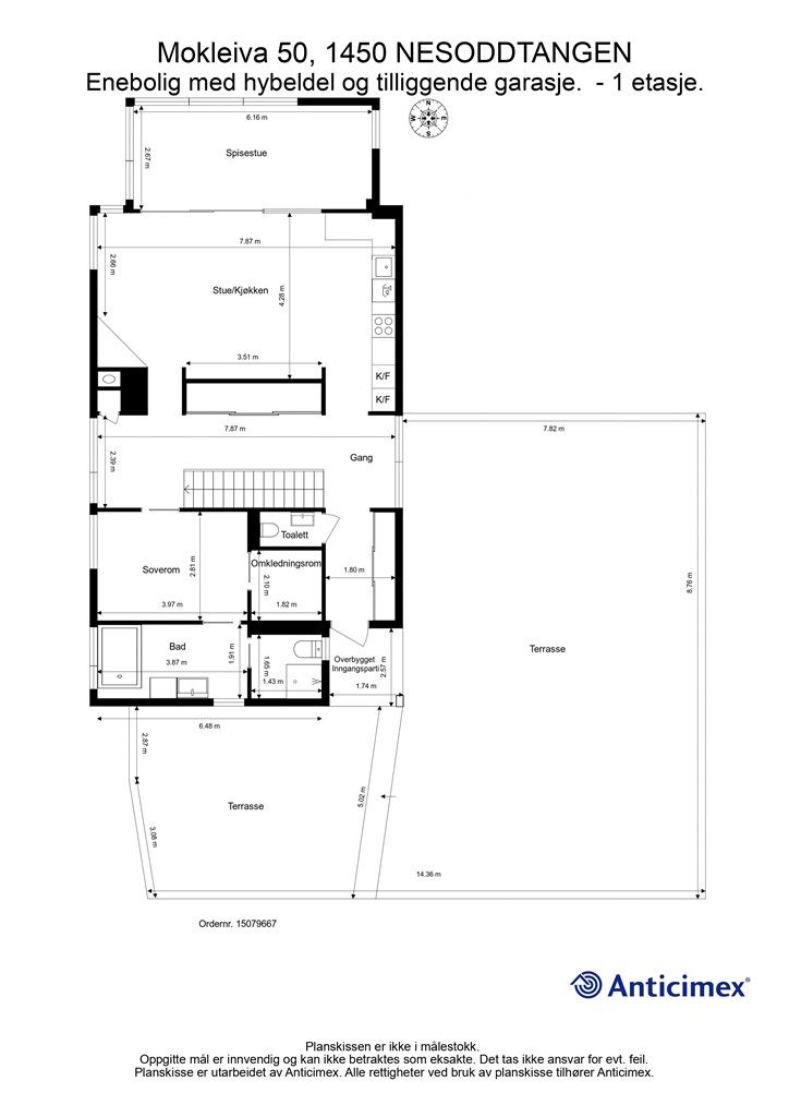
Mokleiva 50, 1450 NESODDTANGEN
Kommunenummer 3212, gårdsnummer 2, bruksnummer 1694, ideell andel 1/1
Innhold
BRA-i:
Bolig:
U. etasje 158 kvm:
Hoveddel: Entré, gang, baderom, toalettrom, teknisk rom, VVS teknisk rom, 2 soverom og tilliggende garasje
Hybel: Entré, gang som benyttes som kontor/soverom (Ikke godkjent til varig opphold, toalettrom, soverom, baderom og stue med åpen kjøkkenløsning
1. etasje 110 kvm:
Hoveddel: Gang, soverom, omkledningsrom, toalettrom, baderom, spisestue og stue med åpen kjøkkenløsning
2. etasje 23 kvm:
Hoveddel: Stue
BRA-e:
Badehus:
1. etasje 11 kvm: Badehus
Grillhytte:
1. etasje 8 kvm: Grillhytte
Åpent areal:
Bolig:
U. etasje 27 kvm: Terrasse
1. etasje 101 kvm: Terrasse
2. etasje 53 kvm: Takterrasse
Vedlagte plantegninger er ikke målbare. De oppgitte arealer er hentet fra rapport med befaringsdato 23.02.2026 utført av Anticimex AS v/Lars Petter Ausland. Arealene er beregnet og rom er definert etter dagens faktiske bruk, uavhengig av hva som er godkjent av bygningsmyndighetene.
Byggemåte
Selger har fått utarbeidet en tilstandsrapport, dvs. en teknisk gjennomgang av boligen hvor eventuelle avvik, risiko for kjøper og prisoverslag for hva som bør gjøres av oppgradering, er skissert. Se særskilt TGIU (tilstandsgrad ikke undersøkt), samt TG2 og TG3 som viser hva som er boligens normale slitasje, alder og type, hva som er avvik fra dette og hva som bør/må utbedres. Rapporten og selgers egenerklæring er en del av salgsoppgaven og må leses nøye før bud inngis. Kjøper overtar ansvaret for de opplysninger som fremkommer av salgsdokumentasjonen, og kan ikke gjøre gjeldende som mangel noe som burde vært kjent eller som ikke kan anses å ha betydning for avtalen.
Boligen er iht. tilstandsrapporten oppført i 2012 med grunnmur av pussede murkonstruksjoner/lettklinkerblokker. Etasjeskiller i treverk. Yttervegger av trekonstruksjoner utvendig kledd med liggende og
stående trekledning. Tilnærmet flat takkonstruksjon/ tekket med takpapp. Entrédør med glassfelt og elektronisk kodelås. Entrédør til hybel med glassfelt. Terrassedører med to-lags glass fra byggeår og 2017. Vinduer med to-lags glass fra byggeår.
Les for øvrig mer om byggemåte og den tekniske tilstanden i rapporten.
Det gjøres spesielt oppmerksom på:
TG3 er gitt:
Bad i hybel:
- Overflater vegger: Det observeres tydelige riss/sprekker i veggfliser. Forholdet vurderes å kunne skyldes en bakenforliggende årsak som ikke lar seg kartlegge med visuell inspeksjon alene. Konsekvens/foreslått strakstiltak er at det gjennomføres ytterligere undersøkelser for å kartlegge omfang, og hvilke tiltak som er nødvendige. Følgende sjablongmessig prisanslag gjelder for lokale utbedringer/skifte av veggfliser stedvis i og rundt dusjsonen samt veggflis ved vindu.
Sjablonmessig avslag: kr 0 - 10 000
Bad 1 etasje:
- Overflater vegger: Det er stedvis registrert skader på veggfliser ved døråpninger. Sjablongmessig prisanslag gjelder lokal utbedring/fornying av fliser.
Sjablonmessig prisanslag: kr 0 - 10 000,-
TG2 er gitt:
Bad 1 etasje:
- Sanitærutstyr og innredning: Drenering fra innebygget toalettsisterne er ikke registrert. Konsekvens er at det derfor ikke kan verifiseres om installasjonen er utført slik at eventuelt lekkasjevann raskt blir synliggjort. Foreslått tiltak er lokal utbedring, og andre tiltak som videre undersøkelser eventuelt viser at er nødvendig. Innredningen har stedvis bruksmerker og mindre tegn til slitasje. Forholdet vurderes som estetisk og uten funksjonelle konsekvenser.
VVS-teknisk rom:
- Vanntett sjikt / membran: Det er uklart om det er benyttet vanntett sjikt på våtrommets gulv- og veggflater. Konsekvensen er at våtrom uten et fullverdig tettesjikt har høy risiko for skjulte fuktskader. Foreslått tiltak er videre undersøkelser for å kartlegge dagens tilstand og avdekke om det er behov for større inngrep og utskiftninger, eller om lokale utbedringer og lignende tiltak er tilstrekkelig.
Toalettrom - U. etg./hybel:
- Sanitærutstyr og innredning: Det er ikke registrert dreneringsspalte eller lignende åpninger fra den innebygde toalettsisternen. Det kan derfor ikke verifiseres om vanninstallasjonen er utført slik at eventuelt lekkasjevann raskt blir synliggjort. Konsekvens er risiko for følgeskader ved eventuell lekkasje. Foreslått tiltak er at det gjøres lokal utbedring og kartlegging av utførelsen.
Toalettrom - U. etg./hoveddel. :
- Sanitærutstyr og innredning: Det er ikke registrert dreneringsspalte eller lignende åpninger fra den innebygde toalettsisternen. Det kan derfor ikke verifiseres om vanninstallasjonen er utført slik at eventuelt lekkasjevann raskt blir synliggjort. Konsekvens er risiko for følgeskader ved eventuell lekkasje. Foreslått tiltak er at det gjøres lokal utbedring og kartlegging av utførelsen.
Toalettrom - 1 etasje.:
- Sanitærutstyr og innredning: Det er ikke registrert dreneringsspalte eller lignende åpninger fra den innebygde toalettsisternen. Det kan derfor ikke verifiseres om vanninstallasjonen er utført slik at eventuelt lekkasjevann raskt blir synliggjort. Konsekvens er risiko for følgeskader ved eventuell lekkasje. Foreslått tiltak er at det gjøres lokal utbedring og kartlegging av utførelsen.
Andre rom - U. etg./hybeldel.:
- Overflate vegg: Eier opplyser om at panelplater på vegger i soverom buler litt. Dette ble ikke registrert på befaringstidspunktet av byggsakskyndig. Konsekvens kan være skader i bakenforliggende konstruksjon. Tiltak er ytterligere undersøkelser for avklaring av eventuelle skader eller om innfesting av panelplater er stedvis manglende.
Ildsteder og skorsteiner inne i boligen - Underetasje/hybeldel i stue. :
- Skorsteiner inne i boligen: Se kommentar punkt skorstein 1 etasje.
Ildsteder og skorsteiner inne i boligen - 1 etasje stue/kjøkken:
- Skorsteiner inne i boligen: Det er registrert sprekker i skorsteinen i 1 etasje. Brann og redningsetaten utførte kontroll av pipe 27.02.2026 og konkluderte med at det ikke var gjennomgående sprekk til pipeløp, at det ikke berører selve skorsteinen og vil ha noen betydning for bruken av selve skorsteinen. Sjablongmessig prisanslag gjelder utbedring av setningskade/sprekker i element/murkonstruksjon til pipe.
Sjablonmessig prisanslag: kr 0 - 10 000
Ildsteder og skorsteiner inne i boligen - 2 etasje. Stue:
- Skorsteiner inne i boligen: Se kommentar punkt skorsteiner inne i boligen 1 etasje.
Yttervegger inkl. fasader:
- Fasader og konstruksjoner av mur, betong og lignende: Avskalling av maling/murpuss observeres stedvis i overflaten. Eksakt årsak er ukjent. Konsekvens er blant annet at forholdet kan medføre økt fuktbelastning i konstruksjonen. Foreslått tiltak er lokal utbedring.
Vinduer og ytterdører:
- Ytterdører og omramming: Det registreres følgende avvik på terrassedør: skyvedør på takterrasse henger i lukkefunksjon. Konsekvens er at døren ikke lar seg lukke tilstrekkelig og regn/snø kan drive inn og skape fuktskader på innvendige konstruksjoner. Det er registrert fuktmerker ved terskel og foring til skyvedør. Det ble med fuktindikasjonsinstrument utført overflatemåling og det ble ikke registrert forhøyede fuktverdier. Tiltak justering/utbedring av skyvedør må påregnes.
Selger opplyser terrassedøren nå er reparert.
Yttertak:
- Helhetsvurdering: Det er valgt å vurdere yttertaket med en samlet helhetsvurdering. Følgende hovedmomenter er lagt til grunn for vurderingen: Taket er ikke fysisk inspisert grunnet is og snø. Konsekvens er at taket kan være utsatt for slitasje, skader eller feil utførelse som ikke lar seg registrere på grunn av forholdene på befaringsdagen. Foreslått tiltak er videre undersøkelser når forholdene ligger til rette, slik at man kan avdekke om det er behov for utbedringer eller andre nødvendige tiltak.
Grunnmur, fundament:
- Grunnmur og fundament: Avskalling av maling/murpuss observeres stedvis på grunnmuren. Eksakt årsak er ukjent. Konsekvens er at forholdet kan medføre økt fuktpåkjenning på bakenforliggende konstruksjoner. Foreslått tiltak er lokal utbedring.
Drenering:
- Fuktsikring av grunnmur: Det kan ikke verifiseres at grunnmuren har utvendig fuktsperre. Konsekvensen er at konstruksjoner uten utvendig fuktsperre som er i kontakt med bakken, har økt risiko for fuktvandring/oppfukting som igjen kan føre til fuktskader. Foreslått tiltak er videre overvåking av dagens tilstand slik at nødvendige utbedringer eller utskiftning kan iverksettes ved behov.
Garasje. :
- Veggkonstruksjon og fasadematerialer: Fuktmerker stedvis på innvendige vegger i garasjen. Kan skyldes kapilærsug fra grunnen og /eller sviktende drenssystem. Konsekvens er fuktvandring i konstruksjonen. Stedvis pussavskalling på murkonstruksjoner på yttervegg ved garasjeporter.
- Innvendige forhold: Stedvis lite fall avrenning til slukrist. Konsekvens kan være at det at vann blir liggende stedvis på gulv og ikke renner til slukrist.
- Vinduer, dører og porter: Vaier til den ene porten har røket. Konsekvens er at porten må åpnes manuelt. Tiltak er utbedring/skifte av vaier.
Grillhytte. :
- Helhetsvurdering: Det er valgt å vurdere bygningen med en samlet helhetsvurdering. Følgende hovedmomenter er lagt til grunn for vurderingen: Grillhytte har slitasjesymptomer på utvendige vegger og yttetak. Det er stedvis registrert sprekker i ytterkledning. Taket er delvis dekket av snø er delvis inspisert. Det er registrert slitasje på takpapp.
Basert på byggverkets samlede tilstandsbilde og hovedmomentene som nevnes over bør det påregnes tiltak som forebyggende vedlikehold og/eller lokale utbedringer der dette viser seg å være et behov. Konsekvens kan bli at igangsetting av slike arbeider i mange tilfeller avdekker ytterligere forhold som krever tiltak, noe som det bør tas høyde for.
Badehus.:
- Helhetsvurdering: Det er valgt å vurdere bygningen med en samlet helhetsvurdering. Følgende hovedmomenter er lagt til grunn for vurderingen: Taket er ikke besiktiget grunnet snø. Vinduer samt dør mot sjøen har alder/slitasje og har behov for fornying/oppgradering.
Basert på byggverkets samlede tilstandsbilde og hovedmomentene som nevnes over bør det påregnes tiltak som forebyggende vedlikehold og/eller lokale utbedringer der dette viser seg å være et behov. Konsekvens kan bli at igangsetting av slike arbeider i mange tilfeller avdekker ytterligere forhold som krever tiltak, noe som det bør tas høyde for.
TGIU er gitt:
- Bad hoveddel u. etasje: Med bakgrunn i at våtrommets vegger er av mur/betong er det ikke praktisk mulig å gjennomføre fuktmåling/hulltaking i et område der det erfaringsmessig forekommer skader. Hulltaking og fuktmåling i lukkede konstruksjoner er derfor ikke utført. Tilstanden inne i konstruksjonen er ikke kjent. Det ble derimot gjennomført et overflatesøk med fuktindikator, uten at det ble påvist indikasjoner som tyder på fuktskader.
- Lufting av ytterkledning: Det er ikke mulig å kontrollere om ytterkledningen har tilstrekkelig lufte- og drensspalte, ettersom det aktuelle inspeksjonsområdet er stedvis skjult av snø og andre bygningsdeler. Konsekvens av eventuell mangelfull lufting er at konstruksjonens evne til å tørke ut eventuell fuktighet reduseres, noe som kan øke faren for skjulte fuktskader. Foreslått tiltak er videre undersøkelser og kartlegging av dagens utførelse og tilstand.
- Gnagersikring: Det har ikke vært mulig å kontrollere om alle deler av ytterkledningen er sikret mot inntrekk av gnagere, ettersom det aktuelle inspeksjonsområdet stedvis er skjult av snø og andre bygningsdeler. Det kan derfor ikke bekreftes om gnagersikringen er utført på korrekt måte.
-Terrasser: Helhetsvurdering Det er valgt å vurdere terrassene (og tilhørende bygningsdeler) med en samlet helhetsvurdering. Følgende hovedmomenter er lagt til grunn for vurderingen: Takterrasse er dekket av snø.
Oppsummert Grunnet snøforholdene på befaringsdagen var det ikke mulig å foreta undersøkelser av bygningsdelen. Tilstanden er derfor ukjent. Tilleggsundersøkelser bør påregnes når forholdene ligger til rette.
- Terrengfall fra grunnmur: Terrengfallet kan ikke undersøkes på tilstrekkelig måte, grunnet snøforhold. Konsekvens er at fallforholdene inn mot grunnmur ikke er kartlagt. Foreslått tiltak er videre undersøkelser når forholdene ligger til rette.
- Forstøtningsmur ikke besiktiget grunnet snø.
Selger opplyser at det er en liten brist i skyvedøren i 2.etg ved utgangen.
Se supplerende tekst i tilstandsrapporten. Kjøper overtar ansvar og risiko for dette.
Moderniseringer og påkostninger
2025: Renset alle vasker (Komplett Rørservice)
2025: Rensing/vasking av ventilasjon, byttet alle filtrene (Ventilasjonsspesialisten)
2022 ca.: Reparert vindu i soverom i hybeldel
2022: Spylt tette avløpsrør (Oslo Follo Industri AS)
2020: Byttet vindu med verandadør på et soverom i u. etg. (egeninnsats)
Standard
Hoveddel:
Entré
Romslig flislagt entré med stor skyvedørsgarderobe.
Stue og kjøkken i åpen løsning.
Stuen og kjøkkenet ligger i en åpen løsning og åpner for flere innredningsmuligheter. Her er det god plass til både sofagruppe, spisegruppe og ønsket møblement.
Stuen er delt i to med en skyvedør som gjør at rommene kan brukes på flere måter.
HTH kjøkkeninnredning fra byggeår med glatte mørke fronter og benkeplater av steinmateriale med oppvaskkum av rustfritt stål med ett-greps armatur og hånddusj. Benkeskapbelysning og stikkontakter. Hvitevarer som induksjonstopp, stekeovn, mikrobølgeovn, oppvaskmaskin og kjøleskap/kombiskap m/frysedel og vann/isdispenser medfølger, vann/isdispenser fungerer ikke. Ventilator med mekanisk avtrekk. Det er montert lekkasjestopper under oppvaskkum. Balansert ventilasjon.
Det er kun de hvitevarene som er listet opp som medfølger: Stekeovn, induksjonstopp, mikrobølgeovn, oppvaskmaskin, kjøleskap m/frysedel
Det gjøres oppmerksom på at hvitevarene er kjøpt for noen år tilbake, og kjøper må forvente slitasje som følge alder og normal bruk.
Stue i 2. etasje
Lys og luftig stue hvor man lett kan trekke seg tilbake med en god bok dersom man ønsker det. Fra stuen er det direkte utgang til en takterrasse på ca. 53 kvm.
Soverom
Hoveddelen har to soverom i u. etasje og ett soverom i 1. etasje.
Bad 1. etasje
Flislagt bad fra byggeår med gulvvarme. Baderomsinnredning med glatte fronter og heldekkende benkeplate/servant med ett-greps armatur. Det er montert speil med belysning over servant. Dusjhjørne med innfellbare glassdører og dusjarmatur tilkoblet hånddusj og regndusj. Massasjebadekar med ett-greps armaturer tilkoblet hånddusj. Vegghengt toalett med innebygget sisterne. Opplegg for vaskemaskin. Balansert ventilasjon.
Bad u. etasje
Flislagt bad fra byggeår med gulvvarme. Vegghengt servantinnredning med glatte mørke fronter og heldekkende servant med ett-greps armatur. Det er montert speilskap, stikkontakt og belysning på vegg over servant. Dusjhjørne med innfellbare glassdører og dusjarmatur tilkoblet hånddusj og regndusj. Balansert ventilasjon.
Toalettrom u. etasje
Toalettrom med vegghengt servantinnredning med glatt mørk front og heldekkende servant. Det er montert speilskap på vegg over servant. Vegghengt toalett med innebygget sisterne. Balansert ventilasjon.
Teknisk rom samt Teknisk/VVS
- Varmtvannsbereder på 198 liter (årstall 2012)
- Trykktanker, bereder/varmepumpe med varmegjenvinning, målere
- Stoppekraner og fordelerstamme for vannrør
- Fordelerskap for rør-i-rør system til underetasje
- Utslagsvask av rustfritt stål med ett-greps armatur montert på vegg
- Opplegg for vaskemaskin og tørketrommel
- Balansert ventilasjon
- Ventilasjonsaggregat for balansert ventilasjon montert i entré i underetasje til hybeldel og i bod i underetasje/hoveddel.
- Fordelerskap for vannbåren gulvvarme montert i skyvedørsgarderobe i 1 etasje
- Vannrør av typen rør-i-rør system
- Synlige avløpsrør av plast
- Vannrør av typen kobberrør, forkrommede rør og plastrør
- Oppvarming med vannbåren gulvvarme
Vegger: Malte glatte flater, fliser
Gulv: Laminat, fliser
Himling: Malt glatt flate
Annet fast inventar
- Skyvedørsgarderobei entré i u. etg./hoveddel
- 2 Skyvedørsgarderober i 1. etasje, den ene har en treg dør og en sprekk øverst.
Hybeldel:
Hyggelig stue og kjøkken i åpen løsning. Her er det plass til sofagruppe og spiseplass. Vannbåren gulvvarme, samt en moderne peisinnsats gir god varme på kalde dager. Fra stuen er det direkte utgang til terrassen.
Pen kjøkkeninnredning fra byggeår med glatte fronter og benkeplater av laminat med nedsenket oppvaskkum av rustfritt stål. Benkeskapsbelysning og stikkontakter. Hvitevarer som komfyr m/steketopp, oppvaskmaskin og kjøleskap m/frysedel. Ventilator med mekanisk avtrekk over komfyr. Varmtvannsbereder på 115 liter (årstall 2019) er montert under kjøkkenbenk. Det er montert lekkasjestopper under oppvaskkum. Balansert ventilasjon.
Det er kun de hvitevarene som er listet opp som medfølger: Oppvaskmaskin og stekeovn.
Det gjøres oppmerksom på at hvitevarene er kjøpt for noen år tilbake, og kjøper må forvente slitasje som følge alder og normal bruk.
Soverom
Hybelen har ett soverom av god størrelse. I tillegg en gang som benyttes som kontor/soverom (Ikke godkjent til varig opphold)
Bad
Romslig, flislagt bad fra byggeår med gulvvarme. Baderomsinnredning med glatte mørke fronter og heldekkende servant med ett-greps armatur. Det er montert speil og belysning over servant. Dusjhjørne med innfellbare glassdører og dusjarmatur tilkoblet hånddusj. Vegghengt toalett med sisternekasse. Opplegg for vaskemaskin.
Toalettrom
Flislagt gulv med gulvvarme. Vegghengt servantinnredning med glatt front og heldekkende servant. Det er montert speilskap på vegg over servant. Vegghengt toalett med sisternekasse. Balansert ventilasjon.
Vegger: Fliser, mur, mdf-panel
Gulv: Laminat, fliser
Himling: Malt glatt flate
Løsøre og tilbehør
Vi viser til liste fra Norges Eiendomsmeglerforbund som gjelder fra 01.01.2020 angående løsøre og tilbehør.
Oppvarming
Oppvarming av boligen skjer i hovedsak ved bruk av varmepumpeanlegg med integrert varmtvannsbereder tilknyttet energibrønn og sirkulasjonspumpe, vannbåren gulvvarme og vedfyring. Varmekabler i spisestue i 1.etg.
Dersom beboelsesrom ikke har vegg- eller fastmonterte varmekilder ved visning, følger dette heller ikke med.
Selger har ikke avtalt Norgespris på strøm på eiendommen. Ny eier må selv ta stilling til om de ønsker dette.
Les mer om Norgespris her: https://www.regjeringen.no/no/aktuelt/legg-fram-lov-om-norgespris-pa-straum-og-fjernvarme/id3102642/
Sikringsskap
Sikringsskap til hybeldel og hoveddel med automatsikringer og strømmålere montert i tilliggende garasje
Ferdigattest/brukstillatelse
Det foreligger ferdigattest på Nybygg bolig med sekundærleilighet, datert 21.03.2023.
Denne kan fås ved henvendelse til megler.
Spisestue i 1.etg er opprinnelig byggemeldt som veranda og det er opprinnelig inntegnet en balkong mot vest i trappegang i 1.etg, denne er innlemmet som gang. Arealene er ikke godkjent til varig opphold. Innredning av rommene til bruk for varig opphold er ikke bruksendret/omsøkt og er heller ikke godkjent av kommunen. Konsekvensen ved søknad kan være at rommet ikke godkjennes som varig opphold og at rommet da må brukes som bod/midlertidig oppbevaring.
Kjøper overtar alt ansvar, kostnad og risiko for dette videre.
Tinglyste heftelser og rettigheter
Eiendommen overdras fri for pengeheftelser foruten:
Eiendommen er utskilt fra naboeiendommen gnr. 2, bnr. 457, Mokleiva 48.
Det er tinglyst følgende heftelser på naboeiendommen, som også antas å ha betydning for denne eiendommen.
Kjøpers lån vil få 2.prioritet etter refusjonsplikt til kommunen.
Dagboknr. 900295, tinglyst 25.04.1924
Bestemmelse om bebyggelse
Forbud mot visse former for næringsvirksomhet.
Bestemmelse om generende virksomhet
Bestemmelse om veg
Forklaring: Servitutten antas å ikke lenger ha betydning for eiendommen.
Dagboknr. 417, tinglyst 15.01.1990
Rettsbok forlik mellom bnr.380, 383, 391, 395, 396 og 2/457 vedr. brygge m.m.
Gjelder denne eiendommen med flere.
Dagboknr. 744, tinglyst 31.01.1994
Refusjonsplikt til kommunen ved fremtidig opparbeidelse av vei- og ledningsanlegg.
Kan ikke slettes uten samtykke fra kommunen
Forklaring: Plikt til å bekoste eventuell fremtidig opparbeidelse/utvidelse av vei- og ledningsnett.
Dagboknr. 4092, tinglyst 04.05.2004
Erklæring/Avtale
Retthetshaver gnr. 2, bnr 432
bestemmelse om vann/kloakkledning
Gjelder for 2 nye enheter.
Med flere bestemmelser
Badehuset står tinglyst på en parsell med gnr. 2, bnr. 457 - Mokleiva 48 og er oppført på kommunal grunn.
I forbindelse med utskillelsen av Mokleiva 50 fra denne eiendommen ble det skriftlig avtalt med eier av Mokleiva 48 at badehuset skulle følge den utskilte eiendommen som nå selges.
Avtalen om rett til strandlinje/badehus ble ikke tinglyst. Kjøper overtar derfor ansvar og risiko knyttet til dette forholdet, herunder eventuelt behov for formalisering og tinglysing av rettigheten. Dersom Kartverket ikke godkjenner overførsel er risikoen at dette blir stående slik fremover og ikke blir tinglyst.
Eventuell adgang til utleie
Hybelen er godkjent som separat boenhet, og kan lovlig leies ut.
Det gjøres oppmerksom på at det er krav til forsvarlige radonnivåer ved utleie. Det er ikke gjennomført radonmåling på denne boligen.
Diverse
Platting/brygge ved badehuset står delvis på naboens tomt mot nord. Det er avtalt med naboen at denne delen skal fjernes, slik at det blir omtrent én meter avstand mellom konstruksjonene. Kjøper overtar ansvar og risiko for å følge opp og gjennomføre dette, og henvises til vedlagt kartutsnitt for nøyaktig tomtegrense.
Det er registrert forhold på befaringstidspunktet den 23.02.2026 som tyder på behov for en utvidet kontroll og kartlegging av branntekniske forhold som gjelder for boligen grunnet sprekk i pipe i etasje og manglende brennbar plate under ildstedene. Bare en slik tilleggsundersøkelse av fagpersoner med brannfaglig spesialkompetanse kan gi en full oversikt over forholdene og avdekke om det er behov for tiltak. Det ble utført kontroll av branntekniske forhold av brann og redningsetaten 27.02.2026. Det ble ikke registrert avvik eller krav om utbedrende tiltak fra kontrollen.
Beliggenhet og tomteforhold
Beliggenhet og tomteforhold
Beliggenhet
Eiendommen ligger i et av Nesoddens mest populære boområder på Nesoddtangen hvor du bor i gangavstand til Nesoddbåten. Det er kort gangavstand til både barneskole, ungdomsskole, barnehager og friareal, samt alle servicefunksjoner. Kommunesenteret Tangenten huser bibliotek, helsestasjon, kulturskole og kafé m.m. Fra Nesoddtangen brygge er det hyppige båtavganger innover til Aker Brygge og Lysaker, noe som gjør stedet attraktivt for pendlere.
Videre er det kort vei til sjøen mot både øst og vest, og til Kyststien som strekker seg langs store deler av Nesodden. Populære badeplasser i gangavstand er blant annet Oksval, Hornstranda, Odden og Strandpromenaden som er en del av Flaskebekks strandlinje.
Det finnes også gode muligheter for sportslige aktiviteter i området, med bl.a. flere fotballbaner, friidrettsbane, tennisbaner, liten slalåmbakke og lysløype med et rikt oppmerket tur-nett. Nesodden IF benytter Berger idrettspark som ligger ved Nesodden videregående skole. Av severdigheter og kulturelle tilbud kan Galleri Vanntårnet anbefales, samt Hellviktangen med egen kunstkafé, brygge, badestrand og park.
Servicetilbud
Dagligvarehandelen kan blant annet gjøres på Kiwi og Extra. Ønsker du ytterligere servicetilbud har Tangen senter blant annet en stor Meny-butikk, vinmonopol, apotek, samt et godt utvalg av butikker og velværetilbud. Vinterbro, Ski og Oslo sentrum ligger også godt innen rekkevidde via offentlig kommunikasjon eller bil.
Nærmeste bussholdeplass ligger ca. 4 minutters gange unna, alternativt kan man også gå eller sykle til bryggen og plassere sykkelen i eget sykkelhotel.
Det er ca. 1 km til Nesoddtangen brygge – hvor hurtigbåten tar deg til Fornebu/Lysaker på ca. 8 min og til Aker brygge på ca. 23 minutter.
Ved å benytte bil tar det ca. 5 min. til Tangenåsen, 25 min. til Vinterbro Senter, 35. min til Drøbak, 35. min til Ski og 45 min. til Oslo S.
Eiendommen har skoletilhørighet til Nesoddtangen barneskole og Tangenåsen ungdomsskole. Steinerskolen ligger ved Skoklefall og Nesodden videregående skole ligger på Berger/Hellvik. Kommunen har et godt utvalg av både private og kommunale barnehager.
Adkomst
Med bil:
Ta av ved Nesset og følg fv 156 mot Nesoddtangen. Ta rett fram i rundkjøringen ved Granholt og følg Tangenveien nedover. Ta deretter inn første vei på høyre hånd som er Haakons vei. Ta deretter første vei til venstre som er Mokleiva og følg denne nedover. Eiendommen ligger på venstre side.
Med båt og buss:
Ta båt fra Aker brygge eller Lysaker til Nesoddtangen brygge. Ta buss videre og gå av på Granholt bussholdeplass. Følg Tangenveien litt tilbake og kryss hovedveien. Ta inn Haakons vei og deretter inn Mokleiva på venstre hånd. Eiendommen ligger på venstre side.
Se også Google maps - det er enkelt å finne frem i kartet. Det vil bli skiltet med Krogsveen visningsskilt ved fellesvisninger.
Barnehager, skoler og fritid
Gangavstand til flere barnehager, samt barne- og ungdomsskole på Tangenåsen. Kort vei til Steinerskole på Skoklefall og videregående skole på Berger/Hellvik.
Informasjon om tilhørende skolekretser er hentet fra Prognosesenteret som dataleverandør og tilhørigheten kan årlig endres av kommunen. Dersom skole- og barnehagetilbud er av betydning for kjøpet, ber vi om at det rettes en særskilt henvendelse til kommunen for oppdatert informasjon.
Beskrivelse av tomt
Eiertomt på 994 kvm som er opparbeidet belegningsstein i innkjørsel, terrasse på terreng, diverse støttemurer, gjerder, grillhytte, plenarealer og diverse beplantninger. Badehus ved båthavn medfølger tomten, tomten badehuset står på er ikke oppmålt, tomten eies av Nesodden kommune og parsellen har Gnr, bnr.
Parkering
Parkering i dobbelgarasje.
Vei, vann og avløp
Eiendommen har adkomst via privat vei med felles vedlikeholdsansvar.
Tidligere nabo i Mokleiva 48 har søkt om ny utkjørsel fra eiendommen, det er ukjent om dette ble godkjent, og om de nye naboene ønsker å utføre planene.
Eiendommen er tilknyttet kommunalt ledningsnett via private stikkledninger. Eier er selv ansvarlig for private stikkledninger til boligen.
Regulerings-og arealplaner
Eiendommen er regulert til boliger og annen veigrunn i henhold til reguleringsplan Nordre del av toppen datert 19.09.1991 med tilhørende reguleringsbestemmelser.
Eiendommen er regulert til boligbebyggelse i kommuneplan for 2022-2046.
Reguleringsplaner under arbeid i nærheten:
Id 20240236
Navn: Områdeplan for Oksval-Ursvik utenfor vekstgrensen
Status: Planlegging igangsatt
Plantype: Områderegulering
Id 20240235
Navn: Områdeplan for Oksval-Ursvik innenfor vekstgrensen
Status: Planlegging igangsatt
Plantype: Områderegulering
Id 20240234
Navn: Detaljregulering for Granholt
Status: Planlegging igangsatt
Plantype: Detaljregulering
Forklaring: Det er igangsatt planarbeid for detaljregulering av Granholt og nærliggende eiendommer i øst. Planområdet er på ca. 20,7 dekar og omfatter blant annet Tangen 7 Sameie og deler av Fv. 156. Hensikten er å legge til rette for en naturlig utvidelse av Tangen sentrum. Det planlegges et nytt bofellesskap med sosiale møteplasser for enslige og eldre, samt boliger, næring og servering. Forslaget inkluderer ca. 65 boliger fordelt på fire etasjer pluss inntrukket 5. og 6. etasje, med tilhørende uteområder og adkomst.
Utsnitt av plan med tilhørende bestemmelser kan fås ved henvendelse til megler.
Områdeanalyse megler har mottatt viser:
- Radon: Eiendommen ligger i et område med lav aktsomhet for radon.
Økonomi
Økonomi
Kommunale utgifter
Kommunale avgifter er kr 39 336,- for 2025. I dette inngår gebyr for vann, avløp og renovasjon. Vann og avløp fakturers etter forbruk.
Nåværende eier har et strømforbruk som tilsvarer ca. kr 55.000-/år.
Boligen har en årlig forsikringspremie på kr 14 994,-.
Velavgift til Oksval vel.
Boligen er tilknyttet Telia som leverandør av bredbånd og har avgift på kr 1.100,-/md. Tuner/dekoder medfølger ikke.
Boligen er tilknyttet Sikring24 alarmselskap som koster kr 7.300 pr. år.
Utgiftene er basert på nåværende eiers forbruk og avtaler.
Formuesverdi
Formuesverdi for 2024 var kr 2 877 858,- ifølge Skatteetaten. Beløpet forutsetter at eier bor fast i boligen (primærbolig).
Ved eventuell øvrig bruk av eiendommen (f.eks. fritidsbolig, pendlerbolig, utleieobjekt) var formuesverdien for 2024 kr 10 539 797,-.
Fra 2026 har Stortinget vedtatt en oppdatert modell for beregning av formuesverdi for primærbolig, så avvik kan forekomme.
For mer informasjon se skatteetaten.no
Eiendomsskatt
Det er p.t ikke vedtatt eiendomsskatt for eiendommer i kommunen.
Omkostninger
15 300 000,00 Prisantydning
Omkostninger
382 500,00 Dokumentavgift til staten (2,5% av kjøpesum)
19 900,00 Gjensidige Boligkjøperpakke (valgfri)
545,00 Tinglysing panterettsdokument
545,00 Tinglysing skjøte
--------------------------------------------------------
403 490,00 Omkostninger totalt
--------------------------------------------------------
15 703 490,00 Totalpris inkl. omkostninger
--------------------------------------------------------
Totalpris inkl. omkostninger forutsetter kjøp til prisantydning.
Det tas forbehold om endringer i avgifter og gebyrer.
Tilbud om lånefinansiering
Megler formidler gjerne kontakt med rådgiver hos vår samarbeidspartner BN Bank. De har konkurransedyktige betingelser samt rask og løsningsorientert behandling av din lånesøknad. Krogsveen mottar et honorar dersom lån opprettes.
Betalingsbetingelser
Kjøpesum inkludert omkostninger, samt pantedokument tilknyttet eventuelt lån, skal være disponibelt hos megler 2 virkedager før overtagelsen.
Annen viktig informasjon
Annen viktig informasjon
Eier
Turid Blix Lie
Overtakelse
Etter nærmere avtale.
Boligselgerforsikring
Selger har i forbindelse med salget tegnet boligselgerforsikring levert av Gjensidige.
Boligselgerforsikringen dekker selgers ansvar etter avhendingsloven begrenset oppad til kr 14 millioner. Dersom kjøper oppdager forhold ved eiendommen som hen mener utgjør en mangel ved eiendommen, vil Gjensidige behandle reklamasjonen på vegne av selger. Forsikringsvilkår kan fås ved henvendelse til megler.
Vedlagt salgsoppgaven følger selgers egenerklæringsskjema og tilstandsrapport. Interessenter må sette seg inn i dokumentene før bud inngis.
Boligkjøperforsikring
Innen kontraktsmøtet må kjøper ta stilling til om det ønskes å bestille Boligkjøperpakken gjennom Gjensidige. I denne gunstige pakken er boligen ferdig forsikret og inkluderer rettshjelpsforsikring, også kalt Boligkjøperforsikring. Rettshjelpsforsikring gir trygghet og tilgang på profesjonell juridisk hjelp dersom det oppdages uventede feil eller mangler det første året etter overtagelse. Forsikringsselskapet behandler i så fall ethvert mangelskrav kjøper måtte ha overfor selger.
Boligkjøperpakken inkluderer bygningsforsikring for hus og hytte, innboforsikring, flytteforsikring og dobbel rentedekning - i situasjoner hvor kjøper ikke får solgt nåværende primærbolig.
Kjøper mottar ingen særskilt faktura for Boligkjøperpakken da kostnaden det første året legges til kjøpesummen for boligen. Det gjøres oppmerksom på Krogsveen mottar et honorar for denne formidlingen.
Produktark for Boligkjøperpakken ligger vedlagt i salgsoppgaven.
Dersom ikke boligkjøperpakke ønskes kan kun rettshjelpsforsikring, også kalt boligkjøperforsikring, tegnes særskilt via megler. Rettshjelpsforsikringen varer i 5 år fra overtagelse og leveres gjennom Gjensidige. Ta kontakt med megler for ytterligere informasjon.
Selskap og privatpersoner som driver med kjøp/salg/utvikling som ledd i egen næringsvirksomhet kan ikke tegne boligkjøperpakke eller rettshjelpsforsikring.
Budgivning
Forbrukerinformasjon om budgivning er vedlagt denne salgsoppgaven og er også på vår hjemmeside Krogsveen.no. Alle bud og budforhøyelser må inngis skriftlig. I tillegg må legitimasjon være fremlagt sammen med signatur fra budgiver.
Vi oppfordrer til å gi bud elektronisk via GI BUD-knappen på eiendommens hjemmeside på Krogsveen.no. Da vil samtlige vilkår bli oppfylt.
Eventuelle forhøyelser eller endringer av budet kan bekreftes pr SMS eller på e-post. Vi oppfordrer alltid til å kontakte megler pr. telefon i tillegg da forsinkelser i SMS og e-post kan forekomme.
For at budene skal kunne bli behandlet og videreformidlet skriftlig til alle involverte parter, må alle bud ha en tilstrekkelig lang akseptfrist, jf. eiendomsmeglingsforskriften § 6-3.
Selger må også skriftlig akseptere budet før aksept kan formidles til budgiver. Akseptfrist bør derfor være på minimum 30 minutter, og budforhøyelser må derfor skje i god tid før fristens utløp.
Bud i forbrukerforhold kan uansett ikke settes med kortere frist enn kl. 12.00 første virkedag etter siste annonserte visning. I tillegg kan ikke budet ha forbehold om at det skal holdes hemmelig ovenfor øvrige interessenter. Megler har iht lov om eiendomsmegling ikke anledning til å videreformidle disse budene, og de vil dermed heller ikke bli journalført.
Etter at eiendommen er solgt vil kjøper og selger få tilsendt budjournal. Øvrige budgivere kan få utlevert kopi av budjournalen i anonymisert form.
Hvitvaskingsreglene
I henhold til lov om hvitvasking og terrorfinansiering har megler plikt til å gjennomføre kontrolltiltak overfor kunder, herunder fullmektiger. Dette innebærer bl.a. å bekrefte kunders og reelle rettighetshaveres identitet på bakgrunn av fremvist gyldig legitimasjon eller på annen godkjent måte, samt å innhente opplysninger om kundeforholdets formål og tilsiktede art.
Dersom slike kundetiltak ikke kan gjennomføres, kan megler ikke etablere kundeforholdet eller utføre transaksjonen.
Hvis kjøper ikke bidrar til gjennomføring av kundekontrollen og dette fører til at transaksjonen blir forsinket eller ikke kan gjennomføres, vil dette ansees som mislighold av avtalen og gi selger rettigheter etter avhendingslova kapittel 5. I tilfeller der selger ikke bidrar til gjennomføring av løpende kundekontroll underveis i oppdraget, er det selger som misligholder sine forpliktelser etter avtalen og gi kjøper rettigheter etter avhendingslovens kapittel 4. Partene er selv ansvarlige for eventuelle kostnader og ansvar dette kan medføre. Eiendomsmegleren eller eiendomsmeglingsforetaket kan ikke holdes ansvarlig for de konsekvenser dette vil kunne få for partene eller andre som har interesser i eiendomshandelen.
Kjøper oppfordres til å innbetale kjøpesummen som ikke kommer fra låneinstitusjon i én samlet innbetaling fra egen konto i norsk bank. Megler har plikt til å melde fra til Økokrim om eiendomshandler som fremstår som mistenkelige. Melding sendes Økokrim uten at partene varsles.
Personopplysningsloven
I henhold til personopplysningsloven gjør vi oppmerksom på at interessenter kan bli registrert for videre oppfølging.
Lovanvendelse
Generelle bestemmelser
Salgsoppgaven er basert på de opplysningene selger har gitt til megler, den bygningssakyndiges tilstandsrapport, samt opplysninger innhentet fra kommunen, Kartverket og andre tilgjengelige kilder. Det er viktig at kjøper setter seg grundig inn i alle salgsdokumentene, herunder salgsoppgave, tilstandsrapport og selgers egenerklæring. Kjøper anses kjent med forhold som er tydelig beskrevet i salgsdokumentene, og slike forhold kan ikke påberopes som mangler. Dette gjelder uavhengig av om kjøper har lest dokumentene. Alle interessenter oppfordres til å undersøke eiendommen nøye, gjerne sammen med fagkyndig før bud inngis. Kjøper som velger å kjøpe usett kan ikke gjøre gjeldende som mangel noe han burde blitt kjent med ved undersøkelsen.
Dersom det er behov for avklaringer, anbefaler vi at interessenter rådfører seg med eiendomsmegler eller egne rådgivere før det legges inn bud.
En bolig som har blitt brukt i en viss tid, har vanligvis blitt utsatt for slitasje og skader kan ha oppstått. Slik bruksslitasje må kjøper regne med, og det kan avdekkes enkelte forhold etter overtakelse som nødvendiggjør utbedringer. Normal slitasje og skader som nødvendiggjør utbedring, er innenfor hva kjøper må forvente og vil ikke utgjøre en mangel.
Kjøper og selgers rettigheter og plikter reguleres av avtalen mellom partene, samt informasjonen som har vært tilgjengelig for kjøperen i forbindelse med handelen. Avtalen utfylles av avhendingsloven, og det gjelder ulike avtalevilkår avhengig av om kjøper er forbrukerkjøper eller ikke. Dette er nærmere beskrevet nedenfor.
På grunn av ulike avtalevilkår kan selger vurdere bud fra en som ikke er forbruker, ulikt fra en forbrukers bud. Dersom kjøper ikke er forbruker, er selger sitt mulige mangelsansvar begrenset fordi eiendommen selges "som den er". Selger kan ikke ta «som den er»- forbehold overfor en forbrukerkjøper. Selv et lavere bud fra en som ikke er forbruker kan foretrekkes fordi begrensningen i mulig mangelsansvar kan ha egenverdi for selger. Selger står fritt til å forkaste eller akseptere ethvert bud, og er for eksempel ikke forpliktet til å akseptere høyeste bud.
Budgiver skal i budskjema avgi egenerklæring om budgiver er forbruker eller næringsdrivende/ person som hovedsakelig handler som ledd i næringsvirksomhet. Budgivere får informasjon dersom andre bud er inngitt av en som ikke er forbruker.
Forbrukerkjøp - definisjon
Med forbrukerkjøp menes kjøp av eiendom når kjøperen er en fysisk person som ikke hovedsakelig handler som ledd i næringsvirksomhet.
Forbruker – avtalevilkår
Eiendommen har en mangel dersom den ikke er i samsvar med kravene som følger av avtalen, eller det foreligger brudd på bestemmelsene i avhendingsloven §§ 3-2 til 3-8. Hvis eiendommen ikke er i samsvar med det kjøperen må kunne forvente ut ifra alder, type og synlig tilstand, kan det være grunnlag for mangelskrav. Det samme gjelder hvis det er holdt tilbake eller gitt uriktige opplysninger om eiendommen. Dette gjelder likevel bare dersom man kan gå ut ifra at det virket inn på avtalen at opplysningen ikke ble gitt eller at mangelskravet ikke blir rettet i tide på en tydelig måte.
Boligen kan ha en mangel etter avhendingsloven § 3-3 andre ledd, dersom det er avvik mellom opplyst og faktisk innvendig areal, forutsatt at avviket er på 2% eller mer og minimum 1 kvm.
Ved beregning av et eventuelt prisavslag eller erstatning må kjøper selv dekke tap/kostnader opptil et beløp på kr 10 000 (egenandel).
Ikke-forbruker (næringsdrivende) – definisjon
Hvis kjøper er en juridisk person, eller en fysisk person som hovedsakelig handler som ledd i næringsvirksomhet, vil kjøpet ikke anses som et forbrukerkjøp.
Ikke-forbruker – avtalevilkår
Eiendommen har en mangel dersom den ikke er i samsvar med kravene som følger av avtalen.
Eiendommen selges «som den er», og selgers ansvar utover det konkret avtalte er da begrenset etter avhendingsloven § 3-9, første ledd andre setning.
Avhendingsloven § 3-3 andre ledd fravikes, og hvorvidt boligens arealsvikt utgjør en mangel vurderes etter avhendingsloven § 3-8.
Informasjon om kjøpers undersøkelsesplikt, herunder oppfordringen om å undersøke eiendommen nøye, gjelder også for kjøpere som ikke anses som forbrukere.
Det forutsettes at hjemmel overføres til kjøper. Hvis kjøper ikke ønsker hjemmelsoverføring av eiendommen, må det tas forbehold om dette i budet.
Meglers vederlag
Meglers vederlag betales av selger og er avtalt til:
Vederlag: 0,50 % av salgssummen inkl. eventuell fellesgjeld.
Minimumsprovisjon er kr 60 000,00
Vederlag:
Kontroll av hjemmel og heftelser kr 3 900,00
Markedsføringspakke kr 29 900,00
Oppgjør kr 8 900,00
Tilrettelegging kr 19 900,00
Visninger pr stk / Overtagelse kr 3 500,00
Utlegg:
Innhenting av offentlig opplysninger Nesodden kommune kr 5 397,00
Tinglysing sikring kr 545,00
Andre utgifter:
AX tilstandsrapport enebolig over 250kvm kr 24 687,50
Boligselgerforsikring Gjensidige Eiet - regnes av prisantydning kr 65 000,00
Foto kr 5 000,00
Vi er opptatt av verdiskapning, og har knyttet til oss samarbeidspartnere som skal sikre våre kunder de beste produkter og tjenester;
• I forbindelse med forberedelse av salget, innhenter vi informasjon om eiendommen hovedsakelig fra vår samarbeidspartner Amibita.
• Gjensidige leverer boligselgerforsikring og tilbyr bygningsforsikring
• Boligkjøperforsikring leveres av Hiscox og med Sedgwick som skadebehandler, og er formidlet gjennom Gjensidige.
• BN bank tilbyr finansieringsløsninger
• Vår avdeling Krogsveen Pluss tilbyr flyttetjenester som utvask, visningsvask, lager, tømming og transport av flyttelass, i tillegg til å formidle kontakt med Flip for overflateoppussing.
• I forbindelse med overtagelse av eiendommen tilbyr Overo avtale om strøm, alarm og bredbånd.
• Krogsveen er, sammen med øvrige bransjeaktører, medeier i Bomega AS som tilbyr den digitale annonseringsplattformen Hjem.
Opplysninger om oppdraget
Oppdragsnummer 51-0009/26
Eiendomsmegler Krogsveen AS, avd. Nesodden
Vestveien 51, Tangen Center, 1452, NESODDTANGEN
950 007 613
Oppdragets KR-kode KR51.269
Dato
Sist oppdatert: 20. mai 2026 kl. 13:39
Dokumenter
Dokumenter
PDF – 943 KB
PDF – 5 MB
PDF – 167 KB
PDF – 1 MB
PDF – 1 MB
PDF – 599 KB
PDF – 565 KB
PDF – 4 MB
PDF – 312 KB
PDF – 29 KB
PDF – 127 KB
PDF – 392 KB
Område
Legg til steder som er viktige for deg
Visning
Ta kontakt med megler for avtale om privatvisning. Ønsker du kun å bli holdt orientert, kan du fra eiendommens hjemmeside få varsel om solgtpris, eller kontakte megler.
Lurer du på noe?
Unngå doble boligrenter
Vi tilbyr gunstig forsikring.
Vurderer du utleie?
Få et tilbud fra Utleie KrogsveenHva koster lånet?
Sjekk estimert lånekostnadVil du varsles om lignende boliger?
Ved å lagre ditt boligsøk hos oss får du beskjed når vi har en bolig som ligner denne, før den legges ut på markedet!

