Skullerudveien 57
4 040 000 kr
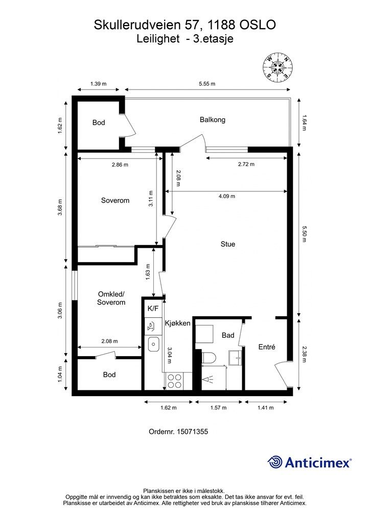
56 m²
2 soverom
Solgt
Skullerud
Pen og moderne 3-r med garasjeplass og heisadkomst | Ettertraktet intern beliggenhet | Solrik og nordvestvendt balkong
Prisantydning
4 040 000 krAndel fellesgjeld
42 900 krOmkostninger
113 090 krTotalpris
4 195 990 kr
Pris
Bruksareal
61 m²BRA-I (internt bruksareal)
56 m²BRA-E (eksternt bruksareal)
5 m²TBA (terrasse-balkongareal)
9 m²
Areal
Etasje
3Byggeår
1990Soverom
2 soveromBad
1 badType
EierleilighetEierform
EierseksjonFasiliteter
Garasje/P-plass, Heis og Balkong/TerrasseFellesutgifter
4 378 krEnergimerke
Rød E
Nøkkelinfo
Unngå doble boligrenter
Vi tilbyr gunstig forsikring.
Vurderer du utleie?
Få et tilbud fra Utleie KrogsveenHva koster lånet?
Sjekk estimert lånekostnadDette liker selger best ved boligen
Beliggenheten til leiligheten er veldig fin. Det er garasje i kjelleren og det er heis i blokka. Det er nærhet til butikker og spisesteder samt marka. Skullerud sportssenter og klatresenteret er også fine steder å trekke frem. I selve leiligheten er det en god planløsning med et nytt kjøkken med smarte løsninger på et relativt lite og trangt kjøkken. Ettermiddagssola kan nytes på terrassen etter jobb og det er et rolig å stille område.
Beskrivelse
Kort om eiendommen
Lys og moderne 3-roms selveierleilighet på markanære Skullerud med heisadkomst, garasjeplass, stor og solrik balkong og svært god intern beliggenhet , både på feltet og i bygget. Leiligheten er smakfullt innredet i lyse farger og fremstår som godt vedlikeholdt. Planløsningen er effektiv, og du får blant annet delvis åpen stue/kjøkkenløsning, baderom fra 2011 og et lekkert kjøkken fra 2024. Perfekt for deg som ønsker en lys og innflyttingsklar leilighet!
Høydepunkter:
-Pen og praktisk 3-roms vendt nordvest
- Solrik og romslig balkong på 9 m²
- Nytt HTH-kjøkken fra 2024 med integrerte hvitevarer
- Bad fra 2011 med moderne overflater og gulvvarme (også oppgr. 24/25)
- Garasjeplass (lader kan installeres)
- God planløsning
- Innbydende og moderne fargevalg
- Ingen forkjøpsrett
Område
Legg til steder som er viktige for deg
På flyttefot? Tenk kjøp og salg samtidig.
Få din egen rådgiver gjennom hele kjøps- og salgsprosessen. Det starter med en verdivurdering.
Unngå doble boligrenter
Vi tilbyr gunstig forsikring.
Vurderer du utleie?
Få et tilbud fra Utleie KrogsveenHva koster lånet?
Sjekk estimert lånekostnadVil du varsles om lignende boliger?
Ved å lagre ditt boligsøk hos oss får du beskjed når vi har en bolig som ligner denne, før den legges ut på markedet!




