Vevelstadåsen 14
3 250 000 kr
48 m²
1 soverom
Solgt

Presenteres av
Hans Petter Søvik Langhus/Vevelstadåsen
Lekker 2-roms toppleilighet med stor sydvendt balkong, garasjeplass og naturnær, sentral beliggenhet
Prisantydning
3 250 000 krAndel fellesgjeld
24 934 krOmkostninger
92 890 krTotalpris
3 367 824 kr
Pris
Bruksareal
50 m²BRA-I (internt bruksareal)
48 m²BRA-E (eksternt bruksareal)
2 m²TBA (terrasse-balkongareal)
14 m²
Areal
Etasje
4Byggeår
1975Soverom
1 soveromBad
1 badType
EierleilighetEierform
EierseksjonFasiliteter
Garasje/P-plass og Balkong/TerrasseFellesutgifter
3 211 krEnergimerke
Rød F
Nøkkelinfo
Unngå doble boligrenter
Vi tilbyr gunstig forsikring.
Vurderer du utleie?
Få et tilbud fra Utleie KrogsveenHva koster lånet?
Sjekk estimert lånekostnadBeskrivelse
Kort om eiendommen
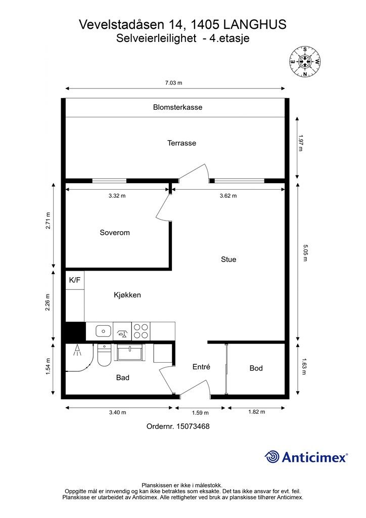
Lys og lekker 2-roms toppleilighet i 4. etasje, med flott utsikt og sydvendt balkong på 14 kvm.
Leiligheten ble pusset opp i 2021 og har et moderne kjøkken med stilige fiskebeinsfliser og benkeplater i tre. God planløsning og romslig soverom med garderobeskap.
Garasjeplass i felles anlegg følger med.
Sentral og naturnær beliggenhet på Langhus – nær butikk, buss, tog og turområder.
Kort fortalt:
- Toppetasje med flott utsikt
- Sydvendt balkong på 14 kvm
- Kjøkken (2021) med moderne uttrykk
- Soverom med garderobeskap
- Oppgradert sikringsskap (2015)
- Garasjeplass
- Gode fellesarealer
- Kort vei til marka og kollektivtilbud
Område
Legg til steder som er viktige for deg
Megler

Hans Petter Søvik
Eiendomsmegler MNEF / Partner
På flyttefot? Tenk kjøp og salg samtidig.
Få din egen rådgiver gjennom hele kjøps- og salgsprosessen. Det starter med en verdivurdering.
Unngå doble boligrenter
Vi tilbyr gunstig forsikring.
Vurderer du utleie?
Få et tilbud fra Utleie KrogsveenHva koster lånet?
Sjekk estimert lånekostnadVil du varsles om lignende boliger?
Ved å lagre ditt boligsøk hos oss får du beskjed når vi har en bolig som ligner denne, før den legges ut på markedet!
På flyttefot? Slik gjør vi det enklere for deg
Skreddersydd flyttepakke
Vi fikser håndverkere, vask, pakking, lagring og transport, og legger ut for utgiftene underveis.
Hjelp med både kjøp og salg
Hos oss har du din egen rådgiver gjennom hele kjøps- og salgsprosessen.
Hjelp til finansiering
Vårt samarbeid med BN Bank sikrer deg rask og løsningsorientert hjelp, til konkurransedyktige betingelser.
