Oksenøyveien 41A
5 300 000 kr
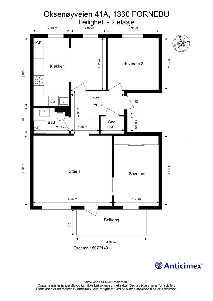
67 m²
2 soverom
Solgt

Fornebu / Lysaker
Bo sjønært på attraktive Fornebu! Delikat og lys 3-roms med balkong | Perfekt kombinasjon av natur og byliv
Prisantydning
5 300 000 krAndel fellesgjeld
125 813 krOmkostninger
19 265 krTotalpris
5 445 078 kr
Pris
Bruksareal
71 m²BRA-I (internt bruksareal)
67 m²BRA-E (eksternt bruksareal)
4 m²TBA (terrasse-balkongareal)
6 m²
Areal
Etasje
2Byggeår
1954Soverom
2 soveromBad
1 badType
AndelsleilighetEierform
AndelFasiliteter
Balkong/TerrasseFellesutgifter
6 323 krEnergimerke
Grønn F
Nøkkelinfo
Unngå doble boligrenter
Vi tilbyr gunstig forsikring.
Vurderer du utleie?
Få et tilbud fra Utleie KrogsveenHva koster lånet?
Sjekk estimert lånekostnadBeskrivelse
Kort om eiendommen
Velkommen til Oksenøyveien 41A- En delikat og gjennomgående 3-roms andelsleilighet med en attraktiv, sjønær beliggenhet.
Her bor du i et trygt og landlig nabolag med nærhet til sjø, turområder og servicetilbud. Leiligheten har en god planløsning, sjarmerende originale tregulv og et stilrent kjøkken fra 2020/21. Fra stuen er det ugagn til en balkong med utsyn til hyggelige naturområder. Dette er perfekt leilighet for deg som ønsker en enkel og behagelig hverdag med kort vei til det meste.
• Ingen dok.avgift
• Oppvarming og varmtvann inkl.
• Hyggelig balkong
• God lagringsplass med to kjellerboder
• Barnevennlig område nær barnehager, skoler og lekeplasser
• Tilgang til ladepunkter for elbil
Velkomme på visning!
Område
Legg til steder som er viktige for deg
På flyttefot? Tenk kjøp og salg samtidig.
Få din egen rådgiver gjennom hele kjøps- og salgsprosessen. Det starter med en verdivurdering.
Unngå doble boligrenter
Vi tilbyr gunstig forsikring.
Vurderer du utleie?
Få et tilbud fra Utleie KrogsveenHva koster lånet?
Sjekk estimert lånekostnadVil du varsles om lignende boliger?
Ved å lagre ditt boligsøk hos oss får du beskjed når vi har en bolig som ligner denne, før den legges ut på markedet!






































