Korvettveien 61B
1 990 000 kr
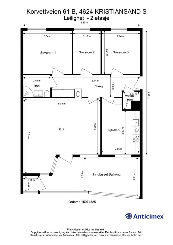
86 m²
3 soverom
Solgt

Stor leilighet med 3 soverom og stor innglasset balkong beliggende i et hyggelig borettslag i Voiebyen
Prisantydning
1 990 000 krAndel fellesgjeld
173 383 krOmkostninger
19 252 krTotalpris
2 182 635 kr
Pris
Bruksareal
113 m²BRA-I (internt bruksareal)
86 m²BRA-E (eksternt bruksareal)
7 m²
Areal
Etasje
2Byggeår
1972Soverom
3 soveromBad
1 badType
AndelsleilighetEierform
AndelFasiliteter
Balkong/TerrasseFellesutgifter
5 149 krEnergimerke
Rød G
Nøkkelinfo
Unngå doble boligrenter
Vi tilbyr gunstig forsikring.
Vurderer du utleie?
Få et tilbud fra Utleie KrogsveenHva koster lånet?
Sjekk estimert lånekostnadBeskrivelse
Kort om eiendommen
Lys og romslig leilighet med 3 soverom og nymalt stue, beliggende i et hyggelig og etablert nabolag.
Boligen har et moderniseringsbehov, men byr på svært gode kvaliteter.
Den store, innglassede balkongen fungerer som et ekstra oppholdsrom hele året – skyvedører og vinduer gir deg sommerfølelse selv på kjølige dager.
Her er det plass til både sofagruppe, grill og gjester, og en praktisk bod gjør oppbevaringen enkel.
Området er grønt og fredelig med kort vei til flotte turstier i Vågsbygdskogen, perfekt for både hverdagsmosjon og søndagsturer.
Samtidig møter du et naboskap preget av trivsel og godt miljø – her er det alltid et smil eller en prat å få. En leilighet med gode muligheter, fantastisk uteplass og beliggenhet nær naturen.
Område
Legg til steder som er viktige for deg
På flyttefot? Tenk kjøp og salg samtidig.
Få din egen rådgiver gjennom hele kjøps- og salgsprosessen. Det starter med en verdivurdering.
Unngå doble boligrenter
Vi tilbyr gunstig forsikring.
Vurderer du utleie?
Få et tilbud fra Utleie KrogsveenHva koster lånet?
Sjekk estimert lånekostnadVil du varsles om lignende boliger?
Ved å lagre ditt boligsøk hos oss får du beskjed når vi har en bolig som ligner denne, før den legges ut på markedet!

