Finstadsletta 110
6 450 000 kr
137 m²
3 soverom
Solgt

Finstadsletta / Lørenskog
Stort og familievennlig rekkehus med god standard | 3 uteplasser m/ gode solforhold | 2 stuer, 2 bad, peis & p-plass
Prisantydning
6 450 000 krAndel fellesgjeld
6 420 krOmkostninger
19 446 krTotalpris
6 475 866 kr
Pris
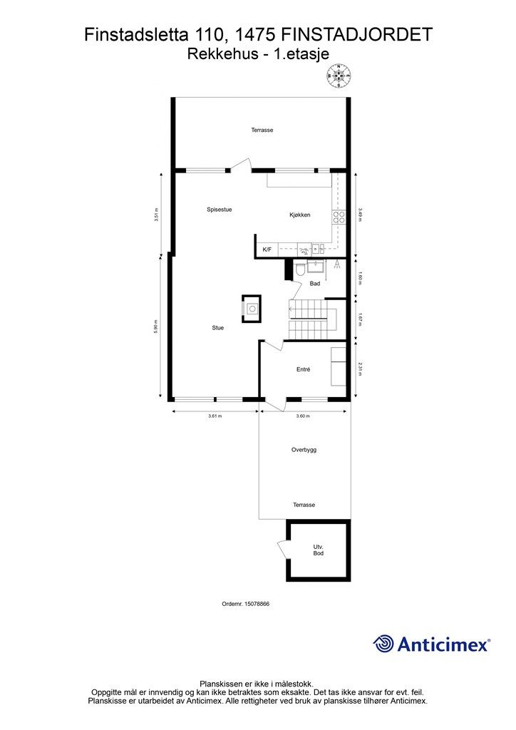
Bruksareal
142 m²BRA-I (internt bruksareal)
137 m²BRA-E (eksternt bruksareal)
5 m²TBA (terrasse-balkongareal)
55 m²
Areal
Etasje
2Byggeår
1977Soverom
3 soveromBad
2 badType
RekkehusEierform
AndelFasiliteter
Garasje/P-plass og Balkong/TerrasseFellesutgifter
6 168 krEnergimerke
Gul D
Nøkkelinfo
Unngå doble boligrenter
Vi tilbyr gunstig forsikring.
Vurderer du utleie?
Få et tilbud fra Utleie KrogsveenHva koster lånet?
Sjekk estimert lånekostnadBeskrivelse
Kort om eiendommen
Velkommen til Finstadsletta 110! Et innholdsrikt og familievennlig rekkehus med totalt 55 m² med terrasser og veranda.
Her bor du i et trygt og etablert nabolag med bilfrie tun, perfekt for barnefamilier. Beliggenheten er ideell med umiddelbar nærhet til marka, skoler, barnehager og butikker. Med to stuer, tre soverom og to bad dekkes alle familiens behov, mens de flotte uteplassene og nærheten til Østmarka inviterer til rekreasjon.
Høydepunkter:
- Godkjent tilbygg fra 2011.
- To stuer, tre soverom og to baderom.
- Moderne bad i 1. etasje renovert i 2018.
- Peisovn, varmepumpe og varmekabler i enkelte gulv.
- Parkering og utvendig bod på 5 m² inkludert.
- Kort vei til buss, butikk, skole og barnehage.
Velkommen til visning!
Område
Legg til steder som er viktige for deg
På flyttefot? Tenk kjøp og salg samtidig.
Få din egen rådgiver gjennom hele kjøps- og salgsprosessen. Det starter med en verdivurdering.
Unngå doble boligrenter
Vi tilbyr gunstig forsikring.
Vurderer du utleie?
Få et tilbud fra Utleie KrogsveenHva koster lånet?
Sjekk estimert lånekostnadVil du varsles om lignende boliger?
Ved å lagre ditt boligsøk hos oss får du beskjed når vi har en bolig som ligner denne, før den legges ut på markedet!






























































