Morkelstien 12A
3 190 000 kr
121 m²
4 soverom
Solgt

Hånes
Innholdsrik tomannsbolig m/70 kvm terrasse - Garasje i rekke - Sjøutsikt - 4 sov, 2 bad - Nyere kjøkken - Barnevennlig!
Prisantydning
3 190 000 krAndel fellesgjeld
332 255 krOmkostninger
19 252 krTotalpris
3 541 507 kr
Pris
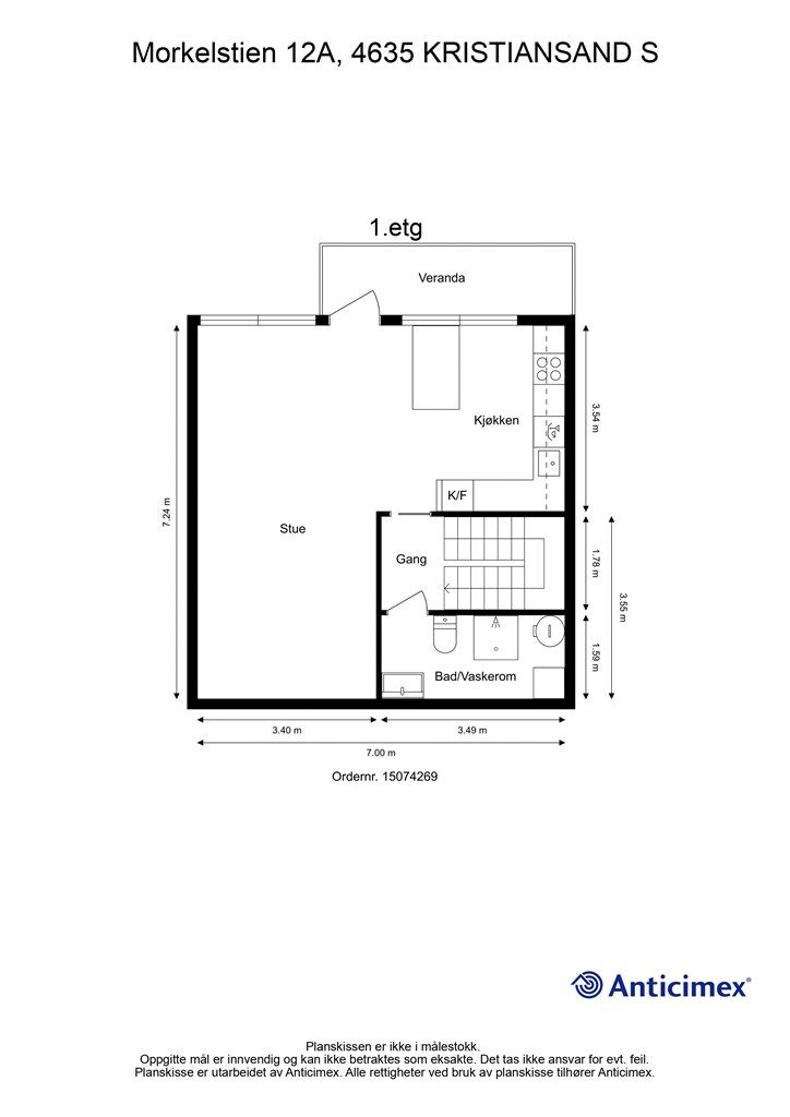
Bruksareal
140 m²BRA-I (internt bruksareal)
121 m²BRA-E (eksternt bruksareal)
19 m²TBA (terrasse-balkongareal)
89 m²
Areal
Etasje
3Byggeår
1980Soverom
4 soveromBad
2 badType
Halvpart vertikaldelt boligEierform
AndelFasiliteter
Garasje/P-plass og Balkong/TerrasseFellesutgifter
5 885 krEnergimerke
Rød F
Nøkkelinfo
Unngå doble boligrenter
Vi tilbyr gunstig forsikring.
Vurderer du utleie?
Få et tilbud fra Utleie KrogsveenHva koster lånet?
Sjekk estimert lånekostnadBeskrivelse
Kort om eiendommen
Velkommen til Morkelstien 12A - din neste bolig!
Dette er en innholdsrik tomannsbolig over tre etasjer med gode solforhold og flere flotte uteplasser! Med boligen får du fire soverom, åpen kjøkken/stue løsning, to bad samt utvendig bod, fire uteplasser og garasje i rekke. Dette er en ypperlig bolig for deg som ønsker en sentral og barnevennlig beliggenhet med kort vei til både barnehager, skoler og bussforbindelse. Det er også kort vei til dagligvarebutikk! Boligen tilhører et veldrevet borettslag med flotte lekeplasser og uteområder for både små, store og firebeinte.
Tomannsboligen har i nyere tid fått installert balansert ventilasjon, ytterveggene er malt og tak er impregnert/malt.
Boligen passer ypperlig for deg med små eller store barn, par, eller for deg som ønsker litt plass.
Område
Legg til steder som er viktige for deg
På flyttefot? Tenk kjøp og salg samtidig.
Få din egen rådgiver gjennom hele kjøps- og salgsprosessen. Det starter med en verdivurdering.
Unngå doble boligrenter
Vi tilbyr gunstig forsikring.
Vurderer du utleie?
Få et tilbud fra Utleie KrogsveenHva koster lånet?
Sjekk estimert lånekostnadVil du varsles om lignende boliger?
Ved å lagre ditt boligsøk hos oss får du beskjed når vi har en bolig som ligner denne, før den legges ut på markedet!

