Riisalleen 34
9 000 000 kr
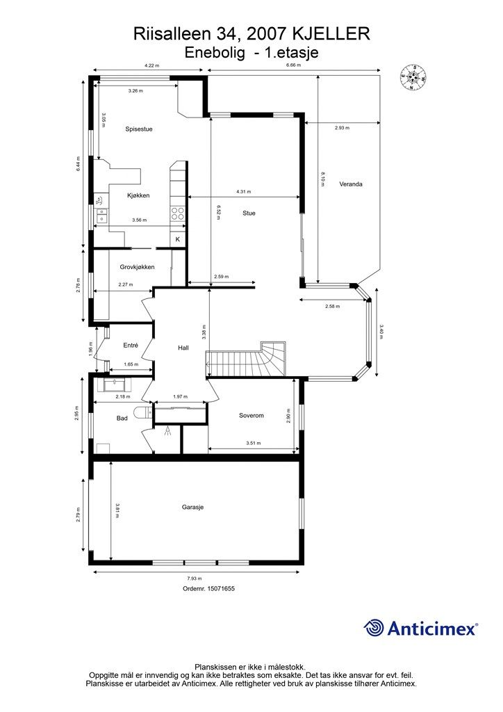
231 m²
3 soverom
Solgt

Riis / Kjeller
Skjermet og romslig enebolig med garasje, usjenerste uteplasser & idyllisk beliggenhet i skogkanten! Innerst i blindvei.
Prisantydning
9 000 000 krOmkostninger
245 990 krTotalpris
9 245 990 kr
Pris
Bruksareal
262 m²BRA-I (internt bruksareal)
231 m²BRA-E (eksternt bruksareal)
31 m²TBA (terrasse-balkongareal)
49 m²
Areal
Etasje
2Byggeår
1987Soverom
3 soveromBad
2 badTomteareal
613 m² (eiet)Type
Enebolig - FrittliggendeEierform
EietFasiliteter
Garasje/P-plass og Balkong/TerrasseEnergimerke
Rød F
Nøkkelinfo
Unngå doble boligrenter
Vi tilbyr gunstig forsikring.
Vurderer du utleie?
Få et tilbud fra Utleie KrogsveenHva koster lånet?
Sjekk estimert lånekostnadBeskrivelse
Kort om eiendommen
Velkommen til Riisalleen 34, en praktfull enebolig på Kjeller! Boligen har en gjennomtenkt planløsning og byr på både praktiske og innbydende løsninger. Her får du bl. annet tre soverom, to bad, eget vaskerom, to stuer samt kjøkken med tilhørende grovkjøkken – en ideell løsning for familier med behov for plass og funksjonalitet. Vinterhagen m/ boblebad gir boligen et ekstra særpreg og inviterer til avslapning og hyggelige stunder året rundt. Store vindusflater slipper inn rikelig med naturlig lys og gir en luftig atmosfære i oppholdsrommene. Her bor du skjermet til innerst i blindvei, med naturen som nærmeste nabo, samtidig som du har kort vei til skoler, barnehager og servicetilbud!
- Garasje m/ el-bil lader.
- Ligger høyt i terrenget, med upåklagelige solforhold & helt uten innsyn.
Område
Legg til steder som er viktige for deg
På flyttefot? Tenk kjøp og salg samtidig.
Få din egen rådgiver gjennom hele kjøps- og salgsprosessen. Det starter med en verdivurdering.
Unngå doble boligrenter
Vi tilbyr gunstig forsikring.
Vurderer du utleie?
Få et tilbud fra Utleie KrogsveenHva koster lånet?
Sjekk estimert lånekostnadVil du varsles om lignende boliger?
Ved å lagre ditt boligsøk hos oss får du beskjed når vi har en bolig som ligner denne, før den legges ut på markedet!

