Ånnerudskogen 108
12 600 000 kr
217 m²
5 soverom
Solgt

Presenteres av
Terje TveitÅNNERUD / ASKER
Sjelden mulighet! Arkitekttegnet perle sentralt til Asker med en fantastisk, solrik tomt. 5 sov. 2 bad. Dobbel garasje.
Prisantydning
12 600 000 krOmkostninger
335 990 krTotalpris
12 935 990 kr
Pris
Bruksareal
277 m²BRA-I (internt bruksareal)
217 m²BRA-E (eksternt bruksareal)
60 m²TBA (terrasse-balkongareal)
70 m²
Areal
Etasje
2Byggeår
1969Soverom
5 soveromBad
2 badTomteareal
1 070 m² (eiet)Type
Enebolig - FrittliggendeEierform
EietFasiliteter
Garasje/P-plass og Balkong/TerrasseÅrlig velavgift
400 krEnergimerke
Oransje F
Nøkkelinfo
Unngå doble boligrenter
Vi tilbyr gunstig forsikring.
Vurderer du utleie?
Få et tilbud fra Utleie KrogsveenHva koster lånet?
Sjekk estimert lånekostnadBeskrivelse
Kort om eiendommen
Velkommen til Ånnerudskogen 108, presentert av Terje Tveit i Krogsveen.
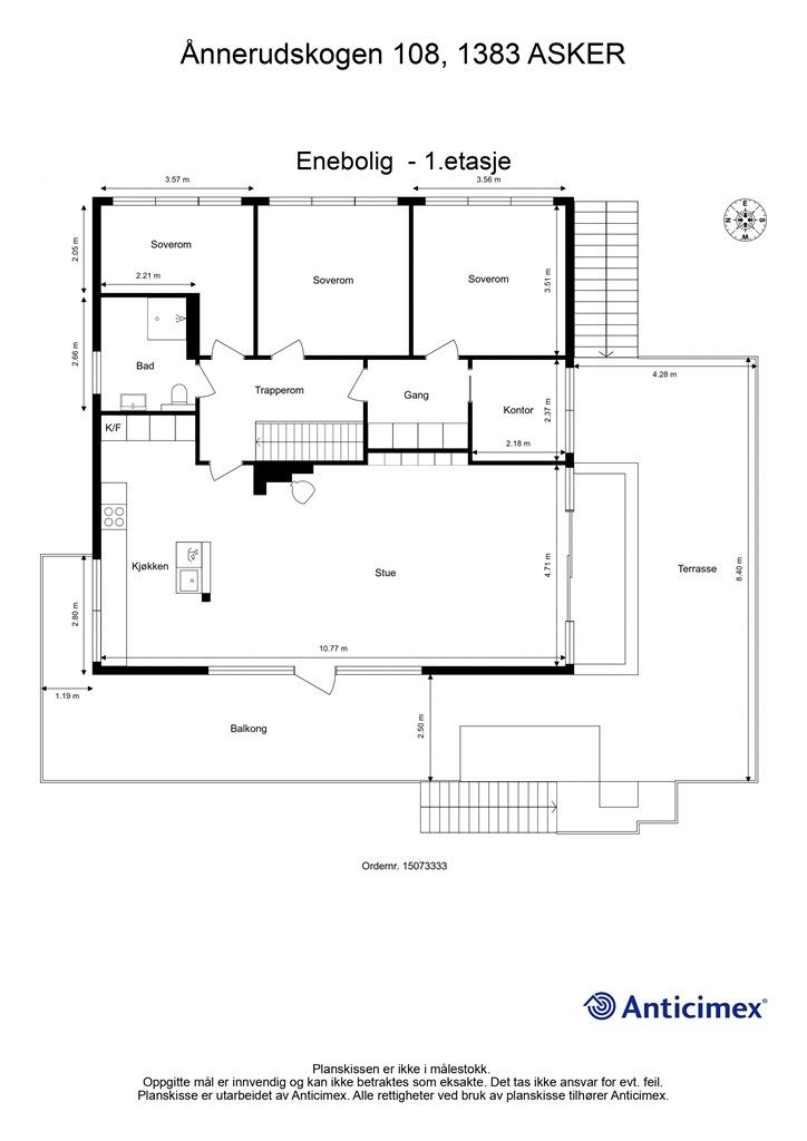
Her får du en innholdsrik, arkitekttegnet enebolig i barnevennlige og rolige omgivelser. Boligen inneholder 5 soverom, 2 bad, stue/spisestue, kjellerstue, kjøkken, garderobe, vaskerom, hobbyrom, kontor og har solrike uteplasser. Boligen ligger fint til med umiddelbar nærhet til naturopplevelser sommer og vinter, med badevann, golfbane og skiløyper rett utenfor hagen.
Kort fortalt:
5 soverom
2 bad og separat vaskerom
Peisovn i stue
Kjellerstue
Dobbel garasje og uteboder
Stille og rolig område
Rett ved Hukenbekken
Rett ut i Vestmarka fra egen eiendom
Kort vei til Asker sentrum
Attraktivt og barnevennlig nabolag
Velkommen til visning!
Område
Legg til steder som er viktige for deg
På flyttefot? Tenk kjøp og salg samtidig.
Få din egen rådgiver gjennom hele kjøps- og salgsprosessen. Det starter med en verdivurdering.
Unngå doble boligrenter
Vi tilbyr gunstig forsikring.
Vurderer du utleie?
Få et tilbud fra Utleie KrogsveenHva koster lånet?
Sjekk estimert lånekostnadVil du varsles om lignende boliger?
Ved å lagre ditt boligsøk hos oss får du beskjed når vi har en bolig som ligner denne, før den legges ut på markedet!
På flyttefot? Slik gjør vi det enklere for deg
Skreddersydd flyttepakke
Vi fikser håndverkere, vask, pakking, lagring og transport, og legger ut for utgiftene underveis.
Hjelp med både kjøp og salg
Hos oss har du din egen rådgiver gjennom hele kjøps- og salgsprosessen.
Hjelp til finansiering
Vårt samarbeid med BN Bank sikrer deg rask og løsningsorientert hjelp, til konkurransedyktige betingelser.

