Øvre Fagerhei 16
8 500 000 kr
153 m²
3 soverom
Solgt

Skarpnes - Nedenes
Lekker enebolig med attraktiv beliggenhet og pent opparbeidet hjørnetomt - Nydelig utsikt - Bergvarme og solcelleanlegg
Prisantydning
8 500 000 krOmkostninger
233 490 krTotalpris
8 733 490 kr
Pris
Bruksareal
222 m²BRA-I (internt bruksareal)
153 m²BRA-E (eksternt bruksareal)
69 m²TBA (terrasse-balkongareal)
59 m²
Areal
Etasje
2Byggeår
2014Soverom
3 soveromBad
2 badTomteareal
598 m² (eiet)Type
Enebolig - FrittliggendeEierform
EietFasiliteter
Garasje/P-plass og Balkong/TerrasseEnergimerke
Oransje B
Nøkkelinfo
Unngå doble boligrenter
Vi tilbyr gunstig forsikring.
Vurderer du utleie?
Få et tilbud fra Utleie KrogsveenHva koster lånet?
Sjekk estimert lånekostnadBeskrivelse
Kort om eiendommen
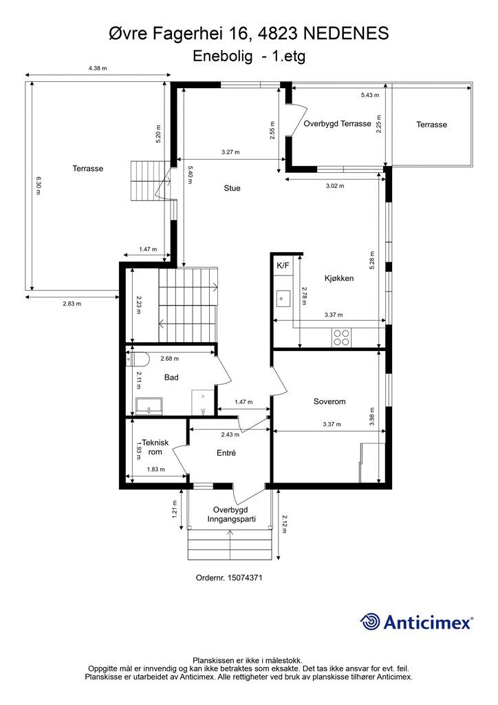
Meget innholdsrik og lekker enebolig med en rekke fine løsninger, stor hjørnetomt og nydelig beliggenhet i solrike forhold på Nedenes. Eiendommen har vannbåren gulvvarme fra bergvarmeanlegg, som gjør eiendommen svært energieffektiv. Det er dobbel garasje, terrasser (delvis overbygd) både foran og på baksiden av boligen, stort hageareal med pen beplantning. Innkjørsel er asfaltert og det er gjerde i glass som rammer inn hagen samt terrasser. Uteområdet har flere "soner" hvor man kan nyte solen hele dagen. Både enebolig og garasje er oppført over to plan. 1. etasje inneholder kjøkken, stue, soverom, bad, bod og gang/entre. Underetasjen består bad med sauna, to soverom, bod og tv-stue.
Område
Legg til steder som er viktige for deg
På flyttefot? Tenk kjøp og salg samtidig.
Få din egen rådgiver gjennom hele kjøps- og salgsprosessen. Det starter med en verdivurdering.
Unngå doble boligrenter
Vi tilbyr gunstig forsikring.
Vurderer du utleie?
Få et tilbud fra Utleie KrogsveenHva koster lånet?
Sjekk estimert lånekostnadVil du varsles om lignende boliger?
Ved å lagre ditt boligsøk hos oss får du beskjed når vi har en bolig som ligner denne, før den legges ut på markedet!

