Sons gate 29
4 950 000 kr
51 m²
1 soverom
Solgt

Presenteres av
Emilie LieKampen
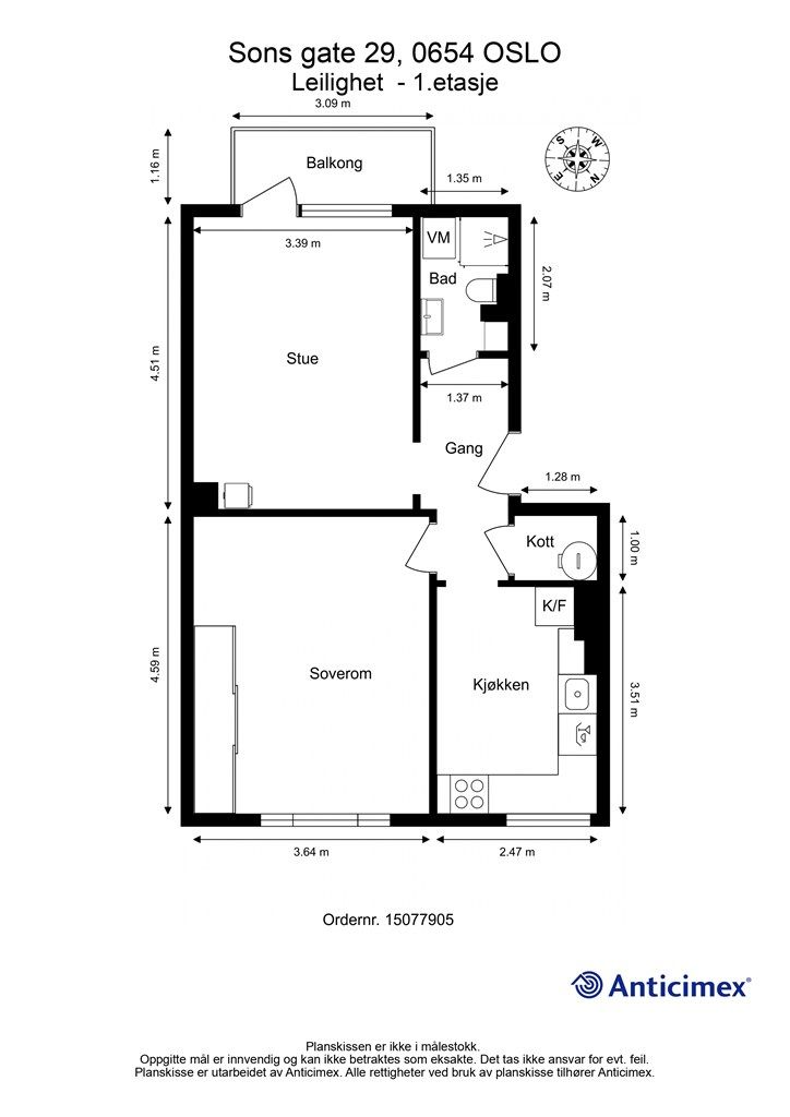
Sjarmerende og gjennomgående 2-roms leilighet med sydvestvendt balkong. Peis og sjarmerede tregulv. Separat kjøkken
Prisantydning
4 950 000 krAndel fellesgjeld
14 655 krOmkostninger
24 688 krTotalpris
4 989 343 kr
Pris
Bruksareal
57 m²BRA-I (internt bruksareal)
51 m²BRA-E (eksternt bruksareal)
6 m²TBA (terrasse-balkongareal)
4 m²
Areal
Etasje
1Byggeår
1934Soverom
1 soveromBad
1 badType
AksjeleilighetEierform
AksjeFasiliteter
Balkong/TerrasseFellesutgifter
3 796 krEnergimerke
Rød G
Nøkkelinfo
Unngå doble boligrenter
Vi tilbyr gunstig forsikring.
Vurderer du utleie?
Få et tilbud fra Utleie KrogsveenHva koster lånet?
Sjekk estimert lånekostnadDette liker selger best ved boligen
Vi elsker planløsningen med separat kjøkken og stort soverom, og at vi bor i høy 1. etasje med balkong mot indre gårdsrom. Leiligheten føles romslig, det er luftig om sommeren, og koselig og lunt om vinteren med den gode peisen. Balkongen har nok plass til grill, så vi har hatt utekjøkken nesten hele sommeren. Kampen er verdens hyggeligste nabolag, vi elsker at vi bor så tett på parken og noen av byens beste kaféer. Det er kort vei til alt man trenger og kan tenke seg, og til t-bane og sentrum. I aksjelaget har vi tilgang på trimrom, sykkelskur, og vi vil spesielt dra fram tørkeloftet som er gull å ha! Masse bodplass gjør det lett å gjemme bort alt man ikke trenger til daglig. Det er mye vi kommer til å savne masse! Vi blir nok å se i nabolaget i helgene.
Beskrivelse
Kort om eiendommen
Velkommen til Sons gate 29!
Dette er en lys og sjarmerende 2-roms leilighet med tilbaketrukket og attraktiv beliggenhet på Kampen. Leiligheten har en god planløsning og består av entré, soverom, bad, samt kjøkken og stue. Fra stuen har man utgang til en sydvestvendt balkong på 4 kvm. Boligen ligger i høy 1. etasje mot rolig bakgård og sidegate.
Fra leiligheten har du kort vei til butikker, kafeer, restauranter, kollektiv og hyggelige turområder.
Noen høydepunkter:
Kveldssol på balkongen sommerstid
Oppgradert i 2022
Separat kjøkken
Tregulv og flott takhøyde
Innvendig kott + god ekstern bodplass
Felles sykkelbod og vaskeri
Store vindusflater
Vedovn i stue
Velkommen til visning!
Område
Legg til steder som er viktige for deg
På flyttefot? Tenk kjøp og salg samtidig.
Få din egen rådgiver gjennom hele kjøps- og salgsprosessen. Det starter med en verdivurdering.
Unngå doble boligrenter
Vi tilbyr gunstig forsikring.
Vurderer du utleie?
Få et tilbud fra Utleie KrogsveenHva koster lånet?
Sjekk estimert lånekostnadVil du varsles om lignende boliger?
Ved å lagre ditt boligsøk hos oss får du beskjed når vi har en bolig som ligner denne, før den legges ut på markedet!
På flyttefot? Slik gjør vi det enklere for deg
Skreddersydd flyttepakke
Vi fikser håndverkere, vask, pakking, lagring og transport, og legger ut for utgiftene underveis.
Hjelp med både kjøp og salg
Hos oss har du din egen rådgiver gjennom hele kjøps- og salgsprosessen.
Hjelp til finansiering
Vårt samarbeid med BN Bank sikrer deg rask og løsningsorientert hjelp, til konkurransedyktige betingelser.







































