Gunnar Schjelderups vei 11K
10 850 000 kr
110 m²
3 soverom
Solgt
Høyt og fritt i Nydalen
Lys og romslig 4-roms toppleilighet med to balkonger, garasjeplass, utsikt og heis – attraktivt beliggende i Nydalen
Prisantydning
10 850 000 krOmkostninger
282 290 krTotalpris
11 132 290 kr
Pris
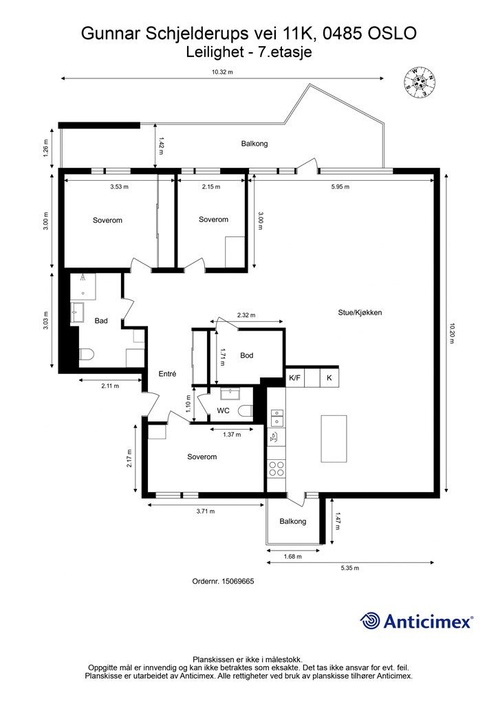
Bruksareal
115 m²BRA-I (internt bruksareal)
110 m²BRA-E (eksternt bruksareal)
5 m²TBA (terrasse-balkongareal)
18 m²
Areal
Etasje
7Byggeår
2006Soverom
3 soveromType
EierleilighetEierform
EierseksjonFasiliteter
Garasje/P-plass, Heis og Balkong/TerrasseFellesutgifter
5 874 krEnergimerke
Rød D
Nøkkelinfo
Unngå doble boligrenter
Vi tilbyr gunstig forsikring.
Vurderer du utleie?
Få et tilbud fra Utleie KrogsveenHva koster lånet?
Sjekk estimert lånekostnadBeskrivelse
Kort om eiendommen
Velkommen til en lys og pen 4-roms toppleilighet på 115 kvm BRA, beliggende i 7. etasje med heisadkomst. Planløsningen er gjennomgående og gir en luftig følelse med gode vindusflater og fine lysforhold. Leiligheten inneholder tre soverom, et baderom, tolaettrom, entré, bod og en romslig stue med åpen kjøkkenløsning. Fra stuen er det utgang til en av boligens to balkonger, som gir gode solforhold og hyggelige uteplasser. I tillegg disponeres en kjellerbod samt garasjeplass i felles anlegg. Beliggenheten er svært attraktiv med kort vei til T-bane, dagligvare, caféer og restauranter, samt flotte turmuligheter langs Akerselva. En pen og tiltalende leilighet som gir en god kombinasjon av komfort og sentral beliggenhet.
Område
Legg til steder som er viktige for deg
På flyttefot? Tenk kjøp og salg samtidig.
Få din egen rådgiver gjennom hele kjøps- og salgsprosessen. Det starter med en verdivurdering.
Unngå doble boligrenter
Vi tilbyr gunstig forsikring.
Vurderer du utleie?
Få et tilbud fra Utleie KrogsveenHva koster lånet?
Sjekk estimert lånekostnadVil du varsles om lignende boliger?
Ved å lagre ditt boligsøk hos oss får du beskjed når vi har en bolig som ligner denne, før den legges ut på markedet!




