Rotaveien 1
2 490 000 kr
201 m²
4 soverom
Solgt

Gjeving
BUD MOTTATT! Fire godkjente leiligheter i en bolig- Dobbel garasje - Perfekte utleiemuligheter i attraktivt område
Prisantydning
2 490 000 krOmkostninger
83 240 krTotalpris
2 573 240 kr
Pris
Bruksareal
247 m²BRA-I (internt bruksareal)
201 m²BRA-E (eksternt bruksareal)
46 m²TBA (terrasse-balkongareal)
87 m²
Areal
Etasje
3Byggeår
1954Soverom
4 soveromBad
4 badTomteareal
508 m² (eiet)Type
FlermannsboligEierform
EietFasiliteter
Garasje/P-plass og Balkong/TerrasseEnergimerke
Rød G
Nøkkelinfo
Unngå doble boligrenter
Vi tilbyr gunstig forsikring.
Vurderer du utleie?
Få et tilbud fra Utleie KrogsveenHva koster lånet?
Sjekk estimert lånekostnadBeskrivelse
Kort om eiendommen
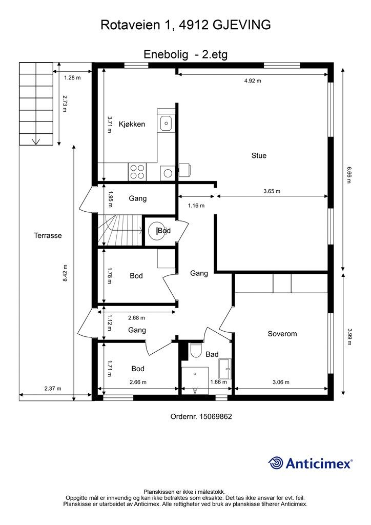
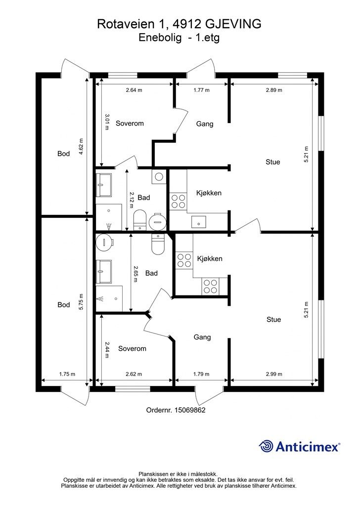
Flermannsboligen ligger sentralt plassert på Gjeving med få meters gange til badestrand, Nybrygga, restauranter med mer. Den er i et område tilrettelagt for den ultimate Sørlandsferien med sommer og idyll på alle kanter. Bygget var tidligere næring, men har i dag fire godkjente leiligheter - til utleie eller eget bruk. Leietakere kan følge med, eller sies opp ved salg (3 mnd. oppsigelse - Må avklares straks etter avtale om kjøp). Det er en flat og lettstelt tomt med dobbel garasje med loft som tilhører. Boligen har gjennomgått flere oppgraderinger fra bruksendring ble gjort og holder i dag en fin standard.
Det er to leiligheter i 1. etasje, en i 2. og en på loftet med egen adkomst fra 2. etasje. Velkommen til vakre Gjeving!
Område
Legg til steder som er viktige for deg
På flyttefot? Tenk kjøp og salg samtidig.
Få din egen rådgiver gjennom hele kjøps- og salgsprosessen. Det starter med en verdivurdering.
Unngå doble boligrenter
Vi tilbyr gunstig forsikring.
Vurderer du utleie?
Få et tilbud fra Utleie KrogsveenHva koster lånet?
Sjekk estimert lånekostnadVil du varsles om lignende boliger?
Ved å lagre ditt boligsøk hos oss får du beskjed når vi har en bolig som ligner denne, før den legges ut på markedet!

