Furuveien 26 D
11 900 000 kr
142 m²
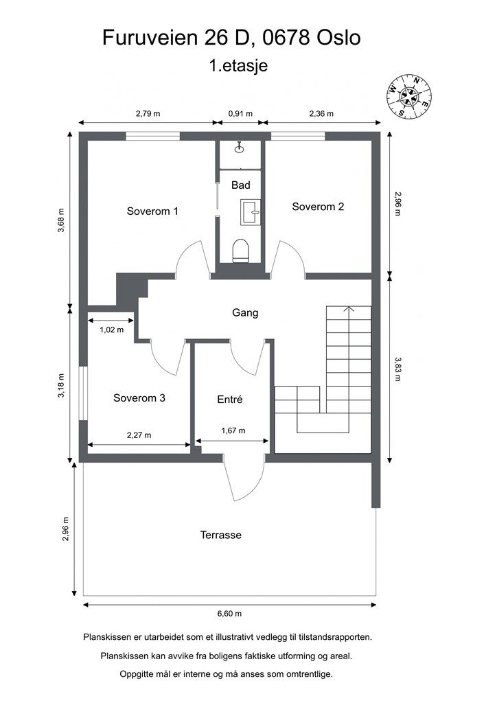
4 soverom
Solgt

Høyenhall
Innholdsrik familiebolig med attraktiv beliggenhet og flott standard fra 2024/25. Garasjeplass. Pergola. Nydelig utsikt.
Prisantydning
11 900 000 krOmkostninger
308 540 krTotalpris
12 208 540 kr
Pris
Bruksareal
142 m²BRA-I (internt bruksareal)
142 m²TBA (terrasse-balkongareal)
57 m²
Areal
Etasje
4Byggeår
1952Soverom
4 soveromBad
2 badType
Halvpart vertikaldelt boligEierform
EierseksjonFasiliteter
Garasje/P-plass og Balkong/TerrasseEnergimerke
Rød B
Nøkkelinfo
Unngå doble boligrenter
Vi tilbyr gunstig forsikring.
Vurderer du utleie?
Få et tilbud fra Utleie KrogsveenHva koster lånet?
Sjekk estimert lånekostnadBeskrivelse
Kort om eiendommen
Velkommen til Furuveien 26D!
Siste hus er nå ute for salg!
Stilfull og påkostet halvpart tomannsbolig med attraktiv beliggenhet på Høyenhall. Her er nærhet til både service- og kollektivtilbud, samt kort vei til skoler, barnehager og rekreasjonsområder.
- Familievennlig og innholdsrik halvpart tomannsbolig
- 4 soverom, 3 stuer, 2 bad samt sep. WC
- Fine uteplasser og pergola i egen del av hagen
- Nydelig utsikt
- Boligen er opprinnelig oppført 1952 og gjenoppbygget i 2024/25 etter TEK17 og dens krav til byggeteknikk, isolasjon og innemiljø
- Klargjort for peis i stue
- Lekkert HTH-kjøkken med integrerte hvitevarer
- Innredet loftsetasje med loftstue og WC
- Separat inng. til underetasjen
- Garasjeplass med infrastruktur for el-billader
- Veletablert og barnevennlig område
Område
Legg til steder som er viktige for deg
På flyttefot? Tenk kjøp og salg samtidig.
Få din egen rådgiver gjennom hele kjøps- og salgsprosessen. Det starter med en verdivurdering.
Unngå doble boligrenter
Vi tilbyr gunstig forsikring.
Vurderer du utleie?
Få et tilbud fra Utleie KrogsveenHva koster lånet?
Sjekk estimert lånekostnadVil du varsles om lignende boliger?
Ved å lagre ditt boligsøk hos oss får du beskjed når vi har en bolig som ligner denne, før den legges ut på markedet!

