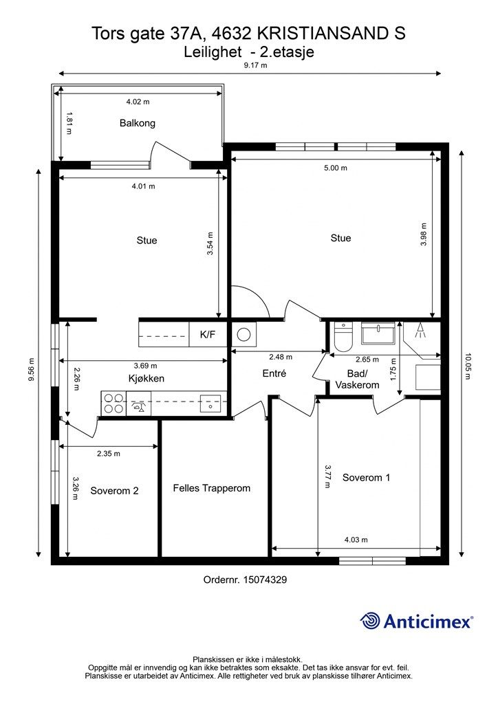
Tors gate 37A
3 890 000 kr
81 m²
2 soverom
Solgt

Sentralt beliggende og innbydende 3-roms leilighet med balkong og god planløsning i flott murbygg på Lund
Prisantydning
3 890 000 krOmkostninger
108 290 krTotalpris
3 998 290 kr
Pris
Bruksareal
84 m²BRA-I (internt bruksareal)
81 m²BRA-E (eksternt bruksareal)
3 m²TBA (terrasse-balkongareal)
7 m²
Areal
Etasje
1Byggeår
1947Soverom
2 soveromBad
1 badType
EierleilighetEierform
EierseksjonFasiliteter
Balkong/TerrasseEnergimerke
Oransje G
Nøkkelinfo
Unngå doble boligrenter
Vi tilbyr gunstig forsikring.
Vurderer du utleie?
Få et tilbud fra Utleie KrogsveenHva koster lånet?
Sjekk estimert lånekostnadBeskrivelse
Kort om eiendommen
Velkommen til Tors gate 37A – en lys og trivelig 3-roms leilighet beliggende i et populært område på Lund. Leiligheten ligger i 2. etasje og har en gjennomtenkt planløsning med stue, kjøkken, to soverom, bad og entré. Fra stuen er det utgang til en solrik balkong. Planløsningen gir også gode muligheter for å etablere et ekstra rom, slik at leiligheten kan benyttes som en 4-roms.
Boligen fremstår innbydende med lyse overflater og store vindusflater som slipper inn rikelig med dagslys. Her finner du en koselig stue med peis, et klassisk kjøkken med god skapplass, samt et bad med plass til vaskemaskin. Soverommene er romslige og byr på gode oppbevaringsmuligheter.
Dette er en gjennomført leilighet med praktiske løsninger og en attraktiv beliggenhet på Lund.
Område
Legg til steder som er viktige for deg
På flyttefot? Tenk kjøp og salg samtidig.
Få din egen rådgiver gjennom hele kjøps- og salgsprosessen. Det starter med en verdivurdering.
Unngå doble boligrenter
Vi tilbyr gunstig forsikring.
Vurderer du utleie?
Få et tilbud fra Utleie KrogsveenHva koster lånet?
Sjekk estimert lånekostnadVil du varsles om lignende boliger?
Ved å lagre ditt boligsøk hos oss får du beskjed når vi har en bolig som ligner denne, før den legges ut på markedet!

