Karibakken 5
9 900 000 kr
270 m²
5 soverom
Komplett salgsoppgave

Jessheim
Lekker enebolig, betydelig oppgradert i 2023 med høy kvalitet og eget særpreg | Tomt på ca. 1,5 mål | Må sees!
Prisantydning
9 900 000 krOmkostninger
268 490 krTotalpris
10 168 490 kr
Pris
Bruksareal
290 m²BRA-I (internt bruksareal)
270 m²BRA-E (eksternt bruksareal)
20 m²TBA (terrasse-balkongareal)
17 m²
Areal
Byggeår
1970Soverom
5 soveromBad
2 badTomteareal
1 460 m² (eiet)Type
Enebolig - FrittliggendeEierform
EietFasiliteter
Garasje/P-plass og Balkong/TerrasseEnergimerke
Gul D
Nøkkelinfo
Unngå doble boligrenter
Vi tilbyr gunstig forsikring.
Vurderer du utleie?
Få et tilbud fra Utleie KrogsveenHva koster lånet?
Sjekk estimert lånekostnadBeskrivelse
Kort om eiendommen
Innhold og byggemåte
Innhold og byggemåte
Eiendommen
Karibakken 5, 2053 JESSHEIM
Kommunenummer 3209, gårdsnummer 134, bruksnummer 220, ideell andel 1/1
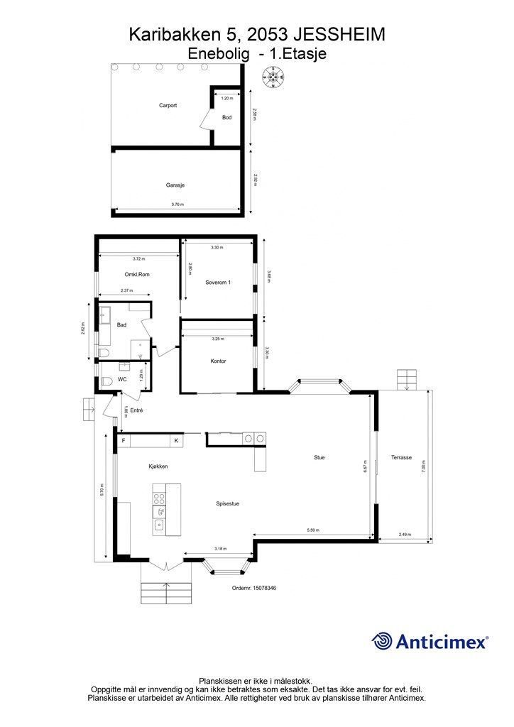
Innhold
Totalt bruksareal BRA: 290 kvm
BRA-i:
Kjeller: 130 kvm: Gang, kjellerstue, bad, badstue, vaskerom, tre soverom, to boder og vinrom.
1. etasje 140 kvm: Entré, stue, kjøkken, bad, toalettrom, soverom, omkledningsrom og kontor/bibliotek.
BRA-e:
1. etasje 20 kvm: Garasje 17 kvm, bod 3 kvm.
Åpent areal:
1. etasje 17 kvm: Terrasse
Vedlagte plantegninger er ikke målbare. De oppgitte arealer er hentet fra rapport med befaringsdato 14.01.2026 utført av Anticimex AS.
Byggemåte
Selger har fått utarbeidet en tilstandsrapport, dvs. en teknisk gjennomgang av boligen hvor eventuelle avvik, risiko for kjøper og prisoverslag for hva som bør gjøres av oppgradering, er skissert. Se særskilt TGIU (tilstandsgrad ikke undersøkt), samt TG2 og TG3 som viser hva som er boligens normale slitasje, alder og type, hva som er avvik fra dette og hva som bør/må utbedres. Rapporten og selgers egenerklæring er en del av salgsoppgaven og må leses nøye før bud inngis. Kjøper overtar ansvaret for de opplysninger som fremkommer av salgsdokumentasjonen, og kan ikke gjøre gjeldende som mangel noe som burde vært kjent eller som ikke kan anses å ha betydning for avtalen.
Bygningen er iht. tilstandsrapporten oppført i tre. Bygningen har støpt gulv mot grunn og grunnmur av beting. Etasjeskillere av tre. Yttervegger av trekonstruksjoner kledd med stående kledning. Yttertak i trekonstruksjoner tekket med taktstein. Dører og vinduer med karmer av tre og tre-lags glass fra 2023. Balansert ventilasjon.
Takstmann gitt tilstandsgrad 2 (TG2) til blant alder på vannrør, vannbåren gulvvarme i kjellerstue, drenering, utvendige avløpsrør, garasje. Underetasjen har vegger under bakkenivå som er utlektet fra grunnmuren. Konstruksjonen er lukket, og det er ikke kjent hvordan oppbyggingen er utført. Noen fuktmerker på loft etter tidligere taklekkasje, kan medføre risiko for skader i konstruksjonen. Observert spor etter mus.
Nedgravd oljetank av fiber. Tanken er p.t. tom. Anlegget er tilpasset bruk av bioolje, og det har kun blitt brukt bioolje etter det ble byttet til fibertank.
Boligen ble pusset opp i 2023 og har blant annet nytt kjøkken, nye bad, rør-i-rør system, varmtvannsbereder, vannbåren gulvvarme, varmepumpe, balansert ventilasjon, badstue, vinduer m.m.
Les for øvrig mer om byggemåte og den tekniske tilstanden i rapporten.
Selger opplyser:
Renovert store deler av boligen i 2023.
- Pusset opp bad og gjestetoalett i 1. etasje, samt bad og vaskerom i underetasje. Jobben er gjort av fagfolk, og det foreligger dokumentasjon.
- Har vært fuktskade fra tak i gang i 1. etasje. Utbedret ved å rette takstein som ikke lå på plass. Det har også vært lekkasje i grunnmur, men dette er utbedret ved at det ble drenert, lagt ny grunnmursplast og drenering, samt drenerende masse. Dokumentasjon fra fagfolk.
- Nye vinduer og dører i hele boligen. Dokumentasjon fra fagfolk.
- Alt elektrisk er byttet i hele huset. Dokumentasjon fra fagfolk.
- Nytt avløp og vannledning. Venter på tilkobling av ny vannledning, da kommunen skal grave ny ledning i området. Forventet oppstart er vinter/vår 2026.
- Fjernet sentralfyr og installert varmekolbe til oppvarming av vannbåren varme i underetasjen.
- Montert balansert ventilasjon.
- Luft til luft varmepumpe i begge etasjer.
- Etterisolert hele boligen, lektet ut 5 cm.
Standard
Karibakken 5 er en meget flott eiendom med gode kvaliteter, gjennomtenkte løsninger og et stilrent uttrykk. Boligen ble vesentlig oppgradert og pusset opp i 2023 og fremstår nå moderne og innbydende, med fokus på kvalitet og design.
1. etasje er på hele 140 kvm, og har alt du trenger på ett plan. Her finner du en romslig entré, toalettrom, kjøkken, kontor/bibliotek og master-avdeling med soverom, garderobe og "en suite" bad. Underetasjen rommer TV-stue, gjesterom, to soverom, vinrom, matbod, bad, badstue, treningsrom og vaskerom.
Entreen er lys og romslig, og gir et varmt og godt førsteinntrykk av boligen. Flislagt entré med varmekabler i gulv. God oppbevaringsplass i plassbygd skyvedørsgarderobe med stilige spiledører. Innebygd i garderoben finner du en praktisk klessjakt - her kan du slippe skittentøyet rett ned til vaskerommet. Det er lagt en flott 1-stavs parkett på gulvet, med varmefolie i gang, stue, kjøkken og bibliotek.
Kjøkkenet, levert av kvalitetsleverandøren Next125, er en fryd for øyet, og rommer både estetiske og praktiske løsninger. Halve innredningen skjules elegant bak to foldedører. Her kan du skjule restene etter middagslagingen mens gjestene sitter få meter unna. Benkeplater av keramikk, integrerte hvitevarer, platetopp med integrert ventilator, downlights og integrert lyslist og mye mer. Her er ingen ting overlatt til tilfeldighetene. Med Quooker armatur kan du få kokende vann rett fra springen.
Stua i 1. etasje er meget romslig, og blir et godt og naturlig samlingspunkt for hele familien. Rommet varmes effektivt opp med varmefolie i gulv, vedfyring i peisinnsats og varmepumpe fra Toshiba som sørger for jevn og god varme. I tillegg er det montert balansert ventilasjon som bidrar til et godt inneklima. Stua har store vindusflater som bidrar til en naturlig belysning av rommet, samt utgang til veranda via skyvedør.
Boligen har to lekre bad, et separat toalettrom med adkomst fra entré, og et praktisk vaskerom. Badet i 1. etasje er har lekre grå 60x60-fliser, vegghengt toalett, detaljer i gull og innredning fra italienske Edoné. Innebygd dusj og dusjhylle. Her er det ikke overlatt noe til tilfeldighetene!
Toalettrommet er stilrent innredet med Adetto Casa - gjennomført design fra den italienske leverandøren. Lekre grønne fliser bak toalettet som skaper en god kontrast til rommet.
Badet i underetasjen er meget romslig, og har i tillegg adkomst til badstue. Badet har brune fliser på gulv og i dusjsonen, og lyse veggfliser på øvrige vegger. Nedsenket dusjnisje med glassvegg og flislagt vegg og innebygd dusjhylle. Baderomsinnredning fra Sigdal med dobbel vask og rikelig med lagringsplass i skuffer og skap. To stk. håndkletørkere montert på vegg som gir varme og tørre håndklær.
Vaskerommet er av god størrelse, og har god plass til både oppbevaring og håndtering av klesvasken. Rommet har opplegg for vaskemaskin og tørketrommel, og rommer også varmtvannsbereder på 190 liter, fordelerskap for rør-i-rør system, samt teknisk anlegg for vannbåren gulvvarme.
Med totalt 6 soverom, er det god plass til hele familien. 3 soverom i 1. etasje, hvorav to er innredet som garderobe og kontor/bibliotek, mens det siste er hovedsoverommet. I underetasjen finner du 3 innredede soverom.
Hovedsoverommet har eget en suite bad og garderobe/omkledningsrom. Avdelingen er lagt med et lunt vegg-til-vegg teppe, som gir en sømløs og flytende overgang fra soverom til gang og garderobe.
For oppbevaring er det lagringsplass i matbod, vinrom, kaldtloft over carport, samt tre stk lekestuer plassert i hjørnet mot nord.
Løsøre og tilbehør
Vi viser til liste fra Norges Eiendomsmeglerforbund som gjelder fra 01.01.2020 angående løsøre og tilbehør.
Oppvarming
Boligen varmes opp med elektrisitet, luft-til-luft varmepumpe, vannbåren gulvvarme og vedfyring. Det er i tillegg montert balansert ventilasjon.
Ferdigattest/brukstillatelse
Det foreligger ikke ferdigattest på eiendommen, men midlertidig brukstillatelse ble gitt 30.04.1970. Brukstillatelsen gjelder bolig og garasje.
Tillatelsen er gitt på følgende vilkår:
Kjeller: Avtrekk fra dusj og WC føres over tak. Dør til fyrrom skal være selvlukkende.
Loft: Avtrekkskanaler føres gennom loft og over tak, de må dessuten isoleres gjennom loft.
Utvendig: Fullføring av garasje m/montering av port og innvendig brannkledning. Montering av rekkverk på altan.
Det er uklart om dette er utført. Kjøper overtar ansvaret for dette.
Kjelleretasjen er innredet i ettertid og har godkjent bruksendring. Gjelder hele etasjen. Ferdigattest gitt 31.03.2026.
Carport og lekestuer er byggemeldt i henholdsvis 1984, 1979 og 1990, og omfattes ikke av midlertidig brukstillatelse. Byggemelding av lekestue i 1979 og carport i 1984 er stemplet "godkjent av Ullensaker bygningsråd". Saken er ikke ferdigstilt med ferdigattest. Det gjøres oppmerksom på at det ikke lenger utstedes ferdigattest på tiltak det er søkt om før 1998 jf. plan- og bygningsloven § 21-10. Kommunen vil ikke kreve ferdigattest for disse tiltakene og vil avvise eventuelle søknader. Bestemmelsen innebærer ikke at tiltak med manglende søknad blir lovlige, men at man ikke trenger å avslutte gamle byggesaker. Normalt sett kreves ferdigattest for alle søknadspliktige tiltak som gjøres etter plan- og bygningsloven.
Tinglyste heftelser og rettigheter
Eiendommen overdras fri for pengeheftelser.
Det er tinglyst følgende servitutt på eiendommen.
Dagboknr 6689, tinglyst 02.10.1969, type heftelse: Erklæring
Eiendommen har veirett over privat vei. Maks gjerdehøyde i grenseskillet er 90 cm. Maks høyde på hekk i grenseskillet er 2 meter.
Rett til å føre vann- og kloakkledninger frem til eiendommen, strømledninger, ledninger for telefon og TV, samt nødvendig tilsyn og vedlikehold av disse.
Servitutten vil følge eiendommen. Kjøpers bank vil få prioritet etter ovennevnte heftelser og servitutter.
Eventuell adgang til utleie
Eiendommen har ikke separat utleieenhet. Det vil normalt være anledning til utleie av hele eiendommen eller enkeltrom, såfremt utleiearealet er bygningsmessig godkjent for varig opphold og har forsvarlige radonnivåer.
Diverse
Vi er opptatt av verdiskapning, og har knyttet til oss samarbeidspartnere som skal sikre våre kunder de beste produkter og tjenester;
• I forbindelse med forberedelse av salget, innhenter vi informasjon om eiendommen hovedsakelig fra vår samarbeidspartner Amibita.
• Gjensidige leverer boligselgerforsikring og tilbyr bygningsforsikring
• Boligkjøperforsikring leveres av Hiscox og med Sedgwick som skadebehandler, og er formidlet gjennom Gjensidige.
• BN bank tilbyr finansieringsløsninger
• Vår avdeling Krogsveen Pluss tilbyr flyttetjenester som utvask, visningsvask, lager, tømming og transport av flyttelass, i tillegg til å formidle kontakt med Flip for overflateoppussing.
• I forbindelse med overtagelse av eiendommen tilbyr Overo avtale om strøm, alarm og bredbånd.
• Krogsveen er, sammen med øvrige bransjeaktører, medeier i Bomega AS som tilbyr den digitale annonseringsplattformen Hjem.
Beliggenhet og tomteforhold
Beliggenhet og tomteforhold
Beliggenhet
Eiendommen ligger i et veletablert boligområde, i underkant av én km. sør for Jessheim sentrum med alt av fasiliteter. Det er gangavstand til skoler, barnehager og Jessheim sentrum med de fleste fasiliteter med bl.a. Jessheim Storsenter, restauranter, kulturhus, offentlig kommunikasjon m.m.. Det er kort vei til Nordbytjernet med badeplass og flotte tur- og rekreasjonsmuligheter, sommer som vinter. Området for øvrig har et bredt tilbud for alle aldersklasser innen idrett og kultur. Jessheim fikk bystatus i september 2012, og er en by i stor vekst.
Jessheim sentrum ligger kun en kort spasertur unna. Her finner du et stort kjøpesenter med 140 butikker, koselige kafeer og restauranter. Ved siden av senteret ligger byens kulturhus med flere kinosaler og bibliotek. Kulturskole med dans, musikk og teater for barna. Kulturhuset byr i tillegg på konserter, teater, revyer og kunstutstillinger.
Nordbytjernet er Ullensakers mest populære badeplass, og er tilrettelagt med blant annet brygge og volleyballbane. Tjernet er en naturperle som er meget populært på fine sommerdager. Her finner du flotte turstier rundt tjernet samt et yrende badeliv om sommeren. Ellers kan Jessheims skoger tilby turstier, sykkelstier, skiløyper og lysløype. Jessheimmarka har gode vintertilbud hvor det blir kjørt opp flotte skiløyper. Jessheim stadion med fotball, friidrett og ny flerbrukshall/skøytehall ligger en kort sykkeltur fra boligen, og flere treningssentre ligger etablert i nye lokaler sentralt på Jessheim. I tillegg ble Jessheimbadet ferdigstilt i 2022 - et moderne anlegg med treningsbasseng og mye rom for lek og moro.
Jessheim stasjon har gode bussforbindelser til Gardermoen og Oslo, samt skolebusser til både Jessheim og Nannestad. Fra Jessheim stasjon går det tog i retning Oslo/Drammen og Dal to ganger i timen. Godt tilrettelagt for pendlere. I tillegg er det satt opp et ekspresstog kl 07:50 i hverdagene som bruker 24 minutter til Oslo S. Nærmeste bussholdeplass er Verkensvegen, ca 500 meter fra eiendommen.
Avstander med bil:
Oslo Lufthavn ca. 10 min
Lillestrøm ca. 23 min
Strømmen ca. 24 min
Oslo S. ca. 35 min
Adkomst
Det vil bli skiltet med Krogsveen visningsskilt ved fellesvisninger.
Barnehager, skoler og fritid
Dersom skole- og barnehagetilbud er av betydning for kjøpet, ber vi om at det rettes en særskilt henvendelse til kommunen for oppdatert informasjon.
Beskrivelse av tomt
Eiertomt på 1 460 kvm. Tomten er opparbeidet med asfaltert gårdsplass, plen og beplantning, trær, hekk m.m.
Tomten er ikke oppmålt i nyere tid og har usikre grenser, gjelder 3 av 8 grensepunkter. Kommunens grunnkart viser eiendommens grenser med et beregnet normalavvik på 50 cm, se vedlagt kartutsnitt for tomtegrenser.
Kjøper overtar risiko for avviket.
Parkering
Parkering i enkeltgarasje og carport, samt på asfaltert gårdsplass.
Vei, vann og avløp
Eiendommen har adkomst via kommunal vei.
Eiendommen er tilknyttet kommunalt ledningsnett via private stikkledninger. Eier er selv ansvarlig for private stikkledninger til boligen.
Regulerings-og arealplaner
Eiendommen ligger i et uregulert område, men er i kommuneplan datert 17.06.2026 er avsatt til: Boligbebyggelse - nåværende.
Utsnitt av plan med tilhørende bestemmelser kan fås ved henvendelse til megler.
Økonomi
Økonomi
Kommunale utgifter
Kommunale avgifter var 18 602,- for 2025. I dette inngår gebyr for vann, avløp, renovasjon og feiing/tilsyn.
Det er installert vannmåler på eiendommen og kostnadene betales etter forbruk. Forbruk avleses etter henvendelse fra kommunen. Forbruk betales à konto basert på siste avlesning. Avregning foretas i forbindelse med neste forfall på kommunale avgifter.
Nåværende eier har et strømforbruk som tilsvarer ca. 32 000 kwh. pr. år.
Boligen har en årlig forsikringspremie på kr 14 000,-.
Boligen er tilknyttet Telia som leverandør av kabel-tv/internett og har avgift på kr 613,- pr. mnd, hastighet 500 Mbps. Tv-tuner/dekoder medfølger ikke. Det er også tilknyttet Telenor.
Boligen er tilknyttet alarm, abonnement medfølger ikke.
Utgiftene er basert på nåværende eiers forbruk og avtaler.
Selger har avtalt Norgespris på strøm på eiendommen, og denne er pt på kr 50 øre inkl mva. Nettleie, avgifter og påslag fra kraftleverandøren kommer i tillegg. Denne avtalen vil følge eiendommen i den avtalte perioden. Les mer om Norgespris her: https://www.regjeringen.no/no/aktuelt/legg-fram-lov-om-norgespris-pa-straum-og-fjernvarme/id3102642/
Formuesverdi
Ved hjelp av skatteetatens boligkalkulator er boligens formuesverdi beregnet til kr. 2 076 386,- for fjoråret når boligen benyttes som primærbolig.
Formuesverdien er en gitt prosent av den beregnede markedsverdien. Beregnet markedsverdi er basert på Statistisk sentralbyrå (SSB) sine opplysninger om omsatte boliger. I beregningen tas det hensyn til boligens beliggenhet, areal, byggeår og boligtype.
Det er eier av boligen som fastsetter formuesverdien, jf. skatteforvaltningsloven § 9-1 første ledd, men skattemyndighetene kan kontrollere at verdien er satt riktig.
Formuesverdi skal ikke overstige:
Primærbolig: 25 % av beregnet eller dokumentert markedsverdi opp til kr. 10 000 000, og deretter 70 % av den overskytende markedsverdi.
Sekundærbolig: 100 % av beregnet eller dokumentert markedsverdi.
Formuesverdier som overstiger disse grensene, kan kreves nedjustert av eier.
For mer informasjon se skatteetaten.no.
Eiendomsskatt
Det er p.t ikke vedtatt eiendomsskatt for eiendommer i kommunen.
Omkostninger
9 900 000,00 Prisantydning
Omkostninger
247 500,00 Dokumentavgift til staten (2,5% av kjøpesum)
19 900,00 Gjensidige Boligkjøperpakke (valgfri)* (valgfritt)
545,00 Tinglysing panterettsdokument
545,00 Tinglysing skjøte
--------------------------------------------------------
248 590,00 (Omkostninger totalt (uten Gjensidige Boligkjøperpakke (valgfri)))
268 490,00 Omkostninger totalt (med Gjensidige Boligkjøperpakke (valgfri)))
--------------------------------------------------------
10 148 590,00 Totalpris inkl. omkostninger
10 168 490,00 Totalpris inkl. omkostninger (med Gjensidige Boligkjøperpakke (valgfri))
--------------------------------------------------------
Totalpris inkl. omkostninger forutsetter kjøp til prisantydning.
Det tas forbehold om endringer i avgifter og gebyrer.
Tilbud om lånefinansiering
Megler formidler gjerne kontakt med rådgiver hos vår samarbeidspartner BN Bank. De har konkurransedyktige betingelser samt rask og løsningsorientert behandling av din lånesøknad. Krogsveen mottar et honorar dersom lån opprettes.
Betalingsbetingelser
Kjøpesum inkludert omkostninger, samt pantedokument tilknyttet eventuelt lån, skal være disponibelt hos megler 2 virkedager før overtagelsen.
Annen viktig informasjon
Annen viktig informasjon
Eier
Petter Jellum Allegre og Jean Francois Jellum Allegre
Overtakelse
Etter nærmere avtale.
Boligselgerforsikring
Selger har i forbindelse med salget tegnet boligselgerforsikring levert av Gjensidige.
Boligselgerforsikringen dekker selgers ansvar etter avhendingsloven begrenset oppad til kr 14 millioner. Dersom kjøper oppdager forhold ved eiendommen som hen mener utgjør en mangel ved eiendommen, vil Gjensidige behandle reklamasjonen på vegne av selger. Forsikringsvilkår kan fås ved henvendelse til megler.
Vedlagt salgsoppgaven følger selgers egenerklæringsskjema og tilstandsrapport. Interessenter må sette seg inn i dokumentene før bud inngis.
Boligkjøperforsikring
Innen kontraktsmøtet må kjøper ta stilling til om det ønskes å bestille Boligkjøperpakken gjennom Gjensidige. I denne gunstige pakken er boligen ferdig forsikret og inkluderer rettshjelpsforsikring, også kalt Boligkjøperforsikring. Rettshjelpsforsikring gir trygghet og tilgang på profesjonell juridisk hjelp dersom det oppdages uventede feil eller mangler det første året etter overtagelse. Forsikringsselskapet behandler i så fall ethvert mangelskrav kjøper måtte ha overfor selger.
Boligkjøperpakken inkluderer bygningsforsikring for hus og hytte, innboforsikring, flytteforsikring og dobbel rentedekning - i situasjoner hvor kjøper ikke får solgt nåværende primærbolig.
Kjøper mottar ingen særskilt faktura for Boligkjøperpakken da kostnaden det første året legges til kjøpesummen for boligen. Det gjøres oppmerksom på Krogsveen mottar et honorar for denne formidlingen.
Produktark for Boligkjøperpakken ligger vedlagt i salgsoppgaven.
Dersom ikke boligkjøperpakke ønskes kan kun rettshjelpsforsikring, også kalt boligkjøperforsikring, tegnes særskilt via megler. Rettshjelpsforsikringen varer i 5 år fra overtagelse og leveres gjennom Gjensidige. Ta kontakt med megler for ytterligere informasjon.
Selskap og privatpersoner som driver med kjøp/salg/utvikling som ledd i egen næringsvirksomhet kan ikke tegne boligkjøperpakke eller rettshjelpsforsikring.
Budgivning
Forbrukerinformasjon om budgivning er vedlagt denne salgsoppgaven og er også på vår hjemmeside Krogsveen.no. Alle bud og budforhøyelser må inngis skriftlig. I tillegg må legitimasjon være fremlagt sammen med signatur fra budgiver.
Vi oppfordrer til å gi bud elektronisk via GI BUD-knappen på eiendommens hjemmeside på Krogsveen.no. Da vil samtlige vilkår bli oppfylt.
Eventuelle forhøyelser eller endringer av budet kan bekreftes pr SMS eller på e-post. Vi oppfordrer alltid til å kontakte megler pr. telefon i tillegg da forsinkelser i SMS og e-post kan forekomme.
For at budene skal kunne bli behandlet og videreformidlet skriftlig til alle involverte parter, må alle bud ha en tilstrekkelig lang akseptfrist, jf. eiendomsmeglingsforskriften § 6-3.
Selger må også skriftlig akseptere budet før aksept kan formidles til budgiver. Akseptfrist bør derfor være på minimum 30 minutter, og budforhøyelser må derfor skje i god tid før fristens utløp.
Bud i forbrukerforhold kan uansett ikke settes med kortere frist enn kl. 12.00 første virkedag etter siste annonserte visning. I tillegg kan ikke budet ha forbehold om at det skal holdes hemmelig ovenfor øvrige interessenter. Megler har iht lov om eiendomsmegling ikke anledning til å videreformidle disse budene, og de vil dermed heller ikke bli journalført.
Etter at eiendommen er solgt vil kjøper og selger få tilsendt budjournal. Øvrige budgivere kan få utlevert kopi av budjournalen i anonymisert form.
Hvitvaskingsreglene
I henhold til lov om hvitvasking og terrorfinansiering har megler plikt til å gjennomføre kontrolltiltak overfor kunder, herunder fullmektiger. Dette innebærer bl.a. å bekrefte kunders og reelle rettighetshaveres identitet på bakgrunn av fremvist gyldig legitimasjon eller på annen godkjent måte, samt å innhente opplysninger om kundeforholdets formål og tilsiktede art.
Dersom slike kundetiltak ikke kan gjennomføres, kan megler ikke etablere kundeforholdet eller utføre transaksjonen.
Hvis kjøper ikke bidrar til gjennomføring av kundekontrollen og dette fører til at transaksjonen blir forsinket eller ikke kan gjennomføres, vil dette ansees som mislighold av avtalen og gi selger rettigheter etter avhendingslova kapittel 5. I tilfeller der selger ikke bidrar til gjennomføring av løpende kundekontroll underveis i oppdraget, er det selger som misligholder sine forpliktelser etter avtalen og gi kjøper rettigheter etter avhendingslovens kapittel 4. Partene er selv ansvarlige for eventuelle kostnader og ansvar dette kan medføre. Eiendomsmegleren eller eiendomsmeglingsforetaket kan ikke holdes ansvarlig for de konsekvenser dette vil kunne få for partene eller andre som har interesser i eiendomshandelen.
Kjøper oppfordres til å innbetale kjøpesummen som ikke kommer fra låneinstitusjon i én samlet innbetaling fra egen konto i norsk bank. Megler har plikt til å melde fra til Økokrim om eiendomshandler som fremstår som mistenkelige. Melding sendes Økokrim uten at partene varsles.
Personopplysningsloven
I henhold til personopplysningsloven gjør vi oppmerksom på at interessenter kan bli registrert for videre oppfølging.
Lovanvendelse
Generelle bestemmelser
Salgsoppgaven er basert på de opplysningene selger har gitt til megler, den bygningssakyndiges tilstandsrapport, samt opplysninger innhentet fra kommunen, Kartverket og andre tilgjengelige kilder. Det er viktig at kjøper setter seg grundig inn i alle salgsdokumentene, herunder salgsoppgave, tilstandsrapport og selgers egenerklæring. Kjøper anses kjent med forhold som er tydelig beskrevet i salgsdokumentene, og slike forhold kan ikke påberopes som mangler. Dette gjelder uavhengig av om kjøper har lest dokumentene. Alle interessenter oppfordres til å undersøke eiendommen nøye, gjerne sammen med fagkyndig før bud inngis. Kjøper som velger å kjøpe usett kan ikke gjøre gjeldende som mangel noe han burde blitt kjent med ved undersøkelsen.
Dersom det er behov for avklaringer, anbefaler vi at interessenter rådfører seg med eiendomsmegler eller egne rådgivere før det legges inn bud.
En bolig som har blitt brukt i en viss tid, har vanligvis blitt utsatt for slitasje og skader kan ha oppstått. Slik bruksslitasje må kjøper regne med, og det kan avdekkes enkelte forhold etter overtakelse som nødvendiggjør utbedringer. Normal slitasje og skader som nødvendiggjør utbedring, er innenfor hva kjøper må forvente og vil ikke utgjøre en mangel.
Kjøper og selgers rettigheter og plikter reguleres av avtalen mellom partene, samt informasjonen som har vært tilgjengelig for kjøperen i forbindelse med handelen. Avtalen utfylles av avhendingsloven, og det gjelder ulike avtalevilkår avhengig av om kjøper er forbrukerkjøper eller ikke. Dette er nærmere beskrevet nedenfor.
På grunn av ulike avtalevilkår kan selger vurdere bud fra en som ikke er forbruker, ulikt fra en forbrukers bud. Dersom kjøper ikke er forbruker, er selger sitt mulige mangelsansvar begrenset fordi eiendommen selges "som den er". Selger kan ikke ta «som den er»- forbehold overfor en forbrukerkjøper. Selv et lavere bud fra en som ikke er forbruker kan foretrekkes fordi begrensningen i mulig mangelsansvar kan ha egenverdi for selger. Selger står fritt til å forkaste eller akseptere ethvert bud, og er for eksempel ikke forpliktet til å akseptere høyeste bud.
Budgiver skal i budskjema avgi egenerklæring om budgiver er forbruker eller næringsdrivende/ person som hovedsakelig handler som ledd i næringsvirksomhet. Budgivere får informasjon dersom andre bud er inngitt av en som ikke er forbruker.
Forbrukerkjøp - definisjon
Med forbrukerkjøp menes kjøp av eiendom når kjøperen er en fysisk person som ikke hovedsakelig handler som ledd i næringsvirksomhet.
Forbruker – avtalevilkår
Eiendommen har en mangel dersom den ikke er i samsvar med kravene som følger av avtalen, eller det foreligger brudd på bestemmelsene i avhendingsloven §§ 3-2 til 3-8. Hvis eiendommen ikke er i samsvar med det kjøperen må kunne forvente ut ifra alder, type og synlig tilstand, kan det være grunnlag for mangelskrav. Det samme gjelder hvis det er holdt tilbake eller gitt uriktige opplysninger om eiendommen. Dette gjelder likevel bare dersom man kan gå ut ifra at det virket inn på avtalen at opplysningen ikke ble gitt eller at mangelskravet ikke blir rettet i tide på en tydelig måte.
Boligen kan ha en mangel etter avhendingsloven § 3-3 andre ledd, dersom det er avvik mellom opplyst og faktisk innvendig areal, forutsatt at avviket er på 2% eller mer og minimum 1 kvm.
Ved beregning av et eventuelt prisavslag eller erstatning må kjøper selv dekke tap/kostnader opptil et beløp på kr 10 000 (egenandel).
Ikke-forbruker (næringsdrivende) – definisjon
Hvis kjøper er en juridisk person, eller en fysisk person som hovedsakelig handler som ledd i næringsvirksomhet, vil kjøpet ikke anses som et forbrukerkjøp.
Ikke-forbruker – avtalevilkår
Eiendommen har en mangel dersom den ikke er i samsvar med kravene som følger av avtalen.
Eiendommen selges «som den er», og selgers ansvar utover det konkret avtalte er da begrenset etter avhendingsloven § 3-9, første ledd andre setning.
Avhendingsloven § 3-3 andre ledd fravikes, og hvorvidt boligens arealsvikt utgjør en mangel vurderes etter avhendingsloven § 3-8.
Informasjon om kjøpers undersøkelsesplikt, herunder oppfordringen om å undersøke eiendommen nøye, gjelder også for kjøpere som ikke anses som forbrukere.
Det forutsettes at hjemmel overføres til kjøper. Hvis kjøper ikke ønsker hjemmelsoverføring av eiendommen, må det tas forbehold om dette i budet.
Meglers vederlag
Meglers vederlag betales av selger og er avtalt til:
Fastpris: 40 000,-
Vederlag:
Kontroll av hjemmel og heftelser kr 2 900,-
Markedsføringspakke kr 29 900,-
Oppgjør kr 7 500,-
Tilrettelegging kr 17 000,-
Visninger kr 2.500,- pr stk
Utlegg:
Innhenting av offentlig opplysninger kr 3 056,-
Tinglysing sikring kr 545,-
Andre utgifter:
AX tilstandsrapport enebolig kr 20 625,-
Foto kr 10 000,-
Opplysninger om oppdraget
Oppdragsnummer 63-0283/25
Eiendomsmegler Krogsveen AS, avd. Jessheim
Skovly Promenade 10, 2066, JESSHEIM
950 007 613
Oppdragets KR-kode KR63.25283
Dato
Sist oppdatert: 26. mai 2026 kl. 20:42
Dokumenter
Dokumenter
PDF – 1 MB
PDF – 2 MB
PDF – 141 KB
PDF – 312 KB
PDF – 29 KB
PDF – 127 KB
PDF – 392 KB
Område
Legg til steder som er viktige for deg
Visning
For å delta på visning, ber vi om at du melder deg på. Da sikrer vi at du får nødvendig informasjon og at det er satt av tilstrekkelig med tid. Kontakt megler dersom annet tidspunkt ønskes. Husk å lese salgsoppgaven før visningen, så du stiller forberedt. NB. Visning utgår dersom det ikke er noen påmeldte. Ønsker du kun å bli holdt orientert, kan du fra eiendommens hjemmeside få varsel om solgtpris, eller kontakte megler.
Lurer du på noe?
Unngå doble boligrenter
Vi tilbyr gunstig forsikring.
Vurderer du utleie?
Få et tilbud fra Utleie KrogsveenHva koster lånet?
Sjekk estimert lånekostnadVil du varsles om lignende boliger?
Ved å lagre ditt boligsøk hos oss får du beskjed når vi har en bolig som ligner denne, før den legges ut på markedet!












































































