Munkedamsveien 79B
6 950 000 kr
54 m²
2 soverom
Solgt

Skillebekk
Delikat og stilren 3-roms hjørneleilighet med stor innglasset balkong. Lekkert HTH kjøkken fra 2023. Garasjeleie*
Prisantydning
6 950 000 krAndel fellesgjeld
202 000 krOmkostninger
27 464 krTotalpris
7 179 464 kr
Pris
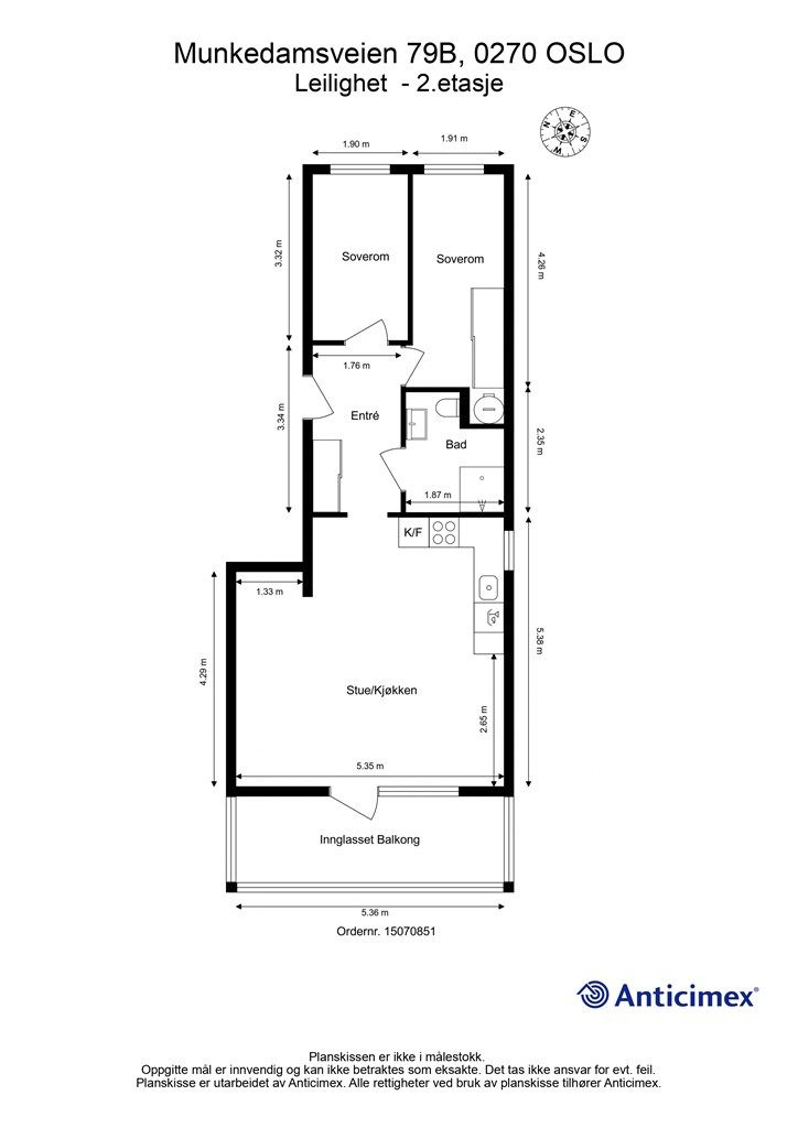
Bruksareal
66 m²BRA-I (internt bruksareal)
54 m²BRA-E (eksternt bruksareal)
2 m²
Areal
Etasje
2Byggeår
1972Soverom
2 soveromBad
1 badType
AndelsleilighetEierform
AndelFasiliteter
Balkong/TerrasseFellesutgifter
5 045 krEnergimerke
Rød F
Nøkkelinfo
Unngå doble boligrenter
Vi tilbyr gunstig forsikring.
Vurderer du utleie?
Få et tilbud fra Utleie KrogsveenHva koster lånet?
Sjekk estimert lånekostnadBeskrivelse
Kort om eiendommen
Munkedamsveien 79B er en pen 3-roms leilighet med høy standard og svært attraktiv beliggenhet. Leiligheten har en romslig planløsning og er delikat og moderne innredet. Leiligheten har meget attraktiv beliggenhet med fine grøntarealer og skjermet for støy. Stuen er svært luftig, og har mye naturlig lysinnslipp fra de store vindusflatene.
Leiligheten har moderne kjøkken fra 2023 og flislagt pent bad fra 2015.
Høydepunkter:
- Stor vestvendt innglasset balkong
- Nyoppusset moderne HTH kjøkken fra 2023
- Hjørneleilighet
- Nærhet til "alt"
- Gode solforhold
- Rikelig med lysinnslipp
- Gode lagringsmuligheter
-*Mulighet for garasjeleie i lukket garasje under bygget
Velkommen til visning!
Område
Legg til steder som er viktige for deg
På flyttefot? Tenk kjøp og salg samtidig.
Få din egen rådgiver gjennom hele kjøps- og salgsprosessen. Det starter med en verdivurdering.
Unngå doble boligrenter
Vi tilbyr gunstig forsikring.
Vurderer du utleie?
Få et tilbud fra Utleie KrogsveenHva koster lånet?
Sjekk estimert lånekostnadVil du varsles om lignende boliger?
Ved å lagre ditt boligsøk hos oss får du beskjed når vi har en bolig som ligner denne, før den legges ut på markedet!

