Nyvei 14
3 400 000 kr
64 m²
2 soverom
Komplett salgsoppgave

Loggen Brygge
Meget pen 3-roms leilighet med stor terrasse - 5. etasje - Utsikt, garasje og båtplass - Ingen boplikt
Prisantydning
3 400 000 krAndel fellesgjeld
34 804 krOmkostninger
96 890 krTotalpris
3 531 694 kr
Pris
Bruksareal
69 m²BRA-I (internt bruksareal)
64 m²BRA-E (eksternt bruksareal)
5 m²TBA (terrasse-balkongareal)
22 m²
Areal
Etasje
5Byggeår
2018Soverom
2 soveromBad
1 badType
EierleilighetEierform
EierseksjonFasiliteter
Garasje/P-plass, Heis og Balkong/TerrasseFellesutgifter
3 675 krEnergimerke
Lysegrønn C
Nøkkelinfo
Unngå doble boligrenter
Vi tilbyr gunstig forsikring.
Vurderer du utleie?
Få et tilbud fra Utleie KrogsveenHva koster lånet?
Sjekk estimert lånekostnadBeskrivelse
Kort om eiendommen
Velkommen til Nyvei 14, en stilren og innbydende leilighet med flotte materialvalg og gjennomtenkte løsninger. Leiligheten har et lekkert kjøkken fra Strai med integrert vinskap og åpen løsning mot stue og spiseplass. Store vindusflater gir godt lys og en luftig romfølelse.
Boligen inneholder to gode soverom og har en tidløs fargepalett som gir et moderne og behagelig uttrykk. Fra stuen er det utgang til en hyggelig veranda. Fast p-plass i garasjekjeller og båtplass i felles bryggeanlegg følger med.
Sjønær, men tilbaketrukket beliggenhet med kort vei til flotte badeplasser og rekreasjon.
Innhold og byggemåte
Innhold og byggemåte
Eiendommen
Nyvei 14, 4900 TVEDESTRAND
Kommunenummer 4213, gårdsnummer 74, bruksnummer 244, seksjonsnummer 39
Innhold
Totalt bruksareal BRA: 69 kvm
BRA-i:
Leilighet :
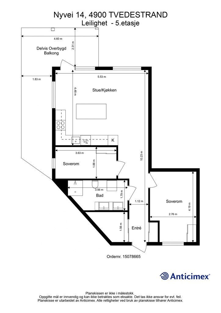
5. etasje 64 kvm: Entre, bad, to soverom og stue/kjøkken.
BRA-e:
Leilighet :
3. etasje 5 kvm: Bod
Åpent areal:
Leilighet :
5. etasje 22 kvm: Delvis overbygd balkong.
Boligen disponerer 1 bod i fellesanlegg. Boden er tinglyst som en tilleggsdel til seksjonen.
Vedlagte plantegninger er ikke målbare. De oppgitte arealer er hentet fra rapport med befaringsdato 23.01.2025 utført av Anticimex v/ Halvard Grina. Arealene er beregnet og rom er definert etter dagens faktiske bruk, uavhengig av hva som er godkjent av bygningsmyndighetene.
Byggemåte
Selger har fått utarbeidet en tilstandsrapport, dvs. en teknisk gjennomgang av boligen hvor eventuelle avvik, risiko for kjøper og prisoverslag for hva som bør gjøres av oppgradering, er skissert. Se særskilt TGIU (tilstandsgrad ikke undersøkt), samt TG2 og TG3 som viser hva som er boligens normale slitasje, alder og type, hva som er avvik fra dette og hva som bør/må utbedres. Rapporten og selgers egenerklæring er en del av salgsoppgaven og må leses nøye før bud inngis. Kjøper overtar ansvaret for de opplysninger som fremkommer av salgsdokumentasjonen, og kan ikke gjøre gjeldende som mangel noe som burde vært kjent eller som ikke kan anses å ha betydning for avtalen.
Bygningen er iht. tilstandsrapporten oppført med grunnmur av betong. Fundamentert på ukjent byggegrunn. Bygget er oppført med parkeringsanlegg i nederste etasje. Yttervegger av betong og trekonstruksjoner. Fasaden er kledd med fasadeplater og stående trekledning. Etasjeskillere av betong. Valmtak i trekonstruksjoner, tekket med takstein (ikke besiktiget). Vinduer og terrassedør med karmer av plast, og tre-lags glass. Les for øvrig mer om byggemåte og den tekniske tilstanden i rapporten.
Det gjøres spesielt oppmerksom på:
TG1: 95%
TG2: 0%
TG3: 0%
TGIU: 5%
Eiendommen selges som dødsbo som innebærer at selger ikke har detaljert kunnskap om eiendommen, med den risiko det medfører.
Standard
Innbydende leilighet i 5 etasje fra 2018. Adkomst til leiligheten via heis og trapperom. Leiligheten holder god standard og består av to soverom, baderom/vaskerom, entre og stue/kjøkken. Leiligheten har vannbåren varme.
Lekkert kjøkken fra Strai med moderne uttrykk, gode oppbevaringsløsninger og integrert vinskap – perfekt både til hverdagsbruk og sosiale sammenkomster. Kjøkkenet ligger åpent mot stue og spiseplass, og de store vindusflatene gir rikelig med naturlig lys og en luftig romfølelse.
Boligen byr på to gode soverom med plass til både seng og garderobeløsninger. Farge- og materialvalgene er tidløse og harmoniske, og gir et moderne, men varmt preg gjennom hele leiligheten.
Fra stuen er det utgang til en hyggelig, delvis overbygget veranda – et fint sted å nyte morgenkaffen eller rolige sommerkvelder. Leiligheten disponerer fast parkeringsplass i garasjekjeller, samt egen båtplass i felles bryggeanlegg, noe som gir enkel tilgang til sjølivet.
Løsøre og tilbehør
Vi viser til liste fra Norges Eiendomsmeglerforbund som gjelder fra 01.01.2020 angående løsøre og tilbehør.
Oppvarming
Vannbåren gulvvarme og varmekabler på badet.
Ferdigattest/brukstillatelse
Det foreligger ferdigattest for oppføring av nytt bygg med leiligheter på Loggen datert 09.12.2019.
Det er uvisst om det er gjort endringer etter at ferdigattest ble gitt, men selger opplyser at det ikke er foretatt endringer i selgers eiertid.
Kjøper overtar alt ansvar, kostnad og risiko for dette videre.
Tinglyste heftelser og rettigheter
Det er tinglyst følgende servitutter på sameiets eiendom:
30.11.1992-Dokumentnr. 3445-Rettigheter iflg. skjøte
Rettighetshaver: Knr:4213 Gnr:74 Bnr:356
Bestemmelse om adkomstrett
Trapp
Overført fra: Knr:4213 Gnr:74 Bnr:244 Snr:4
Gjelder denne registerenheten med flere
Sameiet har legalpant for krav mot sameieren som følger av sameieforholdet iht. eierseksjonsloven § 31. Pantet er begrenset oppad til 2G, (G = folketrygdens grunnbeløp).
I tillegg har sameiet tinglyst panterett som nevnt over.
Eventuell adgang til utleie
Leiligheten kan leies ut såfremt leiligheten har forsvarlige radonverdier. Leietaker må følge sameiets vedtekter og ordensregler på lik linje som eier. Utleie for kortere tid enn en uke er ikke tillatt.
Energimerking
Det er fylt ut en forenklet energiattest. Med forbehold om feil i denne.
Beliggenhet og tomteforhold
Beliggenhet og tomteforhold
Beliggenhet
Flott sentrumsbeliggenhet med kort avstand til alle fasilitetene i Tvedestrand. Eiendommen har en fantastisk beliggenhet i nærheten av vannet, samtidig tilbaketrukket i rolige omgivelser. Leilighetens hjørneplassering i høyden gir en lekker utsikt fra den romslige verandaen på 22 kvm. Her har man plass til nok av møblering samt nyte en delvis usjenert uteplass. Leiligheten har tilhørende parkeringsplass i felles garasjeanlegg i underetasjen samt sportsbod i fellesanlegg.
Kort avstand fra eiendommen finner man hovedgatene i sentrum som inneholder nisjebutikker, gode restauranter og bakeriutsalg. Man finner også apotek, vinmonopol, matvarebutikk, i tillegg til bussholdeplass, barnehage og skole i gangavstand fra eiendommen. Tvedestrand er kjent for sin fredelige atmosfære og flotte sommeridyll. Det er en vakker by med særpreget sørlandskarakter og fin natur. Nærområdet byr på turområder og badeplasser. Kommunen er sentralt plassert midt mellom større byer som er lett tilgjengelige med E18. Det er omtrent 30 minutter til Arendal og Risør, og 1 time hver retning med bil til Kragerø og Kristiansand.
Adkomst
Se kart eller kontakt megler for veibeskrivelse.
Barnehager, skoler og fritid
Barnehage:
Lyngbakken barnehage (1-5 år): 1.1 km
Bronsbu barnehage (1-5 år): 1.3 km
Blåbærskogen naturbarnehage (0-5 år): 2 km
Skole:
Tvedestrand barneskole (1-7 kl.): 1.7 km
Lyngmyr skole (8-10 kl.): 1.2 km
Tvedestrand videregående skole: 1.8 km
Informasjon om tilhørende skolekretser er hentet fra Prognosesenteret som dataleverandør, og tilhørigheten kan årlig endres av kommunen. Dersom skole- og barnehagetilbud er av betydning for kjøpet, ber vi om at det rettes en særskilt henvendelse til kommunen/bydelsadministrasjonen for oppdatert informasjon.
Beskrivelse av tomt
Tomten, tilhørende sameiet, er opparbeidet med bl.a. beplantning, gangarealer og brygger. Det er også tinglyst rett til bruk av areal på gnr. 74, bnr. 356. Sameiets fellesareal gjelder Nyvei 15 og Nyvei 14. Tilhørende terrasse er ca. 33m². Eiendomsgrenser er oppgitt som nøyaktig og middels nøyaktig i grunnkart mottatt fra kommunen.
Parkering
Leiligheten disponerer 1 parkeringsplass i felles garasjeanlegg.
Vei, vann og avløp
Eiendommen har adkomst via kommunal vei.
Eiendommen er tilknyttet kommunalt ledningsnett via private stikkledninger.
Sameiet er ansvarlig for private stikkledninger til bygningen.
Regulerings-og arealplaner
Eiendommen er regulert til boligbebyggelse-blokkbebyggelse, tilhører reguleringsplan Loggen Brygge, ikrafttredelsesdato 26.04.2016. Reguleringsbestemmelser og plankart kan fås ved henvendelse til megler. Det kan foreligge fremtidige planer hos kommunen for området rundt eiendommen, som megler ikke har mottatt opplysninger om.
Deler av eiendommen er også regulert til gangveg, lekeplass, småbåthavn og boligbebyggelse (frittliggende småhusbebyggelse).
Eiendommen ligger innenfor hensynssone "bevaring kulturmiljø" i kommuneplan.
Økonomi
Økonomi
Boligens kostnader
Fellesutgiftene er kr 3 675,- pr. mnd. og inkluderer: fellesutgifter (byggforsikring, drift og vedlikehold fellesareal etc.), avdrag andel fellesgjeld, rentekostnader andel fellesgjeld, service ventilasjon, Telia og måler: energi og varmtvann.
Fellesutgiftene justeres normalt en til to ganger årlig i forhold til sameiets faktiske utgifter.
Kommunale avgifter var kr 15 338 for 2025.
Utgiftene er basert på nåværende eiers forbruk. Kjøper må selv tegne innboforsikring.
Kommunale utgifter
Kommunale avgifter var kr 16586 ,- I dette inngår gebyr for vann, avløp, renovasjon og eiendomsskatt.
I tillegg kommer fellesutgifter kr 3 675,- per mnd.
Selger har ikke bebodd eiendommen og har således ikke kjennskap til øvrige løpende utgifter for eiendommen.
Formuesverdi
Formuesverdi for 2024 var kr 517 900,- ifølge skatteetaten. Beløpet forutsetter at eier bor fast i boligen (primærbolig).
Ved eventuell øvrig bruk av eiendommen (f.eks. fritidsbolig, pendlerbolig, utleieobjekt) var formuesverdien for 2023 kr 2 071 598,-.
Formuesverdien justeres normalt årlig.
Fra 2026 har Stortinget vedtatt en oppdatert modell for beregning av formuesverdi for primærbolig, så avvik kan forekomme.
For mer informasjon se skatteetaten.no
Eiendomsskatt
Eiendomsskatten utgjør kr. 4968 pr år.
Omkostninger
3 400 000,00 Prisantydning
34 804,00 Andel av fellesgjeld
--------------------------------------------------------
3 434 804,00 Pris inkl. fellesgjeld
Omkostninger
85 850,00 Dokumentavgift til staten (2,5% av kjøpesum)
9 950,00 Gjensidige Boligkjøperpakke (valgfri)
545,00 Tinglysing panterettsdokument
545,00 Tinglysing skjøte
--------------------------------------------------------
96 890,00 Omkostninger totalt
--------------------------------------------------------
3 531 694,00 Totalpris inkl. omkostninger
--------------------------------------------------------
Dersom sameiet har fellesgjeld, vil leilighetens andel av fellesgjelden komme i tillegg til kjøpesummen. Denne gjelden skal ikke innbetales i oppgjøret, men følger leiligheten.
Totalpris inkl. omkostninger forutsetter kjøp til prisantydning.
Det tas forbehold om endringer i avgifter og gebyrer.
Betalingsbetingelser
Kjøpesum inkludert omkostninger, samt pantedokument tilknyttet eventuelt lån, skal være disponibelt hos megler 2 virkedager før overtagelsen.
Annen viktig informasjon
Annen viktig informasjon
Eier
Pernille Arvesen og Cathinka Mathiesen
Informasjon om sameiet
Sameiet Loggen brygge består av 31 eierseksjoner fordelt på to bygg, samt fellesarealer. Sameiet har bruksrett på gnr. 74, bnr. 356.
Dyrehold er tillatt så langt det ikke er til sjenanse for øvrige seksjonseiere. Seksjonseiere plikter til å følge ordensregler som er vedtatt på årsmøte, og de retningslinjer som vedtas av styret for driften av sameiet og bruken av fellesarealer.
Informasjon om forkjøpsrett
Eiendommen er seksjonert, og leiligheten er tilknyttet Sameiet Loggen Brygge.
Forretningsfører er BOSØR.
Dyrehold er tillatt.
Iht. sameiets vedtekter må kjøper godkjennes av styret som ny sameier. Det er kjøpers ansvar at styregodkjenning blir gitt, men styret kan ikke nekte godkjenning uten saklig grunn.
Vi gjør videre oppmerksom på at det iht. eierseksjonsloven ikke er anledning å erverve mer enn 2 seksjoner i sameiet, her teller også eierskap via. firma, nærstående og familie. Kjøper har risikoen for at overskjøting på denne bakgrunn kan nektes av Statens Kartverk. I så fall vil kjøper uansett være forpliktet til å gjennomføre handelen, og oppgjør til selger vil finne sted tross manglende overskjøting.
Konferer med megler for mer informasjon.
Følgende saker fremgår av årsmelding for 2025:
- Felles elbilladeanlegg ble etablert i 2022. De som ikke er tatt i bruk vil koste kr. 10.000,- pr. stk. når de ev. settes i drift.
- Oversikt over serviceavtaler.
- Det har vært gjennomført vanlig vedlikehold med enkelte utbedringer av møblement og blomsterkasser.
- Konsekvenser av et voldsomt snøfall i 2024: Det jobbes med sikrere løsning for adkomst til taket slik at det vil være mulig å måke. Det ble stilt spørsmål til produsent som uttaler at det skal tåle nærmest dobbel mengde snø enn det som kom i januar 2024.
- Problemer med rust fra de gamle rørene fra varmepumpen. En vesentlig del av de midler som i budsjett for 2025 var avsatt til uforutsette utgifter gikk med til dette tiltaket (midlertidig løsning på problemet).
- Videre er det informert om reperasjon av heisene i forbindelse med service, stans i kloakkpumpene, garasjeporten mv. Videre informeres det om at søksmål mot utbygger er foreldet/ikke ønskelig å gå videre med. Bakgrunn for søksmålet gjaldt blant annet adkomst til taket som ikke er sikker og varmepumpen med tilhørende rør.
- Det må utføres utbedringer på betongoverflaten på svalgangene i forbindelse med at det er sprekkdannelser og problemer med vannavrenning, samt sterkt fall inn mot teknisk rom. De avventes avklaring av veien videre. Det kan åpnes for engangsbeløp ved flertall for dette.
Den er innstilt som ny styreleder opplyser en gjennomgang av økonomien og ønsker å holde felleskostnadene nede.
Innkalling til årsmøte 2025:
- Styret vedtok økning av fra kr. 484 til kr. 500 pr. m². Vedtaket må godkjennes av årsmøtet. Styret økte lånet i Nordea i 2024 med kr. 300.000,-. Det vises til det tidligere vedtatte a-kontobeløpet for bruk av varmtvann som opprettholdes (a-konto kr. 7.920,- pr. år for varmtvann). I tillegg må hver seksjon betale inn sine like andeler av utfigter til Telia og Bravida, alle disse fordeles over året med like store månedlige beløp.
Totalt lån pr. 31.12.2024 er kr. 1.213.527,-. Lån 60308118358 er refinansiert mars 2025, nytt låneopptak kr. 1.411.000,-.
Dokumenter for sameiet, budsjett og kopi av seksjonsbegjæringen kan fås ved henvendelse til megler.
Overtakelse
Etter nærmere avtale.
Boligselgerforsikring
Selger har i forbindelse med salget tegnet boligselgerforsikring levert av Gjensidige.
Boligselgerforsikringen dekker selgers ansvar etter avhendingsloven begrenset oppad til kr 14 millioner. Dersom kjøper oppdager forhold ved eiendommen som hen mener utgjør en mangel ved eiendommen, vil Gjensidige behandle reklamasjonen på vegne av selger. Forsikringsvilkår kan fås ved henvendelse til megler.
Vedlagt salgsoppgaven følger selgers egenerklæringsskjema og tilstandsrapport. Interessenter må sette seg inn i dokumentene før bud inngis.
Boligkjøperforsikring
Innen kontraktsmøtet må kjøper ta stilling til om det ønskes å bestille Boligkjøperpakken gjennom Gjensidige. I denne gunstige pakken er boligen ferdig forsikret og inkluderer rettshjelpsforsikring, også kalt Boligkjøperforsikring. Rettshjelpsforsikring gir trygghet og tilgang på profesjonell juridisk hjelp dersom det oppdages uventede feil eller mangler det første året etter overtagelse. Forsikringsselskapet behandler i så fall ethvert mangelskrav kjøper måtte ha overfor selger.
Boligkjøperpakken inkluderer bygningsforsikring for hus og hytte, innboforsikring, flytteforsikring og dobbel rentedekning - i situasjoner hvor kjøper ikke får solgt nåværende primærbolig.
Kjøper mottar ingen særskilt faktura for Boligkjøperpakken da kostnaden det første året legges til kjøpesummen for boligen. Det gjøres oppmerksom på Krogsveen mottar et honorar for denne formidlingen.
Produktark for Boligkjøperpakken ligger vedlagt i salgsoppgaven.
Dersom ikke boligkjøperpakke ønskes kan kun rettshjelpsforsikring, også kalt boligkjøperforsikring, tegnes særskilt via megler. Rettshjelpsforsikringen varer i 5 år fra overtagelse og leveres gjennom Gjensidige. Ta kontakt med megler for ytterligere informasjon.
Selskap og privatpersoner som driver med kjøp/salg/utvikling som ledd i egen næringsvirksomhet kan ikke tegne boligkjøperpakke eller rettshjelpsforsikring.
Budgivning
Forbrukerinformasjon om budgivning er vedlagt denne salgsoppgaven og er også på vår hjemmeside Krogsveen.no. Alle bud og budforhøyelser må inngis skriftlig. I tillegg må legitimasjon være fremlagt sammen med signatur fra budgiver.
Vi oppfordrer til å gi bud elektronisk via GI BUD-knappen på eiendommens hjemmeside på Krogsveen.no. Da vil samtlige vilkår bli oppfylt.
Eventuelle forhøyelser eller endringer av budet kan bekreftes pr SMS eller på e-post. Vi oppfordrer alltid til å kontakte megler pr. telefon i tillegg da forsinkelser i SMS og e-post kan forekomme.
For at budene skal kunne bli behandlet og videreformidlet skriftlig til alle involverte parter, må alle bud ha en tilstrekkelig lang akseptfrist, jf. eiendomsmeglingsforskriften § 6-3.
Selger må også skriftlig akseptere budet før aksept kan formidles til budgiver. Akseptfrist bør derfor være på minimum 30 minutter, og budforhøyelser må derfor skje i god tid før fristens utløp.
Bud i forbrukerforhold kan uansett ikke settes med kortere frist enn kl. 12.00 første virkedag etter siste annonserte visning. I tillegg kan ikke budet ha forbehold om at det skal holdes hemmelig ovenfor øvrige interessenter. Megler har iht lov om eiendomsmegling ikke anledning til å videreformidle disse budene, og de vil dermed heller ikke bli journalført.
Etter at eiendommen er solgt vil kjøper og selger få tilsendt budjournal. Øvrige budgivere kan få utlevert kopi av budjournalen i anonymisert form.
Hvitvaskingsreglene
I henhold til lov om hvitvasking og terrorfinansiering har megler plikt til å gjennomføre kontrolltiltak overfor kunder, herunder fullmektiger. Dette innebærer bl.a. å bekrefte kunders og reelle rettighetshaveres identitet på bakgrunn av fremvist gyldig legitimasjon eller på annen godkjent måte, samt å innhente opplysninger om kundeforholdets formål og tilsiktede art.
Dersom slike kundetiltak ikke kan gjennomføres, kan megler ikke etablere kundeforholdet eller utføre transaksjonen.
Hvis kjøper ikke bidrar til gjennomføring av kundekontrollen og dette fører til at transaksjonen blir forsinket eller ikke kan gjennomføres, vil dette ansees som mislighold av avtalen og gi selger rettigheter etter avhendingslova kapittel 5. I tilfeller der selger ikke bidrar til gjennomføring av løpende kundekontroll underveis i oppdraget, er det selger som misligholder sine forpliktelser etter avtalen og gi kjøper rettigheter etter avhendingslovens kapittel 4. Partene er selv ansvarlige for eventuelle kostnader og ansvar dette kan medføre. Eiendomsmegleren eller eiendomsmeglingsforetaket kan ikke holdes ansvarlig for de konsekvenser dette vil kunne få for partene eller andre som har interesser i eiendomshandelen.
Kjøper oppfordres til å innbetale kjøpesummen som ikke kommer fra låneinstitusjon i én samlet innbetaling fra egen konto i norsk bank. Megler har plikt til å melde fra til Økokrim om eiendomshandler som fremstår som mistenkelige. Melding sendes Økokrim uten at partene varsles.
Personopplysningsloven
I henhold til personopplysningsloven gjør vi oppmerksom på at interessenter kan bli registrert for videre oppfølging.
Lovanvendelse
Generelle bestemmelser
Salgsoppgaven er basert på de opplysningene selger har gitt til megler, den bygningssakyndiges tilstandsrapport, samt opplysninger innhentet fra kommunen, Kartverket og andre tilgjengelige kilder. Det er viktig at kjøper setter seg grundig inn i alle salgsdokumentene, herunder salgsoppgave, tilstandsrapport og selgers egenerklæring. Kjøper anses kjent med forhold som er tydelig beskrevet i salgsdokumentene, og slike forhold kan ikke påberopes som mangler. Dette gjelder uavhengig av om kjøper har lest dokumentene. Alle interessenter oppfordres til å undersøke eiendommen nøye, gjerne sammen med fagkyndig før bud inngis. Kjøper som velger å kjøpe usett kan ikke gjøre gjeldende som mangel noe han burde blitt kjent med ved undersøkelsen.
Dersom det er behov for avklaringer, anbefaler vi at interessenter rådfører seg med eiendomsmegler eller egne rådgivere før det legges inn bud.
En bolig som har blitt brukt i en viss tid, har vanligvis blitt utsatt for slitasje og skader kan ha oppstått. Slik bruksslitasje må kjøper regne med, og det kan avdekkes enkelte forhold etter overtakelse som nødvendiggjør utbedringer. Normal slitasje og skader som nødvendiggjør utbedring, er innenfor hva kjøper må forvente og vil ikke utgjøre en mangel.
Kjøper og selgers rettigheter og plikter reguleres av avtalen mellom partene, samt informasjonen som har vært tilgjengelig for kjøperen i forbindelse med handelen. Avtalen utfylles av avhendingsloven, og det gjelder ulike avtalevilkår avhengig av om kjøper er forbrukerkjøper eller ikke. Dette er nærmere beskrevet nedenfor.
På grunn av ulike avtalevilkår kan selger vurdere bud fra en som ikke er forbruker, ulikt fra en forbrukers bud. Dersom kjøper ikke er forbruker, er selger sitt mulige mangelsansvar begrenset fordi eiendommen selges "som den er". Selger kan ikke ta «som den er»- forbehold overfor en forbrukerkjøper. Selv et lavere bud fra en som ikke er forbruker kan foretrekkes fordi begrensningen i mulig mangelsansvar kan ha egenverdi for selger. Selger står fritt til å forkaste eller akseptere ethvert bud, og er for eksempel ikke forpliktet til å akseptere høyeste bud.
Budgiver skal i budskjema avgi egenerklæring om budgiver er forbruker eller næringsdrivende/ person som hovedsakelig handler som ledd i næringsvirksomhet. Budgivere får informasjon dersom andre bud er inngitt av en som ikke er forbruker.
Forbrukerkjøp - definisjon
Med forbrukerkjøp menes kjøp av eiendom når kjøperen er en fysisk person som ikke hovedsakelig handler som ledd i næringsvirksomhet.
Forbruker – avtalevilkår
Eiendommen har en mangel dersom den ikke er i samsvar med kravene som følger av avtalen, eller det foreligger brudd på bestemmelsene i avhendingsloven §§ 3-2 til 3-8. Hvis eiendommen ikke er i samsvar med det kjøperen må kunne forvente ut ifra alder, type og synlig tilstand, kan det være grunnlag for mangelskrav. Det samme gjelder hvis det er holdt tilbake eller gitt uriktige opplysninger om eiendommen. Dette gjelder likevel bare dersom man kan gå ut ifra at det virket inn på avtalen at opplysningen ikke ble gitt eller at mangelskravet ikke blir rettet i tide på en tydelig måte.
Boligen kan ha en mangel etter avhendingsloven § 3-3 andre ledd, dersom det er avvik mellom opplyst og faktisk innvendig areal, forutsatt at avviket er på 2% eller mer og minimum 1 kvm.
Ved beregning av et eventuelt prisavslag eller erstatning må kjøper selv dekke tap/kostnader opptil et beløp på kr 10 000 (egenandel).
Ikke-forbruker (næringsdrivende) – definisjon
Hvis kjøper er en juridisk person, eller en fysisk person som hovedsakelig handler som ledd i næringsvirksomhet, vil kjøpet ikke anses som et forbrukerkjøp.
Ikke-forbruker – avtalevilkår
Eiendommen har en mangel dersom den ikke er i samsvar med kravene som følger av avtalen.
Eiendommen selges «som den er», og selgers ansvar utover det konkret avtalte er da begrenset etter avhendingsloven § 3-9, første ledd andre setning.
Avhendingsloven § 3-3 andre ledd fravikes, og hvorvidt boligens arealsvikt utgjør en mangel vurderes etter avhendingsloven § 3-8.
Informasjon om kjøpers undersøkelsesplikt, herunder oppfordringen om å undersøke eiendommen nøye, gjelder også for kjøpere som ikke anses som forbrukere.
Det forutsettes at hjemmel overføres til kjøper. Hvis kjøper ikke ønsker hjemmelsoverføring av eiendommen, må det tas forbehold om dette i budet.
Meglers vederlag
Meglers vederlag betales av selger og er avtalt til:
Vederlag: 1,70 % av salgssummen inkl. eventuell fellesgjeld. Minimumsprovisjon er kr 50 000,00
Vederlag:
Kontroll av hjemmel og heftelser kr 2 900,00
Markedsføringspakke kr 28 900,00
Oppgjør kr 8 900,00
Tilrettelegging kr 9 900,00
Visninger pr stk / Overtagelse kr 900,00
Utlegg:
Eierskiftegebyr forretningsfører (selger) kr 6 570,00
Innhenting av informasjon forretningsfører kr 4 575,00
Innhenting av offentlig opplysninger Tvedestrand kommune kr 4 619,00
Tinglysing sikring kr 545,00
Andre utgifter:
AX tilstandsrapport leilighet kr 8 500,00
Boligselgerforsikring Gjensidige Snr - regnes av prisantydning kr 13 740,00
Foto kr 4 000,00
Vi er opptatt av verdiskapning, og har knyttet til oss samarbeidspartnere som skal sikre våre kunder de beste produkter og tjenester;
• I forbindelse med forberedelse av salget, innhenter vi informasjon om eiendommen hovedsakelig fra vår samarbeidspartner Amibita.
• Gjensidige leverer boligselgerforsikring og tilbyr bygningsforsikring
• Boligkjøperforsikring leveres av Hiscox og med Sedgwick som skadebehandler, og er formidlet gjennom Gjensidige.
• BN bank tilbyr finansieringsløsninger
• Vår avdeling Krogsveen Pluss tilbyr flyttetjenester som utvask, visningsvask, lager, tømming og transport av flyttelass, i tillegg til å formidle kontakt med Flip for overflateoppussing.
• I forbindelse med overtagelse av eiendommen tilbyr Overo avtale om strøm, alarm og bredbånd.
• Krogsveen er, sammen med øvrige bransjeaktører, medeier i Bomega AS som tilbyr den digitale annonseringsplattformen Hjem.
Opplysninger om oppdraget
Oppdragsnummer 47-0002/26
Eiendomsmegler Krogsveen AS, avd. Arendal
Kystveien 14, 4841, ARENDAL
950 007 613
Oppdragets KR-kode KR47.262
Dato
Sist oppdatert: 12. februar 2026 kl. 17:36
Dokumenter
Dokumenter
PDF – 989 KB
PDF – 277 KB
PDF – 168 KB
PDF – 312 KB
PDF – 29 KB
PDF – 127 KB
PDF – 392 KB
Område
Legg til steder som er viktige for deg
Visning
For å delta på visning, ber vi om at du melder deg på. Da sikrer vi at du får nødvendig informasjon og at det er satt av tilstrekkelig med tid. Kontakt megler dersom annet tidspunkt ønskes. Husk å lese salgsoppgaven før visningen, så du stiller forberedt.
Ønsker du kun å bli holdt orientert, kan du fra eiendommens hjemmeside få varsel om solgtpris, eller kontakte megler.
Lurer du på noe?
Unngå doble boligrenter
Vi tilbyr gunstig forsikring.
Vurderer du utleie?
Få et tilbud fra Utleie KrogsveenHva koster lånet?
Sjekk estimert lånekostnadVil du varsles om lignende boliger?
Ved å lagre ditt boligsøk hos oss får du beskjed når vi har en bolig som ligner denne, før den legges ut på markedet!

