Ringsakervegen 679A, B, C, E, F
5 800 000 kr
423 m²
12 soverom
Komplett salgsoppgave
Brumunddal
Eiendom med landlig beliggenhet og totalt 6 uteleieenheter. Dobbelgarasje og uthus. Kun ca. 10 min til Brumunddal.
Prisantydning
5 800 000 krOmkostninger
165 990 krTotalpris
5 965 990 kr
Pris
Bruksareal
508 m²BRA-I (internt bruksareal)
423 m²BRA-E (eksternt bruksareal)
85 m²TBA (terrasse-balkongareal)
104 m²
Areal
Byggeår
1937Soverom
12 soveromBad
6 badTomteareal
2 770 m² (eiet)Type
FlermannsboligEierform
EietFasiliteter
Garasje/P-plass og Balkong/Terrasse
Nøkkelinfo
Unngå doble boligrenter
Vi tilbyr gunstig forsikring.
Vurderer du utleie?
Få et tilbud fra Utleie KrogsveenHva koster lånet?
Sjekk estimert lånekostnadBeskrivelse
Kort om eiendommen
Innholdsrik eiendom i landlige omgivelser med totalt 6 boenheter fordelt over 2 hus, kun ca. 10 minutters kjøretid fra Brumunddal sentrum.
Eiendommen består av:
- Tomannsbolig med boenhet E (2-roms) og boenhet F (3-roms)
- Tremannsbolig med boenhet A (2 stk. 3-roms), boenhet B (3-roms) og boenhet C (4-roms)
- Frittstående dobbelgarasje
- Frittstående uthus/redskapsbod
Alle boenhetene har egen, privat adkomst og tilgang til uteplass i form av terrasse, overbygd platting eller direkte ut på bakkeplan. Pent opparbeidet tomt med grus, steinheller, plenareal, diverse beplantninger og forstøtningsmurer, samt biloppstillingsplasser.
Velkommen til en hyggelig visning!
Innhold og byggemåte
Innhold og byggemåte
Eiendommen
Ringsakervegen 679A, B, C, E, F , 2384 BRUMUNDDAL
Kommunenummer 3411, gårdsnummer 214, bruksnummer 8, ideell andel 1/1
Innhold
Totalt bruksareal BRA: 508 kvm
BRA-i:
Tremannsbolig :
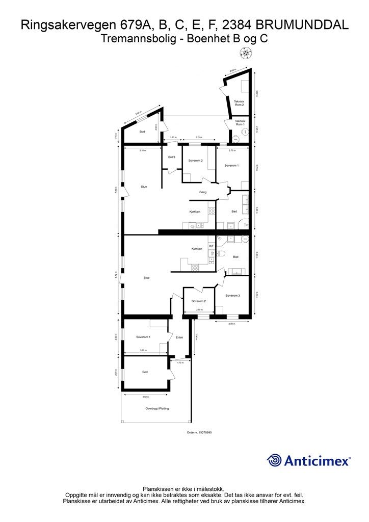
Boenhet A: 1. etasje 170 kvm: To entréer, to ganger, to bad, to kjøkken, to stuer og fire soverom.
Boenhet B: Underetasje: 82 kvm: Entré, gang, stue, kjøkken, bad og to soverom.
Boenhet C: Underetasje: 93 kvm: Entré, gang, stue, kjøkken, bad og tre soverom.
Tomannsbolig:
Boenhet E: 1. etasje 30 kvm: Kjøkken/stue, bad og soverom.
Boenhet F: 1. etasje 48 kvm: Kjøkken/stue, bad og to soverom.
BRA-e:
Tremannsbolig :
Boenhet B: Underetasje: 14 kvm: Bod og to tekniske rom.
Boenhet C: Underetasje: 11 kvm: Bod.
Tomannsbolig:
Boenhet F: 1. etasje 3 kvm: Bod.
Garasje:
1. etasje 43 kvm: Garasje.
1. etasje 14 kvm: Frittstående utebod.
Åpent areal:
Tremannsbolig:
Boenhet A: 1. etasje 86 kvm: Terrasse.
Boenhet C: Underetasje: 18 kvm: Platting.
Vedlagte plantegninger er ikke målbare. De oppgitte arealer er hentet fra rapport med befaringsdato 11.02.2026 utført av Anticimex AS v/Marius Rognstad. Arealene er beregnet og rom er definert etter dagens faktiske bruk, uavhengig av hva som er godkjent av bygningsmyndighetene.
Byggemåte
Selger har fått utarbeidet en tilstandsrapport, dvs. en teknisk gjennomgang av boligen hvor eventuelle avvik, risiko for kjøper og prisoverslag for hva som bør gjøres av oppgradering, er skissert. Se særskilt TGIU (tilstandsgrad ikke undersøkt), samt TG2 og TG3 som viser hva som er boligens normale slitasje, alder og type, hva som er avvik fra dette og hva som bør/må utbedres. Rapporten og selgers egenerklæring er en del av salgsoppgaven og må leses nøye før bud inngis. Kjøper overtar ansvaret for de opplysninger som fremkommer av salgsdokumentasjonen, og kan ikke gjøre gjeldende som mangel noe som burde vært kjent eller som ikke kan anses å ha betydning for avtalen.
Bygningen er iht. tilstandsrapporten:
Tremannsboligen er opprinnelig oppført i 1937, men er bygget på i flere omganger, bla. i 1980 (basert på opplysninger i tidligere boligsalgsrapport). Grunnmur av betong og lettklinkerblokker. Fundamentert på ukjent byggegrunn. Bygget er oppført med støpt gulv mot grunn. Yttervegger av trekonstruksjoner. Fasaden er kledd med liggende trekledning. Etasjeskillere av trekonstruksjoner. Saltak i trekonstruksjoner. Yttertaket er utvendig tekket med metallplater. Boligbygget har entrédører med glassfelter. Vinduer hovedsakelig med karmer av plast, og to-lags glass. Balkongdører i forskjellig utførelse, fra forskjellige årstall. Ventilasjon med naturlig tilluft kombinert med stedvis periodisk mekanisk avtrekk.
Tomannsboligen er opprinnelig en garasje med kontor som ble oppført på ukjent tidspunkt, men ble ombygget til to boenheter i 2016. Grunnmur av betong og lettklinkerblokker. Fundamentert på ukjent byggegrunn. Bygningen er delvis oppført med støpt gulv mot grunnen, men i deler av bygget er gulvets oppbygning mot grunnen ukjent. Yttervegger av trekonstruksjoner. Fasaden er kledd med liggende trekledning. Saltak i trekonstruksjoner. Yttertakene er utvendig tekket med takstein og metallplater. Vinduer med karmer av tre, og to-lags glass. Ventilasjon med naturlig tilluft kombinert med stedvis periodisk mekanisk avtrekk.
Det gjøres spesielt oppmerksom på at følgende bygningsdeler er gitt tilstandsgrad 3 (TG3):
- Rom under terreng - Boenhet B og C (Helhetsvurdering)
- Loft - uinnredet / kaldt loft - Kaltloft over boenhet A (Helhetsvurdering)
- Drenering - Tremannsbolig (Helhetsvurdering)
- Frittstående utebod (Helhetsvurdering)
Flere bygningsdeler er gitt tilstandsgrad 2 (TG2).
Se supplerende tekst i tilstandsrapporten. Kjøper overtar ansvar og risiko for dette.
Standard
BOENHET A
Kjøkken 1:
Kjøkkeninnredning med glatte fronter, benkeplate med laminert overflate og kjøkkenvask. Frittstående komfyr, oppvaskmaskin og kjøleskap med fryser. Ventilator i overskap.
Gulvflater belagt med laminat, vegg- og himlingsflater i panelplater og takplater, takplater i himling og laminert plate mellom kjøkkenbenk og overskap.
Kjøkken 2:
Kjøkkeninnredning (fra 2022) med glatte fronter, benkeplate med laminert overflate og nedfelt kjøkkenvask. Integrert stekeovn, platetopp og oppvaskmaskin. Ventilator i overskap.
Gulvflater belagt med laminat, vegg- og himlingsflater i panelplater og takplater og laminerte plater på vegger rundt platetoppen.
Bad 1:
Baderom fra ukjent eksakt årstall. Gulvflate belagt med gulvbelegg med gulvvarme, baderomsplater på vegger og takplater i himling. Vegghengt servantinnredning, speilskap,
dusjkabinett og gulvstående toalett. Det er opplegg for vaskemaskin.
Bad 2:
Baderom fra 2007 (basert på opplysninger i tidligere boligsalgsrapport, datert 03. 12. 2015) med flislagt gulv med gulvvarme, flislagte vegger og takplater i himling.
Vegghengt servantinnredning, vegghengte skap, dusjkabinett og gulvstående toalett. Det er opplegg for vaskemaskin.
Øvrige rom:
Gulvflater belagt med laminat og gulvbelegg. Det råder en viss usikkerhet hvilke rom det er gulvvarme. Vegg- og himlingsflater i panelplater, malt panel og takplater.
Stedvis nedsenket himling med downlights. Det er profilerte og glatte innerdører.
BOENHET B
Kjøkken:
Åpen kjøkkenløsning med kjøkkeninnredning med glatte fronter, benkeplate med laminert overflate og nedfelt kjøkkenvask. Frittstående komfyr, oppvaskmaskin og kjøleskap med fryser. Ventilator i overskap. Gulvflater belagt med fliser og vegg- og himlingsflater i malt panel og takplater.
Bad:
Baderom fra ukjent eksakt årstall med flislagt gulv med gulvvarme, flislagte vegger og takplater i himling. Vegghengt servantinnredning, speilskap, vegghengt utslagsvask, dusjkabinett og gulvstående toalett. Det er opplegg for vaskemaskin.
Øvrige rom:
Gulvflater belagt med fliser og laminat. Gulvvarme i hele etasjen (basert på opplysninger fra selger). Vegg- og himlingsflater i malt/beiset panel, panelplater og takplater.
Det er profilerte innerdører.
BOENHET C
Kjøkken:
Åpen kjøkkenløsning med kjøkkeninnredning med glatte fronter, benkeplate med laminert overflate og nedfelt kjøkkenvask. Frittstående komfyr, oppvaskmaskin og kjøleskap med fryser. Gulvflater belagt med fliser, malt panel på vegger, takplater i himling og laminert plate mellom kjøkkenbenk og overskap.
Bad:
Baderom fra ukjent eksakt årstall, vurdert til å være delvis oppgradert i 2007 (basert på datomerking på avløpsrør for utslagsvask). Flislagt gulv med gulvvarme, flislagte vegger,
takplater i himling, vegghengt servantinnredning, vegghengt utslagsvask med armatur, dusjkabinett og gulvstående toalett. Det er opplegg for vaskemaskin. Varmtvannsbereder plassert i hjørne.
Øvrige rom:
Gulvflater belagt med fliser og laminat. Gulvvarme i hele etasjen, foruten ett av soverommene (basert på opplysninger fra selger). Vegg- og himlingsflater i malt/beiset panel, panelplater og takplater.
Det er profilerte innerdører.
BOENHET E
Kjøkken:
Åpen kjøkkenløsning med kjøkkeninnredning fra 2016 og glatte fronter fra 2025, benkeplate med laminert overflate og nedfelt kjøkkenvask. Integrert stekeovn og platetopp. Frittstående oppvaskmaskin og kjøleskap med fryser. Ventilator i overskap. Gulvflater belagt med fliser og vegg- og himlingsflater i beiset panel, panelplater og takplater.
Bad:
Baderom fra ombyggingsåret, 2016, med flislagt gulv med gulvvarme, baderomsplater på vegger og takplater i himling. Vegghengt servantinnredning, speilskap, dusjkabinett og gulvstående toalett. Det er opplegg for vaskemaskin.
Øvrige rom:
Gulvflater belagt med fliser og vegg- og himlingsflater i beiset panel, panelplater og takplater. Glatte innerdører.
BOENHET F
Kjøkken:
Åpen kjøkkenløsning med kjøkkeninnredning med glatte fronter fra ombyggingsåret (2016), benkeplate med laminert overflate og nedfelt kjøkkenvask. Frittstående komfyr og kjøleskap med fryser, integrert oppvaskmaskin og ventilator i overskap. Gulvflater belagt med laminat, vegg- og himlingsflater i panelplater og takplater.
Bad:
Baderom fra ombyggingsåret, 2016, med flislagt gulv med gulvvarme, baderomsplater på vegger og takplater i himling. Vegghengt servantinnredning, speilskap, dusjkabinett og gulvstående toalett. Det er opplegg for vaskemaskin.
Øvrige rom:
Etasjen har vegger som delvis er utlektet fra grunnmuren. Gulvflater belagt med laminat og vegg- og himlingsflater i panelplater og takplater. Det er glatte innerdører.
Løsøre og tilbehør
Vi viser til liste fra Norges Eiendomsmeglerforbund som gjelder fra 01.01.2020 angående løsøre og tilbehør.
Diverse inventar er tilhørende utleier og medfølger i salget.
Oppvarming
BOENHET A/B/C:
Oppvarming av tremannsboligens boenheter skjer i hovedsak ved bruk av vannbåren gulvvarme tilkoblet varmesentral.
BOENHET E/F:
Oppvarming av tomannsboligens boenheter skjer ved bruk av elektrisk oppvarming i form av panelovner og gulvvarme.
Dersom beboelsesrom ikke har vegg- eller fastmonterte varmekilder ved visning, følger dette heller ikke med.
Varmtvann til boenhet E og F kommer fra vannbårenvarme fra teknisk rom i boenhet B.
Ferdigattest/brukstillatelse
Det foreligger ferdigattest på tilbygg til bolig, datert 13.09.1979.
Det foreligger ferdigattest på bruksendring av enebolig i 1. etasje og 2 leiligheter i underetasje, datert 26.08.2010. (Denne gjelder for boenhet A, B og C).
Det foreligger ferdigattest på bruksendring fra garasje kontor til to boenheter, datert 04.05.2016. (Denne gjelder for boenhet F og E).
Ovennevnte dokumenter kan fås ved henvendelse til megler.
Det er ikke mottatt fullstendige byggetegninger fra kommunen. Mottatte byggetegninger (tomannsboligen) viser at det er avvik fra dagens bruk. Boenheten med 2 soverom er opprinnelig byggemeldt med 1 soverom. Innredning av rommene til bruk for varig opphold er ikke bruksendret/omsøkt og er heller ikke godkjent av kommunen. Konsekvensen ved søknad kan være at rommet ikke godkjennes som varig opphold og at rommet da må brukes som bod/midlertidig oppbevaring.
Kjøper overtar alt ansvar, kostnad og risiko for dette videre.
Det gjøres oppmerksom på at det ikke lenger utstedes ferdigattest på tiltak det er søkt om før 1998 jf. plan- og bygningsloven § 21-10. Kommunen vil ikke kreve ferdigattest for disse tiltakene og vil avvise eventuelle søknader. Bestemmelsen innebærer ikke at tiltak med manglende søknad blir lovlige, men at man ikke trenger å avslutte gamle byggesaker. Normalt sett kreves ferdigattest for alle søknadspliktige tiltak som gjøres etter plan- og bygningsloven.
Tinglyste heftelser og rettigheter
Det er ingen kjente tinglyste servitutter på eiendommen.
Eventuell adgang til utleie
Boenhetene er godkjent som separate boenheter, og kan lovlig leies ut.
Alle boenhetene er utleid p.t. Leieforholdet av boenhet E opphører fra 01.04.2026.
Husleie pr. måned er som følger:
A1: kr. 11 000. Strøm og oppvarming, vann- og avløpsavgifter og internett er inkludert i leien.
A2: kr. 7 000. Strøm og oppvarming, vann- og avløpsavgifter og internett er inkludert i leien.
B: kr. 4 500. Strøm og oppvarming, vann- og avløpsavgifter og internett er inkludert i leien. Denne leietakeren har redusert leie som kompensasjon for vaktmestertjeneste.
C: kr. 11 856. Strøm og oppvarming, vann- og avløpsavgifter og internett er inkludert i leien.
E: kr. 8 750. Vann- og avløpsavgifter og internett er inkludert i leien. Strøm og oppvarming er ikke inkludert i leien.
F: kr. 9 580. Strøm og oppvarming, vann- og avløpsavgifter og internett er inkludert i leien.
Dyrehold og røyking inne er ikke vært tillatt i leieforholdene.
Kopi av leiekontraktene kan fås ved henvendelse til megler.
Diverse inventar er tilhørende utleier og medfølger i salget.
Det gjøres oppmerksom på at det er krav til forsvarlige radonnivåer ved utleie. Det er ikke gjennomført radonmåling på denne boligen.
Diverse
BOENEHET A/B/C:
I følge Elvia ble sist kontroll av det elektriske anlegget utført: 25.07.1990. Foreligger det pålegg om utbedring av feil på det elektriske anlegget: Nei.
BOENEHET E/F:
I følge Elvia ble sist kontroll av det elektriske anlegget utført: Ikke foretatt noen besiktigelse. Foreligger det pålegg om utbedring av feil på det elektriske anlegget: Nei.
Beliggenhet og tomteforhold
Beliggenhet og tomteforhold
Beliggenhet
Eiendommen ligger landlig og luftig til i fine omgivelser mellom Brumunddal og Rudshøgda. Området består hovedsakelig av jordbruksarealer og spredt boligbebyggelse. Fra eiendommen er det ca. 10 minutters kjøretur til Brumunddal sentrum der man finner det man trenger av handle- og servicefunksjoner. Til Rudshøgda er det ca. 6 minutters kjøretid hvor det er gode handlemuligheter på Obs og Obs bygg av svært gode størrelser.
Adkomst
Se kart for adkomst.
Det vil bli skiltet med Krogsveen visningsskilt ved fellesvisninger.
Beskrivelse av tomt
Eiertomt på 2 770 kvm som er opparbeidet med grus, steinheller, plenareal, diverse beplantninger, forstøtningsmurer og biloppstillingsplass.
Parkering
Parkering i frittstående dobbelgarasje og biloppstillingsplasser på tomten.
Vei, vann og avløp
Eiendommen har adkomst via privat vei med felles vedlikeholdsansvar.
Eiendommen er tilknyttet kommunalt ledningsnett via private stikkledninger. Eier er selv ansvarlig for private stikkledninger til boligen.
Regulerings-og arealplaner
Eiendommen er regulert til LNFR (areal for spredt bolig- fritids- eller næringsbebyggelse, mv,) i henhold til Kommuneplanens arealdel 2025-2040 datert 22.10.2025 med tilhørende reguleringsbestemmelser.
Delareal av eiendommen ligger i hensynssone H310_2, ras- og skredfare.
Utsnitt av plan med tilhørende bestemmelser kan fås ved henvendelse til megler.
Økonomi
Økonomi
Kommunale utgifter
Kommunale avgifter er kr. 101 852 for inneværende år. I dette inngår gebyr for vann, avløp og renovasjon.
Nåværende eier har et strømforbruk som tilsvarer ca. kr. 100 000 pr. år. / ca. 64 398 kwh. pr. år.
Eiendommen har en årlig forsikringspremie på ca. kr. 14 000.
Eiendommen er tilknyttet fiber. Eidsiva er leverandør av fiber/internett. Det er fiber inn til boenhet A1, derfra går det nettverkskabler til de andre boenhetene.
Utgiftene er basert på nåværende eiers forbruk og avtaler.
Formuesverdi
Formuesverdi for 2024 var kr. 1 467 290 ifølge selgers skattemelding/Skatteetaten. Beløpet forutsetter at eier bor fast i boligen (primærbolig).
Ved eventuell øvrig bruk av eiendommen (f.eks. fritidsbolig, pendlerbolig, utleieobjekt) var formuesverdien for 2024 kr. 5 869 160.
Fra 2026 har Stortinget vedtatt en oppdatert modell for beregning av formuesverdi for primærbolig, så avvik kan forekomme.
For mer informasjon se skatteetaten.no.
Eiendomsskatt
Eiendomsskatten utgjør kr. 12 154 pr. år.
Omkostninger
5 800 000,00 Prisantydning
Omkostninger
145 000,00 Dokumentavgift til staten (2,5% av kjøpesum)
19 900,00 Gjensidige Boligkjøperpakke (valgfri)
545,00 Tinglysing panterettsdokument
545,00 Tinglysing skjøte
--------------------------------------------------------
165 990,00 Omkostninger totalt
--------------------------------------------------------
5 965 990,00 Totalpris inkl. omkostninger
--------------------------------------------------------
Totalpris inkl. omkostninger forutsetter kjøp til prisantydning.
Det tas forbehold om endringer i avgifter og gebyrer.
Betalingsbetingelser
Kjøpesum inkludert omkostninger, samt pantedokument tilknyttet eventuelt lån, skal være disponibelt hos megler 2 virkedager før overtagelsen.
Annen viktig informasjon
Annen viktig informasjon
Eier
Pekas Eiendom AS
Konsesjon
Da eiendommen er over 2 mål er den i utgangspunktet underlagt konsesjonslovgivning, og kjøper må ved kontrakt undertegne egenerklæring om konsesjonsfrihet. Denne erklæringen må godkjennes fra kommunen før eiendommen kan overskjøtes til kjøper.
Overtakelse
Etter nærmere avtale. Vennligst oppgi ønsket overtagelse i budskjema.
Boligselgerforsikring
Det gjøres oppmerksom på at selger ikke har tegnet boligselgerforsikring som dekker selgers ansvar etter avhendingsloven. Likevel foreligger selgers egenerklæring og godkjent tilstandsrapport som interessenter må sette seg inn i før bud inngis. Eventuelle reklamasjoner må rettes direkte til selger.
Boligkjøperforsikring
Innen kontraktsmøtet må kjøper ta stilling til om det ønskes å bestille Boligkjøperpakken gjennom Gjensidige. I denne gunstige pakken er boligen ferdig forsikret og inkluderer rettshjelpsforsikring, også kalt Boligkjøperforsikring. Rettshjelpsforsikring gir trygghet og tilgang på profesjonell juridisk hjelp dersom det oppdages uventede feil eller mangler det første året etter overtagelse. Forsikringsselskapet behandler i så fall ethvert mangelskrav kjøper måtte ha overfor selger.
Boligkjøperpakken inkluderer bygningsforsikring for hus og hytte, innboforsikring, flytteforsikring og dobbel rentedekning - i situasjoner hvor kjøper ikke får solgt nåværende primærbolig.
Kjøper mottar ingen særskilt faktura for Boligkjøperpakken da kostnaden det første året legges til kjøpesummen for boligen. Det gjøres oppmerksom på Krogsveen mottar et honorar for denne formidlingen.
Produktark for Boligkjøperpakken ligger vedlagt i salgsoppgaven.
Dersom ikke boligkjøperpakke ønskes kan kun rettshjelpsforsikring, også kalt boligkjøperforsikring, tegnes særskilt via megler. Rettshjelpsforsikringen varer i 5 år fra overtagelse og leveres gjennom Gjensidige. Ta kontakt med megler for ytterligere informasjon.
Selskap og privatpersoner som driver med kjøp/salg/utvikling som ledd i egen næringsvirksomhet kan ikke tegne boligkjøperpakke eller rettshjelpsforsikring.
Budgivning
Forbrukerinformasjon om budgivning er vedlagt denne salgsoppgaven og er også på vår hjemmeside Krogsveen.no. Alle bud og budforhøyelser må inngis skriftlig. I tillegg må legitimasjon være fremlagt sammen med signatur fra budgiver.
Vi oppfordrer til å gi bud elektronisk via GI BUD-knappen på eiendommens hjemmeside på Krogsveen.no. Da vil samtlige vilkår bli oppfylt.
Eventuelle forhøyelser eller endringer av budet kan bekreftes pr SMS eller på e-post. Vi oppfordrer alltid til å kontakte megler pr. telefon i tillegg da forsinkelser i SMS og e-post kan forekomme.
For at budene skal kunne bli behandlet og videreformidlet skriftlig til alle involverte parter, må alle bud ha en tilstrekkelig lang akseptfrist, jf. eiendomsmeglingsforskriften § 6-3.
Selger må også skriftlig akseptere budet før aksept kan formidles til budgiver. Akseptfrist bør derfor være på minimum 30 minutter, og budforhøyelser må derfor skje i god tid før fristens utløp.
Bud i forbrukerforhold kan uansett ikke settes med kortere frist enn kl. 12.00 første virkedag etter siste annonserte visning. I tillegg kan ikke budet ha forbehold om at det skal holdes hemmelig ovenfor øvrige interessenter. Megler har iht lov om eiendomsmegling ikke anledning til å videreformidle disse budene, og de vil dermed heller ikke bli journalført.
Etter at eiendommen er solgt vil kjøper og selger få tilsendt budjournal. Øvrige budgivere kan få utlevert kopi av budjournalen i anonymisert form.
Hvitvaskingsreglene
I henhold til lov om hvitvasking og terrorfinansiering har megler plikt til å gjennomføre kontrolltiltak overfor kunder, herunder fullmektiger. Dette innebærer bl.a. å bekrefte kunders og reelle rettighetshaveres identitet på bakgrunn av fremvist gyldig legitimasjon eller på annen godkjent måte, samt å innhente opplysninger om kundeforholdets formål og tilsiktede art.
Dersom slike kundetiltak ikke kan gjennomføres, kan megler ikke etablere kundeforholdet eller utføre transaksjonen.
Hvis kjøper ikke bidrar til gjennomføring av kundekontrollen og dette fører til at transaksjonen blir forsinket eller ikke kan gjennomføres, vil dette ansees som mislighold av avtalen og gi selger rettigheter etter avhendingslova kapittel 5. I tilfeller der selger ikke bidrar til gjennomføring av løpende kundekontroll underveis i oppdraget, er det selger som misligholder sine forpliktelser etter avtalen og gi kjøper rettigheter etter avhendingslovens kapittel 4. Partene er selv ansvarlige for eventuelle kostnader og ansvar dette kan medføre. Eiendomsmegleren eller eiendomsmeglingsforetaket kan ikke holdes ansvarlig for de konsekvenser dette vil kunne få for partene eller andre som har interesser i eiendomshandelen.
Kjøper oppfordres til å innbetale kjøpesummen som ikke kommer fra låneinstitusjon i én samlet innbetaling fra egen konto i norsk bank. Megler har plikt til å melde fra til Økokrim om eiendomshandler som fremstår som mistenkelige. Melding sendes Økokrim uten at partene varsles.
Personopplysningsloven
I henhold til personopplysningsloven gjør vi oppmerksom på at interessenter kan bli registrert for videre oppfølging.
Lovanvendelse
Generelle bestemmelser
Salgsoppgaven er basert på de opplysningene selger har gitt til megler, den bygningssakyndiges tilstandsrapport, samt opplysninger innhentet fra kommunen, Kartverket og andre tilgjengelige kilder. Det er viktig at kjøper setter seg grundig inn i alle salgsdokumentene, herunder salgsoppgave, tilstandsrapport og selgers egenerklæring. Kjøper anses kjent med forhold som er tydelig beskrevet i salgsdokumentene, og slike forhold kan ikke påberopes som mangler. Dette gjelder uavhengig av om kjøper har lest dokumentene. Alle interessenter oppfordres til å undersøke eiendommen nøye, gjerne sammen med fagkyndig før bud inngis. Kjøper som velger å kjøpe usett kan ikke gjøre gjeldende som mangel noe han burde blitt kjent med ved undersøkelsen.
Dersom det er behov for avklaringer, anbefaler vi at interessenter rådfører seg med eiendomsmegler eller egne rådgivere før det legges inn bud.
En bolig som har blitt brukt i en viss tid, har vanligvis blitt utsatt for slitasje og skader kan ha oppstått. Slik bruksslitasje må kjøper regne med, og det kan avdekkes enkelte forhold etter overtakelse som nødvendiggjør utbedringer. Normal slitasje og skader som nødvendiggjør utbedring, er innenfor hva kjøper må forvente og vil ikke utgjøre en mangel.
Kjøper og selgers rettigheter og plikter reguleres av avtalen mellom partene, samt informasjonen som har vært tilgjengelig for kjøperen i forbindelse med handelen. Avtalen utfylles av avhendingsloven, og det gjelder ulike avtalevilkår avhengig av om kjøper er forbrukerkjøper eller ikke. Dette er nærmere beskrevet nedenfor.
På grunn av ulike avtalevilkår kan selger vurdere bud fra en som ikke er forbruker, ulikt fra en forbrukers bud. Dersom kjøper ikke er forbruker, er selger sitt mulige mangelsansvar begrenset fordi eiendommen selges "som den er". Selger kan ikke ta «som den er»- forbehold overfor en forbrukerkjøper. Selv et lavere bud fra en som ikke er forbruker kan foretrekkes fordi begrensningen i mulig mangelsansvar kan ha egenverdi for selger. Selger står fritt til å forkaste eller akseptere ethvert bud, og er for eksempel ikke forpliktet til å akseptere høyeste bud.
Budgiver skal i budskjema avgi egenerklæring om budgiver er forbruker eller næringsdrivende/ person som hovedsakelig handler som ledd i næringsvirksomhet. Budgivere får informasjon dersom andre bud er inngitt av en som ikke er forbruker.
Forbrukerkjøp - definisjon
Med forbrukerkjøp menes kjøp av eiendom når kjøperen er en fysisk person som ikke hovedsakelig handler som ledd i næringsvirksomhet.
Forbruker – avtalevilkår
Eiendommen har en mangel dersom den ikke er i samsvar med kravene som følger av avtalen, eller det foreligger brudd på bestemmelsene i avhendingsloven §§ 3-2 til 3-8. Hvis eiendommen ikke er i samsvar med det kjøperen må kunne forvente ut ifra alder, type og synlig tilstand, kan det være grunnlag for mangelskrav. Det samme gjelder hvis det er holdt tilbake eller gitt uriktige opplysninger om eiendommen. Dette gjelder likevel bare dersom man kan gå ut ifra at det virket inn på avtalen at opplysningen ikke ble gitt eller at mangelskravet ikke blir rettet i tide på en tydelig måte.
Boligen kan ha en mangel etter avhendingsloven § 3-3 andre ledd, dersom det er avvik mellom opplyst og faktisk innvendig areal, forutsatt at avviket er på 2% eller mer og minimum 1 kvm.
Ved beregning av et eventuelt prisavslag eller erstatning må kjøper selv dekke tap/kostnader opptil et beløp på kr 10 000 (egenandel).
Ikke-forbruker (næringsdrivende) – definisjon
Hvis kjøper er en juridisk person, eller en fysisk person som hovedsakelig handler som ledd i næringsvirksomhet, vil kjøpet ikke anses som et forbrukerkjøp.
Ikke-forbruker – avtalevilkår
Eiendommen har en mangel dersom den ikke er i samsvar med kravene som følger av avtalen.
Eiendommen selges «som den er», og selgers ansvar utover det konkret avtalte er da begrenset etter avhendingsloven § 3-9, første ledd andre setning.
Avhendingsloven § 3-3 andre ledd fravikes, og hvorvidt boligens arealsvikt utgjør en mangel vurderes etter avhendingsloven § 3-8.
Informasjon om kjøpers undersøkelsesplikt, herunder oppfordringen om å undersøke eiendommen nøye, gjelder også for kjøpere som ikke anses som forbrukere.
Det forutsettes at hjemmel overføres til kjøper. Hvis kjøper ikke ønsker hjemmelsoverføring av eiendommen, må det tas forbehold om dette i budet.
Meglers vederlag
Meglers vederlag betales av selger og er avtalt til:
Vederlag: 1,10 %
Vederlag:
Kontroll av hjemmel og heftelser kr 2 900,00
Markedsføringspakke kr 29 900,00
Oppgjør kr 7 500,00
Tilrettelegging kr 17 000,00
Visninger pr. stk kr 4 000,00
Utlegg:
Innhenting av offentlig opplysninger Ringsaker kommune kr 3 991,00
Innhenting av offentlig opplysninger, byggetegninger Ringsaker kr 1 020,00
Tinglysing sikring kr 545,00
Andre utgifter:
AX tilstandsrapport kr 24 688,00
Foto - 30 bilder - 2 mast kr 4 875,00
Vi er opptatt av verdiskapning, og har knyttet til oss samarbeidspartnere som skal sikre våre kunder de beste produkter og tjenester;
• I forbindelse med forberedelse av salget, innhenter vi informasjon om eiendommen hovedsakelig fra vår samarbeidspartner Amibita.
• Gjensidige leverer boligselgerforsikring og tilbyr bygningsforsikring
• Boligkjøperforsikring leveres av Hiscox og med Sedgwick som skadebehandler, og er formidlet gjennom Gjensidige.
• BN bank tilbyr finansieringsløsninger
• Vår avdeling Krogsveen Pluss tilbyr flyttetjenester som utvask, visningsvask, lager, tømming og transport av flyttelass, i tillegg til å formidle kontakt med Flip for overflateoppussing.
• I forbindelse med overtagelse av eiendommen tilbyr Overo avtale om strøm, alarm og bredbånd.
• Krogsveen er, sammen med øvrige bransjeaktører, medeier i Bomega AS som tilbyr den digitale annonseringsplattformen Hjem.
Opplysninger om oppdraget
Oppdragsnummer 65-0038/26
Eiendomsmegler Krogsveen AS, avd. Hamar
Strandgata 31, 2308, HAMAR
950 007 613
Oppdragets KR-kode KR65.2638
Dato
Sist oppdatert: 13. mars 2026 kl. 09:24
Dokumenter
Dokumenter
PDF – 927 KB
PDF – 312 KB
PDF – 29 KB
PDF – 127 KB
PDF – 392 KB
Område
Legg til steder som er viktige for deg
Visning
For å delta på visning, ber vi om at du melder deg på. Da sikrer vi at du får nødvendig informasjon og at det er satt av tilstrekkelig med tid. Husk å lese salgsoppgaven før visningen, så du stiller forberedt.
Ønsker du kun å bli holdt orientert, kan du fra eiendommens hjemmeside få varsel om solgtpris, eller kontakte megler.
Lurer du på noe?
Unngå doble boligrenter
Vi tilbyr gunstig forsikring.
Vurderer du utleie?
Få et tilbud fra Utleie KrogsveenHva koster lånet?
Sjekk estimert lånekostnadVil du varsles om lignende boliger?
Ved å lagre ditt boligsøk hos oss får du beskjed når vi har en bolig som ligner denne, før den legges ut på markedet!




