Sverdstadveien 19
2 590 000 kr
80 m²
2 soverom
Solgt

Nær sentrum / Nær Breidablikk
Attraktiv og lettstelt leilighet for 55+ - Garasje - 2 soverom - Flott beliggenhet - IN-ordning
Prisantydning
2 590 000 krAndel fellesgjeld
106 872 krOmkostninger
11 040 krTotalpris
2 707 912 kr
Pris
Bruksareal
100 m²BRA-I (internt bruksareal)
80 m²BRA-E (eksternt bruksareal)
20 m²TBA (terrasse-balkongareal)
15 m²
Areal
Etasje
1Byggeår
1996Soverom
2 soveromBad
1 badType
AndelsleilighetEierform
AndelFasiliteter
Garasje/P-plass, Heis og Balkong/TerrasseFellesutgifter
7 302 krEnergimerke
Rød E
Nøkkelinfo
Unngå doble boligrenter
Vi tilbyr gunstig forsikring.
Vurderer du utleie?
Få et tilbud fra Utleie KrogsveenHva koster lånet?
Sjekk estimert lånekostnadBeskrivelse
Kort om eiendommen
Velkommen til Sverdstadveien 19!
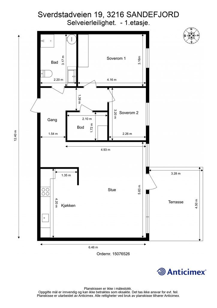
En koselig 3-roms seniorleilighet i første etasje, med alt på ett plan, noe moderniserings behov. Leiligheten har romslig stue med åpen løsning mot kjøkken, utgang til terrasse og hage fra stuen, hvor du kan nyte solen med flott utsikt. 2 soverom og innvendig bod. Planløsningen er gjennomtenkt og funksjonell, med en naturlig flyt mellom rommene som gjør boligen både praktisk og trivelig.
Praktisk bod i kjeller og en garasje.
Beliggenheten er sentral, men samtidig rolig og tilbaketrukket, med gangvei til sentrum, jernbanen og en rekke dagligvarebutikker. En kombinasjon som gir en landlig følelse midt i et veletablert boligområde, innerst i en blindvei.
Viktig å merke seg at dette er en seniorleilighet, og vedtektene krever at beboer må ha fylt 55år.
Område
Legg til steder som er viktige for deg
På flyttefot? Tenk kjøp og salg samtidig.
Få din egen rådgiver gjennom hele kjøps- og salgsprosessen. Det starter med en verdivurdering.
Unngå doble boligrenter
Vi tilbyr gunstig forsikring.
Vurderer du utleie?
Få et tilbud fra Utleie KrogsveenHva koster lånet?
Sjekk estimert lånekostnadVil du varsles om lignende boliger?
Ved å lagre ditt boligsøk hos oss får du beskjed når vi har en bolig som ligner denne, før den legges ut på markedet!

