Professor Hansteens gate 61
3 390 000 kr
79 m²
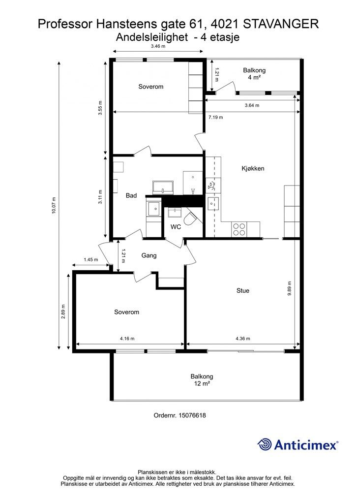
2 soverom
Solgt

Tjensvoll
Flott og moderne toppleilighet med god standard og fin utsikt| Attraktivt og rolig område.|2 sov, 2 terrasser |Parkering
Prisantydning
3 390 000 krAndel fellesgjeld
635 603 krOmkostninger
19 252 krTotalpris
4 044 855 kr
Pris
Bruksareal
87 m²BRA-I (internt bruksareal)
79 m²BRA-E (eksternt bruksareal)
8 m²TBA (terrasse-balkongareal)
16 m²
Areal
Etasje
4Byggeår
1978Soverom
2 soveromBad
1 badType
AndelsleilighetEierform
AndelFellesutgifter
6 433 kr
Nøkkelinfo
Unngå doble boligrenter
Vi tilbyr gunstig forsikring.
Vurderer du utleie?
Få et tilbud fra Utleie KrogsveenHva koster lånet?
Sjekk estimert lånekostnadBeskrivelse
Kort om eiendommen
Velkommen til Professor Hansteens gate 61. En fin og velholdt leilighet med gode løsninger.
Leiligheten fremstår som lys og luftig og har en effektiv planløsning med to gode soverom. Store vindusflater er gjennomgående og gir leiligheten ett lyst og luftig helhetsinntrykk. Leiligheten har en fin beliggenhet med nærhet til det aller meste du måtte trenge i hverdagen. I nærområdet finner du dagligvarebutikker, Madla Amfi, gode kollektivmuligheter og flere flotte tur- og aktivitetsmuligheter.
Høydepunkter:
- Lys og moderne leilighet
- God planløsning og fin standard
- 2 terrasser med gode solforhold og utsikt
- 2 soverom
- Romslig kjøkken med rikelig skap- og benkeplass.
- Praktisk og fin vaskerom
- Fast parkeringsplass i garasjeanlegg
- God lagringsplass i 2 boder
Velkommen.
Område
Legg til steder som er viktige for deg
På flyttefot? Tenk kjøp og salg samtidig.
Få din egen rådgiver gjennom hele kjøps- og salgsprosessen. Det starter med en verdivurdering.
Unngå doble boligrenter
Vi tilbyr gunstig forsikring.
Vurderer du utleie?
Få et tilbud fra Utleie KrogsveenHva koster lånet?
Sjekk estimert lånekostnadVil du varsles om lignende boliger?
Ved å lagre ditt boligsøk hos oss får du beskjed når vi har en bolig som ligner denne, før den legges ut på markedet!

