Skogsåsen 22C
7 300 000 kr
122 m²
4 soverom
Komplett salgsoppgave
SKOGSÅSEN
Moderne bolig over 2 plan fra 2021 - solrike uteplasser - 4 soverom - garasje - meget barnevennlig område - nær marka
Prisantydning
7 300 000 krOmkostninger
183 590 krTotalpris
7 483 590 kr
Pris
Bruksareal
122 m²BRA-I (internt bruksareal)
122 m²TBA (terrasse-balkongareal)
25 m²
Areal
Byggeår
2021Soverom
4 soveromBad
2 badType
RekkehusEierform
EierseksjonFasiliteter
Garasje/P-plass og Balkong/TerrasseFellesutgifter
3 170 krEnergimerke
Rød B
Nøkkelinfo
Unngå doble boligrenter
Vi tilbyr gunstig forsikring.
Vurderer du utleie?
Få et tilbud fra Utleie KrogsveenHva koster lånet?
Sjekk estimert lånekostnadBeskrivelse
Kort om eiendommen
- 2 solrike uteplasser med gode solforhold
- Kort gangavstand til garasjeplass med elbil-lader
- Gjennomgående bolig med gode lysforhold
- God lagringsplass med to romslige boder (én innebod og én utebod)
- Balansert ventilasjon
- Gangavstand til barnehager og skoler. Nær Myrvoll stasjon med dagligvarebutikk, café, frisør, m.m
- Kort vei til togstasjon med hyppige avganger til Oslo og Ski. Ca 20 min til Oslo S med tog
- Garanti fra utbygger i 5 år etter at boligen er oppført
Innhold og byggemåte
Innhold og byggemåte
Eiendommen
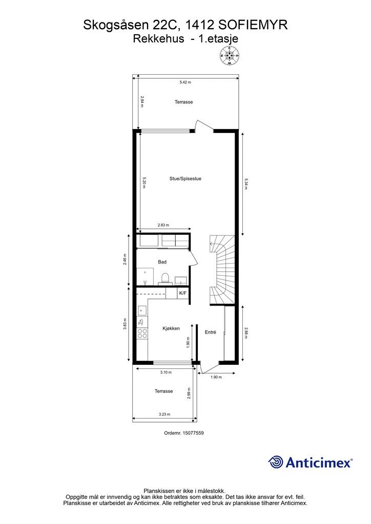
Skogsåsen 22C, 1412 SOFIEMYR
Kommunenummer 3207, gårdsnummer 241, bruksnummer 88, seksjonsnummer 112, ideell andel 1/1
Innhold
Totalt bruksareal BRA: 122 kvm
BRA-i:
1. etasje, 61 kvm: Entré, bad, stue og kjøkken
2. etasje, 61 kvm: Gang, bad, bod og fire soverom
Åpent areal:
1. etasje, 25 kvm: To terrasser (på henholdsvis 10 og 15 kvm)
Det følger med en frittliggende bod på 5 kvm som er plassert ved inngangspartiet. Boden ligger innenfor seksjonens område og er omfattet av ferdigattesten.
Vedlagte plantegninger er ikke målbare. De oppgitte arealer er hentet fra rapport med befaringsdato 28.11.2025 utført av Anticimex AS. Det er ikke funnet avvik mellom innsendte byggetegninger og nåværende planløsning.
Byggemåte
Selger har fått utarbeidet en tilstandsrapport, dvs. en teknisk gjennomgang av boligen hvor eventuelle avvik, risiko for kjøper og prisoverslag for hva som bør gjøres av oppgradering, er skissert. Se særskilt TGIU (tilstandsgrad ikke undersøkt), samt TG2 og TG3 som viser hva som er boligens normale slitasje, alder og type, hva som er avvik fra dette og hva som bør/må utbedres. Rapporten og selgers egenerklæring er en del av salgsoppgaven og må leses nøye før bud inngis. Kjøper overtar ansvaret for de opplysninger som fremkommer av salgsdokumentasjonen, og kan ikke gjøre gjeldende som mangel noe som burde vært kjent eller som ikke kan anses å ha betydning for avtalen.
Bygningen er iht. tilstandsrapporten oppført på følgende måte: Rekkehus fra 2021. Støpt plate på mark. Yttervegger og etasjeskiller av trekonstruksjoner. Fasader utført i stående/liggende kledning. Takkonstruksjon utført i saltaksform tekket med papp/takfolie(ikke besiktiget). Profilert/glatt entrédør av tre med glassfelt. Terrassedør og vinduer med karmer av tre og tre-lags glass fra byggår. Boligen er elektrisk oppvarmet.
Det gjøres oppmerksom på at det er gitt tilstandsgrad 2 (TG2) på følgende kontrollpunkter:
- Våtrom - Bad, 1.etasje: Det er ikke mulig å kontrollere bruk/montering av slukmansjett og klemring grunnet
flislim. Av den grunn er det ikke mulig å verifisere utførelse og lekkasjesikkerhet
- Våtrom - Bad, 2.etasje: Det er ikke mulig å kontrollere bruk/montering av slukmansjett og klemring grunnet flislim. Av den grunn er det ikke mulig å verifisere utførelse og lekkasjesikkerhet
- Kjøkken og øvrige rom : Gjelder at det er registreret stedvise riper/hakk/merker i gulvets overflatemateriale
- Tekniske anlegg, VVS anlegg (Sjekkpunkter utover det som er inkludert i andre rom): Fordelerskap har åpninger/utettheter til omsluttende veggkonstruksjon og stakeluke ikke lokalisert
- Elektrisk anlegg: Det er kun fremlagt samsvarserklæring på deler av utførte arbeider på det elektriske
anlegget
- Yttervegger inkl. fasader og konstruksjon: Mindre skade på ett panelbord mot vest mellom toppen på vinduer i 2.etasje.
I tilstandsrapporten er det gitt 82% på TG1, 10 % på TG2, 0% på TG3 og 8% TGIU (tilstandsgrad ikke undersøkt).
Les for øvrig mer om byggemåte og den tekniske tilstanden i rapporten.
Fra selgers egenerklæring gjøres det oppmerksom på følgende:
Er det utført arbeid på tak, yttervegg, vindu eller annen fasade? Ja
Årstall: 2021
Hvordan ble arbeidet utført? Faglært
Fortell kort hva som ble gjort av faglærte:
Montering av solskjerming (screens) over vinduer i to vestvendte soverom i 2. etasje. Montering av markise på østvendt fasade i 1. etasje.
Hvilket firma utførte jobben? ABC Markiser
Har du dokumentasjon på arbeidet? Nei
Er det utført arbeid på det elektriske anlegget? Ja
Årstall: 2021
Hvordan ble arbeidet utført? Faglært
Fortell kort hva som ble gjort av faglærte:
Montering av en ny stikkontakt i stue. Montering av taklamper
Hvilket firma utførte jobben? Røa Elektriske
Har du dokumentasjon på arbeidet? Ja
Standard
Moderne rekkehus over to plan fra 2021.
Utebod på 5 kvm ved inngangsparti.
Uteplass ved inngangsparti: Romslig uteplass med gode solforhold.
1. etasje:
Entré: Flislagt gulv med gulvvarme. Skyvedørsgarderobe med speil (denne løsningen er tilvvalg ift opprinnelig standard fra utbygger). Innredningen i garderobeskapene følger ikke.
Stue: God plass til spisebord og sofaløsning. Ift opprinnelig standard fra utbygger er gulv og downlights tilvalg. Store vindusflater. Utvendig solskjerming (markise). Utgang til uteplass som ligger høyt og fritt med gode solforhold.
Kjøkken: Kjøkkenløsning fra Marbodal. Innredning med glatte fronter og laminert benkeplate. Godt med skap- og benkeplass. Underlimt oppvaskkum. Integrerte hvitevarer følger; kombinert kjøl-/fryseskap, komfyr, oppvaskmaskin og induksjon platetopp. Vegghengt ventilator tilkoblet avtrekkskanal med integrert komfyrvakt (ventilatoren er tilvalg ift opprinnelig standard fra utbygger). Vindu orientert mot vest og plass til spisebord ved kjøkkenet.
Bad: Flislagte gulv og vegger, malt himling. Gulv- og veggfliser er tilvvalg ift opprinnelig standard fra utbygger. Gulvvarme. Downlights i himling. Baderomsinnredning (servant med underskap, speil og vegghengt toalett). Dusjhjørne. Skyvedørsløsning ("bak" denne er det skap- og benkeplass samt opplegg til vaskemaskin).
2. etasje:
Gang: inngang til øvrige rom. Garderobeskap følger.
Soverom 1: God størrelse. Vindu orientert mot øst med utsyn.
Soverom 2: Romslig hovedsoverom med god plass til dobbeltseng. Vindu orientert mot øst med utsyn. Plassbygget skyvedørsgarderobe med speil (innredningen i garderobeskapet følger ikke).
Soverom 3: God størrelse. Vindu orientert mot vest. Utvendig solskjerming (screens). Taklampe følger.
Soverom 4: God størrelse. Vindu orientert mot vest. Utvendig solskjerming (screens). 2 stk vegglamper følger.
Bad: Flislagt gulv og vegger, malt himling. Downlights i himling. Gulvvarme. Baderomsinnredning (servant med underskap og speil). Dusjhjørne. Vegghengt toalett.
Bod: God størrelse. Hylleløsning følger.
Løsøre og tilbehør
- Knaggrekke i gangen følger ikke
- String-hyller i stue og kjøkken følger ikke
- Taklamper (2 stk) i første etasje samt taklampe på soverom 2 følger ikke
- Vaskemaskin og tørketrommel følger ikke
- Veggehengte hyller i soverom 1 følger ikke (kan medfølge etter nærmere avtale)
- Garderobeskap og hylleløsninger i soverom 3 følger ikke
- Skap/hylleløsninger i soverom 4 følger ikke
- Frittstående høyskap i på bad i 2. etasje følger ikke (kan medfølge etter nærmere avtale)
- Hylleløsning i utebod følger ikke
Ut over dette vises det til liste fra Norges Eiendomsmeglerforbund som gjelder fra 01.01.2020 angående løsøre og tilbehør.
Oppvarming
Gulvvarme i entré og begge badene. Forøvrig elektrisk oppvarming via panelovner. Balansert ventilasjonsanlegg.
Dersom beboelsesrom ikke har vegg- eller fastmonterte varmekilder ved visning, følger dette heller ikke med.
Ferdigattest/brukstillatelse
Det foreligger ferdigattest på rekkehusene i Skogsåsen 22 a-e, datert 05.12.2021 Denne kan fås ved henvendelse til megler.
Det gjøres oppmerksom på følgende endring ift bygningstegningene:
- Soverom 1 er opprinnelig byggemeldt som "stue 2/soverom 4" hvor det er stiplet inn en mulighet for vegg og dør mellom dette rommet og gangen. Dagens situasjon er at det er vegg og dør mellom dette rommet og gangen. I bygningstegningene er veggen og døren noe annerledes enn dagens situasjon.
Kjøper overtar alt ansvar, kostnad og risiko for dette videre.
Tinglyste heftelser og rettigheter
Eiendommen overdras fri for pengeheftelser.
Sameiet har legalpant for krav mot sameieren som følger av sameieforholdet iht. eierseksjonsloven § 31. Pantet er begrenset oppad til 2G, (G = folketrygdens grunnbeløp).
I tillegg har sameiet tinglyst panterett som nevnt over.
Det er tinglyst 29 servitutter på sameiets eiendom. Av disse omhandler 5 rett til å ha liggende elektriske kraftlinjer, 6 om vann/kloakkledninger, 2 rett til å ha liggende telekabler, 2 bestemmelser om veg, 2 om turveier, 2 om rett til felles bruk av arealer, 2 om adkomstrett, 3 om avståelse av areal og en om forhold under byggeprosessen. I tillegg til dette er det tinglyst et skjønn fra 1965 som omhandler begrensninger for visse typer bruk av eiendommene som ligger langs Gjersjøen drikkevannskilde. Nordre Follo kommune har i tillegg en servitutt som omhandler bestemmelse om bebyggelse.
Flere av disse servituttene er av eldre dato og antas å ha liten praktisk betydning for boligen.
Beliggenhet og tomteforhold
Beliggenhet og tomteforhold
Beliggenhet
Flott beliggende rekkehus i et svært barnevennlig boområde med nærhet til barnehager og skoler i alle trinn. Pent opparbeidete fellesområder med lekeplasser, sittegrupper, etc.
Nær marka med fine turløyper om sommeren og lysløype om vinteren. Løype til populære turmål som blant annet Grønliåsen, Østmarka, Stallerud og Sterkerud. Gode skiforhold i nærområdet. I tillegg lager Skiforeningen og kommunen en av Norges største kunstsnøløyper og akebakke på Østre Greverud med kunstsnø. I dette anlegget arrangeres både skiskole og konkurranser. Gangavstand til Sofiemyr idretts- og svømmehall, samt friidrettsanlegg og flere fotballbaner.
Rett ved Myrvoll stasjon med Kiwi dagligvarebutikk (åpent kl 07-23 alle dager unntatt søndag), café, frisør, m.m.
Ca 20 min med tog fra Myrvoll til Oslo S. Toget går 4 ganger i timen store deler av dagen på hverdager. Ca. 25 minutter med bil til Oslo sentrum.
Fra boligen er det 0,4km til Østli bussholdeplass hvor det går flere adganger til Oslo med linjer som 81, 81N, 84E, 580.
Kort avstand til handelsområde på Sofiemyr med Coop Extra, Biltema, Plantasjen, frisør, Yogasenter, dyreklinikk, Friskis og Svettis, Follo dansestudio, Bademiljø mm.
Spa- og velværesenteret, The Well, på Sofiemyr ligger i gangavstand fra boligen. Dette er Nordens største spa og har også hotell.
Kolbotn sentrum med bla. Kolbotn Torg ligger en kort kjøretur unna, og tilbyr ca. 60 forretninger, caféer og restauranter. Her ligger også Kolben kulturhus som tilbyr kino, bibliotek, kulturskole for barn og konserthus.
I tillegg til 18-hulls golfbane på Østre Greverud er det slalåmbakke i Ingierkollen, flere treningssentre samt badeplasser ved Hvervenbukta og Ingierstrand.
Adkomst
Skogsåsen har adkomst fra Tverrveien. Tverrveien har adkomst fra bl.a. Skiveien.
Det vil bli skiltet med Krogsveen visningsskilt ved fellesvisninger.
Barnehager, skoler og fritid
Flere barnehager i nærområdet. Gangavstand til skoler på alle trinn på Sofiemyr. Sofiemyr barneskole (1.-7. klasse. Moderne skole ble åpnet i 2025), Fløysbonn ungdomsskole (8.-10. klasse) og Roald Amundsen videregående skole.
Informasjon om tilhørende skolekretser er hentet fra Prognosesenteret som dataleverandør og tilhørigheten kan årlig endres av kommunen. Dersom skole- og barnehagetilbud er av betydning for kjøpet, ber vi om at det rettes en særskilt henvendelse til kommunen for oppdatert informasjon.
Beskrivelse av tomt
Eiet tomt på 124 kvm opparbeidet med asfaltert adkomstvei, gressplen og diverse beplantning. Boligen er tilknyttet Skogsåsen 1 Boligsameie. Fellesarealer opparbeidet med asfalterte
internveier, gressplen, diverse beplantning, sittegrupper og lekeplasser.
Parkering
Bruksrett til én garasjeplass (med elbill-lader, laderen følger) i felles garasjeanlegg (Skogsåsen garasjesameie), merket med nr. 6.
Garasjesameiet er et tingsrettslig sameie, hvor det tinglyses en ideell andel på 1/166 på gnr./bnr. 241/87. Det er bare eiere av seksjoner i Skogsåsen boligsameie som kan eie eller leie parkeringsplass i garasjesameiet.
Forøvrig gjesteparkering på anviste plasser, samt gateparkering etter områdets bestemmelser.
Vei, vann og avløp
Eiendommen har adkomst via kommunal vei, bortsett fra en liten strekning som er felles vei for sameiet. Denne forvaltes av velforeningen.
Eiendommen er tilknyttet kommunalt ledningsnett via private stikkledninger. Eier er selv ansvarlig for private stikkledninger til boligen.
Regulerings-og arealplaner
Eiendommen er regulert til boligbebyggelse og uteoppholdsareal i henhold til reguleringsplan for Skogsåsen, PlanID 2015001, med tilhørende reguleringsbestemmelser datert 28.11.2016.
Området ved Trelasttomta er fortsatt under utbygging, og det vil bygges/ferdigstilles flere boliger i området.
Utsnitt av plan med tilhørende bestemmelser kan fås ved henvendelse til megler.
Økonomi
Økonomi
Boligens kostnader
Kommunale avgifter er estimert til kr 24 817,- for inneværende år. I dette inngår gebyr for vann, avløp og renovasjon.
Det er installert vannmåler på eiendommen og kostnadene betales etter forbruk. Forbruk avleses av kommunen gjennom fjernavlesning årlig. Forbruk betales à konto basert på siste avlesning.
For denne eiendommen utgjør vannforbruket kr. 8 426,- av de kommunale avgiftene. I tillegg kommer abonnement for vann på kroner 4 314,- for 2025. Oppgitt kostnad baserer seg på selgers forbruk og vil variere utfra bruk og antall personer i husstanden.
Fellesutgiftene er kr 3.170,- pr. mnd. og inkluderer: forretningsfører, drift/vedlikehold i sameiet, forsikring og liknende.
Fellesutgiftene fordeles på følgende måte:
- Felleskostnader: kr. 2.074,-
- Skogsåsen Velforening: kr. 526,-
- Bredbånd: kr. 220,-
- Garasjeplass: kr. 350,-
Garasjeplassen faktureres direkte fra garasjesameiet. Øvrige fellesutgifter faktureres gjennom forretningsfører.
Fellesutgiftene justeres normalt en til to ganger årlig i forhold til sameiets faktiske utgifter og ble sist justert med virkning fra 01.01.2026. Det er i følge styreleder ikke planlagt arbeider som vil øke fellesutgiftene ytterligere. På grunn av beising av fasader antar styreleder det forventes et underskudd neste år som vil dekkes med en engangsinnbetaling. Styreleder antar at det vil komme på ca. 7000,- for nr. 22 C, og vil bekostes av ny eier.
Nåværende eier har et strømforbruk som tilsvarer ca. 10.130 kwh. pr. år. Selger har avtalt Norgespris på strøm på eiendommen for perioden frem til 01.01.2027, og denne er pt på 50 øre inkl mva. Nettleie, avgifter og påslag fra kraftleverandøren kommer i tillegg. Denne avtalen vil følge eiendommen i den avtalte perioden.
Les mer om Norgespris her: https://www.regjeringen.no/no/aktuelt/legg-fram-lov-om-norgespris-pa-straum-og-fjernvarme/id3102642/
Boligen er tilknyttet GlobalConnect 1000/1000 som leverandør av internett, og standard internett-abonnement er inkludert i felleskostnadene. TV-abonnement er ikke inkludert i felleskostnadene, men kan fås ved tilvalg. Tv-tuner/dekoder medfølger ikke.
Utgiftene er basert på nåværende eiers forbruk. Kjøper må selv tegne innboforsikring.
Formuesverdi
Formuesverdi for 2023 var kr 1 823 708,- ifølge skatteetaten. Beløpet forutsetter at eier bor fast i boligen (primærbolig).
Ved eventuell øvrig bruk av eiendommen (f.eks. fritidsbolig, pendlerbolig, utleieobjekt) var formuesverdien for 2023 kr 7 294 830,-.
Formuesverdien justeres normalt årlig. Se skatteetaten.no for mer informasjon om fastsettelse av formuesverdien.
Omkostninger
7 300 000,00 Prisantydning
Omkostninger
182 500,00 Dokumentavgift til staten (2,5% av kjøpesum)
545,00 Tinglysing panterettsdokument
545,00 Tinglysing skjøte
--------------------------------------------------------
183 590,00 Omkostninger totalt
--------------------------------------------------------
7 483 590,00 Totalpris inkl. omkostninger
--------------------------------------------------------
Dersom sameiet har fellesgjeld, vil leilighetens andel av fellesgjelden komme i tillegg til kjøpesummen. Denne gjelden skal ikke innbetales i oppgjøret, men følger seksjonen.
Totalpris inkl. omkostninger forutsetter kjøp til prisantydning.
Det tas forbehold om endringer i avgifter og gebyrer.
I tillegg mulighet for å tegne valgfri boligkjøperpakke via Gjensidige for kr. 19.900,-.
Betalingsbetingelser
Kjøpesum inkludert omkostninger, samt pantedokument tilknyttet eventuelt lån, skal være disponibelt hos megler 2 virkedager før overtagelsen.
Annen viktig informasjon
Annen viktig informasjon
Eier
Marko Filipovic og Sanja Filipovic
Informasjon om sameiet
Eiendommen er seksjonert, og rekkehuset er tilknyttet Skogsåsen 1 sameie.
Sameiet består av 131 seksjoner.
Forretningsfører er OBOS Eiendomsforvaltning AS, tlf.22865500
Dugnad må påregnes.
Dyrehold er tillatt, men kan ikke være til sjenanse for øvrige beboere.
Det ble på ekstraordinært årsmøte 2024 vedtatt at Skogsåsen boligsameie 1, Skogsåsen 2 Boligsameie og Skogsåsen 3 Boligsameie skulle slå seg sammen, og at sameiets navn
skulle bli Skogsåsen 1 Boligsameie med virkning fra 01.01.25
Det er et eget garasjesameie (Skogsåsen garasjesameie). Hver parkeringsplass har en ideell 1/166-del av dette garasjesameiet (gnr/bnr; 241/87).
Styreleder opplyser per 04.12.2025 at det er ikke planlagt noen økning i fellesutgifter. Det er i følge årsberetningen planer om maling av fasadene de neste to årene.
Vi gjør videre oppmerksom på at det iht. eierseksjonsloven ikke er anledning å erverve mer enn 2 seksjoner i sameiet, her teller også eierskap via. firma, nærstående og familie. Kjøper har risikoen for at overskjøting på denne bakgrunn kan nektes av Statens Kartverk. I så fall vil kjøper uansett være forpliktet til å gjennomføre handelen, og oppgjør til selger vil finne sted tross manglende overskjøting. Konferer med megler for mer informasjon.
I tillegg følger det av sameiets vedtekter at juridiske personer (selskaper) ikke kan eie seksjoner i sameiet.
Dokumenter for sameiet og kopi av seksjonsbegjæringen kan fås ved henvendelse til megler.
Overtakelse
Etter nærmere avtale.
Velforening
Boligen er tilknyttet Skogsåsen Velforening. Foreningens ansvarsområde omfatter drift av felles infrastruktur som lekeplasser, grøntstruktur, turveg, veger, fortau og øvrige arealer. Avgiften faktureres månedlig gjennom felleskostnadene.
Boligselgerforsikring
Selger har i forbindelse med salget tegnet boligselgerforsikring levert av Gjensidige.
Boligselgerforsikringen dekker selgers ansvar etter avhendingsloven begrenset oppad til kr 14 millioner. Dersom kjøper oppdager forhold ved eiendommen som hen mener utgjør en mangel ved eiendommen, vil Gjensidige behandle reklamasjonen på vegne av selger. Forsikringsvilkår kan fås ved henvendelse til megler.
Vedlagt salgsoppgaven følger selgers egenerklæringsskjema og tilstandsrapport. Interessenter må sette seg inn i dokumentene før bud inngis.
Boligkjøperforsikring
Innen kontraktsmøtet må kjøper ta stilling til om det ønskes å bestille Boligkjøperpakken gjennom Gjensidige. I denne gunstige pakken er boligen ferdig forsikret og inkluderer rettshjelpsforsikring, også kalt Boligkjøperforsikring. Rettshjelpsforsikring gir trygghet og tilgang på profesjonell juridisk hjelp dersom det oppdages uventede feil eller mangler det første året etter overtagelse. Forsikringsselskapet behandler i så fall ethvert mangelskrav kjøper måtte ha overfor selger.
Boligkjøperpakken inkluderer bygningsforsikring for hus og hytte, innboforsikring, flytteforsikring og dobbel rentedekning - i situasjoner hvor kjøper ikke får solgt nåværende primærbolig.
Kjøper mottar ingen særskilt faktura for Boligkjøperpakken da kostnaden det første året legges til kjøpesummen for boligen. Det gjøres oppmerksom på Krogsveen mottar et honorar for denne formidlingen.
Produktark for Boligkjøperpakken ligger vedlagt i salgsoppgaven.
Dersom ikke boligkjøperpakke ønskes kan kun rettshjelpsforsikring, også kalt boligkjøperforsikring, tegnes særskilt via megler. Rettshjelpsforsikringen varer i 5 år fra overtagelse og leveres gjennom Gjensidige. Ta kontakt med megler for ytterligere informasjon.
Selskap og privatpersoner som driver med kjøp/salg/utvikling som ledd i egen næringsvirksomhet kan ikke tegne boligkjøperpakke eller rettshjelpsforsikring.
Budgivning
Forbrukerinformasjon om budgivning er vedlagt denne salgsoppgaven og er også på vår hjemmeside Krogsveen.no. Alle bud og budforhøyelser må inngis skriftlig. I tillegg må legitimasjon være fremlagt sammen med signatur fra budgiver.
Vi oppfordrer til å gi bud elektronisk via GI BUD-knappen på eiendommens hjemmeside på Krogsveen.no. Da vil samtlige vilkår bli oppfylt.
Eventuelle forhøyelser eller endringer av budet kan bekreftes pr SMS eller på e-post. Vi oppfordrer alltid til å kontakte megler pr. telefon i tillegg da forsinkelser i SMS og e-post kan forekomme.
For at budene skal kunne bli behandlet og videreformidlet skriftlig til alle involverte parter, må alle bud ha en tilstrekkelig lang akseptfrist, jf. eiendomsmeglingsforskriften § 6-3.
Selger må også skriftlig akseptere budet før aksept kan formidles til budgiver. Akseptfrist bør derfor være på minimum 30 minutter, og budforhøyelser må derfor skje i god tid før fristens utløp.
Bud i forbrukerforhold kan uansett ikke settes med kortere frist enn kl. 12.00 første virkedag etter siste annonserte visning. I tillegg kan ikke budet ha forbehold om at det skal holdes hemmelig ovenfor øvrige interessenter. Megler har iht lov om eiendomsmegling ikke anledning til å videreformidle disse budene, og de vil dermed heller ikke bli journalført.
Etter at eiendommen er solgt vil kjøper og selger få tilsendt budjournal. Øvrige budgivere kan få utlevert kopi av budjournalen i anonymisert form.
Hvitvaskingsreglene
I henhold til lov om hvitvasking og terrorfinansiering har megler plikt til å gjennomføre kontrolltiltak overfor kunder, herunder fullmektiger. Dette innebærer bl.a. å bekrefte kunders og reelle rettighetshaveres identitet på bakgrunn av fremvist gyldig legitimasjon eller på annen godkjent måte, samt å innhente opplysninger om kundeforholdets formål og tilsiktede art.
Dersom slike kundetiltak ikke kan gjennomføres, kan megler ikke etablere kundeforholdet eller utføre transaksjonen.
Hvis kjøper ikke bidrar til gjennomføring av kundekontrollen og dette fører til at transaksjonen blir forsinket eller ikke kan gjennomføres, vil dette ansees som mislighold av avtalen og gi selger rettigheter etter avhendingslova kapittel 5. I tilfeller der selger ikke bidrar til gjennomføring av løpende kundekontroll underveis i oppdraget, er det selger som misligholder sine forpliktelser etter avtalen og gi kjøper rettigheter etter avhendingslovens kapittel 4. Partene er selv ansvarlige for eventuelle kostnader og ansvar dette kan medføre. Eiendomsmegleren eller eiendomsmeglingsforetaket kan ikke holdes ansvarlig for de konsekvenser dette vil kunne få for partene eller andre som har interesser i eiendomshandelen.
Kjøper oppfordres til å innbetale kjøpesummen som ikke kommer fra låneinstitusjon i én samlet innbetaling fra egen konto i norsk bank. Megler har plikt til å melde fra til Økokrim om eiendomshandler som fremstår som mistenkelige. Melding sendes Økokrim uten at partene varsles.
Personopplysningsloven
I henhold til personopplysningsloven gjør vi oppmerksom på at interessenter kan bli registrert for videre oppfølging.
Lovanvendelse
Generelle bestemmelser
Salgsoppgaven er basert på de opplysningene selger har gitt til megler, den bygningssakyndiges tilstandsrapport, samt opplysninger innhentet fra kommunen, Kartverket og andre tilgjengelige kilder. Det er viktig at kjøper setter seg grundig inn i alle salgsdokumentene, herunder salgsoppgave, tilstandsrapport og selgers egenerklæring. Kjøper anses kjent med forhold som er tydelig beskrevet i salgsdokumentene, og slike forhold kan ikke påberopes som mangler. Dette gjelder uavhengig av om kjøper har lest dokumentene. Alle interessenter oppfordres til å undersøke eiendommen nøye, gjerne sammen med fagkyndig før bud inngis. Kjøper som velger å kjøpe usett kan ikke gjøre gjeldende som mangel noe han burde blitt kjent med ved undersøkelsen.
Dersom det er behov for avklaringer, anbefaler vi at interessenter rådfører seg med eiendomsmegler eller egne rådgivere før det legges inn bud.
En bolig som har blitt brukt i en viss tid, har vanligvis blitt utsatt for slitasje og skader kan ha oppstått. Slik bruksslitasje må kjøper regne med, og det kan avdekkes enkelte forhold etter overtakelse som nødvendiggjør utbedringer. Normal slitasje og skader som nødvendiggjør utbedring, er innenfor hva kjøper må forvente og vil ikke utgjøre en mangel.
Kjøper og selgers rettigheter og plikter reguleres av avtalen mellom partene, samt informasjonen som har vært tilgjengelig for kjøperen i forbindelse med handelen. Avtalen utfylles av avhendingsloven, og det gjelder ulike avtalevilkår avhengig av om kjøper er forbrukerkjøper eller ikke. Dette er nærmere beskrevet nedenfor.
På grunn av ulike avtalevilkår kan selger vurdere bud fra en som ikke er forbruker, ulikt fra en forbrukers bud. Dersom kjøper ikke er forbruker, er selger sitt mulige mangelsansvar begrenset fordi eiendommen selges "som den er". Selger kan ikke ta «som den er»- forbehold overfor en forbrukerkjøper. Selv et lavere bud fra en som ikke er forbruker kan foretrekkes fordi begrensningen i mulig mangelsansvar kan ha egenverdi for selger. Selger står fritt til å forkaste eller akseptere ethvert bud, og er for eksempel ikke forpliktet til å akseptere høyeste bud.
Budgiver skal i budskjema avgi egenerklæring om budgiver er forbruker eller næringsdrivende/ person som hovedsakelig handler som ledd i næringsvirksomhet. Budgivere får informasjon dersom andre bud er inngitt av en som ikke er forbruker.
Forbrukerkjøp - definisjon
Med forbrukerkjøp menes kjøp av eiendom når kjøperen er en fysisk person som ikke hovedsakelig handler som ledd i næringsvirksomhet.
Forbruker – avtalevilkår
Eiendommen har en mangel dersom den ikke er i samsvar med kravene som følger av avtalen, eller det foreligger brudd på bestemmelsene i avhendingsloven §§ 3-2 til 3-8. Hvis eiendommen ikke er i samsvar med det kjøperen må kunne forvente ut ifra alder, type og synlig tilstand, kan det være grunnlag for mangelskrav. Det samme gjelder hvis det er holdt tilbake eller gitt uriktige opplysninger om eiendommen. Dette gjelder likevel bare dersom man kan gå ut ifra at det virket inn på avtalen at opplysningen ikke ble gitt eller at mangelskravet ikke blir rettet i tide på en tydelig måte.
Boligen kan ha en mangel etter avhendingsloven § 3-3 andre ledd, dersom det er avvik mellom opplyst og faktisk innvendig areal, forutsatt at avviket er på 2% eller mer og minimum 1 kvm.
Ved beregning av et eventuelt prisavslag eller erstatning må kjøper selv dekke tap/kostnader opptil et beløp på kr 10 000 (egenandel).
Ikke-forbruker (næringsdrivende) – definisjon
Hvis kjøper er en juridisk person, eller en fysisk person som hovedsakelig handler som ledd i næringsvirksomhet, vil kjøpet ikke anses som et forbrukerkjøp.
Ikke-forbruker – avtalevilkår
Eiendommen har en mangel dersom den ikke er i samsvar med kravene som følger av avtalen.
Eiendommen selges «som den er», og selgers ansvar utover det konkret avtalte er da begrenset etter avhendingsloven § 3-9, første ledd andre setning.
Avhendingsloven § 3-3 andre ledd fravikes, og hvorvidt boligens arealsvikt utgjør en mangel vurderes etter avhendingsloven § 3-8.
Informasjon om kjøpers undersøkelsesplikt, herunder oppfordringen om å undersøke eiendommen nøye, gjelder også for kjøpere som ikke anses som forbrukere.
Det forutsettes at hjemmel overføres til kjøper. Hvis kjøper ikke ønsker hjemmelsoverføring av eiendommen, må det tas forbehold om dette i budet.
Meglers vederlag
Vi er opptatt av verdiskapning, og har knyttet til oss samarbeidspartnere som skal sikre våre kunder de beste produkter og tjenester;
• I forbindelse med forberedelse av salget, innhenter vi informasjon om eiendommen hovedsakelig fra vår samarbeidspartner Amibita.
• Gjensidige leverer boligselgerforsikring og tilbyr bygningsforsikring
• Boligkjøperforsikring leveres av Hiscox og med Sedgwick som skadebehandler, og er formidlet gjennom Gjensidige.
• BN bank tilbyr finansieringsløsninger
• Vår avdeling Krogsveen Pluss tilbyr flyttetjenester som utvask, visningsvask, lager, tømming og transport av flyttelass, i tillegg til å formidle kontakt med Flip for overflateoppussing.
• I forbindelse med overtagelse av eiendommen tilbyr Overo avtale om strøm, alarm og bredbånd.
• Krogsveen er, sammen med øvrige bransjeaktører, medeier i Bomega AS som tilbyr den digitale annonseringsplattformen Hjem.
Opplysninger om oppdraget
Oppdragsnummer 49-0100/25
Eiendomsmegler Krogsveen AS, avd. Kolbotn
Jan Baalsruds plass 1, 1410, KOLBOTN
950 007 613
Oppdragets KR-kode KR49.25100
Dato
Sist oppdatert: 18. januar 2026 kl. 12:59
Dokumenter
Dokumenter
PDF – 1002 KB
PDF – 744 KB
PDF – 193 KB
PDF – 470 KB
PDF – 312 KB
PDF – 29 KB
PDF – 127 KB
PDF – 392 KB
Område
Legg til steder som er viktige for deg
Visning
For å delta på visning, ber vi om at du melder deg på. Da sikrer vi at du får nødvendig informasjon og at det er satt av tilstrekkelig med tid. Kontakt megler dersom annet tidspunkt ønskes. Husk å lese salgsoppgaven før visningen, så du stiller forberedt. NB. Visning utgår dersom det ikke er noen påmeldte.
Ønsker du kun å bli holdt orientert, kan du fra eiendommens hjemmeside få varsel om solgtpris, eller kontakte megler.
Lurer du på noe?
Unngå doble boligrenter
Vi tilbyr gunstig forsikring.
Vurderer du utleie?
Få et tilbud fra Utleie KrogsveenHva koster lånet?
Sjekk estimert lånekostnadVil du varsles om lignende boliger?
Ved å lagre ditt boligsøk hos oss får du beskjed når vi har en bolig som ligner denne, før den legges ut på markedet!




