Bjørndalsskogen 41
2 490 000 kr
47 m²
1 soverom
Solgt

Presenteres av
Henriette MuriFlott 2-roms med nydelig utsikt og solrik terrasse! Fast parkeringsplass i felles garasje. Varmtvann inkl. i felleskost.
Prisantydning
2 490 000 krAndel fellesgjeld
196 731 krOmkostninger
19 252 krTotalpris
2 705 983 kr
Pris
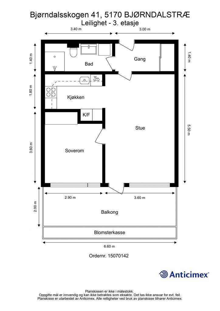
Bruksareal
51 m²BRA-I (internt bruksareal)
47 m²BRA-E (eksternt bruksareal)
4 m²TBA (terrasse-balkongareal)
14 m²
Areal
Etasje
3Byggeår
1975Soverom
1 soveromBad
1 badType
AndelsleilighetEierform
AndelFasiliteter
Garasje/P-plass og Balkong/TerrasseFellesutgifter
5 766 krEnergimerke
Rød F
Nøkkelinfo
Unngå doble boligrenter
Vi tilbyr gunstig forsikring.
Vurderer du utleie?
Få et tilbud fra Utleie KrogsveenHva koster lånet?
Sjekk estimert lånekostnadBeskrivelse
Kort om eiendommen
Lekker 2- roms andelsleilighet med svært god beliggenhet. Kort avstand til Vestkanten storsenter, kollektivtransport, treningstudio, dagligvarehandel m.m
Høydepunkter:
Lys stue med spottekasse installert i 2023
Fast garasjeplass medfølger
Sørvendt terrasse på 14 m² med gode solforhold
Praktisk planløsning og god standard
Varmtvann inkl. i felleskostnader
Turterreng like utenfor blokken, samt flere stier innad i borettslaget
Gangavstand til Kiwi og Rema 1000, samt treningssenter og restauranter
Busstopp ved inngangen til borettslaget
Bo midt mellom Vestkanten storsenter og Oasen senter
Egen vaktmester i borettslaget
Område
Legg til steder som er viktige for deg
På flyttefot? Tenk kjøp og salg samtidig.
Få din egen rådgiver gjennom hele kjøps- og salgsprosessen. Det starter med en verdivurdering.
Unngå doble boligrenter
Vi tilbyr gunstig forsikring.
Vurderer du utleie?
Få et tilbud fra Utleie KrogsveenHva koster lånet?
Sjekk estimert lånekostnadVil du varsles om lignende boliger?
Ved å lagre ditt boligsøk hos oss får du beskjed når vi har en bolig som ligner denne, før den legges ut på markedet!
På flyttefot? Slik gjør vi det enklere for deg
Skreddersydd flyttepakke
Vi fikser håndverkere, vask, pakking, lagring og transport, og legger ut for utgiftene underveis.
Hjelp med både kjøp og salg
Hos oss har du din egen rådgiver gjennom hele kjøps- og salgsprosessen.
Hjelp til finansiering
Vårt samarbeid med BN Bank sikrer deg rask og løsningsorientert hjelp, til konkurransedyktige betingelser.

