Rødknappsvingene 12
8 990 000 kr
261 m²
5 soverom
Komplett salgsoppgave

Tasta/Byhaugen
Vakker villa med 5 soverom - Stor, solrik hage og godkjent hagestue | Dobbel garasje m/ elbillader - Kjeller utleid
Prisantydning
8 990 000 krOmkostninger
245 740 krTotalpris
9 235 740 kr
Pris
Bruksareal
331 m²BRA-I (internt bruksareal)
261 m²BRA-E (eksternt bruksareal)
45 m²TBA (terrasse-balkongareal)
25 m²
Areal
Etasje
3Byggeår
2002Soverom
5 soveromBad
3 badTomteareal
884 m² (eiet)Type
Enebolig - FrittliggendeEierform
EietFasiliteter
Garasje/P-plassÅrlig velavgift
300 kr
Nøkkelinfo
Unngå doble boligrenter
Vi tilbyr gunstig forsikring.
Vurderer du utleie?
Få et tilbud fra Utleie KrogsveenHva koster lånet?
Sjekk estimert lånekostnadBeskrivelse
Kort om eiendommen
Klassisk, lys og vakker villa pent plassert på stor tomt med sol fra morgen til kveld. Gangavstand til sentrum og populære turområder som Veden og Stokkavatnet. Fra stuen er det utgang til solrik, sørvestvendt hagestue på 25 kvm. For de som liker følelsen av solvarmt gress under føttene kan vi fortelle at den lune og velpleide hagen er herlig stor og bra skjermet for innsyn. Boligen ble oppført i 2002 og er påkostet i årenes løp. Dagens eiere har bodd i boligen i over 20 år og har stortrivdes her.
- 5 sov - 3 stuer - 3 bad
- Hagestue på 25 kvm med gulvvarme
- Dobbelgarasje på 45 m² med elbillader og god parkering på tomten
- Kjøkken fra HTH - integrerte hvitevarer
- Loftstue med god takhøyde og utgang til balkong
- Hovedsoverom med direkte adkomst til bad
- Kjeller utleid (ikke godkj)
Innhold og byggemåte
Innhold og byggemåte
Eiendommen
Rødknappsvingene 12, 4025 STAVANGER
Kommunenummer 1103, gårdsnummer 29, bruksnummer 785
Innhold
Totalt bruksareal BRA: 331 kvm
BRA-i:
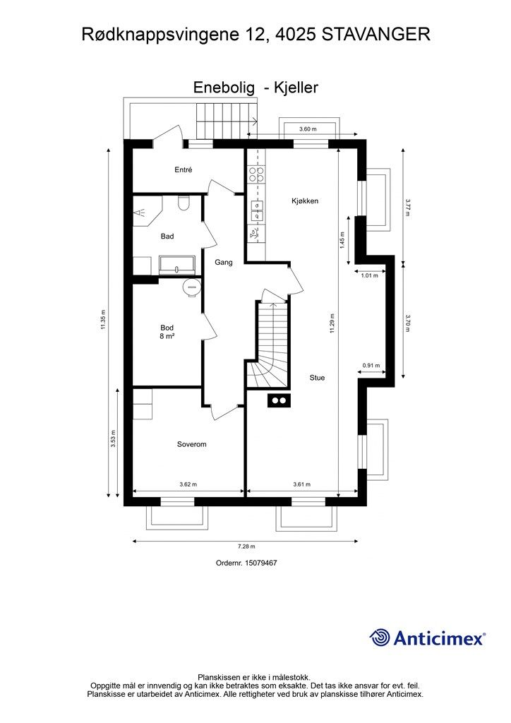
Kjeller 87 kvm: Entré, gang, bod, soverom, bad, kjøkken, stue.
1. etasje 93 kvm: Gang, bad, stue, vaskerom, kjøkken.
2. etasje 81 kvm: Loftstue, kontor, bad, 3 soverom.
BRA-e:
1. etasje 45 kvm: Garasje.
BRA-b:
1. etasje 25 kvm: Vinterstue.
Terrasse- og balkongareal (TBA):
1. etasje 19 kvm: Terrasse.
2. etasje 6 kvm: Balkong.
Loftsetasjen har et totalt gulvareal (GUA) på 94 kvm, men grunnet skråtak/lav takhøyde er kun 81 kvm av arealet måleverdig som bruksareal. De delene av arealene som har lav himlingshøyde (ALH) utgjør 13 kvm.
Ter er to kaldloft med lagringsplass i med luke fra loftstue og det ene soverommet i 2. etasje.
Vedlagte plantegninger er ikke målbare. De oppgitte arealer er hentet fra rapport med befaringsdato 23.02.2026 utført av Anticimex AS v/Yngve Paulsen.
Byggemåte
Selger har innhentet en tilstandsrapport av boligen. Dersom det er registrert avvik, er disse klassifisert med tilstandsgrader (TGIU, TG2 og/eller TG3). Kjøper overtar ansvaret for de opplysninger som fremkommer av salgsdokumentasjonen, og kan ikke gjøre gjeldende som mangel noe som burde vært kjent eller som ikke kan anses å ha betydning for avtalen.
Bygningen er iht. tilstandsrapport en enebolig oppført i 2002 over tre plan: kjeller, 1. etasje og 2. etasje. Bygningen er en trekonstruksjon med grunnmur i betong og støpt gulv mot grunn. Ytterveggene er i trekonstruksjoner med stående trekledning, og etasjeskillere er av trekonstruksjoner. Boligen har et saltak i trekonstruksjoner med synlige taksperrer på det uinnredede kalde loftet, og yttertaket er belagt med takstein fra byggeår. Vinduer, balkong/terrassedør og ytterdør i underetasje har karmer/ramme av tre fra byggeår. Entrédøren har glassfelter, og innvendig er det profilerte innerdører, enkelte med glassfelt. Det er en elementpipe fra byggeår med en peisovn i stuen. Renner og nedløp er i plast, og pipen har fotbeslag i bly. Boligen har en balkong på 6 m² i trekonstruksjon med utgang fra loftstue, og en terrasse på 19 m² i betongkonstruksjon med utgang fra vinterstue. I tillegg er det en terrasse på terreng. Innvendig er det en tretrapp, og utvendig en betongtrapp ved kjellerinngang.
En frittstående garasje med tilliggende bod ble bygget i 2002. Bygningen er en trekonstruksjon med fasade kledd i stående trekledning. Den har et saltak i trekonstruksjoner, tekket med takstein. Ifølge eier er vegger og tak isolert.
Det elektriske anlegget er fra boligens byggeår, med sikringsskap plassert i entréen i kjelleren.
Boligen har godkjent slukkeutstyr og tilstrekkelig røykvarsling.
Følgende bygningsdeler er gitt Tilstandsgrad 2 (TG2) — Avvik som kan kreve tiltak:
Våtrom - Bad kjeller
- Overflater himling: Det er antydning til fuktmerker i himlingen. Høy fuktbelastning som følge av utilstrekkelig ventilasjon vurderes som en sannsynlig hovedårsak.
- Overflater vegger: Baderomsplater har synlig slitasje i dusjsonen. Misfarging/svertesopp påvist på flisfuger. Forholdet vurderes i hovedsak til å være et mindre avvik av estetisk betydning, uten nevneverdige konsekvenser utover dette.
- Overflater gulv: Det observeres stedvis tegn til riss på gulvflis i dusjsone. Eksakt årsak er ikke kjent.
- Lekkasjesikkerhet: Fallforhold utenfor sluksonen vurderes ikke til å være tilstrekkelig for å lede eventuelt lekkasjevann til sluk, og det er ikke påvist at vanntett sjikt har tilstrekkelig oppkant ved dørterskel for å kompensere for dette.
- Vanntett sjikt / membran i gulv og vegger: Vanntett sjikt har en alder som tilsier at fremtidig funksjon er usikker. Bygningsdelen er skjult, så den faktiske tilstanden og dagens tettefunksjon er ukjent. Det registreres åpning rundt avløpsrøret til servanten og tettesjiktet i veggen.
- Utført kontroll i tilliggende konstruksjon: Det er foretatt hulltaking og utført fuktmåling med egnet instrument i veggkonstruksjon fra tilstøtende rom. Relativ fuktighet ble målt til 87,1 prosent, ved 18,2 celsius med duggpunkt på 16,1 celsius. Det ble registrert forhøyet fuktnivå. Lukt som kan indikere pågående fuktskade registreres inne i konstruksjonen. Eksakt årsak er ukjent, men utettheter i rommets vanntette sjikt vurderes som en sannsynlig årsak. Undersøkelsene gir kun et begrenset bilde av forholdet i umiddelbar nærhet til hullet. Omfanget er derfor ikke fullt ut kartlagt.
Våtrom - Bad 1. etasje
- Overflater vegger: Det er registrert bruk av materialer i våtsonen (rundt dusj/vask) som vurderes å ikke være fuktbestandige. Det ble ikke observert tegn til fuktskader på befaringsdagen, men løsningen anses som uheldig.
- Vanntett sjikt / membran i gulv og vegger: Vanntett sjikt har en alder som tilsier at fremtidig funksjon er usikker. Bygningsdelen er skjult, så den faktiske tilstanden og dagens tettefunksjon er ukjent. Det registreres åpning rundt avløpsrøret til servanten og tettesjiktet i veggen.
- Tettesjiktets tilslutning til sluk: Overgang mellom sluk og vanntett sjikt er uoversiktlig.
Våtrom - Bad 2. etasje
- Fallforhold rundt sluk: Lokalfallet i sluksonen er mindre enn anbefalt.
- Lekkasjesikkerhet: Det registreres motfall på deler av gulvflater utenfor sluksonen.
- Vanntett sjikt / membran i gulv og vegger: Vanntett sjikt har en alder som tilsier at fremtidig funksjon er usikker. Bygningsdelen er skjult, så den faktiske tilstanden og dagens tettefunksjon er ukjent. Det registreres åpning rundt avløpsrøret til servanten og tettesjiktet i veggen.
- Slukets tilkomstmulighet for rengjøring: Sluk under badekar er ikke lett tilgjengelig for rengjøring.
Våtrom - Vaskerom
- Vanntett sjikt / membran i gulv og vegger: Vanntett sjikt har en alder som tilsier at fremtidig funksjon er usikker. Bygningsdelen er skjult, så den faktiske tilstanden og dagens tettefunksjon er ukjent.
- Tettesjiktets tilslutning til sluk: Overgang mellom sluk og vanntett sjikt er uoversiktlig.
- Slukets tilkomstmulighet for rengjøring: Sluk under innredningen er ikke lett tilgjengelig for rengjøring.
Tekniske anlegg
- Varmtvannsbereder: På bakgrunn av berederens alder vurderes det at fremtidig funksjon er usikker.
Rom under terreng
- Overflate himling: Himlingsflater bærer preg av aldersrelatert slitasje og har enkelte mindre skader. Forholdet vurderes i hovedsak til å være av estetisk betydning, uten nevneverdige konsekvenser utover dette.
- Overflate vegg: Synlige deler av veggoverflatemateriale i stue bærer preg av stedvis misfarging/svertesopp. Ytterligere kommentert under punkt "ventilasjon" og "kontroll i lukkede konstruksjoner"
- Ventilasjon: Ventilasjonen vurderes som utilstrekkelig.
- Kontroll i lukkede konstruksjoner: Det er foretatt hulltaking og utført fuktmåling i utlektet veggkonstruksjon. Relativ luftfuktighet ble målt til 90,4 prosent, ved 10,3 celsius med duggpunkt på 8,8 celsius. Relativ luftfuktighet ble målt til 81,5 prosent, ved 10,8 celsius med duggpunkt på 7,7 celsius. Dette måleresultatet tilsier at fuktinnholdet ligger i et område mellom forhøyet fuktnivå, og kritisk høyt fuktnivå i konstruksjonen, noe gir risiko for fuktskade. Fuktproblemer oppstår gjerne som følge av en kombinasjon av flere underliggende årsaker, men problemer med dreneringen vurderes som en sannsynlig hovedårsak. Denne opplysningen må derfor ses i sammenheng med opplysninger som gis under punkt «Drenering». Undersøkelsene gir kun et begrenset bilde av forholdene i umiddelbar nærhet til hullet, noe som betyr at det helhetlige tilstandsbilde av konstruksjonen ikke er kartlagt. Det er ikke kjent om forholdet fortsatt er i utvikling.
Etasjeskiller og gulv på grunn (skjevhetsmåling)
- 1. Etasje: I stue er det på tilfeldige punkter målt lokale høydeforskjeller opptil 5 mm. På gang er det på tilfeldige punkter målt lokale høydeforskjeller opptil 20 mm. Stikkprøvene som er utført har avdekket stedvise vesentlige skjevheter. Eksakt årsak er ikke kjent.
Yttervegger inkl. fasader
- Lufting av ytterkledning: Det er vurdert å være begrenset spalte for lufting og drenering bak ytterkledningen ved inngang. Det gjøres oppmerksom på at det ikke er observert synlige tegn på at forholdet har ført til skader på dette tidspunkt.
Terrasse / platting
- Tilstand på rekkverk og overflatematerialer: Det er registrert bom (hulrom og riss/sprekker i flisfuger) i enkelte gulvfliser.
- Konstruksjon og fundamenter: Det registreres tegn til skader og feil på konstruksjonsoppbygningen til terrassen (sig og sprekker i gulvfliser)
Drenering
- Alder: Boligen viser tegn til fuktgjennomslag og fuktproblemer fra innsiden, som tyder på funksjonssvikt i dreneringen. Alderen på dreneringen underbygger denne konklusjonen. Forholdet må ses i sammenheng med rapportens øvrige risikoopplysninger som omtaler bygningsdeler som er i direkte eller nær kontakt med bakken.
- Fuktsikring av grunnmur: Det kan ikke verifiseres at grunnmuren har utvendig fuktsperre.
Følgende bygningsdeler er ikke undersøkt (TGIU):
Våtrom - Vaskerom
- Kontroll i tilliggende konstruksjon ikke utført: På grunn av våtrommets utforming og bruk er det ikke praktisk mulig å gjennomføre hulltaking og fuktmåling i et område som regelmessig utsettes for bruksvann, og som vurderes å være det området hvor skader erfaringsmessig forekommer. Det ble utført et overflatesøk med fuktindikator på utvalgte steder, uten funn som indikerer fuktskader, også i områdene hvor hulltaking ville vært mulig. Alle disse forholdene utgjør grunnlaget for vurderingen om at hulltaking var unødvendig, og undersøkelse av lukkede konstruksjoner er derfor ikke utført.
Yttertak
- Helhetsvurdering: Det er valgt å vurdere yttertaket med en samlet helhetsvurdering. Følgende hovedmomenter er lagt til grunn for vurderingen. Ingen tilkomst til yttertaket av sikkerhetsmessige hensyn. Vurderingen er derfor kun basert på informasjon om yttertakets alder og eventuelle observasjoner gjort fra utsiden og innsiden, med den begrensning dette innebærer.
Helse, miljø og sikkerhet
Balkonger
- Rekkverkshøyde og lysåpninger: Rekkverkshøyder, lysåpninger og andre sikkerhetsmessige forhold er kontrollert opp mot dagens gjeldende byggtekniske forskrift, selv om denne ikke har tilbakevirkende kraft. Rekkverkshøyden er under 1,0 meter. Basert på ovennevnte forhold oppfyller ikke balkongen dagens krav til sikkerhet. Om balkongen oppfylte kravene som var gjeldende på oppføringstidspunktet eller ikke, er ikke tatt stilling til.
Utvendig trapp
- Rekkerkshøyde og lysåpninger: Rekkverkshøyder, lysåpninger og andre sikkerhetsmessige forhold er kontrollert opp mot dagens gjeldende byggtekniske forskrift, selv om denne ikke har tilbakevirkende kraft. Trappen har kun rekkverk på en side, noe som kan medføre fallfare. Basert på ovennevnte forhold oppfyller ikke trappen dagens krav til sikkerhet. Om trappen oppfylte kravene som var gjeldende på oppføringstidspunktet eller ikke, er ikke tatt stilling til.
Tilstandsrapporten er inntatt i salgsoppgaven. Rapporten inneholder informasjon om eventuelle avvik og konsekvensen av disse. Dersom det er registrert avvik med TG3, har den bygningssakkyndige i tillegg gitt et anslag på hva det vil koste å utbedre disse. Ettersom kjøper regnes å være kjent med forhold som tydelig fremgår av tilstandsrapporten, oppfordres du til å sette deg grundig inn i rapporten i sin helhet.
Selger beskriver også i egenerklæringsskjema:
Det er utført arbeid på bad og våtrom. I 2009 ble det montert ny baderomsinnredning med dobbel servant på badet i 2. etasje av Rørlegger Løvås. Toalettet på badet i 2. etasje ble byttet i 2018 (ufaglært). I 2025 ble det montert ny vask med underskap (ufaglært), og i 2026 ble toalettet i gangen nede byttet (ufaglært). I forbindelse med utbygging av E39 ble det i 2020 montert balansert ventilasjon og byttet to vinduer mot nord som støytiltak. I tillegg ble ett vindu på hovedsoverommet byttet rundt 2019/2020 fordi det var dårlig. Arbeidet ble utført av Faber Bygg. I 2019 ble det montert lader for elbil i garasjen av E tech.
Moderniseringer og påkostninger
Følgende moderniseringer/påkostninger er foretatt de senere år:
2026:
- Byttet toalett i gangen.
2025:
- Montert ny vask med underskap på toalett i gangen.
- Nymalt hus utvendig.
2020:
- Alt nytt på badet i kjeller (fagfolk)
- Montert balansert ventilasjon.
- Byttet 2 vinduer mot nord.
- Byttet 1 vindu på hovedsoverom.
2019:
- Montert lader for elbil i garasjen (utført av E tech, samsvarserklæring foreligger).
2018:
- Byttet toalett på bad i 2. etasje.
2017:
- Nytt Kjøkken fra HTH.
2009:
- Montert nytt baderomsinnredning på bad oppe dobbel servant med overskap og sideskap.
Standard
Eneboligen ble oppført i 2002 med grunnmur av betong, støpt gulv mot grunn og yttervegger i trekonstruksjoner med stående trekledning. Etasjeskillere er også av trekonstruksjoner. Boligen har balansert ventilasjon med aggregat plassert på kaldloft. Dreneringen er fra byggeår, og det er tegn til fuktgjennomslag som indikerer funksjonssvikt. I følge selger er det grunnmurspapp rundt grunnmuren, men den viser ikke så godt fordi beleggningsteinen ligger helt inntil. Kjelleretasjen er innredet som en utleiedel, men det er ingen dokumentasjon som viser at dette er byggemeldt og godkjent av kommunen. Utvendig ble huset malt sommeren 2025, og det er installert elbillader.
KJØKKEN 1. ETASJE:
Kjøkkeninnredningen er fra 2017 med glatte fronter og laminert benkeplate. Kjøkkenet er utstyrt med kjøkkenvask med armatur, stikkontakt over benk, og integrerte hvitevarer som stekeovn, platetopp, oppvaskmaskin, mikrobølgeovn, kjøleskap og fryser. Ventilator i overskap og komfyrvakt er installert. Vannrør er av typen rør-i-rør, og en automatisk vannstopper med fuktsensor er til stede. Synlige avløpsrør er av plast. En glassplate er montert bak kjøkkenvask/platetopp.
KJØKKEN KJELLER:
Åpen kjøkkenløsning med glatte fronter og laminert benkeplate. Kjøkkenet har kjøkkenvask med armatur, benkeskapsbelysning og stikkontakter over benk. Det er utstyrt med frittstående komfyr, oppvaskmaskin, kjøleskap med fryser og ventilator i overskap. Vannrør er av typen rør-i-rør, og synlige avløpsrør er av plast. En laminert plate er montert mellom kjøkkenbenk og overskap.
BAD KJELLER:
Baderommet er fra byggeår og har flislagt gulv med gulvvarme. Veggene har baderomsplater, og himlingen har malte flater med antydning til fuktmerker. Rommet er utstyrt med vegghengt servantinnredning, speilskap med overlys, dusjhjørne med dører og vegghengt dusjarmatur, samt gulvstående toalett. Vannrør er av typen rør-i-rør, og synlige avløpsrør er av plast. Mekanisk avtrekk med ventil i vegg. Det er opplegg for vaskemaskin. Baderomsplatene har synlig slitasje i dusjsonen, og det er misfarging/svertesopp på flisfuger. Fallforhold utenfor sluksonen er ikke tilstrekkelig, og det er påvist forhøyet fuktnivå i tilliggende konstruksjon.
BAD 1. ETASJE:
Baderommet er fra byggeår med flislagt gulv og gulvvarme. Veggene er malte, med flislagte vegger i dusjsonen. Takplater i himling. Rommet er utstyrt med vegghengt servantinnredning, ovenpåliggende servant med armatur, dusjhjørne med dører og gulvstående toalett. Vannrør er av typen rør-i-rør, og synlige avløpsrør er av plast. Mekanisk avtrekk med ventil i himling. Materialer i våtsonen vurderes ikke å være fuktbestandige, og overgang mellom sluk og vanntett sjikt er uoversiktlig.
BAD 2. ETASJE:
Baderommet er fra byggeår med flislagt gulv og gulvvarme. Flislagte vegger og takplater i himling. Rommet er utstyrt med vegghengt servantinnredning, dobbel ovenpåliggende servant med armaturer, speilskap med overlys og vegghengt baderomsmøbel. Det er en dusjnisje med glassvegg og vegghengt dusjarmatur, samt badekar med vegghengt badekararmatur. Gulvstående toalett. Vannrør er av typen rør-i-rør, og synlige avløpsrør er av plast. Mekanisk avtrekk med ventil i himling. Lokalfallet i sluksonen er mindre enn anbefalt, og det registreres motfall på deler av gulvflater utenfor sluksonen. Sluk under badekar er ikke lett tilgjengelig for rengjøring.
VASKEROM:
Vaskerommet er fra byggeår med gulvbelegg og malte veggflater. Takplater i himling. Rommet har gulvstående servantinnredning med ovenpåliggende servant og armatur. Vannrør er av typen rør-i-rør, og synlige avløpsrør er av plast. Mekanisk avtrekk med ventil i himling. Opplegg for vaskemaskin er tilgjengelig. Varmtvannsbereder på 198 L fra 2002 er plassert her, og fordelerskap for rør-i-rør system er også til stede. Vanntett sjikt har en alder som tilsier usikker fremtidig funksjon. Overgang mellom sluk og vanntett sjikt er uoversiktlig, og sluk under innredningen er ikke lett tilgjengelig for rengjøring.
Overflater:
Gulvoverflater: Gulvoverflater i boligen varierer, med parkett og fliser i de fleste rom. I kjelleretasjen er det laminat, fliser og belegg, mens vaskerommet har gulvbelegg. Gulvvarme er installert i gang i 1. etasje, entré i kjeller, på alle bad og i hagestuen.
Vegger: Vegger er hovedsakelig malte flater. I våtrom er det baderomsplater på bad i kjeller, flislagte vegger i dusjsonen på bad i 1. etasje og flislagte vegger på bad i 2. etasje. Kjøkken i 1. etasje har plater på veggflater, og kjøkken i kjeller har malte veggflater med laminert plate mellom benk og overskap.
Himling: Himlinger består av takplater i de fleste rom, og malte flater på bad i kjeller, kjellerstue, kjellersoverom og kjøkken i kjeller. Profilerte innerdører, hvorav enkelte med glassfelt, finnes i boligen.
Lagring:
Boligen har en bod i kjelleretasjen. I tillegg medfølger en frittstående garasje med en tilhørende bod. Innebygde løsninger inkluderer vegghengt servantinnredning og speilskap med overlys på bad i kjeller og bad i 2. etasje, vegghengt servantinnredning på bad i 1. etasje, gulvstående servantinnredning på vaskerom, samt vegghengt baderomsmøbel på bad i 2. etasje. Kjøkkeninnredning finnes i begge kjøkken.
For fullstendig teknisk informasjon om boligen, se punktet Byggemåte i salgsoppgaven.
Løsøre og tilbehør
Vi viser til liste fra Norges Eiendomsmeglerforbund som gjelder fra 01.01.2020 angående løsøre og tilbehør.
Robotklipper medfølger handelen.
Oppvarming
Oppvarming skjer i hovedsak med panelovner (elektrisk oppvarming). Det er gulvvarme på bad i kjeller, bad i 1. etasje og bad i 2. etasje, samt i gang og i entré i kjeller. I stuen er det en peisovn med glassdør. Boligen har balansert ventilasjon.
Ferdigattest/brukstillatelse
Det er utstedt midlertidig brukstillatelse for nybygg bolig datert . Det foreligger ikke ferdigattest for boligen i kommunens arkiver. I tillatelsen er det listet gjenstående arbeider som måtte utføres før ferdigattest kunne utstedes, med frist 01.04.2003:
- Terreng planeres med fall fra huset.
- Trapp fra terrassedør til terreng.
- Garasje ferdigstilles.
- Lysgraver må sikres.
- Revidert tegning av kjelleretasje innsendes.
Denne kan fås ved henvendelse til megler.
Det er utbygger/tiltakshavers ansvar å sørge for at ferdigattest foreligger før midlertidig brukstillatelse løper ut. Dersom gjenstående arbeider ikke er utført innen fristen, kan kommunen gi pålegg om ferdigstillelse. Slike pålegg kan følges opp med sanksjoner som tvangsmulkt, og i ytterste konsekvens pålegg om opphør av bruk. At tillatelse eksisterer gir ingen garanti for at det ikke senere er utført arbeider som ikke er byggemeldt/godkjent.
Det er utstedt ferdigattest for innglassing av terrasse datert 20.08.2019. Denne kan fås ved henvendelse til megler. For garasjen er det ikke funnet ferdigattest i kommunens arkiver.
Det foreligger godkjente byggetegninger for eneboligen, datert mellom 1998 og 2002. Dagens planløsning avviker litt fra disse tegningene. Kjelleretasjen er innredet som en egen boenhet med stue, kjøkken, soverom og bad. De godkjente tegningene viser ikke kjøkken i denne etasjen. Etablering av en selvstendig boenhet og installering av kjøkken er søknadspliktige tiltak. Det er uklart om etableringen er lovlig, og forholdet må undersøkes videre.
Avvikene innebærer at deler av boligen kan være i strid med plan- og bygningsloven. Dersom tiltaket avviker fra hva som er søkt om, kan kommunen kreve at dagens forskrifter og lovverk legges til grunn ved en eventuell omsøking. Disse setter blant annet krav til takhøyde, lysflate, ventilasjon, rømningsvei og brannsikring. Kjøper overtar alt ansvar, kostnad og risiko for dette videre.
Tinglyste heftelser og rettigheter
Eiendommen overdras fri for pengeheftelser
Kommunen har legalpant i eiendommen for forfalte krav på eiendomsskatt og kommunale avgifter/gebyrer.
1998/13947-2/102 21.10.1998 RETTIGHETER IFLG. SKJØTE
Elektriske kraftlinjer/ledninger/kabelgrøfter
STAVANGER KOMMUNE HAR RETT MEN IKKE PLIKT TIL Å FÅ EIENDOMMEN TILBAKESKJØTET INNEN 2 ÅR
Pliktig medlemskap i velforening m.v.
Med flere bestemmelser
Rett for kommunen til å anlegge og vedlikeholde ledninger m.m.
Bestemmelse om trafostasjon/kiosk
Eiendommen er beheftet med rettigheter for Stavanger kommune og Stavanger Energi. Kommunen har rett til vederlagsfritt å legge og vedlikeholde offentlige vann-, avløps- og elektriske ledninger, samt veiskråning og gateskilt. Stavanger Energi har varig rett til å ha liggende 50 kV kabler, andre forsyningslinjer og trafokiosk, samt utføre reparasjoner og tilsyn. Eier plikter å ikke endre terrenghøyde over kabler eller plante trær i traséen. Dersom eiendommen ikke bebygges innen 2 år, har kommunen en tilbakekjøpsrett til opprinnelig kjøpesum. Eier er forpliktet til medlemskap i en velforening som skal opparbeide og vedlikeholde fellesarealer. Naboer har rett til å utføre vedlikehold på vegg i nabogrense og legge/vedlikeholde drensledning over eiendommen.
Servituttene vil følge eiendommen. Kjøpers bank vil få prioritet etter ovennevnte heftelser og servitutter.
Eventuell adgang til utleie
Eiendommen har ikke separat utleieenhet. Det vil normalt være anledning til utleie av hele eiendommen eller enkeltrom, såfremt utleiearealet er bygningsmessig godkjent for varig opphold og har forsvarlige radonnivåer.
Den del av boligen (kjelleren) som er innredet som utleiedel er ikke godkjent som en separat boenhet av kommunen. Konsekvensen ved søknad kan være at man får avslag. Kjøper overtar alt ansvar og risiko for dette. Det gjøres oppmerksom på at det er krav til forsvarlige radonnivåer ved utleie.
Beliggenhet og tomteforhold
Beliggenhet og tomteforhold
Beliggenhet
Velkommen til Tasta og et veletablert og familievennlig nabolag. Her bor du i et område som kombinerer rolige gater med kort vei til alt en aktiv familie trenger i hverdagen. Dette er et nabolag hvor barn kan vokse opp med skoler og venner i umiddelbar nærhet.
Logistikken for barnefamilier er enkel. Flere barnehager, som Espira Fjellsenden, ligger bare noen få minutters gange fra døren. Når barna blir eldre, er det gangavstand til både Tasta og Byfjord barneskoler, samt Tastaveden og Tastarustå ungdomsskoler. For fritidsaktiviteter ligger både Tastahallen og ballbinge innen rekkevidde, noe som gjør det enkelt å delta i idrett og lek etter skoletid.
De daglige innkjøpene gjøres hos Kiwi eller Rema 1000, og for et større utvalg av butikker, apotek og Vinmonopol er Alti Tasta (Tasta Senter) en kort kjøretur unna. Beliggenheten er også ideell for pendlere. Med Eiganestunnelen praktisk talt rett utenfor, er veien kort til Stavanger sentrum, Forus og flyplassen på Sola. Dette gir en sjelden kombinasjon av en tilbaketrukket tilværelse og effektiv tilgang til hele regionen.
For de som er glad i å være utendørs kan vi fortelle at det er kort vei til fine turmuligheter like ved i det vakre, grønne friarealet "Veden", også kalt "Toppen". Her er det fritt utsyn mot byøyene og Ryfylket. Området har mange, koselige turstier, en populær fotballøkke og det er en yndet plass for familiepiknikker for beboerne i området.
Det er kort gangavstand til Litle og Store Stokkavatnet som ligger like ved boligen. Populære Hålandvatnet ligger også lett tilgjengelig.
Adkomst
Veibeskrivelse: Se Google maps - det er enkelt å finne frem i kartet.
Det vil bli skiltet med Krogsveen visningsskilt ved annonsert visning.
Barnehager, skoler og fritid
Informasjon om tilhørende skolekretser er hentet fra Prognosesenteret som dataleverandør, og tilhørigheten kan årlig endres av kommunen. Dersom skole- og barnehagetilbud er av betydning for kjøpet, ber vi om at det rettes en særskilt henvendelse til kommunen/bydelsadministrasjonen for oppdatert informasjon.
Skoler:
Tasta skole (1-7 kl.) 372 elever, 19 klasser 1 km
Byfjord skole (1-7 kl.) 391 elever, 27 klasser 1.2 km
Teinå skole (1-7 kl.) 21 351 elever, 21 klasser 1.7 km
Tastaveden skole (8-10 kl.) 311 elever, 24 klasser 1.1 km
Tastarustå skole (8-10 kl.) 385 elever, 31 klasser 1.2 km
Bergeland vgs - Tanke Svilandsgate 250 elever, 19 klasser 1.7 km
Stavanger offshore tekniske skole 440 elever 2.2 km
Barnehager:
Espira Fjellsenden (0-5 år) 68 barn 0.3 km
Barnehagen Tasta (1-5 år) 64 barn 0.5 km
Smiene barnehage (1-5 år) 61 barn 0.6 km
Beskrivelse av tomt
Eiertomt på 884 kvm. Tomten er opparbeidet med belegningsstein i gårdsrom, plenarealer og diverse beplantning. Oppgitt tomteareal er hentet fra digitalt eiendomskart fra Stavanger kommune. Oppgitt/anslått areal kan derfor avvike fra nøyaktig areal. Grunnen ved støyvegg tilliggende hagen er eid av kommunen.
Parkering
Eiendommen har gode parkeringsmuligheter på egen tomt, inkludert en dobbel garasje. Boligen er utstyrt med elbillader.
Vei, vann og avløp
Eiendommen har adkomst via kommunal vei. Eiendommen er tilknyttet kommunalt ledningsnett via private stikkledninger. Eier er selv ansvarlig for private stikkledninger til boligen. Eiendommen har ikke installert vannmåler.
Regulerings-og arealplaner
Eiendommen er regulert til frittliggende småhusbebyggelse (feltnavn: Enebolig) på 818,85 m² og annen veigrunn på 0,03 m² i reguleringsplan 1105 «Reguleringsplan for deler av Nedre Tasta. Søndre del og nordre del» (ID: 1105), vedtatt 19.06.1986, med tilhørende reguleringsbestemmelser.
Eiendommen omfattes også av reguleringsplan 2236 «E39 dagsone Eiganes Nord» (ID: 2236), vedtatt 14.06.2010, med tilhørende reguleringsbestemmelser. Innenfor denne planen er 65,41 m² av eiendommen regulert til boligbebyggelse (feltnavn B2), 65,4 m² til anlegg- og riggområde (feltnavn #13) og 0,01 m² til annen veggrunn, tekniske anlegg (feltnavn o_AVT1).
Eiendommen omfattes av «Kommuneplanens arealdel 2023-2040» (ID: KP 2023-2040), vedtatt 28.06.2024. I kommuneplanen er 884,29 m² av eiendommen avsatt til boligbebyggelse (feltnavn B2).
Eiendommen berøres av hensynssone H110: Nedslagsfelt drikkevann. Innenfor sonen er det ikke tillatt med tiltak, aktivitet eller annen arealbruk som kan ha negativ innvirkning eller utgjør fare for dårligere miljøtilstand i drikkevannskilden. Arealets infiltrasjonsevne skal ivaretas. Overflateerosjon og avrenning til drikkevannskilden skal unngås. Enkel bading i vannet er tillatt.
Utsnitt av plan med tilhørende bestemmelser kan fås ved henvendelse til megler.
Økonomi
Økonomi
Kommunale utgifter
Kommunale avgifter inkluderer renovasjon, vann, avløp, feiing og tilsyn.
Beløpene for 2026 er basert på faktura for én termin, og er doblet for å estimere årskostnaden. Eiendommen har ikke installert vannmåler, og forbruket beregnes etter stipulert areal.
Andre løpende kostnader oppgitt av selger:
- Kom. avg: ca. kr 26 745,- pr. år.
- Forsikring: kr 10 247,- pr. år (KLP).
- TV/Internett: ca. kr 1 600,- pr. mnd (Lyse Altibox).
- Velforening: kr 300,- pr. år.
Utgiftene er basert på nåværende eiers forbruk og avtaler.
Formuesverdi
Formuesverdi for 2024 var kr 2 143 029,- ifølge Skatteetaten. Beløpet forutsetter at eier bor fast i boligen (primærbolig).
Ved eventuell øvrig bruk av eiendommen (f.eks. fritidsbolig, pendlerbolig, utleieobjekt) var formuesverdien for 2024 kr 8 572 114,-.
Formuesverdien justeres normalt årlig.
Fra 2026 har Stortinget vedtatt en oppdatert modell for beregning av formuesverdi for primærbolig, så avvik kan forekomme.
For mer informasjon se skatteetaten.no
Omkostninger
8 990 000,00 Prisantydning
Omkostninger
224 750,00 Dokumentavgift til staten (2,5% av kjøpesum)
19 900,00 Gjensidige Boligkjøperpakke (valgfri)
545,00 Tinglysing panterettsdokument
545,00 Tinglysing skjøte
--------------------------------------------------------
245 740,00 Omkostninger totalt
--------------------------------------------------------
9 235 740,00 Totalpris inkl. omkostninger
--------------------------------------------------------
Tilbud om lånefinansiering
Megler formidler gjerne kontakt med rådgiver hos vår samarbeidspartner BN Bank. De har konkurransedyktige betingelser samt rask og løsningsorientert behandling av din lånesøknad. Krogsveen mottar et honorar dersom lån opprettes.
Betalingsbetingelser
Kjøpesum inkludert omkostninger, samt pantedokument tilknyttet eventuelt lån, skal være disponibelt hos megler 2 virkedager før overtagelsen.
Annen viktig informasjon
Annen viktig informasjon
Eier
Ken Magne Bjørheim og Monica Larsen Bjørheim
Overtakelse
Etter nærmere avtale.
Velforening
Rødknappsvingene Velforening
Boligselgerforsikring
Selger har i forbindelse med salget tegnet boligselgerforsikring levert av Gjensidige.
Boligselgerforsikringen dekker selgers ansvar etter avhendingsloven begrenset oppad til kr 14 millioner. Dersom kjøper oppdager forhold ved eiendommen som hen mener utgjør en mangel ved eiendommen, vil Gjensidige behandle reklamasjonen på vegne av selger. Forsikringsvilkår kan fås ved henvendelse til megler.
Vedlagt salgsoppgaven følger selgers egenerklæringsskjema og tilstandsrapport. Interessenter må sette seg inn i dokumentene før bud inngis.
Boligkjøperforsikring
Innen kontraktsmøtet må kjøper ta stilling til om det ønskes å bestille Boligkjøperpakken gjennom Gjensidige. I denne gunstige pakken er boligen ferdig forsikret og inkluderer rettshjelpsforsikring, også kalt Boligkjøperforsikring. Rettshjelpsforsikring gir trygghet og tilgang på profesjonell juridisk hjelp dersom det oppdages uventede feil eller mangler det første året etter overtagelse. Forsikringsselskapet behandler i så fall ethvert mangelskrav kjøper måtte ha overfor selger.
Boligkjøperpakken inkluderer bygningsforsikring for hus og hytte, innboforsikring, flytteforsikring og dobbel rentedekning - i situasjoner hvor kjøper ikke får solgt nåværende primærbolig.
Kjøper mottar ingen særskilt faktura for Boligkjøperpakken da kostnaden det første året legges til kjøpesummen for boligen. Det gjøres oppmerksom på Krogsveen mottar et honorar for denne formidlingen.
Produktark for Boligkjøperpakken ligger vedlagt i salgsoppgaven.
Dersom ikke boligkjøperpakke ønskes kan kun rettshjelpsforsikring, også kalt boligkjøperforsikring, tegnes særskilt via megler. Rettshjelpsforsikringen varer i 5 år fra overtagelse og leveres gjennom Gjensidige. Ta kontakt med megler for ytterligere informasjon.
Selskap og privatpersoner som driver med kjøp/salg/utvikling som ledd i egen næringsvirksomhet kan ikke tegne boligkjøperpakke eller rettshjelpsforsikring.
Budgivning
Forbrukerinformasjon om budgivning er vedlagt denne salgsoppgaven og er også på vår hjemmeside Krogsveen.no. Alle bud og budforhøyelser må inngis skriftlig. I tillegg må legitimasjon være fremlagt sammen med signatur fra budgiver.
Vi oppfordrer til å gi bud elektronisk via GI BUD-knappen på eiendommens hjemmeside på Krogsveen.no. Da vil samtlige vilkår bli oppfylt.
Eventuelle forhøyelser eller endringer av budet kan bekreftes pr SMS eller på e-post. Vi oppfordrer alltid til å kontakte megler pr. telefon i tillegg da forsinkelser i SMS og e-post kan forekomme.
For at budene skal kunne bli behandlet og videreformidlet skriftlig til alle involverte parter, må alle bud ha en tilstrekkelig lang akseptfrist, jf. eiendomsmeglingsforskriften § 6-3.
Selger må også skriftlig akseptere budet før aksept kan formidles til budgiver. Akseptfrist bør derfor være på minimum 30 minutter, og budforhøyelser må derfor skje i god tid før fristens utløp.
Bud i forbrukerforhold kan uansett ikke settes med kortere frist enn kl. 12.00 første virkedag etter siste annonserte visning. I tillegg kan ikke budet ha forbehold om at det skal holdes hemmelig ovenfor øvrige interessenter. Megler har iht lov om eiendomsmegling ikke anledning til å videreformidle disse budene, og de vil dermed heller ikke bli journalført.
Etter at eiendommen er solgt vil kjøper og selger få tilsendt budjournal. Øvrige budgivere kan få utlevert kopi av budjournalen i anonymisert form.
Hvitvaskingsreglene
I henhold til lov om hvitvasking og terrorfinansiering har megler plikt til å gjennomføre kontrolltiltak overfor kunder, herunder fullmektiger. Dette innebærer bl.a. å bekrefte kunders og reelle rettighetshaveres identitet på bakgrunn av fremvist gyldig legitimasjon eller på annen godkjent måte, samt å innhente opplysninger om kundeforholdets formål og tilsiktede art.
Dersom slike kundetiltak ikke kan gjennomføres, kan megler ikke etablere kundeforholdet eller utføre transaksjonen.
Hvis kjøper ikke bidrar til gjennomføring av kundekontrollen og dette fører til at transaksjonen blir forsinket eller ikke kan gjennomføres, vil dette ansees som mislighold av avtalen og gi selger rettigheter etter avhendingslova kapittel 5. I tilfeller der selger ikke bidrar til gjennomføring av løpende kundekontroll underveis i oppdraget, er det selger som misligholder sine forpliktelser etter avtalen og gi kjøper rettigheter etter avhendingslovens kapittel 4. Partene er selv ansvarlige for eventuelle kostnader og ansvar dette kan medføre. Eiendomsmegleren eller eiendomsmeglingsforetaket kan ikke holdes ansvarlig for de konsekvenser dette vil kunne få for partene eller andre som har interesser i eiendomshandelen.
Kjøper oppfordres til å innbetale kjøpesummen som ikke kommer fra låneinstitusjon i én samlet innbetaling fra egen konto i norsk bank. Megler har plikt til å melde fra til Økokrim om eiendomshandler som fremstår som mistenkelige. Melding sendes Økokrim uten at partene varsles.
Personopplysningsloven
I henhold til personopplysningsloven gjør vi oppmerksom på at interessenter kan bli registrert for videre oppfølging.
Lovanvendelse
Generelle bestemmelser
Salgsoppgaven er basert på de opplysningene selger har gitt til megler, den bygningssakyndiges tilstandsrapport, samt opplysninger innhentet fra kommunen, Kartverket og andre tilgjengelige kilder. Det er viktig at kjøper setter seg grundig inn i alle salgsdokumentene, herunder salgsoppgave, tilstandsrapport og selgers egenerklæring. Kjøper anses kjent med forhold som er tydelig beskrevet i salgsdokumentene, og slike forhold kan ikke påberopes som mangler. Dette gjelder uavhengig av om kjøper har lest dokumentene. Alle interessenter oppfordres til å undersøke eiendommen nøye, gjerne sammen med fagkyndig før bud inngis. Kjøper som velger å kjøpe usett kan ikke gjøre gjeldende som mangel noe han burde blitt kjent med ved undersøkelsen.
Dersom det er behov for avklaringer, anbefaler vi at interessenter rådfører seg med eiendomsmegler eller egne rådgivere før det legges inn bud.
En bolig som har blitt brukt i en viss tid, har vanligvis blitt utsatt for slitasje og skader kan ha oppstått. Slik bruksslitasje må kjøper regne med, og det kan avdekkes enkelte forhold etter overtakelse som nødvendiggjør utbedringer. Normal slitasje og skader som nødvendiggjør utbedring, er innenfor hva kjøper må forvente og vil ikke utgjøre en mangel.
Kjøper og selgers rettigheter og plikter reguleres av avtalen mellom partene, samt informasjonen som har vært tilgjengelig for kjøperen i forbindelse med handelen. Avtalen utfylles av avhendingsloven, og det gjelder ulike avtalevilkår avhengig av om kjøper er forbrukerkjøper eller ikke. Dette er nærmere beskrevet nedenfor.
På grunn av ulike avtalevilkår kan selger vurdere bud fra en som ikke er forbruker, ulikt fra en forbrukers bud. Dersom kjøper ikke er forbruker, er selger sitt mulige mangelsansvar begrenset fordi eiendommen selges "som den er". Selger kan ikke ta «som den er»- forbehold overfor en forbrukerkjøper. Selv et lavere bud fra en som ikke er forbruker kan foretrekkes fordi begrensningen i mulig mangelsansvar kan ha egenverdi for selger. Selger står fritt til å forkaste eller akseptere ethvert bud, og er for eksempel ikke forpliktet til å akseptere høyeste bud.
Budgiver skal i budskjema avgi egenerklæring om budgiver er forbruker eller næringsdrivende/ person som hovedsakelig handler som ledd i næringsvirksomhet. Budgivere får informasjon dersom andre bud er inngitt av en som ikke er forbruker.
Forbrukerkjøp - definisjon
Med forbrukerkjøp menes kjøp av eiendom når kjøperen er en fysisk person som ikke hovedsakelig handler som ledd i næringsvirksomhet.
Forbruker – avtalevilkår
Eiendommen har en mangel dersom den ikke er i samsvar med kravene som følger av avtalen, eller det foreligger brudd på bestemmelsene i avhendingsloven §§ 3-2 til 3-8. Hvis eiendommen ikke er i samsvar med det kjøperen må kunne forvente ut ifra alder, type og synlig tilstand, kan det være grunnlag for mangelskrav. Det samme gjelder hvis det er holdt tilbake eller gitt uriktige opplysninger om eiendommen. Dette gjelder likevel bare dersom man kan gå ut ifra at det virket inn på avtalen at opplysningen ikke ble gitt eller at mangelskravet ikke blir rettet i tide på en tydelig måte.
Boligen kan ha en mangel etter avhendingsloven § 3-3 andre ledd, dersom det er avvik mellom opplyst og faktisk innvendig areal, forutsatt at avviket er på 2% eller mer og minimum 1 kvm.
Ved beregning av et eventuelt prisavslag eller erstatning må kjøper selv dekke tap/kostnader opptil et beløp på kr 10 000 (egenandel).
Ikke-forbruker (næringsdrivende) – definisjon
Hvis kjøper er en juridisk person, eller en fysisk person som hovedsakelig handler som ledd i næringsvirksomhet, vil kjøpet ikke anses som et forbrukerkjøp.
Ikke-forbruker – avtalevilkår
Eiendommen har en mangel dersom den ikke er i samsvar med kravene som følger av avtalen.
Eiendommen selges «som den er», og selgers ansvar utover det konkret avtalte er da begrenset etter avhendingsloven § 3-9, første ledd andre setning.
Avhendingsloven § 3-3 andre ledd fravikes, og hvorvidt boligens arealsvikt utgjør en mangel vurderes etter avhendingsloven § 3-8.
Informasjon om kjøpers undersøkelsesplikt, herunder oppfordringen om å undersøke eiendommen nøye, gjelder også for kjøpere som ikke anses som forbrukere.
Det forutsettes at hjemmel overføres til kjøper. Hvis kjøper ikke ønsker hjemmelsoverføring av eiendommen, må det tas forbehold om dette i budet.
Meglers vederlag
Meglers vederlag betales av selger og er avtalt til:
Vederlag: 0,80 % av salgssummen.
Vederlag:
Kontroll av hjemmel og heftelser kr 2 900,00
Markedsføringspakke kr 28 900,00
Oppgjør kr 7 500,00
Tilrettelegging kr 12 000,00
Utlegg:
Innhenting av offentlig opplysninger Stavanger kommune kr 3 120,00
Tinglysing sikring kr 545,00
Andre utgifter:
Foto kr 6 000,00
Vi er opptatt av verdiskapning, og har knyttet til oss samarbeidspartnere som skal sikre våre kunder de beste produkter og tjenester;
• I forbindelse med forberedelse av salget, innhenter vi informasjon om eiendommen hovedsakelig fra vår samarbeidspartner Amibita.
• Gjensidige leverer boligselgerforsikring og tilbyr bygningsforsikring
• Boligkjøperforsikring leveres av Hiscox og med Sedgwick som skadebehandler, og er formidlet gjennom Gjensidige.
• BN bank tilbyr finansieringsløsninger
• Vår avdeling Krogsveen Pluss tilbyr flyttetjenester som utvask, visningsvask, lager, tømming og transport av flyttelass, i tillegg til å formidle kontakt med Flip for overflateoppussing.
• I forbindelse med overtagelse av eiendommen tilbyr Overo avtale om strøm, alarm og bredbånd.
• Krogsveen er, sammen med øvrige bransjeaktører, medeier i Bomega AS som tilbyr den digitale annonseringsplattformen Hjem.
Opplysninger om oppdraget
Oppdragsnummer 35-0001/26
Eiendomsmegler Krogsveen AS, avd. Stavanger
Nedre Strandgate 41, 4005, STAVANGER
950007613
Oppdragets KR-kode KR35.261
Dato
Sist oppdatert: 19. mars 2026 kl. 17:54
Dokumenter
Dokumenter
PDF – 1008 KB
PDF – 2 MB
PDF – 1018 KB
PDF – 312 KB
PDF – 29 KB
PDF – 127 KB
PDF – 392 KB
Område
Legg til steder som er viktige for deg
Visning
For å delta på visning, ber vi om at du melder deg på. Da sikrer vi at du får nødvendig informasjon og at det er satt av tilstrekkelig med tid. Kontakt megler dersom annet tidspunkt ønskes. Husk å lese salgsoppgaven før visningen, så du stiller forberedt.
Ønsker du kun å bli holdt orientert, kan du fra eiendommens hjemmeside få varsel om solgtpris, eller kontakte megler.
Lurer du på noe?
Unngå doble boligrenter
Vi tilbyr gunstig forsikring.
Vurderer du utleie?
Få et tilbud fra Utleie KrogsveenHva koster lånet?
Sjekk estimert lånekostnadVil du varsles om lignende boliger?
Ved å lagre ditt boligsøk hos oss får du beskjed når vi har en bolig som ligner denne, før den legges ut på markedet!

