Rektor Berntsens gate 11B
3 490 000 kr
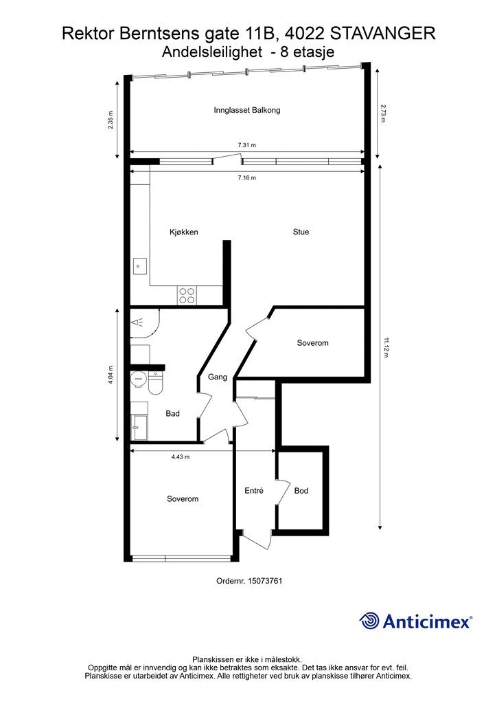
73 m²
1 soverom
Solgt

Presenteres av
Agnethe GoaLys og trivelig leilighet i populær boligblokk. Stor innglasset balkong og gode solforhold. Parkering. Heis.
Prisantydning
3 490 000 krAndel fellesgjeld
160 569 krOmkostninger
19 253 krTotalpris
3 669 822 kr
Pris
Bruksareal
94 m²BRA-I (internt bruksareal)
73 m²BRA-E (eksternt bruksareal)
2 m²
Areal
Etasje
8Byggeår
1973Soverom
1 soveromBad
1 badType
AndelsleilighetEierform
AndelFasiliteter
Heis og Balkong/TerrasseFellesutgifter
5 525 krEnergimerke
Rød E
Nøkkelinfo
Unngå doble boligrenter
Vi tilbyr gunstig forsikring.
Vurderer du utleie?
Få et tilbud fra Utleie KrogsveenHva koster lånet?
Sjekk estimert lånekostnadBeskrivelse
Kort om eiendommen
Velkommen til en romslig og stilren leilighet med store vindusflater og gjennomgående gode solforhold. Leiligheten ligger sentralt men tilbaketrukket i et rolig og etablert område.
Lys og fin leilighet med store vindusflater til flott utsikt.
God lagringsplass med bod inne i leiligheten og i kjeller.
Stort bad.
Heis.
Mulig å leie selskapslokalet til borettslaget.
Parkeringsplass utenfor blokken. Tilrettelagt for lading av el-bil.
Mulig å leie garasjeplass (venteliste etter ansiennitet).
Gangavstand til dagligvarebutikker, offentlig transport og turstier.
Umiddelbar nærhet til grøntområder, vann, sjø og flotte turområder langs Hafrsfjord.
Område
Legg til steder som er viktige for deg
På flyttefot? Tenk kjøp og salg samtidig.
Få din egen rådgiver gjennom hele kjøps- og salgsprosessen. Det starter med en verdivurdering.
Unngå doble boligrenter
Vi tilbyr gunstig forsikring.
Vurderer du utleie?
Få et tilbud fra Utleie KrogsveenHva koster lånet?
Sjekk estimert lånekostnadVil du varsles om lignende boliger?
Ved å lagre ditt boligsøk hos oss får du beskjed når vi har en bolig som ligner denne, før den legges ut på markedet!
På flyttefot? Slik gjør vi det enklere for deg
Skreddersydd flyttepakke
Vi fikser håndverkere, vask, pakking, lagring og transport, og legger ut for utgiftene underveis.
Hjelp med både kjøp og salg
Hos oss har du din egen rådgiver gjennom hele kjøps- og salgsprosessen.
Hjelp til finansiering
Vårt samarbeid med BN Bank sikrer deg rask og løsningsorientert hjelp, til konkurransedyktige betingelser.

