Brattvollveien 26D
10 450 000 kr
152 m²
4 soverom
Solgt
Nordstrand
Familievennlig og meget tiltalende enderekkehus. 4 soverom, 2 stuer og 2 bad. Flott privat hage. Carport og p-plass.
Prisantydning
10 450 000 krOmkostninger
282 240 krTotalpris
10 732 240 kr
Pris
Bruksareal
172 m²BRA-I (internt bruksareal)
152 m²BRA-E (eksternt bruksareal)
20 m²TBA (terrasse-balkongareal)
36 m²
Areal
Byggeår
1966Soverom
4 soveromBad
2 badTomteareal
434 m² (eiet)Type
RekkehusEierform
EietFasiliteter
Garasje/P-plass og Balkong/TerrasseEnergimerke
Oransje F
Nøkkelinfo
Unngå doble boligrenter
Vi tilbyr gunstig forsikring.
Vurderer du utleie?
Få et tilbud fra Utleie KrogsveenHva koster lånet?
Sjekk estimert lånekostnadBeskrivelse
Kort om eiendommen
Brattvollveien 26D er et attraktivt enderekkehus med barnevennlig beliggenhet innerst i en rolig, privat stikkvei. Sentralt beliggende med gangavstand til alt området har å by på bla. Munkerud skole, barnehager, kollektivtransport, matbutikker, servicetilbud og flotte rekreasjonsområder.
Lys og innbydende bolig – nymalt i 2025 i tidsmessige farger og nyslipte vakre gulv i 1. etasje. Huset er oppgradert de senere år med bla. etterisolering, ny kledning, byttet de fleste vinduer og nytt kjøkken i 2017.
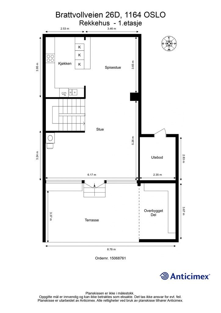
Boligen strekker seg over 3 plan og inneholder bla: entré, stue, spisestue og kjøkken i åpen løsning. 4 soverom, 2 bad, kjellerstue med peis, og god bodplass både inne og ute. Uteområdene er solrike og barnevennlige, med god plass til lek og sosiale soner. Carport og p-plass med elbilladere.
Område
Legg til steder som er viktige for deg
På flyttefot? Tenk kjøp og salg samtidig.
Få din egen rådgiver gjennom hele kjøps- og salgsprosessen. Det starter med en verdivurdering.
Unngå doble boligrenter
Vi tilbyr gunstig forsikring.
Vurderer du utleie?
Få et tilbud fra Utleie KrogsveenHva koster lånet?
Sjekk estimert lånekostnadVil du varsles om lignende boliger?
Ved å lagre ditt boligsøk hos oss får du beskjed når vi har en bolig som ligner denne, før den legges ut på markedet!




