Nordahl Rolfsens vei 23C
3 790 000 kr
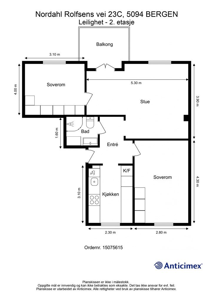
70 m²
2 soverom
Solgt

Presenteres av
Henriette MuriMeget flott og moderne leilighet med gode kvaliteter | Renovert i 2019 | Gode solforhold | Sentralt | Bybane
Prisantydning
3 790 000 krAndel fellesgjeld
374 726 krOmkostninger
17 610 krTotalpris
4 182 336 kr
Pris
Bruksareal
82 m²BRA-I (internt bruksareal)
70 m²BRA-E (eksternt bruksareal)
12 m²TBA (terrasse-balkongareal)
7 m²
Areal
Etasje
2Byggeår
1957Soverom
2 soveromBad
1 badType
AndelsleilighetEierform
AndelFasiliteter
Balkong/TerrasseFellesutgifter
6 872 krEnergimerke
Rød E
Nøkkelinfo
Unngå doble boligrenter
Vi tilbyr gunstig forsikring.
Vurderer du utleie?
Få et tilbud fra Utleie KrogsveenHva koster lånet?
Sjekk estimert lånekostnadBeskrivelse
Kort om eiendommen
Velkommen til Nordahl Rolfsens vei 23C! En meget sentral og moderne leilighet i et populært boområde på Landås/Sletten. Vestvendt plassering med solrik balkong og gangavstand til både buss og bybane.
Høydepunkter:
Hele leiligheten ble pusset opp i 2019 og holder en moderne standard
Romslig med god planløsning
Nytt bad i 2019, utført i regi av borettslaget
Strålende solforhold
Vestvendt balkong med ettermiddags- og kveldssol
Ulriken, Landåsfjellet og Nubbevannet i gangavstand
Sletten senter og bybanestopp like i nærheten
Rikelig med lagringsplass med 3 tilhørende boder
Område
Legg til steder som er viktige for deg
På flyttefot? Tenk kjøp og salg samtidig.
Få din egen rådgiver gjennom hele kjøps- og salgsprosessen. Det starter med en verdivurdering.
Unngå doble boligrenter
Vi tilbyr gunstig forsikring.
Vurderer du utleie?
Få et tilbud fra Utleie KrogsveenHva koster lånet?
Sjekk estimert lånekostnadVil du varsles om lignende boliger?
Ved å lagre ditt boligsøk hos oss får du beskjed når vi har en bolig som ligner denne, før den legges ut på markedet!
På flyttefot? Slik gjør vi det enklere for deg
Skreddersydd flyttepakke
Vi fikser håndverkere, vask, pakking, lagring og transport, og legger ut for utgiftene underveis.
Hjelp med både kjøp og salg
Hos oss har du din egen rådgiver gjennom hele kjøps- og salgsprosessen.
Hjelp til finansiering
Vårt samarbeid med BN Bank sikrer deg rask og løsningsorientert hjelp, til konkurransedyktige betingelser.

