Pegasusvegen 59
5 500 000 kr
129 m²
4 soverom
Solgt

Neskollen
Moderne og attraktiv enebolig med 4 soverom og 2 bad - Carport m/lader og solrik tomt - Innerst i blindveg
Prisantydning
5 500 000 krOmkostninger
158 490 krTotalpris
5 658 490 kr
Pris
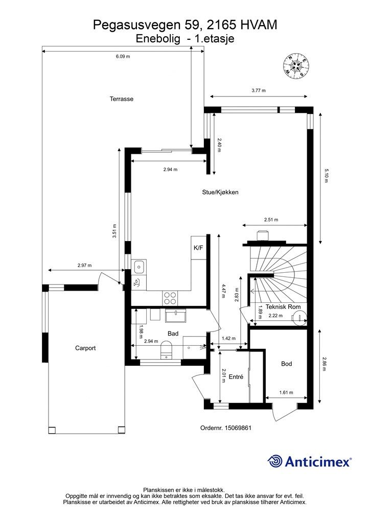
Bruksareal
134 m²BRA-I (internt bruksareal)
129 m²BRA-E (eksternt bruksareal)
5 m²TBA (terrasse-balkongareal)
48 m²
Areal
Etasje
2Byggeår
2015Soverom
4 soveromBad
2 badTomteareal
392 m² (eiet)Type
Enebolig - FrittliggendeEierform
EietFasiliteter
Garasje/P-plass og Balkong/TerrasseFellesutgifter
250 krEnergimerke
Gul B
Nøkkelinfo
Unngå doble boligrenter
Vi tilbyr gunstig forsikring.
Vurderer du utleie?
Få et tilbud fra Utleie KrogsveenHva koster lånet?
Sjekk estimert lånekostnadBeskrivelse
Kort om eiendommen
Pegasusvegen 59 er en tiltalende og moderne enebolig beliggende i et barnevennlig, veletablert og populært boområde på Neskollen. Det er kort vei til barnehager, skole, dagligvarebutikker og offentlig kommunikasjon. Fine tur- og rekreasjonsmuligheter i nærområdet. Parkering i carport m/ellader og på asfaltert gårdsplass.
Eiendommen har en god intern beliggenhet innerst i blindveg uten gjennomgangstrafikk. Solrik terrasse på ca. 40 kvm og skjermet hage som byr på ekstra boltreplass for familien.
Boligen kan skilte med bl.a. tiltalende stue med peisovn, pent kjøkken med delvis integrerte hvitevarer og spiseplass, ett bad i hver etasje og fire gode soverom, hvorav to har utgang til balkong. Luft-til-luft varmepumpe fra 2022.
God lagringsplass i to innvendige boder og en isolert utebod.
Område
Legg til steder som er viktige for deg
På flyttefot? Tenk kjøp og salg samtidig.
Få din egen rådgiver gjennom hele kjøps- og salgsprosessen. Det starter med en verdivurdering.
Unngå doble boligrenter
Vi tilbyr gunstig forsikring.
Vurderer du utleie?
Få et tilbud fra Utleie KrogsveenHva koster lånet?
Sjekk estimert lånekostnadVil du varsles om lignende boliger?
Ved å lagre ditt boligsøk hos oss får du beskjed når vi har en bolig som ligner denne, før den legges ut på markedet!

