Skallestadveien 27B
2 690 000 kr
86 m²
2 soverom
Komplett salgsoppgave

Nøtterøy/Skallestad
Praktisk og pen leilighet på bakkeplan med fin uteplass. Parkering v/døren.
Prisantydning
2 690 000 krAndel fellesgjeld
333 077 krOmkostninger
18 809 krTotalpris
3 041 886 kr
Pris
Bruksareal
90 m²BRA-I (internt bruksareal)
86 m²BRA-E (eksternt bruksareal)
4 m²TBA (terrasse-balkongareal)
20 m²
Areal
Etasje
1Byggeår
1992Soverom
2 soveromBad
1 badType
AndelsleilighetEierform
AndelFasiliteter
Balkong/TerrasseFellesutgifter
7 831 krEnergimerke
Gul E
Nøkkelinfo
Unngå doble boligrenter
Vi tilbyr gunstig forsikring.
Vurderer du utleie?
Få et tilbud fra Utleie KrogsveenHva koster lånet?
Sjekk estimert lånekostnadBeskrivelse
Kort om eiendommen
En hyggelig leilighet beliggende i 1. etasje med egen inngang og parkeringsmuligheter ved døren. Leiligheten har en fin planløsning og inneholder gang, to soverom, bad med opplegg for vaskemaskin, bod, stue og kjøkken med spiseplass. Fra stue/kjøkken del er det adkomst til en egen uteplass og hage. Pusset opp med b.la nyere gulv, flislagt vindfang, impregnert terrasse, varmepumpe, malt opp flatene, servantskap, speil og dusjarmatur, m.m
Velholdt borettslag hvor de senere år har byttet b.la takstein, beslag, inngangsdør, vasket og malt boligene og montert nytt ventilasjonsaggregat.
Beliggende i meget stille og rolige omgivelser med kort vei til skole, barnehager, MENY Skallestad, busstopp, sjø, båthavn samt flotte turområder både langs kysten og i skogen.
Velkommen til visning!
Innhold og byggemåte
Innhold og byggemåte
Eiendommen
Skallestadveien 27B, 3138 SKALLESTAD
Kommunenummer 3911, gårdsnummer 46, bruksnummer 338, ideell andel 1/1
Andelsnummer 14, Skallestad Borettslag, organisasjonsnummer 946 514 292
Innhold
Totalt bruksareal BRA: 90 kvm
BRA-i:
Leilighet i flermannsbolig:
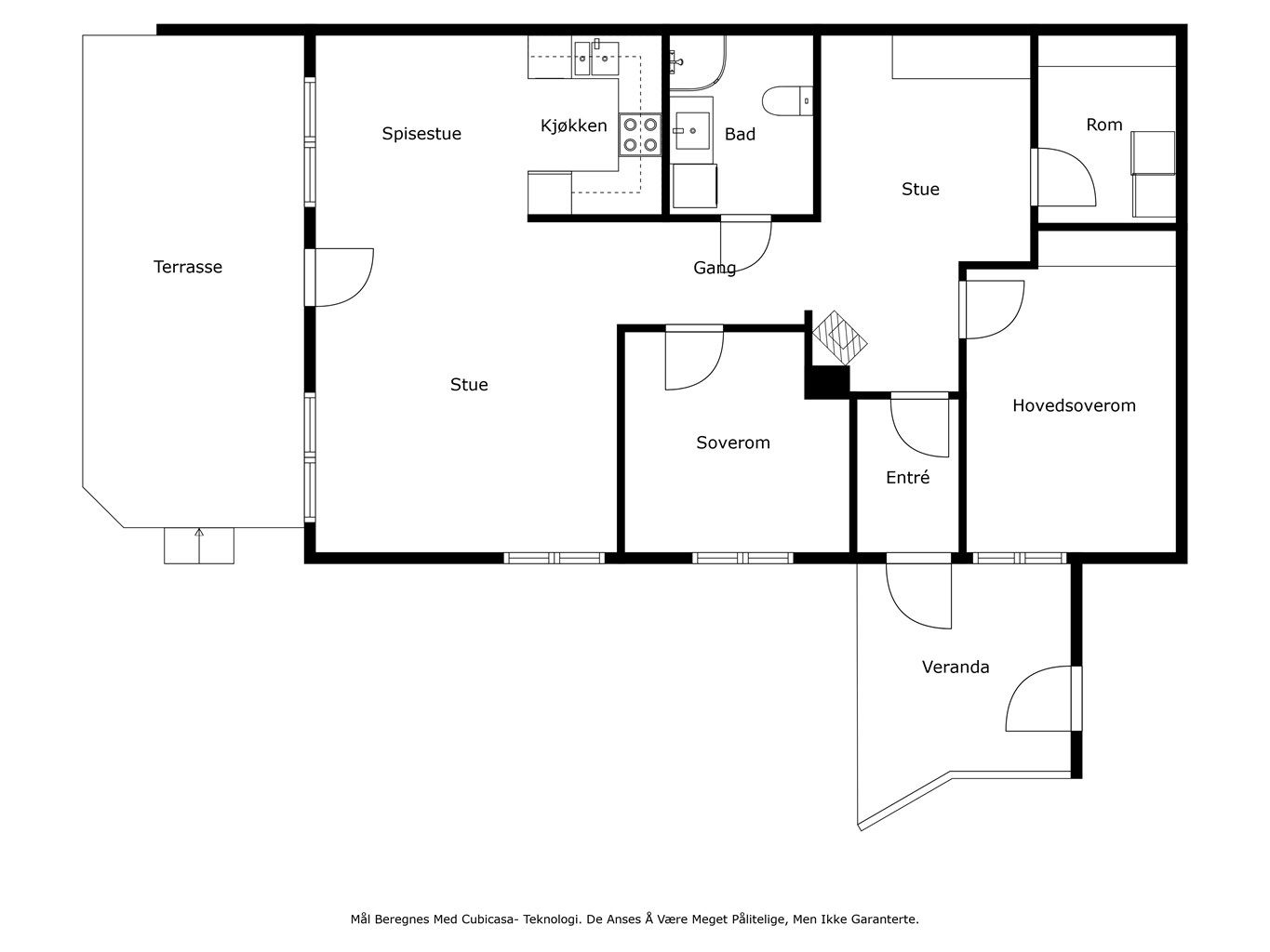
1. etasje 86 kvm: Entré, oppholdsrom/gang, stue/kjøkken, bad/vaskerom, soverom, soverom 2 og bod
BRA-e:
Leilighet i flermannsbolig:
1. etasje 4 kvm: Bod m/utvendig adkomst
Åpent areal:
Leilighet i flermannsbolig:
1. etasje 20 kvm: Terrasse
TBA er terrasse. BRA-e er bod ved inngangsparti. Det er tilbakefylt i bakkant, men tatt med som 1. etasje.
Vedlagte plantegninger er ikke målbare. De oppgitte arealer er hentet fra rapport med befaringsdato 03.09.2025 utført av Stokke Taksering AS. Arealene er beregnet og rom er definert etter dagens faktiske bruk, uavhengig av hva som er godkjent av bygningsmyndighetene.
Byggemåte
Selger har fått utarbeidet en tilstandsrapport, dvs. en teknisk gjennomgang av boligen hvor eventuelle avvik, risiko for kjøper og prisoverslag for hva som bør gjøres av oppgradering, er skissert. Se særskilt TGIU (tilstandsgrad ikke undersøkt), samt TG2 og TG3 som viser hva som er boligens normale slitasje, alder og type, hva som er avvik fra dette og hva som bør/må utbedres. Rapporten og selgers egenerklæring er en del av salgsoppgaven og må leses nøye før bud inngis. Kjøper overtar ansvaret for de opplysninger som fremkommer av salgsdokumentasjonen, og kan ikke gjøre gjeldende som mangel noe som burde vært kjent eller som ikke kan anses å ha betydning for avtalen.
Leilighet i 1. etasje med egen inngang i en flermannsbolig fra 1992 er iht. tilstandsrapporten oppført i tre og betong. Les for øvrig mer om byggemåte og den tekniske tilstanden i rapporten.
Det gjøres spesielt oppmerksom på:
TG 3 - Store eller alvorlige avvik:
- Bad/vaskerom: Våtrommet må oppgraderes for å tåle normal bruk etter dagens krav. Rommet har alder og utgått brukstid, men det ble ikke målt unormal fukt i dusjen, enn normalt med vann rett på flis. Det er flere skruehull etter eldre innredning, grodd silikonfuge og grodde flisfuger i dusjen og det ble ikke påvist oppkant membran på dørterskel. Ellers normal slitasje. Det ble målt 28 mm høydeforskjell og fall fra gulv ved dør til sluk i dusjen (tilfredsstillende fall i dusjen). Det ble ikke påvist membran/mansjett i sluk.
TG 2 - Avvik som kan kreve tiltak:
- Dører: Terrassedør har noen merker og småsår, men lukker bra mot karm. Noe slitt dør til boden, men lukker bra mot karm.
- Utvendige forhold: Det er ikke utarbeidet Tilstandsanalyserapport, vedlikeholdsplan e.l. for fellesdeler i bygget.
- Innvendig: Det er noe "knatring" i laminat mot dør til baderom og enkeltvis. Dette kan komme av at det er lagt trangt mot vegger. Det mangler et par lister mot dørterskler.
- Radon: Radonmålinger er ikke foretatt, heller ikke andre tiltak mot radon, eiendommen ligger i et område som i NGU Radon aktsomhetskart er definert med "moderat til lav" aktsomhetsgrad.
- Andre innvendige forhold: Det ble påvist saltutslag på grunnmur mot terreng etter fuktinntrengning.
- Vannledninger og avløpsrør: Mer enn halvparten av forventet brukstid er passert.
- Varmtvannstank: Det er ikke påvist tilfredsstillende el-tilkobling av varmtvannstank iht. gjeldende forskrift. Det er påvist at varmtvannstank er over 20 år.
- Elektrisk anlegg: Det foreligger ikke dokumentasjon på oppgradering etter 1999 iht. forskrifter. Og deler av anlegget har alder og elanlegg har også levetid. Det bør gjennomføres en utvidet el-kontroll av en kvalifisert elektrofaglig person. Takstmann er ikke fagmann på elanlegg.
- Overflater og innredning: Kjøkken fra byggeår med noen slitasjemerker og småsår. Men ikke mer enn alder tilsier. Det ble påvist tetting med stålull rundt rør/hull i benkeskap. Det ble ikke målt fukt på utsatte plasser.
Selger informerer i egenerklæring om følgende:
- Byttet servant og dusjarmatur av eiere som er rørlegger i 2023.
- Ble byttet tak på alle hus og på garasjene i 2024.
- Alle fasader ble vasket og malt i 2024.
- Ble montert varmekabel i yttergang av bekjent som er elektriker i 2024.
- Ble montert spottskinne i stue og gang av bekjent som er elektriker i 2024.
- Ble byttet ventilasjonsaggregat i 2024.
- Er noe sprekker på fliser på ene vegg på bad som var der når boligen ble kjøpt. Usikker på hva det har kommet av.
- Noe råte på kledning som har blitt byttet.
- Har vært maure på våren. Og skjeggkre på bad.
Skjeggkre kan ifølge skadedyrfirmaene bekjempes ved sanering av skadedyrfirmaer, bruk av limfeller samt regelmessig støvsuging/rengjøring. Kjøper overtar risikoen for dette forholdet. Konferer med megler for ytterligere informasjon.
Se supplerende og utfyllende tekst, herunder konsekvenser/tiltak, i tilstandsrapporten og selgers egenerklæring. Kjøper overtar ansvar og risiko for dette.
Moderniseringer og påkostninger
2024: Luft til luft varmepumpe i stue. Ny varmekabel og flis i entre. Spottskinne i stue og oppholdsrom.
2024: Oppgradering i regi av borettslaget: Ny taktekking og beslag, vasket og malt boligene, ny inngangsdør og ventilasjonsaggregat.
2023: Servantskap, speil og dusjarmatur på baderom. Impregnert terrasse. Malt opp leiligheten og laminat i stue/kjøkken, oppholdsrom og hovedsoverom.
Standard
Velkommen til en velholdt og tiltalende leilighet på bakkeplan i en solid flermannsbolig fra 1992. Leiligheten har gjennomgått flere oppgraderinger de siste årene, blant annet ny impregnert terrasse på ca. 20 m² med elektrisk markise, moderne luft-til-luft varmepumpe, varmekabler i entre og bad, ny flis og laminatgulv, malte flater, samt oppgradert baderom med nytt dusjarmatur, servantskap og speil. Den praktiske planløsningen gir et luftig og lyst allrom med vinduer fra to sider, åpen kjøkkenløsning og direkte utgang til terrassen. Kjøkkenet har lys innredning med profilerte fronter, laminat benkeplate og nyere kjøkkenventilator. Stuen har plass til både sofagruppe og spisebord, og varmes opp av både varmepumpe og peisovn – perfekt på kjølige dager. Leiligheten inneholder to romslige soverom, et delikat bad med dusjhjørne og vaskemaskinopplegg, innvendig bod, samt praktisk utvendig bod ved inngangspartiet. Med sin attraktive beliggenhet i 1. etasje, er dette en lettstelt og komfortabel bolig som passer for både unge, eldre og alle imellom. Oppvaskmaskin og komfyr/stekeovn medfølger, men det gjøres oppmerksom på at hvitevarene har noe alder og bruksslitasje må påregnes. Dette er en innbydende leilighet som bør oppleves – velkommen til visning!
Løsøre og tilbehør
Vi viser til liste fra Norges Eiendomsmeglerforbund som gjelder fra 01.01.2020 angående løsøre og tilbehør.
Taklampe over spisebord skal ikke følge med leiligheten.
Oppvarming
Luft til luft varmepumpe i stue, elektriske varmekabler på bad og i entré. Vedfyring. For øvrig elektrisk oppvarming.
Dersom beboelsesrom ikke har vegg- eller fastmonterte varmekilder ved visning, følger dette heller ikke med.
Ferdigattest/brukstillatelse
Det foreligger ikke ferdigattest på eiendommen, men midlertidig brukstillatelse ble gitt 15.12.1992 for Skallestadveien 27, 29 og 31. Tillatelsen er gitt på følgende vilkår: Ferdigmelding fra rørlegger.
Det er uklart om ferdigmeldingen er gitt. Kjøper overtar ansvaret for dette.
Det gjøres oppmerksom på at det ikke lenger utstedes ferdigattest på tiltak det er søkt om før 1998 jf. plan- og bygningsloven § 21-10. Kommunen vil ikke kreve ferdigattest for disse tiltakene og vil avvise eventuelle søknader. Bestemmelsen innebærer ikke at tiltak med manglende søknad blir lovlige, men at man ikke trenger å avslutte gamle byggesaker. Normalt sett kreves ferdigattest for alle søknadspliktige tiltak som gjøres etter plan- og bygningsloven.
Tinglyste heftelser og rettigheter
Utover andel fellesgjeld overdras leiligheten fri for pengeheftelser.
Borettslaget har legalpant for forfalte felleskostnader og andre krav som følger av borettslagsforholdet iht. burettslagsloven § 5-20. Pantet er begrenset oppad til 2G (G = folketrygdens grunnbeløp).
Det er ingen tinglyste servitutter på eiendommen.
Eventuell adgang til utleie
Andelseier kan ikke uten samtykke fra styret i borettslaget overlate bruken av boligen til andre. Med samtykke kan andelseier overlate boligen til andre i inntil tre år hvis andelseier har bodd i boligen i minst ett av de to siste år. Utleie i andre tilfeller kan godtas ved særlige grunner, jf. burettslagslova § 5-6. Utleie forutsetter at leiligheten har forsvarlige radonverdier. Se også borettslagets vedtekter og konferer megler ved spørsmål.
Diverse
Tilbud av produkter og tjenester fra våre samarbeidspartnere
Vi er opptatt av verdiskapning, og har knyttet til oss samarbeidspartnere som skal sikre våre kunder de beste produkter og tjenester;
• Gjensidige leverer boligselgerforsikring og tilbyr bygningsforsikring
• Boligkjøperforsikring leveres av Hiscox og med Sedgwick som skadebehandler, og er formidlet gjennom Gjensidige.
• BN bank tilbyr finansieringsløsninger
• Vår avdeling Krogsveen Pluss tilbyr flyttetjenester som utvask, visningsvask, lager, tømming og transport av flyttelass, i tillegg til å formidle kontakt med Flip for overflateoppussing.
• I forbindelse med overtagelse av eiendommen tilbyr Overo avtale om strøm, alarm og bredbånd.
• Krogsveen er, sammen med øvrige bransjeaktører, medeier i den digitale annonseringsplattformen Hjem.
Beliggenhet og tomteforhold
Beliggenhet og tomteforhold
Beliggenhet
Denne leiligheten ligger i et etablert og trivelig boområde på Nøtterøy, omgitt av natur, sjø og gode servicetilbud. Her bor du i barnevennlige omgivelser med kort vei til både sjø og skog – perfekt for rekreasjon og turer året rundt. Badeplasser og brygger ved Knarberg og Arås er lett tilgjengelige, mens stier og grøntområder gir flotte muligheter for friluftsliv rett utenfor døren.
For barnefamilier er nærheten til Oserød skole og flere barnehager i området et stort pluss. Skoleveien er trygg og oversiktlig, og gir en ekstra trygghet i hverdagen.
For par og voksne byr området på et rikt servicetilbud innen kort rekkevidde. På Skallestad finner du en stor Meny-butikk med post i butikk, mens Hjemseng tilbyr Kiwi og bensinstasjon – alt innen gangavstand. Med bil er du på Teie på få minutter, hvor Teie Torv tilbyr et hyggelig handelssentrum med caféer, restauranter, apotek, vinmonopol, spesialforretninger og mer.
På Borgheim finner du ytterligere servicetilbud, samt Nøtterøy Kulturhus, som byr på varierte arrangementer gjennom året – et sosialt og kulturelt samlingspunkt for alle aldersgrupper. For den aktive er det også kort vei til Nøtterøy Golfbane.
Adkomst
Fra Tønsberg by kjører man i retning Nøtterøy og Tjøme, Når man har passert Kanalbroa og kommer til lyskrysset i Nøtterøyveien/veidelet, tar man til venstre og følger Smidsrødveien over Teie torv og videre utover retning Årøysund. Etter ca. 6 km ta til høyre inn Skallestadveien ved Menyforretningen og fortsett veien innover ca. 400 m, ta deretter inn Roppestadkollen til høyre hvor parkeringsområdet til Skallestad borettslaget ligger på venstre side av veien (inntil Skallestadveien).
Det vil bli skiltet med Krogsveen visningsskilt ved fellesvisninger.
Barnehager, skoler og fritid
Oserød skole og Borgheim ungdomsskole. Det er flere barnehager i nærområde. Se forøvrig vedlagte nabolagsprofil.
Informasjon om tilhørende skolekretser er hentet fra Prognosesenteret som dataleverandør og tilhørigheten kan årlig endres av kommunen. Dersom skole- og barnehagetilbud er av betydning for kjøpet, ber vi om at det rettes en særskilt henvendelse til kommunen for oppdatert informasjon.
Beskrivelse av tomt
Eiertomt på ca. 6 164 kvm som tilhører borettslaget.
Parkering
Borettslaget har 10 garasjeplasser som tildeles etter venteliste. De som ønsker å stå på venteliste må søke styret om garasjeplass. Garasjeleie/administrasjonskostnader belastes etter gjeldende satser.
Borettslaget har ca. 23 parkeringsplasser på fellesområde, 16 av disse følger leilighet. Parkering er markert med leilighet nummer.
Vei, vann og avløp
Eiendommen har adkomst via privat vei med felles vedlikeholdsansvar for borettslaget.
Eiendommen er tilknyttet kommunalt ledningsnett via private stikkledninger.
Borettslaget er ansvarlig for private stikkledninger til bygningen.
Regulerings-og arealplaner
Eiendommen ligger i et område som i kommuneplanens arealdel datert 06.09.2023 er avsatt til:
Boligbebyggelse - Nåværende - 6164 kvm
byggegrenser, utbyggingsvolum og funksjonskrav - 6164 kvm
Ras- og skredfare - 3054 kvm
Eiendommen ligger i området regulert til Boliger i henhold til reguleringsplan; Hårkollen IV, datert 22.4.1977, Roppestadkollen, datert 21.05.2014 og Ny skole på Hårkollen-Oserød skole, datert 26.06.2002 med tilhørende reguleringsbestemmelser.
Utsnitt av plan med tilhørende bestemmelser kan fås ved henvendelse til megler.
Økonomi
Økonomi
Boligens kostnader
Felleskostnadene er kr 7 831,- pr. mnd. og inkluderer: Bygningsforsikring, kommunale avgifter, felles strøm, Tv-anlegg/bredbånd, forretningsfører og styrehonorarer mm. Se regnskap for uttømmende informasjon.
Felleskostnadene justeres normalt en til to ganger årlig i forhold til borettslagets faktiske utgifter og ble sist justert 01.01.2025.
Av felleskostande utgjør kapitalkostnadene kr 5 833,- og er basert på dagens lånebetingelser (flytende rente) og kan justeres ved renteendringer.
Oversikt over fordelingen av felleskostnadene foreligger ikke fra forretningsfører.
Nåværende eier har et strømforbruk på ca. 8500 kWh. pr. år.
Utgiftene er basert på nåværende eiers forbruk. Kjøper må selv tegne innboforsikring.
Formuesverdi
Formuesverdi for 2023 var kr 834 643,- ifølge skatteetaten. Beløpet forutsetter at eier bor fast i boligen (primærbolig).
Ved eventuell øvrig bruk av eiendommen (f.eks. fritidsbolig, pendlerbolig, utleieobjekt) var formuesverdien for 2023 kr 3 338 570,-.
Formuesverdien justeres normalt årlig. Se skatteetaten.no for mer informasjon om fastsettelse av formuesverdien.
Omkostninger
2 690 000,00 Prisantydning
333 077,00 Andel av fellesgjeld
--------------------------------------------------------
3 023 077,00 Pris inkl. fellesgjeld
Omkostninger
7 769,00 Gebyr forhåndsavklaring forkjøpsrett
9 950,00 Gjensidige Boligkjøperpakke (valgfri)
545,00 Tinglysing hjemmel
545,00 Tinglysing panterettsdokument
--------------------------------------------------------
18 809,00 Omkostninger totalt
--------------------------------------------------------
3 041 886,00 Totalpris inkl. omkostninger
--------------------------------------------------------
Dersom kjøper ikke er medlem av boligbyggelaget, må det påregnes en innmeldingsavgift og årlig medlemsgebyr pr. ny andelseier. Dette faktureres direkte fra boligbyggelaget.
Dersom borettslaget har fellesgjeld, vil leilighetens andel av fellesgjelden komme i tillegg til kjøpesummen. Denne gjelden skal ikke innbetales i oppgjøret, men følger leiligheten.
Det tas forbehold om endringer i avgifter og gebyrer.
Tilbud om lånefinansiering
Megler formidler gjerne kontakt med rådgiver hos vår samarbeidspartner BN Bank. De har konkurransedyktige betingelser samt rask og løsningsorientert behandling av din lånesøknad. Krogsveen mottar et honorar for denne formidlingen.
Betalingsbetingelser
Kjøpesum inkludert omkostninger, samt pantedokument tilknyttet eventuelt lån, skal være disponibelt hos megler 2 virkedager før overtagelsen.
Annen viktig informasjon
Annen viktig informasjon
Eier
Jonas Baker Strøm
Informasjon om forkjøpsrett
Leiligheten er tilknyttet Skallestad Borettslag. Borettslaget består av 26 leiligheter.
Forretningsfører er OBOS avd. Forkjøp, v/Nina Stenbakk tlf. 33 30 94 64.
Dugnad må påregnes.
Dyrehold er tillatt, det er tillatt å ha et dyr pr. husstand.
Det er planer om diverse arbeider på bygninger og anlegg i borettslaget.
Styrets årsrapport 2025: Styret har gjennomført følgende;
Gjennomført 2 dugnader med maling og div forefallende.
Utskifting av ventilasjon og i gang med en serviceavtale.
Skadedyrkontroll på maur- strødde med maurmiddel.
Fjernet hekker og satt opp levegger i forkant av malejobb.
Malt hus, gjerder, garasje, beiset bod.
Snekker som har underveis byttet råtten plank.
Bestilt nye husnr og montert.
Byttet tak på hus og garasje.
Utebelysning (lysstolper) er byttet og flere lamper blir montert, samt fjerne sikringsskap i trappeoppgang.
Infrastruktur til lading på øvre plan samt kontrakt med Fjordkraft for fakturering.
Vi har skiftet ut søppeldunker til nye.
Sørget for nye pulverapparat til alle via Humanvern, inkludert service avtale og planer om brannvern runde.
Byttet ytterdører med karmer.
Iht. burettslagslova kan man bare eie én andel i borettslaget. Kun fysiske personer kan være andelseiere.
Øvrige andelseiere i borettslaget og eventuelt medlemmer av boligbyggelaget har forkjøpsrett. Dersom boligen tas på forkjøpsrett løses kjøper fra avtalen.
For å dekke eventuell manglende innbetaling av fellesutgifter fra øvrige andelseiere, er borettslaget tilknyttet et sikringsfond gjennom OBOS. Dette innebærer at OBOS innbetaler samtlige felleskostnader til borettslaget hver måned og dermed overtar ansvar og risiko for eventuell inndrivelse av utestående fellesutgifter. Avtalen om sikringsfond gjennom OBOS er gyldig til den sies opp av en av partene. Oppsigelsesfrist er 12 måneder.
Dokumenter for borettslaget kan fås ved henvendelse til megler.
Konsesjon
Eiendommen er ikke konsesjonspliktig, men det er boplikt i Færder kommune. For at eiendommen skal kunne overskjøtes må kjøper derfor signere på egenerklæring om konsesjonsfrihet.
Overtakelse
Etter nærmere avtale. Overtakelse kan tidligst skje etter at forkjøpsretten for øvrige andelseiere i borettslaget og eventuelt medlemmer av boligbyggelaget er avklart, samt at styrets godkjennelse er avklart.
Boligselgerforsikring
Selger har i forbindelse med salget tegnet boligselgerforsikring levert av Gjensidige.
Boligselgerforsikringen dekker selgers ansvar etter avhendingsloven begrenset oppad til kr 14 millioner. Dersom kjøper oppdager forhold ved eiendommen som hen mener utgjør en mangel ved eiendommen, vil Gjensidige behandle reklamasjonen på vegne av selger. Forsikringsvilkår kan fås ved henvendelse til megler.
Vedlagt salgsoppgaven følger selgers egenerklæringsskjema og tilstandsrapport. Interessenter må sette seg inn i dokumentene før bud inngis.
Boligkjøperforsikring
Innen kontraktsmøtet må kjøper ta stilling til om det ønskes å bestille Boligkjøperpakken gjennom Gjensidige. I denne gunstige pakken er boligen ferdig forsikret og inkluderer rettshjelpsforsikring, også kalt Boligkjøperforsikring. Rettshjelpsforsikring gir trygghet og tilgang på profesjonell juridisk hjelp dersom det oppdages uventede feil eller mangler det første året etter overtagelse. Forsikringsselskapet behandler i så fall ethvert mangelskrav kjøper måtte ha overfor selger.
Boligkjøperpakken inkluderer bygningsforsikring for hus og hytte, innboforsikring, flytteforsikring og dobbel rentedekning - i situasjoner hvor kjøper ikke får solgt nåværende primærbolig.
Kjøper mottar ingen særskilt faktura for Boligkjøperpakken da kostnaden det første året legges til kjøpesummen for boligen. Det gjøres oppmerksom på Krogsveen mottar et honorar for denne formidlingen.
Produktark for Boligkjøperpakken ligger vedlagt i salgsoppgaven.
Dersom ikke boligkjøperpakke ønskes kan kun rettshjelpsforsikring, også kalt boligkjøperforsikring, tegnes særskilt via megler. Rettshjelpsforsikringen varer i 5 år fra overtagelse og leveres gjennom Gjensidige. Ta kontakt med megler for ytterligere informasjon.
Selskap og privatpersoner som driver med kjøp/salg/utvikling som ledd i egen næringsvirksomhet kan ikke tegne boligkjøperpakke eller rettshjelpsforsikring.
Budgivning
Forbrukerinformasjon om budgivning er vedlagt denne salgsoppgaven og er også på vår hjemmeside Krogsveen.no. Alle bud og budforhøyelser må inngis skriftlig. I tillegg må legitimasjon være fremlagt sammen med signatur fra budgiver.
Vi oppfordrer til å gi bud elektronisk via GI BUD-knappen på eiendommens hjemmeside på Krogsveen.no. Da vil samtlige vilkår bli oppfylt.
Eventuelle forhøyelser eller endringer av budet kan bekreftes pr SMS eller på e-post. Vi oppfordrer alltid til å kontakte megler pr. telefon i tillegg da forsinkelser i SMS og e-post kan forekomme.
For at budene skal kunne bli behandlet og videreformidlet skriftlig til alle involverte parter, må alle bud ha en tilstrekkelig lang akseptfrist, jf. eiendomsmeglingsforskriften § 6-3.
Selger må også skriftlig akseptere budet før aksept kan formidles til budgiver. Akseptfrist bør derfor være på minimum 30 minutter, og budforhøyelser må derfor skje i god tid før fristens utløp.
Bud i forbrukerforhold kan uansett ikke settes med kortere frist enn kl. 12.00 første virkedag etter siste annonserte visning. I tillegg kan ikke budet ha forbehold om at det skal holdes hemmelig ovenfor øvrige interessenter. Megler har iht lov om eiendomsmegling ikke anledning til å videreformidle disse budene, og de vil dermed heller ikke bli journalført.
Etter at eiendommen er solgt vil kjøper og selger få tilsendt budjournal. Øvrige budgivere kan få utlevert kopi av budjournalen i anonymisert form.
Hvitvaskingsreglene
I henhold til lov om hvitvasking og terrorfinansiering har megler plikt til å gjennomføre kontrolltiltak overfor kunder, herunder fullmektiger. Dette innebærer bl.a. å bekrefte kunders og reelle rettighetshaveres identitet på bakgrunn av fremvist gyldig legitimasjon eller på annen godkjent måte, samt å innhente opplysninger om kundeforholdets formål og tilsiktede art.
Dersom slike kundetiltak ikke kan gjennomføres, kan megler ikke etablere kundeforholdet eller utføre transaksjonen.
Hvis kjøper ikke bidrar til gjennomføring av kundekontrollen og dette fører til at transaksjonen blir forsinket eller ikke kan gjennomføres, vil dette ansees som mislighold av avtalen og gi selger rettigheter etter avhendingslova kapittel 5. I tilfeller der selger ikke bidrar til gjennomføring av løpende kundekontroll underveis i oppdraget, er det selger som misligholder sine forpliktelser etter avtalen og gi kjøper rettigheter etter avhendingslovens kapittel 4. Partene er selv ansvarlige for eventuelle kostnader og ansvar dette kan medføre. Eiendomsmegleren eller eiendomsmeglingsforetaket kan ikke holdes ansvarlig for de konsekvenser dette vil kunne få for partene eller andre som har interesser i eiendomshandelen.
Kjøper oppfordres til å innbetale kjøpesummen som ikke kommer fra låneinstitusjon i én samlet innbetaling fra egen konto i norsk bank. Megler har plikt til å melde fra til Økokrim om eiendomshandler som fremstår som mistenkelige. Melding sendes Økokrim uten at partene varsles.
Personopplysningsloven
I henhold til personopplysningsloven gjør vi oppmerksom på at interessenter kan bli registrert for videre oppfølging.
Lovanvendelse
Generelle bestemmelser
Salgsoppgaven er basert på de opplysningene selger har gitt til megler, den bygningssakyndiges tilstandsrapport, samt opplysninger innhentet fra kommunen, Kartverket og andre tilgjengelige kilder. Det er viktig at kjøper setter seg grundig inn i alle salgsdokumentene, herunder salgsoppgave, tilstandsrapport og selgers egenerklæring. Kjøper anses kjent med forhold som er tydelig beskrevet i salgsdokumentene, og slike forhold kan ikke påberopes som mangler. Dette gjelder uavhengig av om kjøper har lest dokumentene. Alle interessenter oppfordres til å undersøke eiendommen nøye, gjerne sammen med fagkyndig før bud inngis. Kjøper som velger å kjøpe usett kan ikke gjøre gjeldende som mangel noe han burde blitt kjent med ved undersøkelsen.
Dersom det er behov for avklaringer, anbefaler vi at interessenter rådfører seg med eiendomsmegler eller egne rådgivere før det legges inn bud.
En bolig som har blitt brukt i en viss tid, har vanligvis blitt utsatt for slitasje og skader kan ha oppstått. Slik bruksslitasje må kjøper regne med, og det kan avdekkes enkelte forhold etter overtakelse som nødvendiggjør utbedringer. Normal slitasje og skader som nødvendiggjør utbedring, er innenfor hva kjøper må forvente og vil ikke utgjøre en mangel.
Kjøper og selgers rettigheter og plikter reguleres av avtalen mellom partene, samt informasjonen som har vært tilgjengelig for kjøperen i forbindelse med handelen. Avtalen utfylles av avhendingsloven, og det gjelder ulike avtalevilkår avhengig av om kjøper er forbrukerkjøper eller ikke. Dette er nærmere beskrevet nedenfor.
På grunn av ulike avtalevilkår kan selger vurdere bud fra en som ikke er forbruker, ulikt fra en forbrukers bud. Dersom kjøper ikke er forbruker, er selger sitt mulige mangelsansvar begrenset fordi eiendommen selges "som den er". Selger kan ikke ta «som den er»- forbehold overfor en forbrukerkjøper. Selv et lavere bud fra en som ikke er forbruker kan foretrekkes fordi begrensningen i mulig mangelsansvar kan ha egenverdi for selger. Selger står fritt til å forkaste eller akseptere ethvert bud, og er for eksempel ikke forpliktet til å akseptere høyeste bud.
Budgiver skal i budskjema avgi egenerklæring om budgiver er forbruker eller næringsdrivende/ person som hovedsakelig handler som ledd i næringsvirksomhet. Budgivere får informasjon dersom andre bud er inngitt av en som ikke er forbruker.
Forbrukerkjøp - definisjon
Med forbrukerkjøp menes kjøp av eiendom når kjøperen er en fysisk person som ikke hovedsakelig handler som ledd i næringsvirksomhet.
Forbruker – avtalevilkår
Eiendommen har en mangel dersom den ikke er i samsvar med kravene som følger av avtalen, eller det foreligger brudd på bestemmelsene i avhendingsloven §§ 3-2 til 3-8. Hvis eiendommen ikke er i samsvar med det kjøperen må kunne forvente ut ifra alder, type og synlig tilstand, kan det være grunnlag for mangelskrav. Det samme gjelder hvis det er holdt tilbake eller gitt uriktige opplysninger om eiendommen. Dette gjelder likevel bare dersom man kan gå ut ifra at det virket inn på avtalen at opplysningen ikke ble gitt eller at mangelskravet ikke blir rettet i tide på en tydelig måte.
Boligen kan ha en mangel etter avhendingsloven § 3-3 andre ledd, dersom det er avvik mellom opplyst og faktisk innvendig areal, forutsatt at avviket er på 2% eller mer og minimum 1 kvm.
Ved beregning av et eventuelt prisavslag eller erstatning må kjøper selv dekke tap/kostnader opptil et beløp på kr 10 000 (egenandel).
Ikke-forbruker (næringsdrivende) – definisjon
Hvis kjøper er en juridisk person, eller en fysisk person som hovedsakelig handler som ledd i næringsvirksomhet, vil kjøpet ikke anses som et forbrukerkjøp.
Ikke-forbruker – avtalevilkår
Eiendommen har en mangel dersom den ikke er i samsvar med kravene som følger av avtalen.
Eiendommen selges «som den er», og selgers ansvar utover det konkret avtalte er da begrenset etter avhendingsloven § 3-9, første ledd andre setning.
Avhendingsloven § 3-3 andre ledd fravikes, og hvorvidt boligens arealsvikt utgjør en mangel vurderes etter avhendingsloven § 3-8.
Informasjon om kjøpers undersøkelsesplikt, herunder oppfordringen om å undersøke eiendommen nøye, gjelder også for kjøpere som ikke anses som forbrukere.
Det forutsettes at hjemmel overføres til kjøper. Hvis kjøper ikke ønsker hjemmelsoverføring av eiendommen, må det tas forbehold om dette i budet.
Meglers vederlag
Meglers vederlag betales av selger og er avtalt til:
Vederlag: kr 32.000,-
Vederlag:
Kontroll av hjemmel og heftelser kr 2 900,00
Markedsføringspakke kr 27 400,00
Oppgjør kr 7 500,00
Tilrettelegging kr 17 000,00
Visninger pr stk - Alle er inkl. (vanligvis kr 3.500 pr.stk) kr 0,00
Utlegg:
Eierskiftegebyr forretningsfører - OBOS kr 6 570,00
Innhenting av informasjon forretningsfører OBOS kr 4 038,00
Innhenting av offentlig opplysninger Færder kommune kr 3 500,00
Tinglysing sikring kr 545,00
Andre utgifter:
Fotopakke med drone kr 4 000,00
Opplysninger om oppdraget
Oppdragsnummer 21-0133/25
Eiendomsmegler Krogsveen AS, avd. Tønsberg
Torvgaten 6, 3110, TØNSBERG
NO 950 007 613 MVA
Oppdragets KR-kode KR21.25133
Dato
Sist oppdatert: 13. januar 2026 kl. 10:08
Dokumenter
Dokumenter
PDF – 946 KB
PDF – 3 MB
PDF – 4 MB
PDF – 225 KB
PDF – 312 KB
PDF – 29 KB
PDF – 127 KB
PDF – 392 KB
Område
Legg til steder som er viktige for deg
Visning
For å delta på visning, ber vi om at du melder deg på. Da sikrer vi at du får nødvendig informasjon og at det er satt av tilstrekkelig med tid. Kontakt megler dersom annet tidspunkt ønskes. Husk å lese salgsoppgaven før visningen, så du stiller forberedt. NB. Visning utgår dersom det ikke er noen påmeldte innen 2 timer før oppsatt visning.
Ønsker du kun å bli holdt orientert, kan du fra eiendommens hjemmeside få varsel om solgtpris, eller kontakte megler.
Lurer du på noe?
Unngå doble boligrenter
Vi tilbyr gunstig forsikring.
Vurderer du utleie?
Få et tilbud fra Utleie KrogsveenHva koster lånet?
Sjekk estimert lånekostnadVil du varsles om lignende boliger?
Ved å lagre ditt boligsøk hos oss får du beskjed når vi har en bolig som ligner denne, før den legges ut på markedet!

