Bølersvingen 18D
7 950 000 kr
117 m²
3 soverom
Solgt
Bøler/Ulsrud
Familievennlig rekkehus over 3 plan på bilfritt tun | Solrik veranda og vedovn | Kort vei til marka | Oppussing
Prisantydning
7 950 000 krAndel fellesgjeld
117 806 krOmkostninger
222 660 krTotalpris
8 290 466 kr
Pris
Bruksareal
117 m²BRA-I (internt bruksareal)
117 m²TBA (terrasse-balkongareal)
17 m²
Areal
Byggeår
1955Soverom
3 soveromBad
1 badTomteareal
93 m² (eiet)Type
RekkehusEierform
EietFasiliteter
Balkong/TerrasseFellesutgifter
4 078 krEnergimerke
Oransje F
Nøkkelinfo
Unngå doble boligrenter
Vi tilbyr gunstig forsikring.
Vurderer du utleie?
Få et tilbud fra Utleie KrogsveenHva koster lånet?
Sjekk estimert lånekostnadDette liker selger best ved boligen
Barnevennlig, kort avstand til bane/buss og matbutikk, sosialt nabolag, stille og rolig område.
Beskrivelse
Kort om eiendommen
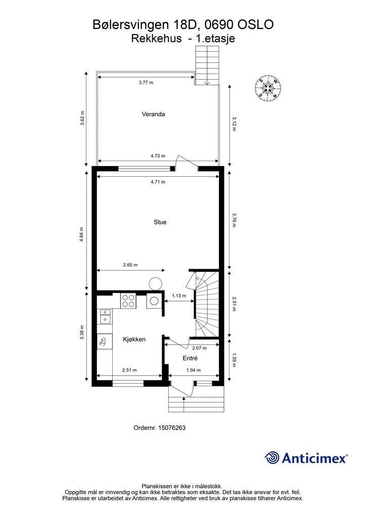
Innholdsrikt og trivelig rekkehus med svært barnevennlig beliggenhet på et rolig, bilfritt tun!
Fellesområdet har lekeplass, huske og sittegrupper – et trygt og sosialt miljø som passer perfekt for barnefamilien.
Verdt å fremheve:
- Praktisk planløsning
- Lys stue med vedovn og utgang til sydvestvendt veranda på 17 kvm
- Funksjonelt kjøkken med hyggelig spiseplass
- Tre romslige soverom på samme plan – hovedsoverom med fransk balkong
- Flislagt bad/WC, delvis oppgradert i 2022
- Vaskerom og god lagringsplass i kjeller
- Sikringsskap fra 2024 og varmtvannsbereder fra 2023
- Kort vei til Østmarka med flotte tur- og rekreasjonsmuligheter året rundt
- Gangavstand til kollektivtilbud, butikker, barnehager, skoler og fritidsaktiviteter.
Boligen har behov for tidsmessig oppgradering.
Område
Legg til steder som er viktige for deg
På flyttefot? Tenk kjøp og salg samtidig.
Få din egen rådgiver gjennom hele kjøps- og salgsprosessen. Det starter med en verdivurdering.
Unngå doble boligrenter
Vi tilbyr gunstig forsikring.
Vurderer du utleie?
Få et tilbud fra Utleie KrogsveenHva koster lånet?
Sjekk estimert lånekostnadVil du varsles om lignende boliger?
Ved å lagre ditt boligsøk hos oss får du beskjed når vi har en bolig som ligner denne, før den legges ut på markedet!




