Østenga 32
5 490 000 kr
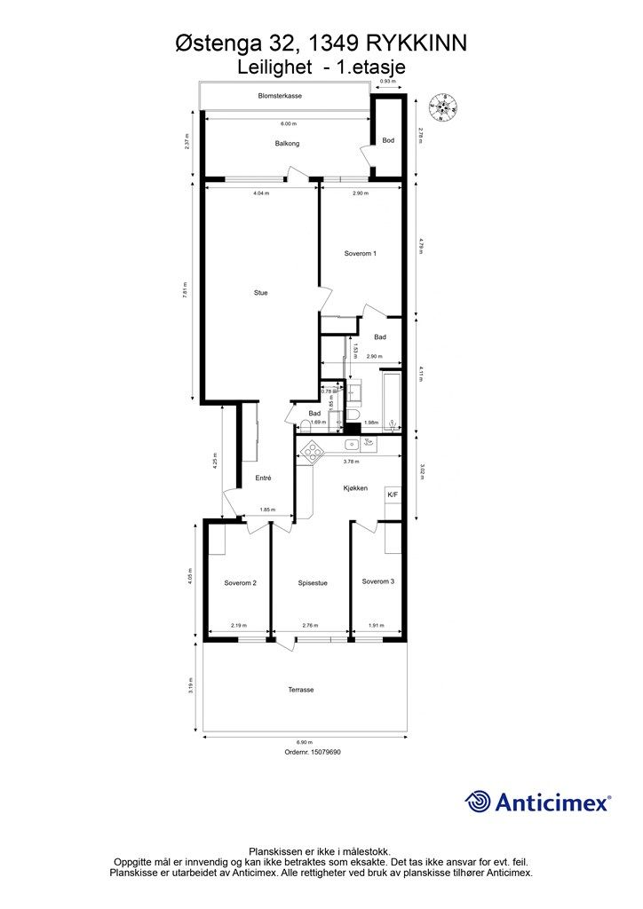
109 m²
3 soverom
Solgt

Øvre Rykkinn
Stor og attraktiv 4R selveier m/ trappefri adkomst -Flotte uteplasser -Mye sol og utsikt -2 bad -Garasjeplass -Oppussing
Prisantydning
5 490 000 krAndel fellesgjeld
76 747 krOmkostninger
150 190 krTotalpris
5 716 937 kr
Pris
Bruksareal
116 m²BRA-I (internt bruksareal)
109 m²BRA-E (eksternt bruksareal)
7 m²TBA (terrasse-balkongareal)
36 m²
Areal
Etasje
1Byggeår
1974Soverom
3 soveromBad
2 badType
EierleilighetEierform
EierseksjonFasiliteter
Garasje/P-plass og Balkong/TerrasseFellesutgifter
4 804 krEnergimerke
Gul D
Nøkkelinfo
Unngå doble boligrenter
Vi tilbyr gunstig forsikring.
Vurderer du utleie?
Få et tilbud fra Utleie KrogsveenHva koster lånet?
Sjekk estimert lånekostnadBeskrivelse
Kort om eiendommen
Velkommen til en gjennomgående og romslig 4-roms selveierleilighet beliggende i et barnevennlig og rolig boligområde på øvre Rykkinn. Leiligheten har et generelt oppussingsbehov og stort potensiale for dere som ønsker å skape et flott hjem med eget preg. Enkel, trappefri adkomst og en god planløsning bestående av entré, stue, stort kjøkken med spiseplass, tre gode soverom og to baderom. Videre kan leiligheten by på en stor nordvendt terrasse på 22 kvm med utgang fra kjøkken og en romslig sydvendt balkong på 14 kvm med utgang fra stuen. Balkongen har gode solforhold og nydelig utsikt. Det er en utebod på balkongen og én kjellerbod som tilhører leiligheten, samt én garasjeplass i felles garasjeanlegg. Velkommen til en flott leilighet som passer for alle aldersgrupper!
Område
Legg til steder som er viktige for deg
På flyttefot? Tenk kjøp og salg samtidig.
Få din egen rådgiver gjennom hele kjøps- og salgsprosessen. Det starter med en verdivurdering.
Unngå doble boligrenter
Vi tilbyr gunstig forsikring.
Vurderer du utleie?
Få et tilbud fra Utleie KrogsveenHva koster lånet?
Sjekk estimert lånekostnadVil du varsles om lignende boliger?
Ved å lagre ditt boligsøk hos oss får du beskjed når vi har en bolig som ligner denne, før den legges ut på markedet!
















































