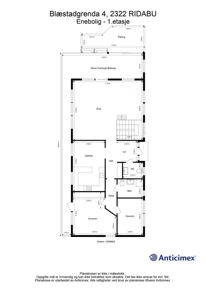
Blæstadgrenda 4
5 800 000 kr
309 m²
4 soverom
Solgt
Ridabu
Innholdsrik enebolig med flotte uteområder og barnevennlig beliggenhet på Vangli - Dobbelgarasje
Prisantydning
5 800 000 krOmkostninger
165 990 krTotalpris
5 965 990 kr
Pris
Bruksareal
309 m²BRA-I (internt bruksareal)
309 m²TBA (terrasse-balkongareal)
61 m²
Areal
Etasje
2Byggeår
1981Soverom
4 soveromBad
2 badTomteareal
1 386 m² (eiet)Type
Enebolig - FrittliggendeEierform
EietFasiliteter
Garasje/P-plass og Balkong/TerrasseEnergimerke
Lysegrønn D
Nøkkelinfo
Unngå doble boligrenter
Vi tilbyr gunstig forsikring.
Vurderer du utleie?
Få et tilbud fra Utleie KrogsveenHva koster lånet?
Sjekk estimert lånekostnadBeskrivelse
Kort om eiendommen
Velkommen til Blæstadgrenda 4!
Stor og gjennomtenkt enebolig over to plan med god planløsning og mange kvaliteter, både ute og inne. Romslig dobbelgarasje.
Boligen holder gjennomgående god standard og er godt vedlikeholdt over tid. Den inneholder blant annet fire soverom, to bad, badstue og to stuer.
Oppvarming med radiatorer og gulvvarme tilkoblet bergvarmepumpe som gir en energieffektiv og behagelig innetemperatur.
Eiendommen ligger i Vangli på Ridabu, en liten kjøretur fra Hamar bysentrum. Her bor man tilbaketrukket, men samtidig sentralt, med nærhet til barnehage, skole, butikk og bussholdeplass.
Området er skjermet og barnevennlig med tur og- friluftsområder i nærområdet. Gang- og sykkelvei helt inn til sentrum.
Velkommen til en hyggelig visning!
Område
Legg til steder som er viktige for deg
Meglere

Cathrin Nyhus Steen
Eiendomsmegler MNEF
På flyttefot? Tenk kjøp og salg samtidig.
Få din egen rådgiver gjennom hele kjøps- og salgsprosessen. Det starter med en verdivurdering.
Unngå doble boligrenter
Vi tilbyr gunstig forsikring.
Vurderer du utleie?
Få et tilbud fra Utleie KrogsveenHva koster lånet?
Sjekk estimert lånekostnadVil du varsles om lignende boliger?
Ved å lagre ditt boligsøk hos oss får du beskjed når vi har en bolig som ligner denne, før den legges ut på markedet!



