Kjørholtvegen 71
2 290 000 kr
212 m²
5 soverom
Komplett salgsoppgave

Heistad/Kjørholt
Stor og innbydende halvpart av tomannsbolig beliggende i barnevennlig og landlige omgivelser! 5 sov - garasje - solrikt
Prisantydning
2 290 000 krOmkostninger
78 240 krTotalpris
2 368 240 kr
Pris
Bruksareal
249 m²BRA-I (internt bruksareal)
212 m²BRA-E (eksternt bruksareal)
37 m²TBA (terrasse-balkongareal)
89 m²
Areal
Etasje
3Byggeår
1948Soverom
5 soveromBad
1 badTomteareal
652 m² (eiet)Type
Halvpart vertikaldelt boligEierform
EietFasiliteter
Garasje/P-plass og Balkong/TerrasseEnergimerke
Oransje G
Nøkkelinfo
Unngå doble boligrenter
Vi tilbyr gunstig forsikring.
Vurderer du utleie?
Få et tilbud fra Utleie KrogsveenHva koster lånet?
Sjekk estimert lånekostnadBeskrivelse
Kort om eiendommen
Velkommen til Kjørholtvegen 71!
En god og romslig halvpart av tomannsbolig, beliggende i et landlig og barnevennlig område.
Huset byr på en praktisk planløsning med fem soverom, store vindusflater og lyse, trivelige rom. Hovedplanet har stue, spisestue og kjøkken i delvis åpen løsning, med peis som skaper en lun atmosfære, samt ekstra stue/soverom.
I andre etasje finner du fire soverom og et lyst flislagt bad.
Underetasjen har boder, vaskerom, wc og kontor.
Ute venter romslige terrasser med gode solforhold og dobbel garasje. Nær flotte turområder samt butikker og andre servicetilbud på Heistad så alt familien trenger ligger i nærheten.
Velkommen til en hyggelig visning og velkommen hjem.
Innhold og byggemåte
Innhold og byggemåte
Eiendommen
Kjørholtvegen 71, 3940 PORSGRUNN
Kommunenummer 4001, gårdsnummer 73, bruksnummer 25, ideell andel 1/1
Innhold
Totalt bruksareal BRA: 249 kvm
BRA-i:
Bolig:
-1. etasje 56 kvm: Gang, kontor, toalettrom, vaskekjeller og tre boder.
1. etasje 81 kvm: Entre, gang, kjøkken, soverom, spisestue og stue.
2. etasje 62 kvm: Gang, bad og fire soverom.
3. etasje 13 kvm: Uinnredet rom
BRA-e:
Garasje:
1. etasje 37 kvm: Garasjerom
Åpent areal:
Bolig:
1. etasje 89 kvm: To terrasser. 13 m2 og 76 m2.
Loft har et totalt gulvareal (GUA) på 64 m2, men grunnet skråtak/lav takhøyde er kun 13 m2 av arealet måleverdig som bruksareal. De delene av arealene som har lav himlingshøyde (ALH) utgjør 51 m2.
Areal på loft er medregnet i boligens BRA selv om det ikke er fysisk skille mellom naboleilighet.
Vedlagte plantegninger er ikke målbare. De oppgitte arealer er hentet fra rapport med befaringsdato 30.10.2025 utført av Anticimex Sandefjord AS. Arealene er beregnet og rom er definert etter dagens faktiske bruk, uavhengig av hva som er godkjent av bygningsmyndighetene.
Se punkt om ferdigattest
Byggemåte
Selger har fått utarbeidet en tilstandsrapport, dvs. en teknisk gjennomgang av boligen hvor eventuelle avvik, risiko for kjøper og prisoverslag for hva som bør gjøres av oppgradering, er skissert. Se særskilt TGIU (tilstandsgrad ikke undersøkt), samt TG2 og TG3 som viser hva som er boligens normale slitasje, alder og type, hva som er avvik fra dette og hva som bør/må utbedres. Rapporten og selgers egenerklæring er en del av salgsoppgaven og må leses nøye før bud inngis. Kjøper overtar ansvaret for de opplysninger som fremkommer av salgsdokumentasjonen, og kan ikke gjøre gjeldende som mangel noe som burde vært kjent eller som ikke kan anses å ha betydning for avtalen.
Bygningen er iht. tilstandsrapporten oppført med grunnmur av mur-/betongkonstruksjon og gulv mot grunn av betong. Etasjeskillere av trekonstruksjoner. Yttervegger i trekonstruksjon med utvendig stående trekledning. Yttertak med saltaksform av trekonstruksjon tekket med takstein og papp. Ytterdør med profilert flate og glassfelt. Vinduer og terrasse-/balkongdører med karmer/rammer av tre med to- og tre-lags glass. Oppvarming med elektrisitet og vedfyring. Luft-til-luft varmepumpe. Naturlig ventilasjon i kombinasjon med mekanisk avtrekk på kjøkken og bad.
Oppgraderinger:
- Begge terrassedører byttet 2025
- Nytt vindu 1 soverom 2.etg 2025
Det gjøres spesielt oppmerksom på boligens tg2 utover alder og slitasje:
Tg2:
- Bad: Helhetsvurdering Tg2 (se tilstandsrapport for fullstendig informasjon)
- Kjøkken: Svelleskader i benkeplate og i skap under vask.
- Toalettrom: Drenering fra innebygget sisterne er ikke registrert. Det registreres bomlyd (tegn til hulrom) under enkelte gulvfliser.
- Øvrige rom: Ventilasjonen bør utbedres, Laminat har stedvis sprekker mot vegger og dører. Manglende lister. Løse og sprekte fliser ved pipe i 1.etasje. Enkelte innerdører har slitasje og kontakt med dørterskel/dørkarm, noe som gjør at dørene henger når de åpnes og lukkes.
- Loft: Helhetsvurdering TG2 (se tilstandsrapport for fullstendig informasjon)
- Ildsted: Sprekt brannplater inne i ildsted bør byttes.
- innvendig trapper: Trappene har ingen håndløpere og åpninger på mer enn 10 cm. Målt til ca. 14 cm i trapp til 2.etasje. Trapp til kjeller har i tillegg stedvis fri ganghøyde lavere enn 2,0 m.
- Etasjeskiller: Det er noen målbare skjevheter i boligen. Forskjellen mellom høyeste og laveste punkt i rommet er målt til 20 mm i soverom mot sørvest, 12 mm i soverom 1.etasje. Målingene er foretatt i en eldre bygning og bør ses i den sammenheng.
- Radon: Det er ukjent om det er foretatt radonmålinger i boligen og verdien er derfor ukjent.
- Elektrisk anlegg: Varmtvannsbereder har ikke fast tilkobling, men er koblet med stikkontakt. Det er kun fremlagt samsvarserklæring på deler av utførte arbeider på det elektriske anlegget.
- Yttervegger: Helhetsvurdering TG2 (se tilstandsrapport for fullstendig informasjon)
- Yttertak: Helhetsvurdering TG2 (se tilstnadsrapport for fullstendig informasjon)
- Terrasser: Stedvis manglende rekkverk ved inngangsparti. Rekkverkshøyden er under 1,0 meter. Avvik fra dagens byggteknisk forskrift. Terrasser har slitasjer. Svikt i gulv. Skyldes underdimensjonering. Skjevheter i konstruksjonen/fundamenter.
- Grunnmur: Det registreres slitasje og avflassing og stedvis riss/sprekker på grunnmur.
- Garasje: Overflater og garasjedør/-port har slitasje. Råteskader i takutstikk.
TG3:
- Toalettrom: Ingen ventilasjon. Mekanisk avtrekk bør etableres.
- Øvrige rom: Tidligere balkong er fjernet. Dør fra soverom må fysisk sikres slik at den ikke kan åpnes. Bruk av låsebryter er ikke tilstrekkelig for at døren skal sikres.
- Rom under terreng: Helhetsvurdering TG3 (se tilstandsrapport for fullstendig informasjon)
- ildsted: Det er ikke etablert ubrennbar plate på gulv under ildsted. Ubrennbar plate må etableres.
- Elektrisk anlegg: Manglende deksel på koblinger på loft. Berøringsfare. Forholdet må utbedres av fagperson. Enkelte arbeider har ufagmessige utførelser.
- Drenering: Helhetsvurdering TG3: 8se tilstandsrapport for fullstendig informasjon)
Se supplerende tekst i tilstandsrapporten og selgers egenerklæring om boligen. Kjøper overtar ansvar og risiko for dette.
Selger informerer også at det er tatt noen mus i feller den siste tiden.
Standard
Kort fortalt
- Familiebolig i landlig og barnevennlig område
- Praktisk planløsning med 5 soverom
- Fine turområder i umiddelbar nærhet
- Kjøkken fra 2009
- Flislagt bad
- Store fine uteplasser med gode solforhold
- Dobbel garasje
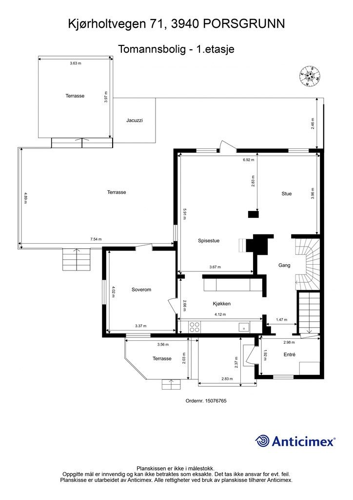
1.etg/Hovedplan
I boligens hovedetasje finner du et lyst og trivelig oppholdsrom med stue, spisestue og kjøkken i tilknytning med delvis åpen løsning – perfekt for familieliv og sosiale sammenkomster. Stuen er fint oppdelt i flere soner for både sittestue og spisestue med en peis midt mellom som gir god og lun varme til hele stuen.
I tillegg rommer etasjen en entré med god plass til oppbevaring, samt en ekstra stue som også kan benyttes som soverom, TV-rom eller hjemmekontor.
Fra stuen er det utgang til en stor og hyggelig uteplass med gode solforhold, her er det plass til flere sittegrupper.
2. etasje
Her finner du fire gode soverom, gang og et lyst og flislagt bad. Soverommene byr på god plass til både seng og garderobe, og etasjen fungerer som en egen privat sone for familien. Badet er i flislagt lys utførelse med varmekabler i gulv. Innredet med dusjkabinett, vegghengt toalett og dobbel servant i innredning med overspeil.
Underetasje
Underetasjen inneholder tre boder med rikelig lagringsplass, vaskerom, separat toalett og et kontor – perfekt for hjemmekontor, hobbyrom eller ekstra gjesterom.
Boligen holder en generelt standard med noen oppgraderingsbehov, lyse overflater, god romfølelse og praktiske løsninger. Her får du en bolig som kombinerer funksjonalitet, komfort og beliggenhet på en svært god måte.
Velkommen til visning og velkommen hjem!
Løsøre og tilbehør
Vi viser til liste fra Norges Eiendomsmeglerforbund som gjelder fra 01.01.2020 angående løsøre og tilbehør. Kjøleskap og oppvaskmaskin på kjøkkenet medfølger. Jacuzzi medfølger men eier informerer om at det er en lekkasje i en av dysene som bør fikses før bruk
Oppvarming
Boligen er oppvarmet via peisovn i stue, varmepumpe og ellers elektrisk oppvarming via varmekabler og panelovner
Dersom beboelsesrom ikke har vegg- eller fastmonterte varmekilder ved visning, følger dette heller ikke med.
Ferdigattest/brukstillatelse
Eiendommen har vært brukt til boligformål siden byggeår.
Kommunen opplyser at det ikke foreligger ferdigattest eller midlertidig brukstillatelse for eiendommen. Det finnes av den grunn ikke dokumentasjon over eiendommens lovlighet. kommunen har godkjent tilbygg kjøkken datert 24.11.2003 med tilhørende tegninger og oppføring av dobbel garasje datert 11.10.1982 med tilhørende tegninger. Det foreligger ikke originale byggetegninger fra byggeår og rommene i dag er innredet til det faktiske bruk uavhengig av hva som var godkjent ved byggeår.
Det gjøres oppmerksom på at det ikke lenger utstedes ferdigattest på tiltak det er søkt om før 1998 jf. plan- og bygningsloven § 21-10. Kommunen vil ikke kreve ferdigattest for disse tiltakene og vil avvise eventuelle søknader. Bestemmelsen innebærer ikke at tiltak med manglende søknad blir lovlige, men at man ikke trenger å avslutte gamle byggesaker. Normalt sett kreves ferdigattest for alle søknadspliktige tiltak som gjøres etter plan- og bygningsloven.
Kjøper overtar eiendommen slik den fremstår på visning med risiko og ansvaret for eventuelle pålegg fra kommunen forbundet med dette.
Tinglyste heftelser og rettigheter
Eiendommen overdras fri for pengeheftelser.
Det er ingen tinglyste servitutter på eiendommen.
Eventuell adgang til utleie
Eiendommen har ikke separat utleieenhet. Det vil normalt være anledning til utleie av hele eiendommen eller enkeltrom, såfremt utleiearealet er bygningsmessig godkjent for varig opphold og har forsvarlige radonnivåer.
Boligen er i dag utleid på korttidsleie frem til 1 juni for 11.500,- pr mnd ink internett.
Beliggenhet og tomteforhold
Beliggenhet og tomteforhold
Beliggenhet
Denne eiendommen har en fredelig beliggenhet i vakre, grønne omgivelser på Kjørholt, omgitt av landlig natur som gir en avslappende og skjermet atmosfære. Her kan du nyte lange, solrike dager takket være eiendommens gunstige plassering, med lite innsyn fra naboer.
Boligen er omkranset av en velstelt hage med plen både på fremsiden og baksiden. På sørvendt side finner du en romslig terrasse som innbyr til både avslapning og sosiale sammenkomster i solfylte omgivelser.
Nabolaget er stille og trygt, ideelt for barnefamilier, med kort vei til flotte turområder, skogsstier og naturopplevelser rett utenfor døra. Enten du foretrekker rolige spaserturer eller mer aktive utflukter, finnes det gode muligheter for friluftsliv i nærheten.
Til tross for den landlige følelsen, ligger Heistad ''sentrum'' kun en kort kjøretur unna. Der finner du nødvendige fasiliteter som dagligvarebutikk, apotek, skole, barnehage og ikke minst sjøen, som byr på både rekreasjon og badeglede i sommerhalvåret.
Adkomst
Veibeskrivelse Se Google maps - det er enkelt å finne frem i kartet.
Det vil bli skiltet med Krogsveen visningsskilt ved fellesvisninger.
Barnehager, skoler og fritid
Heistad barneskole, Heistad Ungdomsskole og flere barnehager i område. Dersom skole- og barnehagetilbud er av betydning for kjøpet, ber vi om at det rettes en særskilt henvendelse til kommunen for oppdatert informasjon.
Beskrivelse av tomt
Eiertomt på 652 kvm. Tomten er solrik med flere uteplasser og plenområder både på fremsiden og baksiden av boligen. Ellers er det diverse beplantning med hekker og prydbusker.
Parkering
Parkering i romslig dobbel garasje på ca 40 kvm eller på gruset gårdsplass
Vei, vann og avløp
Eiendommen har adkomst via privat vei med felles vedlikeholdsansvar.
Boligen er tilknyttet Slamavskiller med tømming hvert 2. år.
Eiendommen er tilknyttet kommunalt ledningsnett via private stikkledninger. Eier er selv ansvarlig for private stikkledninger til boligen.
Regulerings-og arealplaner
Eiendommen ligger i et uregulert område, men er i kommuneplan datert 23.06.2019 er avsatt til: Boligbebyggelse
Kommunedelplan - E18 Langangen - Bamble (3.9.2015)
Hensyn landskap Kommuneplanens arealdel 2018-2030 (13.6.2019)
Utsnitt av plan med tilhørende bestemmelser kan fås ved henvendelse til megler.
Økonomi
Økonomi
Kommunale utgifter
Kommunale avgifter er kr 14.688,- for inneværende år. I dette inngår gebyr for vann, tømming av slam, renovasjon og feiing/tilsyn.
Nåværende eier har ikke bebodd eiendommen, forventet strømforbruk på denne type bolig tilsvarer ca. 15-20 tusen kwh. pr. år. ( kan variere fra antall beboere og forbruk)
Boligen har en årlig forsikringspremie på kr 14.400,- (ink utleieforsikring)
Eiendommen har privat brøyting, kostnad kan variere utifra snømengde.
Boligen er tilknyttet Telia som leverandør av trådløst bredbånd med tv/internett . Tv-tuner/dekoder medfølger ikke.
Utgiftene er basert på nåværende eiers forbruk og avtaler.
Formuesverdi
Formuesverdi for 2023 var kr 565 939,- ifølge skatteetaten. Beløpet forutsetter at eier bor fast i boligen (primærbolig).
Ved eventuell øvrig bruk av eiendommen (f.eks. fritidsbolig, pendlerbolig, utleieobjekt) var formuesverdien for 2023 kr 2 263 757,-
Formuesverdien justeres normalt årlig. Se skatteetaten.no for mer informasjon om fastsettelse av formuesverdien.
Eiendomsskatt
Eiendomsskatten utgjør kr. 1536 pr år.
Omkostninger
2 290 000,00 Prisantydning
Omkostninger
57 250,00 Dokumentavgift til staten (2,5% av kjøpesum)
19 900,00 Gjensidige Boligkjøperpakke (valgfri)* (valgfritt)
545,00 Tinglysing panterettsdokument
545,00 Tinglysing skjøte
--------------------------------------------------------
58 340,00 Omkostninger totalt (uten Gjensidige Boligkjøperpakke (valgfri))
78 240,00 Omkostninger totalt (med Gjensidige Boligkjøperpakke (valgfri))
--------------------------------------------------------
2 348 340,00 Totalpris inkl. omkostninger
2 368 240,00 Totalpris inkl. omkostninger (med Gjensidige Boligkjøperpakke (valgfri))
--------------------------------------------------------
Tilbud om lånefinansiering
Megler formidler gjerne kontakt med rådgiver hos vår samarbeidspartner BN Bank. De har konkurransedyktige betingelser samt rask og løsningsorientert behandling av din lånesøknad. Krogsveen mottar et honorar for denne formidlingen.
Annen viktig informasjon
Annen viktig informasjon
Eier
Ebba Margareta Solberg og Mikkel Solberg
Overtakelse
Etter nærmere avtale.
Boligselgerforsikring
Selger har i forbindelse med salget tegnet boligselgerforsikring levert av Gjensidige.
Boligselgerforsikringen dekker selgers ansvar etter avhendingsloven begrenset oppad til kr 14 millioner. Dersom kjøper oppdager forhold ved eiendommen som hen mener utgjør en mangel ved eiendommen, vil Gjensidige behandle reklamasjonen på vegne av selger. Forsikringsvilkår kan fås ved henvendelse til megler.
Vedlagt salgsoppgaven følger selgers egenerklæringsskjema og tilstandsrapport. Interessenter må sette seg inn i dokumentene før bud inngis.
Boligkjøperforsikring
Innen kontraktsmøtet må kjøper ta stilling til om det ønskes å bestille Boligkjøperpakken gjennom Gjensidige. I denne gunstige pakken er boligen ferdig forsikret og inkluderer rettshjelpsforsikring, også kalt Boligkjøperforsikring. Rettshjelpsforsikring gir trygghet og tilgang på profesjonell juridisk hjelp dersom det oppdages uventede feil eller mangler det første året etter overtagelse. Forsikringsselskapet behandler i så fall ethvert mangelskrav kjøper måtte ha overfor selger.
Boligkjøperpakken inkluderer bygningsforsikring for hus og hytte, innboforsikring, flytteforsikring og dobbel rentedekning - i situasjoner hvor kjøper ikke får solgt nåværende primærbolig.
Kjøper mottar ingen særskilt faktura for Boligkjøperpakken da kostnaden det første året legges til kjøpesummen for boligen. Det gjøres oppmerksom på Krogsveen mottar et honorar for denne formidlingen.
Produktark for Boligkjøperpakken ligger vedlagt i salgsoppgaven.
Dersom ikke boligkjøperpakke ønskes kan kun rettshjelpsforsikring, også kalt boligkjøperforsikring, tegnes særskilt via megler. Rettshjelpsforsikringen varer i 5 år fra overtagelse og leveres gjennom Gjensidige. Ta kontakt med megler for ytterligere informasjon.
Selskap og privatpersoner som driver med kjøp/salg/utvikling som ledd i egen næringsvirksomhet kan ikke tegne boligkjøperpakke eller rettshjelpsforsikring.
Budgivning
Forbrukerinformasjon om budgivning er vedlagt denne salgsoppgaven og er også på vår hjemmeside Krogsveen.no. Alle bud og budforhøyelser må inngis skriftlig. I tillegg må legitimasjon være fremlagt sammen med signatur fra budgiver.
Vi oppfordrer til å gi bud elektronisk via GI BUD-knappen på eiendommens hjemmeside på Krogsveen.no. Da vil samtlige vilkår bli oppfylt.
Eventuelle forhøyelser eller endringer av budet kan bekreftes pr SMS eller på e-post. Vi oppfordrer alltid til å kontakte megler pr. telefon i tillegg da forsinkelser i SMS og e-post kan forekomme.
For at budene skal kunne bli behandlet og videreformidlet skriftlig til alle involverte parter, må alle bud ha en tilstrekkelig lang akseptfrist, jf. eiendomsmeglingsforskriften § 6-3.
Selger må også skriftlig akseptere budet før aksept kan formidles til budgiver. Akseptfrist bør derfor være på minimum 30 minutter, og budforhøyelser må derfor skje i god tid før fristens utløp.
Bud i forbrukerforhold kan uansett ikke settes med kortere frist enn kl. 12.00 første virkedag etter siste annonserte visning. I tillegg kan ikke budet ha forbehold om at det skal holdes hemmelig ovenfor øvrige interessenter. Megler har iht lov om eiendomsmegling ikke anledning til å videreformidle disse budene, og de vil dermed heller ikke bli journalført.
Etter at eiendommen er solgt vil kjøper og selger få tilsendt budjournal. Øvrige budgivere kan få utlevert kopi av budjournalen i anonymisert form.
Hvitvaskingsreglene
I henhold til lov om hvitvasking og terrorfinansiering har megler plikt til å gjennomføre kontrolltiltak overfor kunder, herunder fullmektiger. Dette innebærer bl.a. å bekrefte kunders og reelle rettighetshaveres identitet på bakgrunn av fremvist gyldig legitimasjon eller på annen godkjent måte, samt å innhente opplysninger om kundeforholdets formål og tilsiktede art.
Dersom slike kundetiltak ikke kan gjennomføres, kan megler ikke etablere kundeforholdet eller utføre transaksjonen.
Hvis kjøper ikke bidrar til gjennomføring av kundekontrollen og dette fører til at transaksjonen blir forsinket eller ikke kan gjennomføres, vil dette ansees som mislighold av avtalen og gi selger rettigheter etter avhendingslova kapittel 5. I tilfeller der selger ikke bidrar til gjennomføring av løpende kundekontroll underveis i oppdraget, er det selger som misligholder sine forpliktelser etter avtalen og gi kjøper rettigheter etter avhendingslovens kapittel 4. Partene er selv ansvarlige for eventuelle kostnader og ansvar dette kan medføre. Eiendomsmegleren eller eiendomsmeglingsforetaket kan ikke holdes ansvarlig for de konsekvenser dette vil kunne få for partene eller andre som har interesser i eiendomshandelen.
Kjøper oppfordres til å innbetale kjøpesummen som ikke kommer fra låneinstitusjon i én samlet innbetaling fra egen konto i norsk bank. Megler har plikt til å melde fra til Økokrim om eiendomshandler som fremstår som mistenkelige. Melding sendes Økokrim uten at partene varsles.
Personopplysningsloven
I henhold til personopplysningsloven gjør vi oppmerksom på at interessenter kan bli registrert for videre oppfølging.
Lovanvendelse
Generelle bestemmelser
Salgsoppgaven er basert på de opplysningene selger har gitt til megler, den bygningssakyndiges tilstandsrapport, samt opplysninger innhentet fra kommunen, Kartverket og andre tilgjengelige kilder. Det er viktig at kjøper setter seg grundig inn i alle salgsdokumentene, herunder salgsoppgave, tilstandsrapport og selgers egenerklæring. Kjøper anses kjent med forhold som er tydelig beskrevet i salgsdokumentene, og slike forhold kan ikke påberopes som mangler. Dette gjelder uavhengig av om kjøper har lest dokumentene. Alle interessenter oppfordres til å undersøke eiendommen nøye, gjerne sammen med fagkyndig før bud inngis. Kjøper som velger å kjøpe usett kan ikke gjøre gjeldende som mangel noe han burde blitt kjent med ved undersøkelsen.
Dersom det er behov for avklaringer, anbefaler vi at interessenter rådfører seg med eiendomsmegler eller egne rådgivere før det legges inn bud.
En bolig som har blitt brukt i en viss tid, har vanligvis blitt utsatt for slitasje og skader kan ha oppstått. Slik bruksslitasje må kjøper regne med, og det kan avdekkes enkelte forhold etter overtakelse som nødvendiggjør utbedringer. Normal slitasje og skader som nødvendiggjør utbedring, er innenfor hva kjøper må forvente og vil ikke utgjøre en mangel.
Kjøper og selgers rettigheter og plikter reguleres av avtalen mellom partene, samt informasjonen som har vært tilgjengelig for kjøperen i forbindelse med handelen. Avtalen utfylles av avhendingsloven, og det gjelder ulike avtalevilkår avhengig av om kjøper er forbrukerkjøper eller ikke. Dette er nærmere beskrevet nedenfor.
På grunn av ulike avtalevilkår kan selger vurdere bud fra en som ikke er forbruker, ulikt fra en forbrukers bud. Dersom kjøper ikke er forbruker, er selger sitt mulige mangelsansvar begrenset fordi eiendommen selges "som den er". Selger kan ikke ta «som den er»- forbehold overfor en forbrukerkjøper. Selv et lavere bud fra en som ikke er forbruker kan foretrekkes fordi begrensningen i mulig mangelsansvar kan ha egenverdi for selger. Selger står fritt til å forkaste eller akseptere ethvert bud, og er for eksempel ikke forpliktet til å akseptere høyeste bud.
Budgiver skal i budskjema avgi egenerklæring om budgiver er forbruker eller næringsdrivende/ person som hovedsakelig handler som ledd i næringsvirksomhet. Budgivere får informasjon dersom andre bud er inngitt av en som ikke er forbruker.
Forbrukerkjøp - definisjon
Med forbrukerkjøp menes kjøp av eiendom når kjøperen er en fysisk person som ikke hovedsakelig handler som ledd i næringsvirksomhet.
Forbruker – avtalevilkår
Eiendommen har en mangel dersom den ikke er i samsvar med kravene som følger av avtalen, eller det foreligger brudd på bestemmelsene i avhendingsloven §§ 3-2 til 3-8. Hvis eiendommen ikke er i samsvar med det kjøperen må kunne forvente ut ifra alder, type og synlig tilstand, kan det være grunnlag for mangelskrav. Det samme gjelder hvis det er holdt tilbake eller gitt uriktige opplysninger om eiendommen. Dette gjelder likevel bare dersom man kan gå ut ifra at det virket inn på avtalen at opplysningen ikke ble gitt eller at mangelskravet ikke blir rettet i tide på en tydelig måte.
Boligen kan ha en mangel etter avhendingsloven § 3-3 andre ledd, dersom det er avvik mellom opplyst og faktisk innvendig areal, forutsatt at avviket er på 2% eller mer og minimum 1 kvm.
Ved beregning av et eventuelt prisavslag eller erstatning må kjøper selv dekke tap/kostnader opptil et beløp på kr 10 000 (egenandel).
Ikke-forbruker (næringsdrivende) – definisjon
Hvis kjøper er en juridisk person, eller en fysisk person som hovedsakelig handler som ledd i næringsvirksomhet, vil kjøpet ikke anses som et forbrukerkjøp.
Ikke-forbruker – avtalevilkår
Eiendommen har en mangel dersom den ikke er i samsvar med kravene som følger av avtalen.
Eiendommen selges «som den er», og selgers ansvar utover det konkret avtalte er da begrenset etter avhendingsloven § 3-9, første ledd andre setning.
Avhendingsloven § 3-3 andre ledd fravikes, og hvorvidt boligens arealsvikt utgjør en mangel vurderes etter avhendingsloven § 3-8.
Informasjon om kjøpers undersøkelsesplikt, herunder oppfordringen om å undersøke eiendommen nøye, gjelder også for kjøpere som ikke anses som forbrukere.
Det forutsettes at hjemmel overføres til kjøper. Hvis kjøper ikke ønsker hjemmelsoverføring av eiendommen, må det tas forbehold om dette i budet.
Meglers vederlag
Meglers vederlag betales av selger og er avtalt til:
Fastpris: 40 000,-
Vederlag:
Fotopakke kr 4 800
Kontroll av hjemmel og heftelser kr 2 900
Markedsføringspakke kr 27 400
Oppgjør kr 7 500
Tilrettelegging kr 17 000
Visninger pr stk / Overtagelse kr 2 500
Utlegg:
Innhenting av offentlig opplysninger fra kommunen kr 3 500,00
Tinglysing sikring kr 545,00
Andre utgifter:
AX tilstandsrapport rekkehus/tomannsbolig kr 17 500,00
Boligselgerforsikring Gjensidige Eiet - regnes av prisantydning kr 14 218,00
Vi er opptatt av verdiskapning, og har knyttet til oss samarbeidspartnere som skal sikre våre kunder de beste produkter og tjenester;
• Gjensidige leverer boligselgerforsikring og tilbyr bygningsforsikring
• Boligkjøperforsikring leveres av Hiscox og med Sedgwick som skadebehandler, og er formidlet gjennom Gjensidige.
• BN bank tilbyr finansieringsløsninger
• Vår avdeling Krogsveen Pluss tilbyr flyttetjenester som utvask, visningsvask, lager, tømming og transport av flyttelass, i tillegg til å formidle kontakt med Flip for overflateoppussing.
• I forbindelse med overtagelse av eiendommen tilbyr Overo avtale om strøm, alarm og bredbånd.
• Krogsveen er, sammen med øvrige bransjeaktører, medeier i Bomega AS som tilbyr den digitale annonseringsplattformen Hjem.
Opplysninger om oppdraget
Oppdragsnummer 22-0425/25
Eiendomsmegler Krogsveen AS, avd. Sandefjord
Jernbanealléen 13, 3210, SANDEFJORD
950 007 613
Oppdragets KR-kode KR22.25425
Dato
Sist oppdatert: 20. mai 2026 kl. 10:07
Dokumenter
Dokumenter
PDF – 844 KB
PDF – 745 KB
PDF – 964 KB
PDF – 312 KB
PDF – 29 KB
PDF – 127 KB
PDF – 392 KB
Område
Legg til steder som er viktige for deg
Visning
For å delta på visning, ber vi om at du melder deg på. Da sikrer vi at du får nødvendig informasjon og at det er satt av tilstrekkelig med tid. Kontakt megler dersom annet tidspunkt ønskes. Husk å lese salgsoppgaven før visningen, så du stiller forberedt. NB. Visning utgår dersom det ikke er noen påmeldte.
Ønsker du kun å bli holdt orientert, kan du fra eiendommens hjemmeside få varsel om solgtpris, eller kontakte megler.
Lurer du på noe?
Unngå doble boligrenter
Vi tilbyr gunstig forsikring.
Vurderer du utleie?
Få et tilbud fra Utleie KrogsveenHva koster lånet?
Sjekk estimert lånekostnadVil du varsles om lignende boliger?
Ved å lagre ditt boligsøk hos oss får du beskjed når vi har en bolig som ligner denne, før den legges ut på markedet!

