Haugstentunet 8 (4b)
3 090 000 kr
68 m²
2 soverom
Solgt

Presenteres av
Raymond Bøhn Velholdt 3-roms fra 2017 på Haugsten med ekstra god takhøyde. Solfylt balkong og utsyn til grønne omgivelser. Parkering.
Prisantydning
3 090 000 krOmkostninger
88 290 krTotalpris
3 178 290 kr
Pris
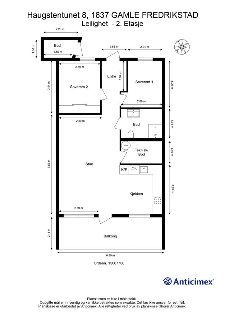
Bruksareal
71 m²BRA-I (internt bruksareal)
68 m²BRA-E (eksternt bruksareal)
3 m²TBA (terrasse-balkongareal)
15 m²
Areal
Etasje
2Byggeår
2017Soverom
2 soveromBad
1 badType
EierleilighetEierform
EierseksjonFasiliteter
Balkong/TerrasseFellesutgifter
3 857 krEnergimerke
Grønn C
Nøkkelinfo
Unngå doble boligrenter
Vi tilbyr gunstig forsikring.
Vurderer du utleie?
Få et tilbud fra Utleie KrogsveenHva koster lånet?
Sjekk estimert lånekostnadDette liker selger best ved boligen
Rolig og trygg bolig med kort vei til buss, skole, barnehage og butikk. Kort vei til Gamlebyen og Fredrikstad sentrum.
Beskrivelse
Kort om eiendommen
Velholdt tre-roms i grønne og nærmest landlige omgivelser på Haugsten
- Romslig balkong med gode solforhold dagen gjennom
- Vannbåren gulvvarme i alle rom, tilknyttet fjernvarme
- Kjøkkeninnredning fra IKEA med alle hvitevarer integrert
- Smart romløsning med vaskerom i tillegg til bad
- Oppmerket biloppstillingsplass rett nedenfor inngangspartiet
- Flere dagligvareforretninger og nærsentre i området
- Sykkelavstand til byen - svært hyppig avganger med buss
- Fine turmuligheter på Glommastien, i Østsiden-marka og i Torsneslandet
Område
Legg til steder som er viktige for deg
På flyttefot? Tenk kjøp og salg samtidig.
Få din egen rådgiver gjennom hele kjøps- og salgsprosessen. Det starter med en verdivurdering.
Unngå doble boligrenter
Vi tilbyr gunstig forsikring.
Vurderer du utleie?
Få et tilbud fra Utleie KrogsveenHva koster lånet?
Sjekk estimert lånekostnadVil du varsles om lignende boliger?
Ved å lagre ditt boligsøk hos oss får du beskjed når vi har en bolig som ligner denne, før den legges ut på markedet!
På flyttefot? Slik gjør vi det enklere for deg
Skreddersydd flyttepakke
Vi fikser håndverkere, vask, pakking, lagring og transport, og legger ut for utgiftene underveis.
Hjelp med både kjøp og salg
Hos oss har du din egen rådgiver gjennom hele kjøps- og salgsprosessen.
Hjelp til finansiering
Vårt samarbeid med BN Bank sikrer deg rask og løsningsorientert hjelp, til konkurransedyktige betingelser.

