Solligrenda 14
11 650 000 kr
108 m²
3 soverom
Komplett salgsoppgave
Solligrenda v/Akerselva
Innholdsrikt enderekkehus i rolige og sentrale Solligrenda - Solrik hage og platting - Garasje - Barnevennlig- Oppussing
Prisantydning
11 650 000 krOmkostninger
312 240 krTotalpris
11 962 240 kr
Pris
Bruksareal
111 m²BRA-I (internt bruksareal)
108 m²BRA-E (eksternt bruksareal)
3 m²TBA (terrasse-balkongareal)
24 m²
Areal
Byggeår
1985Soverom
3 soveromBad
1 badTomteareal
249 m² (eiet)Type
RekkehusEierform
EietFasiliteter
Garasje/P-plass og Balkong/TerrasseEnergimerke
Rød F
Nøkkelinfo
Unngå doble boligrenter
Vi tilbyr gunstig forsikring.
Vurderer du utleie?
Få et tilbud fra Utleie KrogsveenHva koster lånet?
Sjekk estimert lånekostnadBeskrivelse
Kort om eiendommen
Velkommen til Solligrenda, et bilfritt og meget barnevennlig område med "Bakkebygrend"-følelse! Her er det fint å bo for både store og små, med skøytebane, prioritert barnehageplass, flotte turområder langs Akerselva og fine lekeplasser.
Solligrenda 14 har en meget fin beliggenhet internt på område, huset ligger på enden av rekken og har fin, solrik hage og markterrasse. God planløsning med 3 soverom og bad på samme plan, samt mye lagringsplass i utvendig bod og på innredet loft (godkjent for midlertidig opphold). Lys og fin stue med peis og hyggelig utsyn. Huset holder standard fra byggeår og oppussing må påregnes.
Det medfølger garasje med lader. De gamle garasjene er planlagt revet og det skal bygges nye.
Sentral beliggenhet med kort vei til buss og tog, butikk og skole/barnehage.
Innhold og byggemåte
Innhold og byggemåte
Eiendommen
Solligrenda 14, 0491 OSLO
Kommunenummer 301, gårdsnummer 73, bruksnummer 948
Kommunenummer 301, gårdsnummer 73, bruksnummer 3, ideell andel 1/80
Innhold
Totalt bruksareal BRA: 111 kvm
BRA-i:
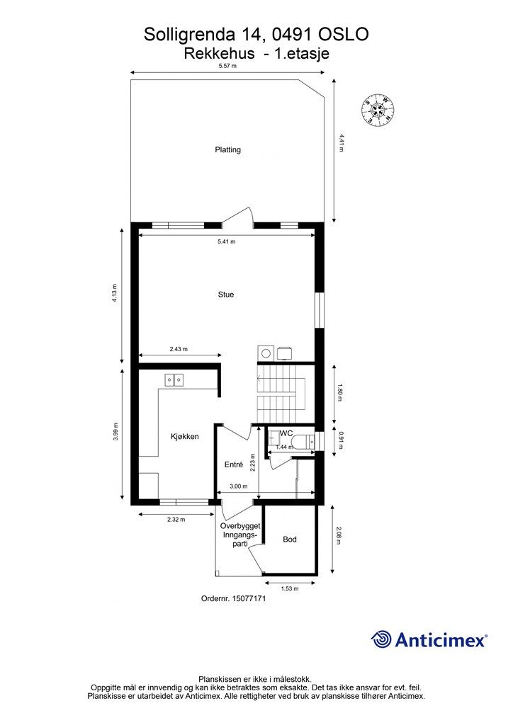
1. etasje 45 kvm: Entré, toalettrom, kjøkken og stue
2. etasje 45 kvm: Gang, bad, toalettrom og tre soverom
3. etasje 18 kvm: Innredet rom
BRA-e:
1. etasje 3 kvm: Tilliggende utvendig bod
Åpent areal:
1. etasje 24 kvm: Platting
Loftsetasjen har et totalt gulvareal (GUA) på 30 kvm, men grunnet skråtak/lav takhøyde er kun 18 kvm av arealet måleverdig som bruksareal. De delene av arealene som har lav himlingshøyde (ALH) utgjør 12 kvm.
Vedlagte plantegninger er ikke målbare. De oppgitte arealer er hentet fra rapport med befaringsdato 18.11.2025 utført av Anticimex AS. Arealene er beregnet og rom er definert etter dagens faktiske bruk, uavhengig av hva som er godkjent av bygningsmyndighetene. Innredet loftsrom er ikke godkjent for varig opphold.
Byggemåte
Selger har fått utarbeidet en tilstandsrapport, dvs. en teknisk gjennomgang av boligen hvor eventuelle avvik, risiko for kjøper og prisoverslag for hva som bør gjøres av oppgradering, er skissert. Se særskilt TGIU (tilstandsgrad ikke undersøkt), samt TG2 og TG3 som viser hva som er boligens normale slitasje, alder og type, hva som er avvik fra dette og hva som bør/må utbedres. Rapporten og selgers egenerklæring er en del av salgsoppgaven og må leses nøye før bud inngis. Kjøper overtar ansvaret for de opplysninger som fremkommer av salgsdokumentasjonen, og kan ikke gjøre gjeldende som mangel noe som burde vært kjent eller som ikke kan anses å ha betydning for avtalen.
Enderekkehus over 3 plan. Bygningen er iht. tilstandsrapporten oppført i med støpt gulv mot grunn, bærende konstruksjoner og skillende dekker av trekonstruksjoner. Yttervegger av bindingsverk utvendig kledd med liggende panel. Saltak av trekonstruksjoner tekket med takstein. Taket er ikke inspisert fysisk. Balkongdør med to-lags glass fra 2022, vinduer fra byggeår og 1986. Boligen er elektrisk oppvarmet, i kombinasjon med peisovn i stue. Les for øvrig mer om byggemåte og den tekniske tilstanden i rapporten.
Det gjøres spesielt oppmerksom på at det er gitt TG3 på tilliggende bod. Det ble registrert fuktmerker på veggflater, samt at utvendig kledning er i kontakt med bakken, noe som medfører fuktoppsug. Det ble registrert råteskader på nedre del av panelet. Taktekkingen bærer preg av alder og slitasje, samt at det ikke er etablert undertak under takstein.
Det er gitt TG2 på følgende forhold:
- Ventilator på kjøkken har begrenset effekt.
- I øvrige rom er det knirk i gulvene.
- Innvendige trapper har større åpning enn 10 cm i rekkverk/trapp.
- På innredet loft registreres det fuktmerker på takvindu/vegg mot kneloft. Søk med fuktmålingsinstrument viser ikke forhøyede verdier ved befaring.
- Det registreres fuktmerker/rennemerker på innvendig skorstein på loft.
- Det er observert spor etter gnageraktivitet i kneloft.
- Konstruksjoner på loft (beboelsesrom og blindloft) er lukket og det er ikke kjent hvordan oppyggingen er utført.
- Det er ikke tilkomst bak knevegg mot sydvest og inspeksjon er ikke mulig. Dette er særlig uheldig da det er observert fuktmerker ved takvindu.
- Det er høydeforskjell på mer enn 15 mm i stue, soverom 1 og innredet rom. Skjevheter er mer påregnelige i eldre bygg og bør sees i den sammenheng.
- Det er ikke foretatt radonmåling i boligen.
- På det elektriske anlegget er det ikke fremlagt samsvarserklæring og det er ikke flemlagt dokumentasjon på de deler av det elektriske anlegget som er montert før 1999. Det registreres stedvis ledninger som ikke er tilstrekkelig festet, samt at det er observert utettheter rundt kabelføringer i sikringsskap.
- Utvendig panel er ført mot vindusomramming, noe som kan medføre fuktinntrenging i konstruksjonen.
- Utvendig panel er tidvis sprukket, det registreres manglende innfesting på ett panelbord under takutstikk på gavlvegg. Utvendig panel har noe vedlikeholdsetterslep.
- Enkelte bord på utvendig platting har råteskader.
- Markise er defekt.
Det er også gitt TG2 på følgende forhold på bakgrunn av alder og/eller slitasje:
- Bad
- Kjøkken
- Toalettrom i 1. og 2. etasje
- Øvrige rom (himlingsflater, veggflater m.m)
- Loft/innredet loftetasje
- Innvendige trapper
- Hovedstoppekran
- Yttervegger, fasader/kledning, vinduer, takvinduer og dører
- Yttertak
- Platting
- Drenering
- Vann- og avløpsledninger (inkludert stikkledninger)
Det er gitt TGIU (tilstandsgrad ikke undersøkt) på innvendig pipeløp, fundamenter, byggegrunn, at stakeluke ikke er lokalisert og avløpsrør.
Se supplerende tekst i tilstandsrapporten om bygningsdelene som har fått TG3, TG2 og TGIU. Kjøper overtar ansvar og risiko for dette.
Selger opplyser følgende i sitt egenerklæringsskjema:
- Mulig lekkasje i loftsvindu. I så fall har det vært sånn helt siden start.
- Hatt mus på loftet ett år. Ingen skade; bare muselort. Tettet sprekker + lagt inn stålull og stopper under utvendig panel. Skjeggkre har også vært her. Hele husrekken fikk behandlet dette av Anticimex.
- Jeg tror det har vært rotter i søppelskuret som ligger utenfor husområdet.
- Garasjene våre skal rives og bygges opp igjen. Kostnad ca kr 220 000,- pr boligenhet.
- Halve tomten ligger i buffersone for kvikkleire som er påvist på den andre siden av elven ca 100-200 meter unna.
- Selger opplyser at åpne-/lukkemekaniskmen på det ene vinduet på loftet er ødelagt.
Standard
Velkommen til Solligrenda 14, et idyllisk beliggende rekkehus med svært sentral beliggenhet ved Akerselva.
Inneholder:
1. etasje:
Romslig entré med god oppbevaringsplass i skyvedørsgarderobe med speilfronter. I tillegg er det god veggplass til klesoppheng eller skoskap. Fra entréen er det inngang til praktisk gjestetoalett/toalettrom med gulvstående WC og servant.
Separat kjøkken med hvit, slett innredning. Kjøkkenet har fin størrelse, med plass til frokostbord. Det er godt med skap- og benkeplass. Oppvaskmaskin medfølger boligen ved salg.
Lys og trivelig stue med peisovn. Stuen har lysinnslipp fra to sider, som gir god romfølelse og mye naturlig dagslys. Det er plass til både sofagruppe og spisebord. Fra stuen er det hyggelig utsyn mot hagen via de store vindusflatene. Utgang til markterrasse på ca. 24 kvm, med videre nedgang til fin hage. Det er satt opp levegg mellom terrassene i rekken. Selger opplyser om at det er sol fra ca. 11:00 til 21:00 på sommerstid, her kan man nyte lange sommerdager. Hagen er delvis inngjerdet og det er plass til trampoline og ballspill. Huset ligger på enden av rekken og man har derfor en fin hage som går rundt huset.
Fra gangen går det trapp opp til 2. etasje. Under trappen er det rom for praktisk lagringsløsning.
2. etasje:
Boligens 2. etasje består av 3 gode soverom og bad.
Soverom 3 har god størrelse og brukes i dag som kontor. Det er god plass til seng, arbeidspult og garderobeskap.
Soverom 2 har stort garderobeskap, samt plass til seng.
Hovedsoverommet er romslig, med god plass til dobbeltseng med nattbord på begge sider. Det er godt med lagring i garderobeskap. Det er ikke biltrafikk rundt huset og soverommene ligger svært rolig til.
Eldre bad med dusjkabinett, servant med speilskap og opplegg for vaskemaskin. Badet er godt utnyttet med lagring i veggskap.
Loft:
Stort innredet loftsrom som er godkjent for midlertidig opphold, se mer info under pkt. "ferdigattest" i salgsoppgaven. I tillegg er det inngang til en bod.
Boligen disponerer i tillegg en utebod i tilknytning til inngangspartiet. Garasje i rekke med lader medfølger. Garasjene skal rives og nye skal settes opp, se mer info under pkt. "parkering" i salgsoppgaven.
Løsøre og tilbehør
Vi viser til liste fra Norges Eiendomsmeglerforbund som gjelder fra 01.01.2020 angående løsøre og tilbehør.
Oppvaskmaskin medfølger boligen ved salg. Øvrige hvitevarer på kjøkken medfølger ikke.
Huset er vasket før visning, og vil ikke bli ytterligere rengjort i forbindelse med overtagelse.
Oppvarming
Boligen er elektrisk oppvarmet med panelovner. Peisovn i stuen.
Dersom beboelsesrom ikke har vegg- eller fastmonterte varmekilder ved visning, følger dette heller ikke med.
Ferdigattest/brukstillatelse
Det foreligger ferdigattest på oppføring av rekkehus, datert 11.11.1987. Denne kan fås ved henvendelse til megler.
Det foreligger approbasjon/godkjennelse på innredning av loft til midlertidig opphold og byggetillatelse ble gitt 14.11.1986. Det har ikke blitt søkt om ferdigattest og saken er henlagt uten ferdigattest. Kommunen kommenterer i henleggelsen i "Etterslepsprosjektet" at det er foretatt undersøkelser og at det er bragt på det rene at arbeidene er utført. Videre står det at "saken er en mindre byggesak uten vesentlige mangler og kan henlegges uten ferdigattest."
Innredning av rommet til bruk for varig opphold er ikke bruksendret/omsøkt og er heller ikke godkjent av kommunen. Konsekvensen ved søknad kan være at rommet ikke godkjennes som varig opphold og at rommet da må brukes som bod/midlertidig oppbevaring.
Kjøper overtar alt ansvar, kostnad og risiko for dette videre.
Det gjøres oppmerksom på at det ikke lenger utstedes ferdigattest på tiltak det er søkt om før 1998 jf. plan- og bygningsloven § 21-10. Kommunen vil ikke kreve ferdigattest for disse tiltakene og vil avvise eventuelle søknader. Bestemmelsen innebærer ikke at tiltak med manglende søknad blir lovlige, men at man ikke trenger å avslutte gamle byggesaker. Normalt sett kreves ferdigattest for alle søknadspliktige tiltak som gjøres etter plan- og bygningsloven.
Tinglyste heftelser og rettigheter
Eiendommen overdras fri for pengeheftelser med unntak av:
Huseierforeningen forbeholdes panterett i hver boligenhet med kr 10.000,-, som sikkerhet for huseierens forpliktelser. Denne panterett er uten opptrinnsrett og skal ha prioritet etter 90 % av lånetakst avholdt etter forsikringsrådets regler. Panteretten er tinglyst som heftelse på boligen.
Huseierforeningens styre plikter å gjennomføre nødvendig prioritetsviking uten unødig opphold etter anmodning fra boligens eier.
Innehaver av den enkelte bolig er ansvarlig for at ubetalt andel driftsutgifter til huseierforeningen, eventuelt andre utgifter som huseierforeningen har bestemt, blir betalt, og hefter også for tidligere eiers forpliktelser.
Det er ingen tinglyste servitutter på eiendommen.
Det er tinglyst 14 servitutter for realsameiet. Disse omhandler blant annet bestemmelse om veg, skjønn, kommunens rett til å anlegge og vedlikeholde ledninger m.m., elektriske kraftlinjer, trafostasjon/kiosk, vann-/kloakkledninger, garasje/parkering, og erklæring/avtale vedr. åpen turvei for allmennheten.
Servituttene vil følge realsameiet. Kjøpers bank vil få pant etter ovennevnte heftelser og servitutter.
Eventuell adgang til utleie
Eiendommen har ikke separat utleieenhet. Det vil normalt være anledning til utleie av hele eiendommen eller enkeltrom, såfremt utleiearealet er bygningsmessig godkjent for varig opphold og har forsvarlige radonnivåer.
Beliggenhet og tomteforhold
Beliggenhet og tomteforhold
Beliggenhet
Flott, solrik beliggenhet i naturskjønne og rolige omgivelser rett ved Akerselva. Solligrenda er et svært rolig og tilnærmet bilfritt boligområde og ligger perfekt til i forhold til turstien langs Akerselva, skoler, barnehager og butikker.
Teknisk museum og badeplassen på Stilla er kun en kort rusletur unna. Flere hyggelige badeplasser langs Akerselva som f.eks. "badestenen", eller hva med en forfriskende dukkert under "fossen"?
Akerselva er nærmeste nabo, og byr på unike turmuligheter opp Maridalen og i marka, eller nedover langs elva til Nydalen og videre langs Grünerløkka og helt ned til sentrum. Nordmarka byr på et eldorado av trenings- og turmuligheter både for ski, sykkel og til fots.
Flere treningssentre, blant annet Avancia og Evo i Frysjaparken, og andre fritidstilbud i nærområdet med allsidige tilbud til barn og voksne. Kort vei til Trollvann/Grefsenkollen alpinsenter. Svært gode oppvekstsvilkår for barn og unge.
Kort vei til togstasjonen (Kjelsås stasjon), trikkeholdeplassen på Kjelsås og bussholdeplassen i Kjelsåsveien (buss 25/54). Gangavstand langs elven til Stillatorget med det meste man trenger av butikker og servicetilbud som en stor Rema 1000, legesenter, frisør, apotek m.m.
Fra leiligheten er det også kort vei til Frysjaparken hvor du har har mye av hva du trenger i hverdagen, som MENY med ferskvaredisk, søndagsåpen Joker, blomsterbutikk, frisør, apotek, by Bjørheim, Evo, Avancia, Express Frysja, Quick Style Studio, Under Livet kvinnehelsesenter, fysioterapeut, Kjelsås legesenter, restaurant, sushi, Grains fransk håndverksbakeri, samt Jønk. En kort spasertur unna ligger Frysja kunstsenter, Teknisk museum og Frysja 33 som er et trivelig selskapslokale i den gamle kraftstasjonen fra 1850.
Det er gangavstand til Nydalen med flere restauranter og kaféer.
Storo Storsenter med over 130 butikker og servicetilbud ligger en kort kjøretur eller en gåtur langs elven via Nydalen.
Adkomst
Det vil bli skiltet med Krogsveen visningsskilt ved fellesvisninger.
Barnehager, skoler og fritid
Boligen sogner til Kjelsås skole (1.-7. trinn) og Engebråten skole (8.-10. trinn). Det er også flere kommunale og private barnehager i området som blant annet Stilla barnehage, som ligger ved innkjøringen til Solligrenda, Engebråten barnehage og Kjelsås skole barnehage.
Informasjon om tilhørende skolekretser er hentet fra kommunens hjemmeside som dataleverandør, og tilhørigheten kan årlig endres av kommunen. Dersom skole- og barnehagetilbud er av betydning for kjøpet, ber vi om at det rettes en særskilt henvendelse til bydelsadministrasjonen for oppdatert informasjon.
Beskrivelse av tomt
Eiet tomt på 249 kvm. Tomten er pent opparbeidet med gressplen og platting.
Parkering
Det medfølger bruksrett (jf. §1 i vedtektene) til en garasjeplass i rekke, garasjen er merket med nr. 19. Det er montert ladeboks i garasjen.
Det er vedtatt at eksisterende garasjer skal rives og at det skal bygges nye. Dette medfører en ekstraordinær innbetaling anslått til ca. kr 220 000,- for denne enheten.
I tillegg er det flere felles parkeringsplasser i Solligrenda på utsiden av garasjerekkene. Parkeringsplassene er eksklusive for Stilla Huseierforening.
Vei, vann og avløp
Eiendommen har adkomst via kommunal vei og via private internveier med felles vedlikeholdsansvar.
Eiendommen er tilknyttet kommunalt ledningsnett via private stikkledninger. Eier er selv ansvarlig for private stikkledninger til boligen.
Regulerings-og arealplaner
Eiendommen er regulert til boligformål i henhold til reguleringsplan S-2383 datert 30.05.1984 med tilhørende reguleringsbestemmelser.
I Kjelsåsveien 160 er det en pågående reguleringssak i forbindelse med at eier av bygget ønsker å rive eksisterende bygg og bygge nye leiligheter. Dette ble satt på vent i forbindelse med kvikkleirefunn høyere opp i Frysjaveien. Siste korrespondanse mellom eier og Plan og bygningsetaten var i 2024. Se saksnummer 201917652 på Planinnsyn for mer informasjon.
I forbindelse med at plansaken i Kjelsåsveien 160 ble satt på vent, er det søkt om bruksendring/ombygging og fasadeendring av bygget, fra næring til boliger. Se saksnummer 202456621 og 2025/08393 på Planinnsyn for mer informasjon.
På andre siden av elven, i Frysjaveien 31, er det satt i gang reguleringsprosess i forbindelse med bygging av ny skole. Se saksnummer 201709746 og 2025/06799 på Planinnsyn for mer informasjon.
Det gjøres oppmerksom på at eiendommen ligger i nærheten av et område i Solligrenda og ved Kjelsåsveien 160/162 der det er påvist kvikkleire. Det er pt. ikke påvist kvikkleire for denne eiendommen, men eiendommen ligger i et "aktsomhetsområde for kvikkleireskred", slik store deler av Oslo gjør på NVE sine kart: https://temakart.nve.no/tema/kvikkleire.
Økonomi
Økonomi
Kommunale utgifter
Kommunale avgifter er kr 10 135,- for inneværende år. I dette inngår gebyr for vann, avløp, renovasjon og feiing/tilsyn.
Fellesutgiftene til huseierforeningen er kr 6 747,- pr. kvartal og inkluderer kostnader til drift og vedlikehold av fellesområdene med veier, kabelanlegg, ledningsanlegg, lekeplasser, gjesteparkeringer, garasjeplasser tilrettelagt for ladestasjoner, grøntarealer, beplantninger og fellesinnretninger av enhver art, samt felles forsikringer og felles kommunale avgifter.
Fellesutgiftene justeres normalt en til to ganger årlig i forhold til huseierforeningens faktiske utgifter.
I selgers husstand har det bodd én person og det opplyses om at strømforbruket har vært ca 16.000 kWh pr år.
Boligen er tilknyttet Telia som leverandør av kabel-tv og internett. Grunnpakke er inkludert i fellesutgiftene. Tv-tuner/dekoder medfølger ikke.
Utgiftene er basert på nåværende eiers forbruk. Kjøper må selv tegne innboforsikring.
Eiendommen er en del av Stilla Huseierforening, og.nr. 975.459.020 og eier av hus i Stillafeltet har rett og plikt til å være medlem av Stilla Huseierforening.
Huseierforeningen består av 80 boenheter.
Forretningsfører er Oslo og Omegn Boligforvaltning AS.
Dugnad må påregnes.
Planlagte påkostninger:
Det er vedtatt at de gamle garasjene skal rives og det skal bygges nye. Anslått kostnad er foreløpig satt til kr 220 000,- pr. enhet som vil bli innkrevet iløpet av 2026. Neste ekstraordinære årsmøte er 03.02.2026 hvor styret vil legge frem revidert prosjektplan for 2/3 beslutning. I møtet skal det gås inn på detaljer på hvor nybygg skal stå (hvilket areal) og teknisk løsning på nybygg. Stilla boligsameie (blokkene) har vedtatt at de skal bygge sammen med Stilla Huseierforening, avtalen som skal inngås mellom partene skal også tas opp på møtet.
Iht. sameiets vedtekter må medlemmene ikke inngå bindende avtaler om utleie av bolig eller garasjeplass før leietakeren har skriftlig forpliktet seg til å følge huseierforeningens vedtekter, samt vedtak fattet av årsmøtet og styret. kjøper godkjennes av styret som ny sameier.
Dokumenter for huseierforeningen slikt som årsberetning og protokoll fra årsmøte samt fra ekstraordinær generalforsamling fås ved henvendelse til megler.
Formuesverdi
Formuesverdi for 2023 var kr 3 352 872,- ifølge skatteetaten. Beløpet forutsetter at eier bor fast i boligen (primærbolig).
Ved eventuell øvrig bruk av eiendommen (f.eks. fritidsbolig, pendlerbolig, utleieobjekt) var formuesverdien for 2023 kr 11 218 389,-.
Formuesverdien justeres normalt årlig. Se skatteetaten.no for mer informasjon om fastsettelse av formuesverdien.
Eiendomsskatt
Eiendomsskatten utgjør kr 7 409,- for 2025.
Omkostninger
11 650 000,00 Prisantydning
Omkostninger
291 250,00 Dokumentavgift til staten (2,5% av kjøpesum)
19 900,00 Gjensidige Boligkjøperpakke (valgfri)
545,00 Tinglysing panterettsdokument
545,00 Tinglysing skjøte
--------------------------------------------------------
312 240,00 Omkostninger totalt
--------------------------------------------------------
11 962 240,00 Totalpris inkl. omkostninger
--------------------------------------------------------
Tilbud om lånefinansiering
Megler formidler gjerne kontakt med rådgiver hos vår samarbeidspartner BN Bank. De har konkurransedyktige betingelser samt rask og løsningsorientert behandling av din lånesøknad. Krogsveen mottar et honorar dersom lån opprettes.
Betalingsbetingelser
Kjøpesum inkludert omkostninger, samt pantedokument tilknyttet eventuelt lån, skal være disponibelt hos megler 2 virkedager før overtagelsen.
Annen viktig informasjon
Annen viktig informasjon
Eier
Bente Firing
Overtakelse
Interessenter oppfordres til å angi ønsket dato for overtagelse ved innsendelse av bud.
Boligselgerforsikring
Selger har i forbindelse med salget tegnet boligselgerforsikring levert av Gjensidige.
Boligselgerforsikringen dekker selgers ansvar etter avhendingsloven begrenset oppad til kr 14 millioner. Dersom kjøper oppdager forhold ved eiendommen som hen mener utgjør en mangel ved eiendommen, vil Gjensidige behandle reklamasjonen på vegne av selger. Forsikringsvilkår kan fås ved henvendelse til megler.
Vedlagt salgsoppgaven følger selgers egenerklæringsskjema og tilstandsrapport. Interessenter må sette seg inn i dokumentene før bud inngis.
Boligkjøperforsikring
Innen kontraktsmøtet må kjøper ta stilling til om det ønskes å bestille Boligkjøperpakken gjennom Gjensidige. I denne gunstige pakken er boligen ferdig forsikret og inkluderer rettshjelpsforsikring, også kalt Boligkjøperforsikring. Rettshjelpsforsikring gir trygghet og tilgang på profesjonell juridisk hjelp dersom det oppdages uventede feil eller mangler det første året etter overtagelse. Forsikringsselskapet behandler i så fall ethvert mangelskrav kjøper måtte ha overfor selger.
Boligkjøperpakken inkluderer bygningsforsikring for hus og hytte, innboforsikring, flytteforsikring og dobbel rentedekning - i situasjoner hvor kjøper ikke får solgt nåværende primærbolig.
Kjøper mottar ingen særskilt faktura for Boligkjøperpakken da kostnaden det første året legges til kjøpesummen for boligen. Det gjøres oppmerksom på Krogsveen mottar et honorar for denne formidlingen.
Produktark for Boligkjøperpakken ligger vedlagt i salgsoppgaven.
Dersom ikke boligkjøperpakke ønskes kan kun rettshjelpsforsikring, også kalt boligkjøperforsikring, tegnes særskilt via megler. Rettshjelpsforsikringen varer i 5 år fra overtagelse og leveres gjennom Gjensidige. Ta kontakt med megler for ytterligere informasjon.
Selskap og privatpersoner som driver med kjøp/salg/utvikling som ledd i egen næringsvirksomhet kan ikke tegne boligkjøperpakke eller rettshjelpsforsikring.
Budgivning
Forbrukerinformasjon om budgivning er vedlagt denne salgsoppgaven og er også på vår hjemmeside Krogsveen.no. Alle bud og budforhøyelser må inngis skriftlig. I tillegg må legitimasjon være fremlagt sammen med signatur fra budgiver.
Vi oppfordrer til å gi bud elektronisk via GI BUD-knappen på eiendommens hjemmeside på Krogsveen.no. Da vil samtlige vilkår bli oppfylt.
Eventuelle forhøyelser eller endringer av budet kan bekreftes pr SMS eller på e-post. Vi oppfordrer alltid til å kontakte megler pr. telefon i tillegg da forsinkelser i SMS og e-post kan forekomme.
For at budene skal kunne bli behandlet og videreformidlet skriftlig til alle involverte parter, må alle bud ha en tilstrekkelig lang akseptfrist, jf. eiendomsmeglingsforskriften § 6-3.
Selger må også skriftlig akseptere budet før aksept kan formidles til budgiver. Akseptfrist bør derfor være på minimum 30 minutter, og budforhøyelser må derfor skje i god tid før fristens utløp.
Bud i forbrukerforhold kan uansett ikke settes med kortere frist enn kl. 12.00 første virkedag etter siste annonserte visning. I tillegg kan ikke budet ha forbehold om at det skal holdes hemmelig ovenfor øvrige interessenter. Megler har iht lov om eiendomsmegling ikke anledning til å videreformidle disse budene, og de vil dermed heller ikke bli journalført.
Etter at eiendommen er solgt vil kjøper og selger få tilsendt budjournal. Øvrige budgivere kan få utlevert kopi av budjournalen i anonymisert form.
Hvitvaskingsreglene
I henhold til lov om hvitvasking og terrorfinansiering har megler plikt til å gjennomføre kontrolltiltak overfor kunder, herunder fullmektiger. Dette innebærer bl.a. å bekrefte kunders og reelle rettighetshaveres identitet på bakgrunn av fremvist gyldig legitimasjon eller på annen godkjent måte, samt å innhente opplysninger om kundeforholdets formål og tilsiktede art.
Dersom slike kundetiltak ikke kan gjennomføres, kan megler ikke etablere kundeforholdet eller utføre transaksjonen.
Hvis kjøper ikke bidrar til gjennomføring av kundekontrollen og dette fører til at transaksjonen blir forsinket eller ikke kan gjennomføres, vil dette ansees som mislighold av avtalen og gi selger rettigheter etter avhendingslova kapittel 5. I tilfeller der selger ikke bidrar til gjennomføring av løpende kundekontroll underveis i oppdraget, er det selger som misligholder sine forpliktelser etter avtalen og gi kjøper rettigheter etter avhendingslovens kapittel 4. Partene er selv ansvarlige for eventuelle kostnader og ansvar dette kan medføre. Eiendomsmegleren eller eiendomsmeglingsforetaket kan ikke holdes ansvarlig for de konsekvenser dette vil kunne få for partene eller andre som har interesser i eiendomshandelen.
Kjøper oppfordres til å innbetale kjøpesummen som ikke kommer fra låneinstitusjon i én samlet innbetaling fra egen konto i norsk bank. Megler har plikt til å melde fra til Økokrim om eiendomshandler som fremstår som mistenkelige. Melding sendes Økokrim uten at partene varsles.
Personopplysningsloven
I henhold til personopplysningsloven gjør vi oppmerksom på at interessenter kan bli registrert for videre oppfølging.
Lovanvendelse
Generelle bestemmelser
Salgsoppgaven er basert på de opplysningene selger har gitt til megler, den bygningssakyndiges tilstandsrapport, samt opplysninger innhentet fra kommunen, Kartverket og andre tilgjengelige kilder. Det er viktig at kjøper setter seg grundig inn i alle salgsdokumentene, herunder salgsoppgave, tilstandsrapport og selgers egenerklæring. Kjøper anses kjent med forhold som er tydelig beskrevet i salgsdokumentene, og slike forhold kan ikke påberopes som mangler. Dette gjelder uavhengig av om kjøper har lest dokumentene. Alle interessenter oppfordres til å undersøke eiendommen nøye, gjerne sammen med fagkyndig før bud inngis. Kjøper som velger å kjøpe usett kan ikke gjøre gjeldende som mangel noe han burde blitt kjent med ved undersøkelsen.
Dersom det er behov for avklaringer, anbefaler vi at interessenter rådfører seg med eiendomsmegler eller egne rådgivere før det legges inn bud.
En bolig som har blitt brukt i en viss tid, har vanligvis blitt utsatt for slitasje og skader kan ha oppstått. Slik bruksslitasje må kjøper regne med, og det kan avdekkes enkelte forhold etter overtakelse som nødvendiggjør utbedringer. Normal slitasje og skader som nødvendiggjør utbedring, er innenfor hva kjøper må forvente og vil ikke utgjøre en mangel.
Kjøper og selgers rettigheter og plikter reguleres av avtalen mellom partene, samt informasjonen som har vært tilgjengelig for kjøperen i forbindelse med handelen. Avtalen utfylles av avhendingsloven, og det gjelder ulike avtalevilkår avhengig av om kjøper er forbrukerkjøper eller ikke. Dette er nærmere beskrevet nedenfor.
På grunn av ulike avtalevilkår kan selger vurdere bud fra en som ikke er forbruker, ulikt fra en forbrukers bud. Dersom kjøper ikke er forbruker, er selger sitt mulige mangelsansvar begrenset fordi eiendommen selges "som den er". Selger kan ikke ta «som den er»- forbehold overfor en forbrukerkjøper. Selv et lavere bud fra en som ikke er forbruker kan foretrekkes fordi begrensningen i mulig mangelsansvar kan ha egenverdi for selger. Selger står fritt til å forkaste eller akseptere ethvert bud, og er for eksempel ikke forpliktet til å akseptere høyeste bud.
Budgiver skal i budskjema avgi egenerklæring om budgiver er forbruker eller næringsdrivende/ person som hovedsakelig handler som ledd i næringsvirksomhet. Budgivere får informasjon dersom andre bud er inngitt av en som ikke er forbruker.
Forbrukerkjøp - definisjon
Med forbrukerkjøp menes kjøp av eiendom når kjøperen er en fysisk person som ikke hovedsakelig handler som ledd i næringsvirksomhet.
Forbruker – avtalevilkår
Eiendommen har en mangel dersom den ikke er i samsvar med kravene som følger av avtalen, eller det foreligger brudd på bestemmelsene i avhendingsloven §§ 3-2 til 3-8. Hvis eiendommen ikke er i samsvar med det kjøperen må kunne forvente ut ifra alder, type og synlig tilstand, kan det være grunnlag for mangelskrav. Det samme gjelder hvis det er holdt tilbake eller gitt uriktige opplysninger om eiendommen. Dette gjelder likevel bare dersom man kan gå ut ifra at det virket inn på avtalen at opplysningen ikke ble gitt eller at mangelskravet ikke blir rettet i tide på en tydelig måte.
Boligen kan ha en mangel etter avhendingsloven § 3-3 andre ledd, dersom det er avvik mellom opplyst og faktisk innvendig areal, forutsatt at avviket er på 2% eller mer og minimum 1 kvm.
Ved beregning av et eventuelt prisavslag eller erstatning må kjøper selv dekke tap/kostnader opptil et beløp på kr 10 000 (egenandel).
Ikke-forbruker (næringsdrivende) – definisjon
Hvis kjøper er en juridisk person, eller en fysisk person som hovedsakelig handler som ledd i næringsvirksomhet, vil kjøpet ikke anses som et forbrukerkjøp.
Ikke-forbruker – avtalevilkår
Eiendommen har en mangel dersom den ikke er i samsvar med kravene som følger av avtalen.
Eiendommen selges «som den er», og selgers ansvar utover det konkret avtalte er da begrenset etter avhendingsloven § 3-9, første ledd andre setning.
Avhendingsloven § 3-3 andre ledd fravikes, og hvorvidt boligens arealsvikt utgjør en mangel vurderes etter avhendingsloven § 3-8.
Informasjon om kjøpers undersøkelsesplikt, herunder oppfordringen om å undersøke eiendommen nøye, gjelder også for kjøpere som ikke anses som forbrukere.
Det forutsettes at hjemmel overføres til kjøper. Hvis kjøper ikke ønsker hjemmelsoverføring av eiendommen, må det tas forbehold om dette i budet.
Meglers vederlag
Meglers vederlag betales av selger og er avtalt til:
Vederlag: 0,75 % av salgssummen inkl. eventuell fellesgjeld. Minimumsprovisjon er kr 60 000,-
Vederlag:
Kontroll av hjemmel og heftelser kr 2 900,-
Markedsføringspakke kr 28 250,-
Oppgjør kr 7 500,-
Tilrettelegging kr 17 000,-
Visninger pr stk / Overtagelse kr 4 000,-
Utlegg:
Eierskiftegebyr forretningsfører kr 6 840,-
Innhenting av informasjon forretningsfører kr 4 500,-
Innhenting av offentlig opplysninger kr 1 000,-
Innhenting av offentlig opplysninger Oslo kommunale avgifter kr 265,-
Innhenting av offentlig opplysninger, reguleringsbestemmelser kr 849,-
Tinglysing sikring kr 545,-
Andre utgifter:
AX tilstandsrapport rekkehus/tomannsbolig kr 17 500,-
Boligselgerforsikring Gjensidige Eiet - regnes av prisantydning kr 65 000,-
Foto kr 7 500,-
Vi er opptatt av verdiskapning, og har knyttet til oss samarbeidspartnere som skal sikre våre kunder de beste produkter og tjenester;
• I forbindelse med forberedelse av salget, innhenter vi informasjon om eiendommen hovedsakelig fra vår samarbeidspartner Amibita.
• Gjensidige leverer boligselgerforsikring og tilbyr bygningsforsikring
• Boligkjøperforsikring leveres av Hiscox og med Sedgwick som skadebehandler, og er formidlet gjennom Gjensidige.
• BN bank tilbyr finansieringsløsninger
• Vår avdeling Krogsveen Pluss tilbyr flyttetjenester som utvask, visningsvask, lager, tømming og transport av flyttelass, i tillegg til å formidle kontakt med Flip for overflateoppussing.
• I forbindelse med overtagelse av eiendommen tilbyr Overo avtale om strøm, alarm og bredbånd.
• Krogsveen er, sammen med øvrige bransjeaktører, medeier i Bomega AS som tilbyr den digitale annonseringsplattformen Hjem.
Opplysninger om oppdraget
Oppdragsnummer 41-0103/25
Eiendomsmegler Krogsveen AS, avd. Grefsen
Grefsenveien 105, 0492, OSLO
950 007 613
Oppdragets KR-kode KR41.25103
Dato
Sist oppdatert: 30. januar 2026 kl. 22:05
Dokumenter
Dokumenter
PDF – 944 KB
PDF – 59 KB
PDF – 732 KB
PDF – 745 KB
PDF – 312 KB
PDF – 29 KB
PDF – 127 KB
PDF – 392 KB
Område
Legg til steder som er viktige for deg
Visning
Det er ingen planlagte visninger. Meld deg på for å avtale en tid som passer.
Lurer du på noe?
Unngå doble boligrenter
Vi tilbyr gunstig forsikring.
Vurderer du utleie?
Få et tilbud fra Utleie KrogsveenHva koster lånet?
Sjekk estimert lånekostnadVil du varsles om lignende boliger?
Ved å lagre ditt boligsøk hos oss får du beskjed når vi har en bolig som ligner denne, før den legges ut på markedet!




