Prost Holms vei 81
4 200 000 kr
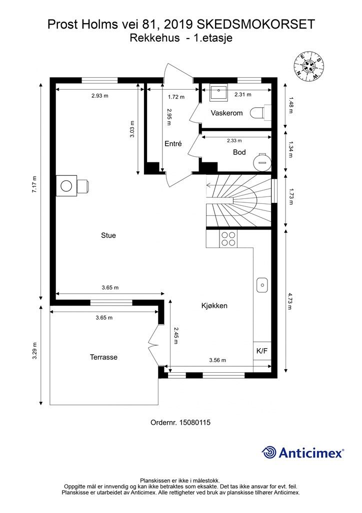
112 m²
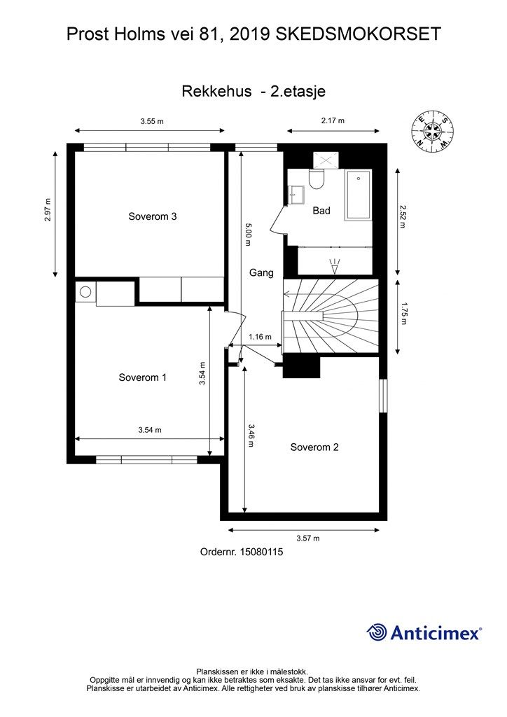
2 soverom
Solgt
Holt Vestvollen
Innbydende og familievennlig enderekkehus over 2 plan på Holt Vestvollen | God planløsning | Flott uteplass | Garasje
Prisantydning
4 200 000 krAndel fellesgjeld
359 147 krOmkostninger
19 446 krTotalpris
4 578 593 kr
Pris
Bruksareal
132 m²BRA-I (internt bruksareal)
112 m²BRA-E (eksternt bruksareal)
20 m²TBA (terrasse-balkongareal)
12 m²
Areal
Etasje
2Byggeår
1988Soverom
2 soveromBad
1 badType
RekkehusEierform
AndelFasiliteter
Garasje/P-plass og Balkong/TerrasseFellesutgifter
7 399 krEnergimerke
Oransje E
Nøkkelinfo
Unngå doble boligrenter
Vi tilbyr gunstig forsikring.
Vurderer du utleie?
Få et tilbud fra Utleie KrogsveenHva koster lånet?
Sjekk estimert lånekostnadBeskrivelse
Kort om eiendommen
Velkommen til Prost Holms vei 81! - Presentert av Andreas Bergh Johannessen
Dette er et innholdsrikt og familievennlig rekkehus over to plan, beliggende i et rolig og veletablert nabolag på Holt Vestvollen.
Her bor du i et barnevennlig område med kort vei til skoler og barnehager. Boligen har en god planløsning med åpen stue- og kjøkkenløsning, utgang til terrasse på 12 m² og en hyggelig peisovn. Med to soverom i andre etasje er dette et perfekt hjem for familien.
Høydepunkter:
Familievennlig ende rekkehus over to plan
Moderne bad
Åpen stue- og kjøkkenløsning med peisovn
Terrasse på 12 m² med utgang fra stuen
Gode lagringsplass
Trygt og barnevennlig område
Kort vei til kollektivtransport
Velkommen til visning!
Område
Legg til steder som er viktige for deg
På flyttefot? Tenk kjøp og salg samtidig.
Få din egen rådgiver gjennom hele kjøps- og salgsprosessen. Det starter med en verdivurdering.
Unngå doble boligrenter
Vi tilbyr gunstig forsikring.
Vurderer du utleie?
Få et tilbud fra Utleie KrogsveenHva koster lånet?
Sjekk estimert lånekostnadVil du varsles om lignende boliger?
Ved å lagre ditt boligsøk hos oss får du beskjed når vi har en bolig som ligner denne, før den legges ut på markedet!
På flyttefot? Slik gjør vi det enklere for deg
Skreddersydd flyttepakke
Vi fikser håndverkere, vask, pakking, lagring og transport, og legger ut for utgiftene underveis.
Hjelp med både kjøp og salg
Hos oss har du din egen rådgiver gjennom hele kjøps- og salgsprosessen.
Hjelp til finansiering
Vårt samarbeid med BN Bank sikrer deg rask og løsningsorientert hjelp, til konkurransedyktige betingelser.















































