Krossveien 4
18 500 000 kr
154 m²
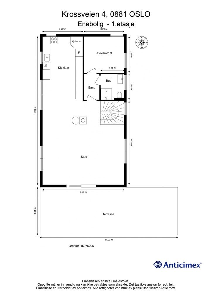
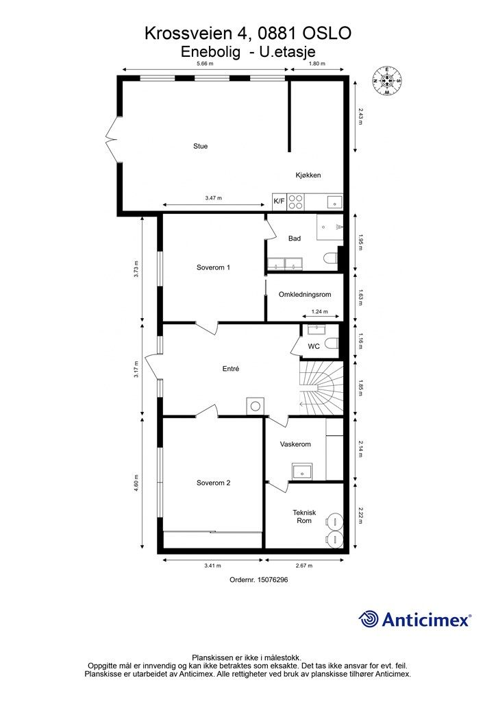
3 soverom
Solgt

Korsvoll
Pen enebolig med flott tomt i et barnevennlig og populært område. Kort vei til marka og skoler. 2 nyere bad og kjøkken.
Prisantydning
18 500 000 krOmkostninger
483 490 krTotalpris
18 983 490 kr
Pris
Bruksareal
205 m²BRA-I (internt bruksareal)
154 m²BRA-E (eksternt bruksareal)
51 m²TBA (terrasse-balkongareal)
42 m²
Areal
Etasje
2Byggeår
1991Soverom
3 soveromBad
2 badTomteareal
897 m² (eiet)Type
Enebolig - FrittliggendeEierform
EietFasiliteter
Garasje/P-plass og Balkong/TerrasseEnergimerke
Gul D
Nøkkelinfo
Unngå doble boligrenter
Vi tilbyr gunstig forsikring.
Vurderer du utleie?
Få et tilbud fra Utleie KrogsveenHva koster lånet?
Sjekk estimert lånekostnadBeskrivelse
Kort om eiendommen
Velkommen til Krossveien 4, en tilbaketrukket og innholdsrik enebolig på populære Korsvoll. Beliggenheten er meget sentral og helt ideell for en aktiv familie med gangavstand til buss, butikk, marka og skole/barnehage.
Fin og praktisk planløsning over 2 etasjer, i tillegg til mye lagringsplass på kaldloft. 3 gode soverom, hvorav ett med walk-in garderobe, luftig og lys stue/kjøkkenløsning og 2 bad + toalettrom. Boligen er godt vedlikeholdt med blant annet nytt bergvarmeanlegg og vannbåren gulvvarme i alle rom (utenom sov i 1. etasje og bad med varmekabler) fra 2021, bad i 1. etasje og underetasje, samt vaskerom fra 2021 og kjøkken fra 2021.
Boligen har stor hage og flere fine uteområder. Carport for en bil og garasje med port. Ladepunkt for el-bil er montert på husvegg.
Område
Legg til steder som er viktige for deg
På flyttefot? Tenk kjøp og salg samtidig.
Få din egen rådgiver gjennom hele kjøps- og salgsprosessen. Det starter med en verdivurdering.
Unngå doble boligrenter
Vi tilbyr gunstig forsikring.
Vurderer du utleie?
Få et tilbud fra Utleie KrogsveenHva koster lånet?
Sjekk estimert lånekostnadVil du varsles om lignende boliger?
Ved å lagre ditt boligsøk hos oss får du beskjed når vi har en bolig som ligner denne, før den legges ut på markedet!

