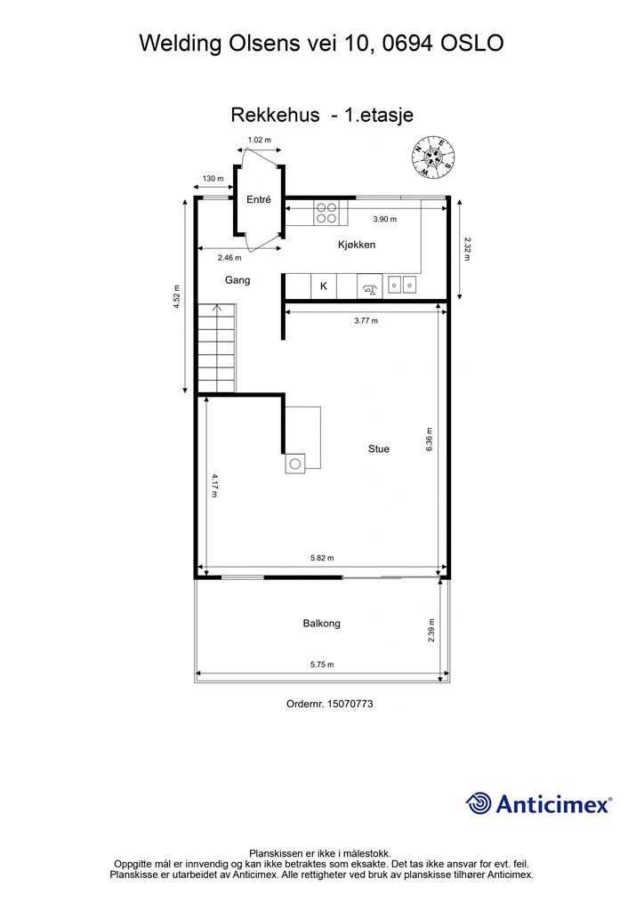
Welding Olsens vei 10
7 600 000 kr
108 m²
2 soverom
Solgt
Rustad
Rekkehus o/2 plan|V/ marka|Sydvestvendt balkong og markterr.|Bad 2019|Kjøkken 2018|Peis|Garasje*|Moderniseringsbehov|
Prisantydning
7 600 000 krAndel fellesgjeld
239 000 krOmkostninger
19 252 krTotalpris
7 858 252 kr
Pris
Bruksareal
108 m²BRA-I (internt bruksareal)
108 m²TBA (terrasse-balkongareal)
45 m²
Areal
Byggeår
1964Soverom
2 soveromBad
1 badType
RekkehusEierform
AndelFasiliteter
Balkong/TerrasseFellesutgifter
5 213 krEnergimerke
Oransje D
Nøkkelinfo
Unngå doble boligrenter
Vi tilbyr gunstig forsikring.
Vurderer du utleie?
Få et tilbud fra Utleie KrogsveenHva koster lånet?
Sjekk estimert lånekostnadDette liker selger best ved boligen
Det er fantastisk med bilfri skolevei til Rustad skole! God tilgang til Østmarka sommer og vinter med gode turstier og langrennsløyper. Samtidig er huset en kort t-banetur fra sentrum med de mulighetene det gir.
Beskrivelse
Kort om eiendommen
Velkommen til Welding Olsens vei 10, et rekkehus i Rustadlia borettslag - med svært barnevennlig beliggenhet!
Verdt å nevne:
- Attraktiv beliggenhet m/umiddelbar nærhet til Østmarka
- Trygg, bilfri vei til Rustad skole
- Sydvestvendt balkong på 14 kvm (utg. fra stue)
- Markterrasse på 25 kvm (utg. fra hovedsoverom)
- Pent bad oppgr. i 2019 m/vaskerom og bod innenfor
- Kjøkkeninnredning fra 2018 m/integrerte hvitevarer
- Lys og romslig stue m/peis og god plass til sofa- og spisegruppe
- Praktisk, sep. WC-rom
- 2 romslige soverom m/garderobeskap
- Balkongskyvedør, terrassedør og vinduer fra 2006, i stue og soverom 1
- Kort vei til dagligvare, buss/T-bane og fritidsaktiviteter
- Garasje kan kjøpes
Oppgradering av markterrasse v/inngangsparti (TG3), samt noe generell oppussing bør påregnes
Område
Legg til steder som er viktige for deg
På flyttefot? Tenk kjøp og salg samtidig.
Få din egen rådgiver gjennom hele kjøps- og salgsprosessen. Det starter med en verdivurdering.
Unngå doble boligrenter
Vi tilbyr gunstig forsikring.
Vurderer du utleie?
Få et tilbud fra Utleie KrogsveenHva koster lånet?
Sjekk estimert lånekostnadVil du varsles om lignende boliger?
Ved å lagre ditt boligsøk hos oss får du beskjed når vi har en bolig som ligner denne, før den legges ut på markedet!




