Jens Bjelkes gate 5
7 250 000 kr
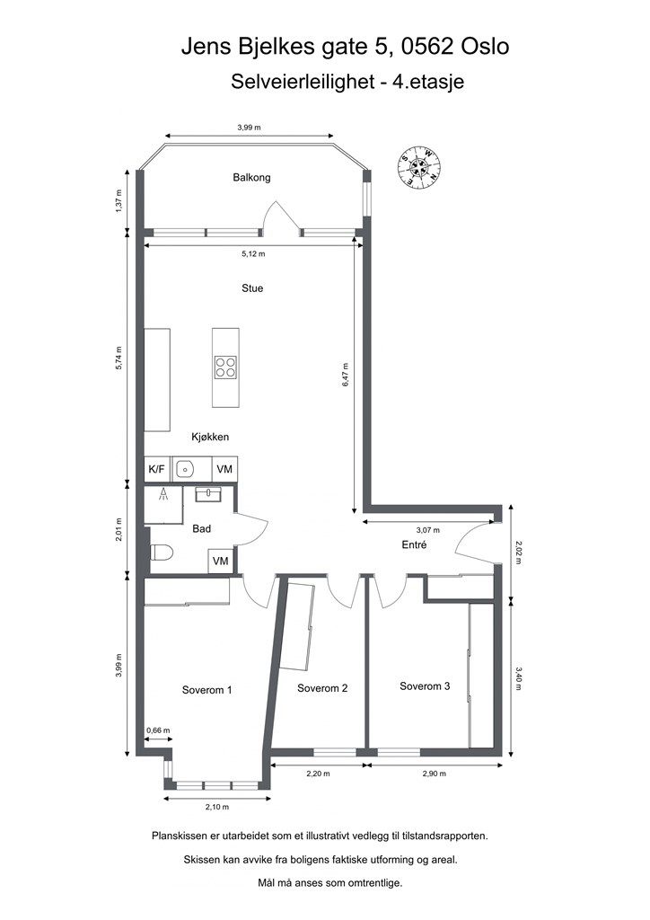
80 m²
3 soverom
Solgt

Grünerløkka
Innholdsrik og gjennomgående 4-roms med romslig balkong på hele 10 kvm. Heis. Sentral, men tilbaketrukket beliggenhet.
Prisantydning
7 250 000 krAndel fellesgjeld
26 663 krOmkostninger
192 940 krTotalpris
7 469 603 kr
Pris
Bruksareal
83 m²BRA-I (internt bruksareal)
80 m²BRA-E (eksternt bruksareal)
3 m²TBA (terrasse-balkongareal)
10 m²
Areal
Etasje
4Byggeår
1988Soverom
3 soveromBad
1 badType
EierleilighetEierform
EierseksjonFasiliteter
Heis og Balkong/TerrasseFellesutgifter
6 165 krEnergimerke
Rød E
Nøkkelinfo
Unngå doble boligrenter
Vi tilbyr gunstig forsikring.
Vurderer du utleie?
Få et tilbud fra Utleie KrogsveenHva koster lånet?
Sjekk estimert lånekostnadBeskrivelse
Kort om eiendommen
Velkommen til Jens Bjelkes gate 5!
En meget innholdsrik og lys 4-roms selveierleilighet med gjennomgående og arealeffektiv planløsning. Leiligheten har et utrolig sentralt utgangspunkt på nedre Grünerløkka med gåavstand til det meste storbyen har å by på. Høydepunkter:
- Arealeffektiv planløsning med lys fra to sider
- 3 soverom av god størrelse
- Romslig balkong på hele 10 kvm med frodig utsyn og fine solforhold på dagen
- Delikat og påkostet bad i 2025 med blant annet ny innredning og "flis på flis"
- Varmtvann og bredbånd ink. i felleskost.
- Tidvis mulighet for å kjøpe/leie garasjeplass i sameiets garasjekjeller.
- 4.etg med heisadkomst
- Meget sentral beliggenhet med kollektiv transport, parker og butikker i gåavstand
- Denne leiligheten bør oppleves
Velkommen til visning!
Område
Legg til steder som er viktige for deg
På flyttefot? Tenk kjøp og salg samtidig.
Få din egen rådgiver gjennom hele kjøps- og salgsprosessen. Det starter med en verdivurdering.
Unngå doble boligrenter
Vi tilbyr gunstig forsikring.
Vurderer du utleie?
Få et tilbud fra Utleie KrogsveenHva koster lånet?
Sjekk estimert lånekostnadVil du varsles om lignende boliger?
Ved å lagre ditt boligsøk hos oss får du beskjed når vi har en bolig som ligner denne, før den legges ut på markedet!

